Property
Account |
| Property ID: | 29076 | Abbreviated Legal Description: | SOUTHVIEW ESTATES LOT 10 BLK 1 |
| Parcel Number: | 360731610110 | Agent Code: | |
| Type: | Real | | |
| Tax Area: | 5 - OL-140 | Land Use Code | 11 |
| Open Space: | N | DFL | N |
| Historic Property: | N | Remodel Property: | N |
| Multi-Family Redevelopment: | N | | |
| Township: | 7 | Section: | 31 |
| Range: | 36 |
Location |
| Address: | 1209 SOUTHVIEW DR WA 99362 | Mapsco: | |
| Neighborhood: | VG- Res Rural/City Inf | Map ID: | |
| Neighborhood CD: | 115112 |
Owner |
| Name: | WELLS JON & MICHELE | Owner ID: | 62719 |
| Mailing Address: | 1209 SOUTHVIEW DR WALLA WALLA, WA 99362 | % Ownership: | 100.0000000000% |
| | | Exemptions: | |
Taxes and Assessment Details
Values
| (+) Improvement Homesite Value: | + | $301,820 | |
| (+) Improvement Non-Homesite Value: | + | $0 | |
| (+) Land Homesite Value: | + | $90,000 | |
| (+) Land Non-Homesite Value: | + | $0 | |
| (+) Curr Use (HS): | + | $0 | $0 |
| (+) Curr Use (NHS): | + | $0 | $0 |
| | | -------------------------- | |
| (=) Market Value: | = | $391,820 | |
| (–) Productivity Loss: | – | $0 | |
| | | -------------------------- | |
| (=) Subtotal: | = | $391,820 | |
| (+) Senior Appraised Value: | + | $0 | |
| (+) Non-Senior Appraised Value: | + | $391,820 | |
| | | -------------------------- | |
| (=) Total Appraised Value: | = | $391,820 | |
| (–) Senior Exemption Loss: | – | $0 | |
| (–) Exemption Loss: | – | $0 | |
| | | -------------------------- | |
| (=) Taxable Value: | = | $391,820 | |
Taxing Jurisdiction
| Owner: | WELLS JON & MICHELE | | |
| % Ownership: | 100.0000000000% | | |
| Total Value: | $391,820 | | |
| Tax Area: | 5 - OL-140 |
| CERFD | CURRENT EXPENSE REFUND 010 | 0.0000000000 | $391,820 | $391,820 | $0.00 | | |
| CURREXP | CURRENT EXPENSE 010 | 1.0175366760 | $391,820 | $391,820 | $398.69 | | |
| HUMNSERV | HUMAN SERVICES 119 | 0.0250000000 | $391,820 | $391,820 | $9.80 | | |
| SLDREL | SOLDIERS RELIEF 121 | 0.0155990005 | $391,820 | $391,820 | $6.11 | | |
| EMERGSER | EMS 147 | 0.3792580840 | $391,820 | $391,820 | $148.60 | | |
| EMSRFD | EMS REFUND 147 | 0.0000000000 | $391,820 | $391,820 | $0.00 | | |
| PORTRFD | PORT REFUND 640 | 0.0000000000 | $391,820 | $391,820 | $0.00 | | |
| PORTWWGEN | PORT OF WW 640 | 0.2460186015 | $391,820 | $391,820 | $96.40 | | |
| SD140BOND | SD #140 BOND 764 | 0.8342371393 | $391,820 | $391,820 | $326.87 | | |
| SD140GEN | SD #140 GENERAL 760 | 2.0646500647 | $391,820 | $391,820 | $808.97 | | |
| ST2 | STATE SCHOOL PART 2 600 | 0.8131451643 | $391,820 | $391,820 | $318.61 | | |
| STATESCHL | STATE SCHOOL 600 | 1.5158548041 | $391,820 | $391,820 | $593.94 | | |
| STREFUND | STATE REFUND LEVY 603 | 0.0000000000 | $391,820 | $391,820 | $0.00 | | |
| CWWBOND | C OF WW BOND 643 | 0.2760494372 | $391,820 | $391,820 | $108.16 | | |
| CWWGEN | CITY OF WW 631 | 1.6100204973 | $391,820 | $391,820 | $630.84 | | |
| CWWRFD | CITY OF WALLA WALLA REFUND 631 | 0.0000000000 | $391,820 | $391,820 | $0.00 | | |
| | Total Tax Rate: | 8.7973694689 | | | | | |
| | | | | Taxes w/Current Exemptions: | $3,446.99 | | |
| | | | | Taxes w/o Exemptions: | $3,446.99 | | |
Improvement / Building
| Improvement #1: | RESIDENTIAL | State Code: | 11 | 1383.0 sqft | Value: | $301,820 |
| Exterior Wall: | PLYWOOD | Heating/Cooling: | WARM & COOLED AIR | | Number of Bathrooms: | 2 | Number of Bedrooms: | 3 | | Plumbing: | 9 | Roof Covering: | COMP SHINGLE |
|
| | Type | Description | Class CD | Sub Class CD | Year Built | Area |
| | MA | Main Area | 1 | 35 | 1991 | 1383.0 |
| | ATG | Attached Garage | 1 | 35 | 0 | 759.0 |
| | SI1 | SITE IMPROVEMENT | 1 | 35 | 0 | 2.0 |
| | WDR | WOOD DECK W/ROOF | 1 | 35 | 1991 | 224.0 |
| | RPC | OPEN PORCH W/ROOF , CEILED | 1 | 35 | 0 | 60.0 |
Sketch
Property Image
Land
| 1 | RES 1 | Converted: Residential | 0.2317 | 10092.00 | 0.00 | 0.00 | 1.00 | $90,000 | $0 |
Roll Value History
| 2026 | N/A | N/A | N/A | N/A | N/A |
| 2025 | $271,640 | $150,000 | $0 | $421,640 | $421,640 |
| 2024 | $301,820 | $90,000 | $0 | $391,820 | $391,820 |
| 2023 | $301,820 | $90,000 | $0 | $391,820 | $391,820 |
| 2022 | $241,450 | $90,000 | $0 | $331,450 | $331,450 |
| 2021 | $209,960 | $90,000 | $0 | $299,960 | $299,960 |
| 2020 | $209,960 | $90,000 | $0 | $299,960 | $299,960 |
| 2019 | $224,960 | $75,000 | $0 | $299,960 | $299,960 |
| 2018 | $224,960 | $75,000 | $0 | $299,960 | $299,960 |
| 2017 | $140,600 | $75,000 | $0 | $215,600 | $215,600 |
| 2016 | $127,820 | $75,000 | $0 | $202,820 | $202,820 |
| 2015 | $116,200 | $75,000 | $0 | $191,200 | $61,080 |
| 2014 | $116,200 | $75,000 | $0 | $191,200 | $61,080 |
| 2013 | $116,200 | $75,000 | $0 | $191,200 | $61,080 |
| 2012 | $148,700 | $75,000 | $0 | $0 | $0 |
| 2011 | $160,500 | $75,000 | $0 | $0 | $0 |
| 2010 | $160,500 | $75,000 | $0 | $0 | $0 |
| 2009 | $160,500 | $75,000 | $0 | $0 | $0 |
| 2008 | $112,700 | $40,000 | $0 | $0 | $0 |
| 2007 | $112,700 | $40,000 | $0 | $0 | $0 |
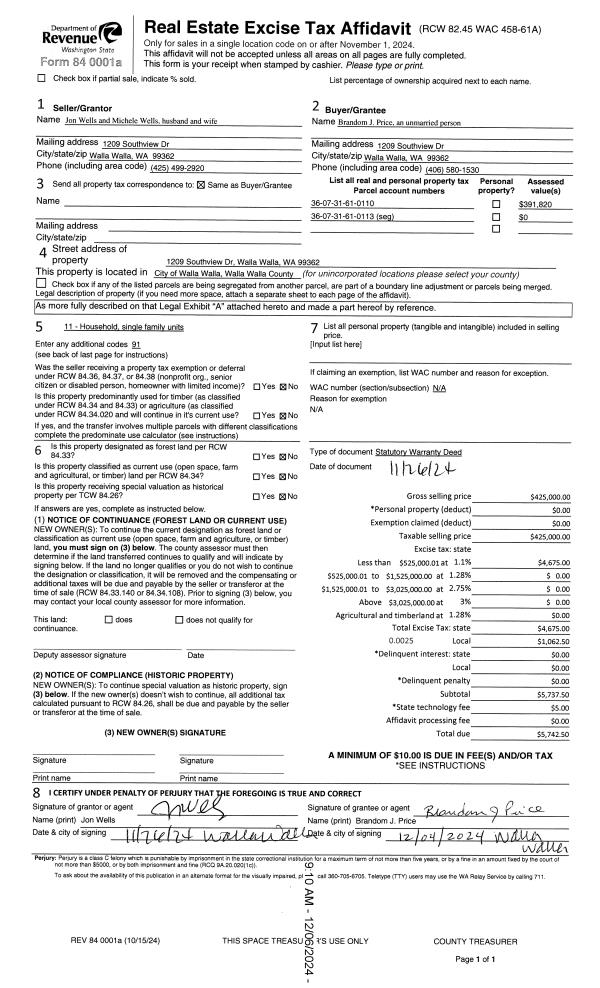
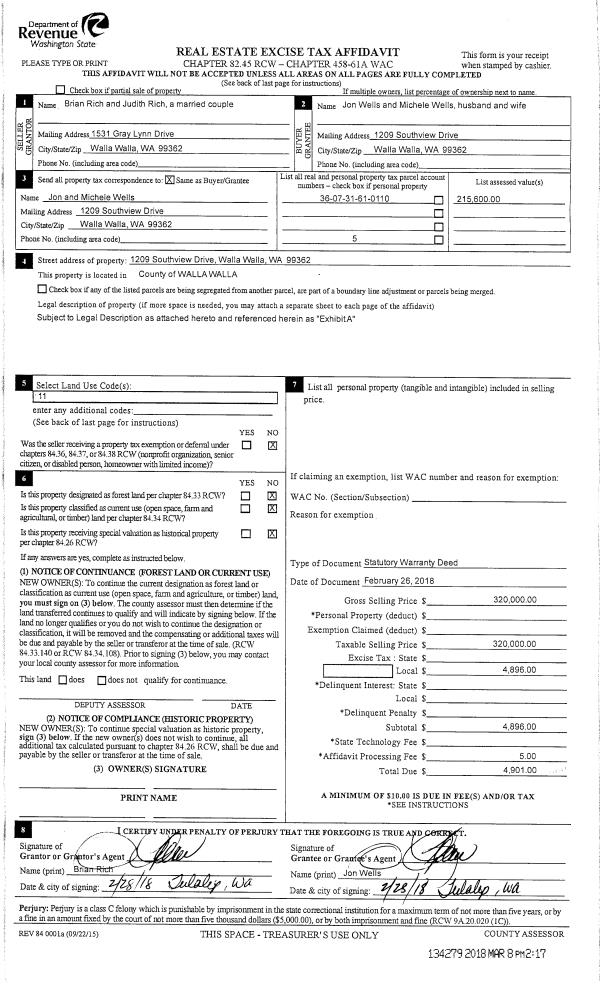
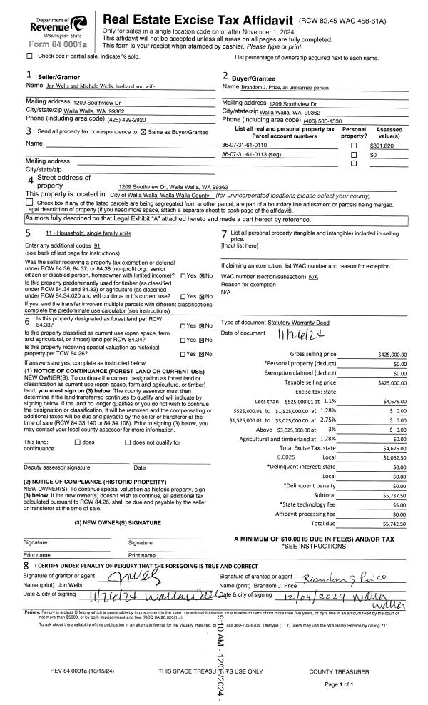
Deed and Sales History
| 1 | 12/06/2024 | SWD | STATUTORY WARRANTY DEED | WELLS JON & MICHELE | PRICE BRANDOM J | | 2-PARCELS | $425,000.00 | 148617 | 2024-07030 |
|   | |
| 2 | 03/08/2018 | SWD | STATUTORY WARRANTY DEED | RICH BRIAN & JUDITH | WELLS JON & MICHELE | | | $320,000.00 | 134279 | 2018-01844 |
| 3 | 04/12/2016 | SWD | STATUTORY WARRANTY DEED | SAYLOR S ANDREW | RICH BRIAN & JUDITH | | 2-PARCELS | $235,500.00 | 129997 | 2016-02657 |
|   | |
| 4 | 08/09/1990 | WARRANTY D | WARRANTY DEED | | | | | $18,000.00 | 0 | 1849-005480 |
Payout Agreement
| No payout information available.. |