Property
Account |
| Property ID: | 29075 | Abbreviated Legal Description: | SCENIC VIEW W1/2 OF LOT 35 BLK 2 LESS W 10' LOT 36 BLK 2 |
| Parcel Number: | 350736580236 | Agent Code: | |
| Type: | Real | | |
| Tax Area: | 75 - CP 250 | Land Use Code | 11 |
| Open Space: | N | DFL | N |
| Historic Property: | N | Remodel Property: | N |
| Multi-Family Redevelopment: | N | | |
| Township: | 7 | Section: | 36 |
| Range: | 35 |
Location |
| Address: | 115 SE MOUNTAIN VIEW DR WA 99324 | Mapsco: | |
| Neighborhood: | A SFR | Map ID: | |
| Neighborhood CD: | 113011 |
Owner |
| Name: | HAMMOND ARON PETER & JEANETTE CARY BROWN | Owner ID: | 71833 |
| Mailing Address: | 1705 E ALDER ST WALLA WALLA, WA 99362 | % Ownership: | 100.0000000000% |
| | | Exemptions: | |
Taxes and Assessment Details
Values
| (+) Improvement Homesite Value: | + | $0 | |
| (+) Improvement Non-Homesite Value: | + | $214,390 | |
| (+) Land Homesite Value: | + | $0 | |
| (+) Land Non-Homesite Value: | + | $52,650 | |
| (+) Curr Use (HS): | + | $0 | $0 |
| (+) Curr Use (NHS): | + | $0 | $0 |
| | | -------------------------- | |
| (=) Market Value: | = | $267,040 | |
| (–) Productivity Loss: | – | $0 | |
| | | -------------------------- | |
| (=) Subtotal: | = | $267,040 | |
| (+) Senior Appraised Value: | + | $0 | |
| (+) Non-Senior Appraised Value: | + | $267,040 | |
| | | -------------------------- | |
| (=) Total Appraised Value: | = | $267,040 | |
| (–) Senior Exemption Loss: | – | $0 | |
| (–) Exemption Loss: | – | $0 | |
| | | -------------------------- | |
| (=) Taxable Value: | = | $267,040 | |
Taxing Jurisdiction
| Owner: | HAMMOND ARON PETER & JEANETTE CARY BROWN | | |
| % Ownership: | 100.0000000000% | | |
| Total Value: | $267,040 | | |
| Tax Area: | 75 - CP 250 |
| CERFD | CURRENT EXPENSE REFUND 010 | 0.0000000000 | $267,040 | $267,040 | $0.00 | | |
| CURREXP | CURRENT EXPENSE 010 | 1.0175366760 | $267,040 | $267,040 | $271.72 | | |
| HUMNSERV | HUMAN SERVICES 119 | 0.0250000000 | $267,040 | $267,040 | $6.68 | | |
| SLDREL | SOLDIERS RELIEF 121 | 0.0155990005 | $267,040 | $267,040 | $4.17 | | |
| COLLPLBOND | C OF CP BOND 644 | 0.4374241808 | $267,040 | $267,040 | $116.81 | | |
| COLLPLGEN | CITY OF CP 632 | 1.4453819216 | $267,040 | $267,040 | $385.97 | | |
| EMERGSER | EMS 147 | 0.3792580840 | $267,040 | $267,040 | $101.28 | | |
| EMSRFD | EMS REFUND 147 | 0.0000000000 | $267,040 | $267,040 | $0.00 | | |
| RURALLIB | RURAL LIBRARY 623 | 0.3710609029 | $267,040 | $267,040 | $99.09 | | |
| PORTRFD | PORT REFUND 640 | 0.0000000000 | $267,040 | $267,040 | $0.00 | | |
| PORTWWGEN | PORT OF WW 640 | 0.2460186015 | $267,040 | $267,040 | $65.70 | | |
| SD250BOND | SD #250 BOND 773 | 1.4560608159 | $267,040 | $267,040 | $388.83 | | |
| SD250GEN | SD #250 GENERAL 770 | 2.3880724087 | $267,040 | $267,040 | $637.71 | | |
| ST2 | STATE SCHOOL PART 2 600 | 0.8131451643 | $267,040 | $267,040 | $217.14 | | |
| STATESCHL | STATE SCHOOL 600 | 1.5158548041 | $267,040 | $267,040 | $404.79 | | |
| STREFUND | STATE REFUND LEVY 603 | 0.0000000000 | $267,040 | $267,040 | $0.00 | | |
| | Total Tax Rate: | 10.1104125603 | | | | | |
| | | | | Taxes w/Current Exemptions: | $2,699.89 | | |
| | | | | Taxes w/o Exemptions: | $2,699.89 | | |
Improvement / Building
| Improvement #1: | RESIDENTIAL | State Code: | 11 | 1083.0 sqft | Value: | $214,390 |
| Exterior Wall: | SIDING | Heating/Cooling: | FORCED AIR | | Number of Bathrooms: | 2 | Number of Bedrooms: | 2 | | Plumbing: | 8 | Roof Covering: | COMP SHINGLE |
|
| | Type | Description | Class CD | Sub Class CD | Year Built | Area |
| | MA | Main Area | 1 | 30 | 1949 | 1083.0 |
| | SI1 | SITE IMPROVEMENT | 1 | 30 | 1949 | 1.0 |
| | ATG | Attached Garage | 1 | 30 | 1949 | 288.0 |
| | OPS | OPEN PORCH W/STEPS | 1 | 30 | 1949 | 24.0 |
| | WOD | Wood Deck | 1 | 30 | 1949 | 168.0 |
| | UTST | Utility Storage Shed | 1 | 30 | 1949 | 180.0 |
Sketch
Property Image
Land
| 1 | RES 1 | Converted: Residential | 0.1791 | 7800.00 | 0.00 | 0.00 | 1.00 | $52,650 | $0 |
Roll Value History
| 2026 | N/A | N/A | N/A | N/A | N/A |
| 2025 | $235,820 | $78,000 | $0 | $313,820 | $313,820 |
| 2024 | $235,820 | $52,650 | $0 | $288,470 | $288,470 |
| 2023 | $214,390 | $52,650 | $0 | $267,040 | $267,040 |
| 2022 | $186,420 | $52,650 | $0 | $239,070 | $239,070 |
| 2021 | $155,350 | $52,650 | $0 | $208,000 | $208,000 |
| 2020 | $129,460 | $52,650 | $0 | $182,110 | $182,110 |
| 2019 | $136,810 | $45,300 | $0 | $182,110 | $182,110 |
| 2018 | $114,010 | $45,300 | $0 | $159,310 | $53,720 |
| 2017 | $114,010 | $45,300 | $0 | $159,310 | $53,720 |
| 2016 | $114,010 | $45,300 | $0 | $159,310 | $53,720 |
| 2015 | $114,010 | $45,300 | $0 | $159,310 | $53,720 |
| 2014 | $87,700 | $45,300 | $0 | $133,000 | $53,200 |
| 2013 | $87,700 | $45,300 | $0 | $133,000 | $53,200 |
| 2012 | $87,700 | $45,300 | $0 | $0 | $0 |
| 2011 | $75,600 | $45,300 | $0 | $0 | $0 |
| 2010 | $75,600 | $45,300 | $0 | $0 | $0 |
| 2009 | $89,000 | $45,300 | $0 | $0 | $0 |
| 2008 | $69,200 | $22,800 | $0 | $0 | $0 |
| 2007 | $69,200 | $22,800 | $0 | $0 | $0 |
Deed and Sales History
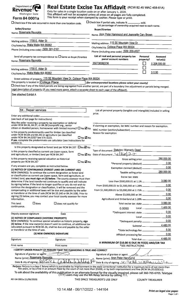
| 1 | 06/17/2022 | SWD | STATUTORY WARRANTY DEED | REYNOLDS ROSEMARIE | HAMMOND ARON PETER & JEANETTE CARY BROWN | | | $280,000.00 | 144164 | 2022-05141 |
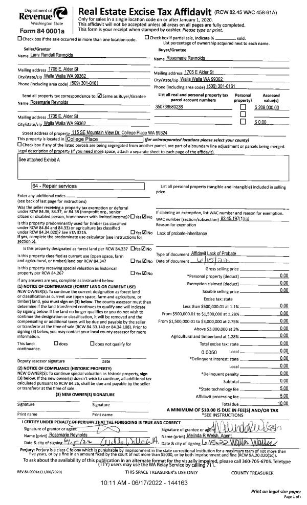
| 2 | 06/17/2022 | LOPA | LACK OF PROBATE AFFIDAVIT | REYNOLDS LARRY RANDALL ESTATE | REYNOLDS ROSEMARIE | | | | 144163 | 2022-05140 |
| 3 | 09/17/2021 | DEATH CERT | DEATH CERTIFICATE | REYNOLDS LARRY RANDALL ESTATE | | | 2 PARCELS | | 0 | 2021-11468 |
| 4 | 09/07/2021 | COMMUNITY | COMMUNITY PROPERTY AGREEMENT | REYNOLDS LAWRENCE & ROSEMARIE | | | 2-PARCELS | | 0 | 2021-10932 |
| 5 | 11/18/2019 | QCD | QUIT CLAIM DEED | REYNOLDS SALLY E | REYNOLDS LAWRENCE & ROSEMARIE | | | $0.00 | 138104 | 2019-09539 |
| 6 | 05/19/1970 | WARRANTY D | WARRANTY DEED | | | | | $11,450.00 | 0 | 3360-507900 |
Payout Agreement
| No payout information available.. |