Property
Account |
| Property ID: | 29060 | Abbreviated Legal Description: | CRESTMONT ADDN LOT 3 BLK 1 |
| Parcel Number: | 350736670103 | Agent Code: | |
| Type: | Real | | |
| Tax Area: | 75 - CP 250 | Land Use Code | 11 |
| Open Space: | N | DFL | N |
| Historic Property: | N | Remodel Property: | N |
| Multi-Family Redevelopment: | N | | |
| Township: | 7 | Section: | 36 |
| Range: | 35 |
Location |
| Address: | 1158 SE EDGEMONT PL WA 99324 | Mapsco: | |
| Neighborhood: | G SFR | Map ID: | |
| Neighborhood CD: | 114011 |
Owner |
| Name: | LEHMANN NANCI A TRUST | Owner ID: | 74052 |
| Mailing Address: | C/O NANCI A HANSEN PO BOX 404 COLLEGE PLACE, WA 99324 | % Ownership: | 100.0000000000% |
| | | Exemptions: | SNR/DSBL |
Taxes and Assessment Details
Property Tax Information as of
02/21/2026
Click on "Statement Details" to expand or collapse a tax statement.
* Please enter a valid date ** Please enter a valid date *
Statement Details |
| | TOTAL: | $0.00 | $0.00 | $0.00 | $0.00 | $0.00 | $0.00 |
|
| | $0.00 | $0.00 | $0.00 | $0.00 | $0.00 | $0.00 |
Values
| (+) Improvement Homesite Value: | + | $336,450 | |
| (+) Improvement Non-Homesite Value: | + | $0 | |
| (+) Land Homesite Value: | + | $65,000 | |
| (+) Land Non-Homesite Value: | + | $0 | |
| (+) Curr Use (HS): | + | $0 | $0 |
| (+) Curr Use (NHS): | + | $0 | $0 |
| | | -------------------------- | |
| (=) Market Value: | = | $401,450 | |
| (–) Productivity Loss: | – | $0 | |
| | | -------------------------- | |
| (=) Subtotal: | = | $401,450 | |
| (+) Senior Appraised Value: | + | $357,560 | |
| (+) Non-Senior Appraised Value: | + | $0 | |
| | | -------------------------- | |
| (=) Total Appraised Value: | = | $357,560 | |
| (–) Senior Exemption Loss: | – | $214,536 | |
| (–) Exemption Loss: | – | $0 | |
| | | -------------------------- | |
| (=) Taxable Value: | = | $143,024 | |
Taxing Jurisdiction
| Owner: | LEHMANN NANCI A TRUST | | |
| % Ownership: | 100.0000000000% | | |
| Total Value: | $401,450 | | |
| Tax Area: | 75 - CP 250 |
| CERFD | CURRENT EXPENSE REFUND 010 | 0.0000000000 | $401,450 | $143,024 | $0.00 | | |
| CURREXP | CURRENT EXPENSE 010 | 1.0175366760 | $401,450 | $143,024 | $145.53 | | |
| HUMNSERV | HUMAN SERVICES 119 | 0.0250000000 | $401,450 | $143,024 | $3.58 | | |
| SLDREL | SOLDIERS RELIEF 121 | 0.0155990005 | $401,450 | $143,024 | $2.23 | | |
| COLLPLBOND | C OF CP BOND 644 | 0.0000000000 | $401,450 | $0 | $0.00 | | |
| COLLPLGEN | CITY OF CP 632 | 1.4453819216 | $401,450 | $143,024 | $206.72 | | |
| EMERGSER | EMS 147 | 0.3792580840 | $401,450 | $143,024 | $54.24 | | |
| EMSRFD | EMS REFUND 147 | 0.0000000000 | $401,450 | $143,024 | $0.00 | | |
| RURALLIB | RURAL LIBRARY 623 | 0.3710609029 | $401,450 | $143,024 | $53.07 | | |
| PORTRFD | PORT REFUND 640 | 0.0000000000 | $401,450 | $143,024 | $0.00 | | |
| PORTWWGEN | PORT OF WW 640 | 0.2460186015 | $401,450 | $143,024 | $35.19 | | |
| SD250BOND | SD #250 BOND 773 | 0.0000000000 | $401,450 | $0 | $0.00 | | |
| SD250GEN | SD #250 GENERAL 770 | 0.0000000000 | $401,450 | $0 | $0.00 | | |
| ST2 | STATE SCHOOL PART 2 600 | 0.0000000000 | $401,450 | $0 | $0.00 | | |
| STATESCHL | STATE SCHOOL 600 | 1.5158548041 | $401,450 | $143,024 | $216.80 | | |
| STREFUND | STATE REFUND LEVY 603 | 0.0000000000 | $401,450 | $143,024 | $0.00 | | |
| | Total Tax Rate: | 5.0157099906 | | | | | |
| | | | | Taxes w/Current Exemptions: | $717.36 | | |
| | | | | Taxes w/o Exemptions: | $4,058.82 | | |
Improvement / Building
| Improvement #1: | RESIDENTIAL | State Code: | 11 | 1471.0 sqft | Value: | $336,450 |
| Exterior Wall: | PLYWOOD | Heating/Cooling: | HEAT PUMP | | Number of Bathrooms: | 2 | Number of Bedrooms: | 3 | | Plumbing: | 10 | Roof Covering: | COMP SHINGLE |
|
| | Type | Description | Class CD | Sub Class CD | Year Built | Area |
| | MA | Main Area | 1 | 35 | 2004 | 1471.0 |
| | SI1 | SITE IMPROVEMENT | 1 | 35 | 2004 | 2.0 |
| | ATG | Attached Garage | 1 | 35 | 2004 | 528.0 |
| | RCD | WOOD DECK W/ROOF, CEILED | 1 | 35 | 2004 | 108.0 |
Sketch
Property Image
Land
| 1 | RES 1 | Converted: Residential | 0.1448 | 6307.00 | 0.00 | 0.00 | 1.00 | $65,000 | $0 |
Roll Value History
| 2026 | N/A | N/A | N/A | N/A | N/A |
| 2025 | $314,580 | $125,000 | $0 | $439,580 | $143,024 |
| 2024 | $370,090 | $65,000 | $0 | $435,090 | $143,024 |
| 2023 | $336,450 | $65,000 | $0 | $401,450 | $143,024 |
| 2022 | $292,560 | $65,000 | $0 | $357,560 | $143,024 |
| 2021 | $278,630 | $65,000 | $0 | $343,630 | $343,630 |
| 2020 | $192,160 | $65,000 | $0 | $257,160 | $257,160 |
| 2019 | $192,160 | $65,000 | $0 | $257,160 | $257,160 |
| 2018 | $167,100 | $65,000 | $0 | $232,100 | $232,100 |
| 2017 | $159,140 | $65,000 | $0 | $224,140 | $224,140 |
| 2016 | $151,560 | $65,000 | $0 | $216,560 | $216,560 |
| 2015 | $151,560 | $65,000 | $0 | $216,560 | $216,560 |
| 2014 | $126,300 | $65,000 | $0 | $191,300 | $67,040 |
| 2013 | $126,300 | $65,000 | $0 | $191,300 | $67,040 |
| 2012 | $126,300 | $65,000 | $0 | $0 | $0 |
| 2011 | $147,600 | $65,000 | $0 | $0 | $0 |
| 2010 | $147,600 | $65,000 | $0 | $0 | $0 |
| 2009 | $158,800 | $65,000 | $0 | $0 | $0 |
| 2008 | $137,600 | $30,000 | $0 | $0 | $0 |
| 2007 | $137,600 | $30,000 | $0 | $0 | $0 |
Deed and Sales History
| 1 | 08/11/2023 | WARRANTY D | WARRANTY DEED | HANSEN NANCI A | LEHMANN NANCI A TRUST | | | | 146308 | 2023-04656 |
| 2 | 06/30/2022 | COMMUNITY | COMMUNITY PROPERTY AGREEMENT | HANSEN NANCI ANNALISA | HANSEN NANCI A | | | | 0 | 2022-05547 |
| 3 | 05/17/2022 | DEATH CERT | DEATH CERTIFICATE | HANSEN FRANK M & NANCI A | HANSEN NANCI ANNALISA | | | | 0 | 2022-04214 |
| 4 | 12/22/2015 | MARRIAGE | MARRIAGE CERTIFICATE | LEHMANN NANCI ANNALISA | HANSEN NANCI ANNALISA | | | | 0 | 2015-10913 |
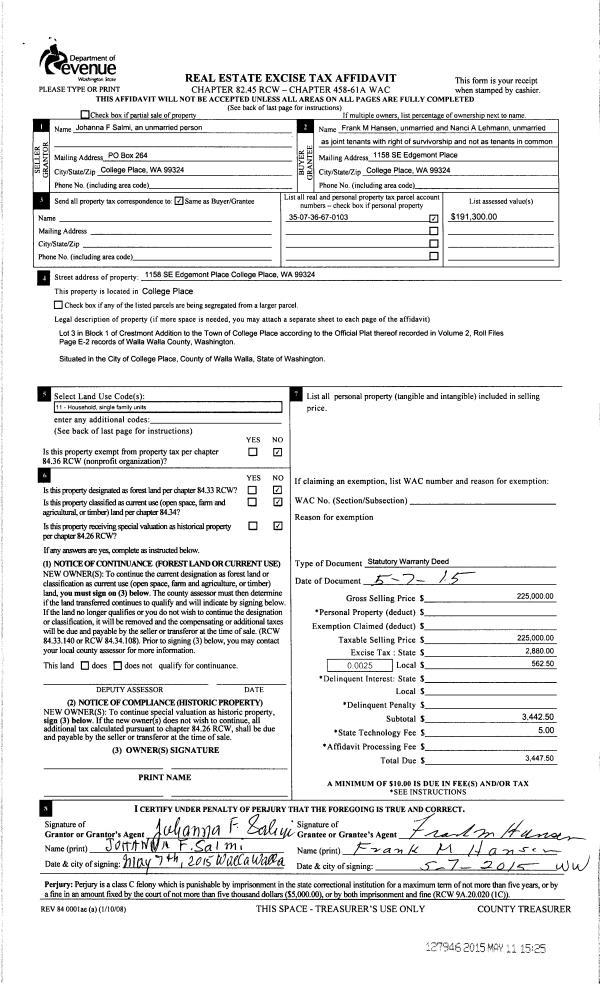
| 5 | 05/11/2015 | SWD | STATUTORY WARRANTY DEED | SALMI JOHANNA F | HANSEN FRANK M | | | $225,000.00 | 127946 | 2015-03987 |
| 6 | 06/16/2005 | WARRANTY D | WARRANTY DEED | MITCHELL, BROCK & GINA | SALMI, CLYDE C & JOHANNA F | | | $173,900.00 | 107733 | 2005-07213 |
| 7 | 10/01/2003 | WARRANTY D | WARRANTY DEED | GUERRA, MIGUAL A & DORA A | MITCHELL, BROCK & GINA | | | $30,000.00 | 103152 | 2003-15093 |
| 8 | 10/15/1992 | WARRANTY D | WARRANTY DEED | | | | | $11,000.00 | 77809 | 2009-209287 |
Payout Agreement
| No payout information available.. |