Property
Account |
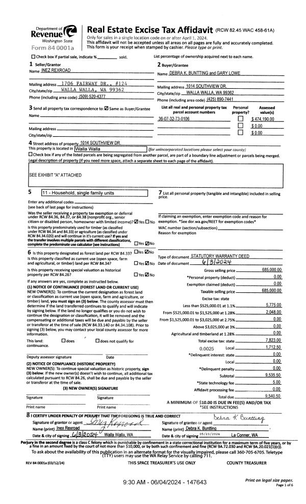
| Property ID: | 29059 | Abbreviated Legal Description: | SOUTHVIEW EST#2 PHASE 2 LT 6 BLK 1 |
| Parcel Number: | 360732730106 | Agent Code: | |
| Type: | Real | | |
| Tax Area: | 5 - OL-140 | Land Use Code | 11 |
| Open Space: | N | DFL | N |
| Historic Property: | N | Remodel Property: | N |
| Multi-Family Redevelopment: | N | | |
| Township: | 7 | Section: | 32 |
| Range: | 36 |
Location |
| Address: | 1014 SOUTHVIEW DR WA 99362 | Mapsco: | |
| Neighborhood: | VG- Res Rural/City Inf | Map ID: | |
| Neighborhood CD: | 115112 |
Owner |
| Name: | REXROAD INEZ | Owner ID: | 14129 |
| Mailing Address: | 1014 SOUTHVIEW DR WALLA WALLA, WA 99362 | % Ownership: | 100.0000000000% |
| | | Exemptions: | SNR/DSBL |
Taxes and Assessment Details
Property Tax Information as of
02/21/2026
Click on "Statement Details" to expand or collapse a tax statement.
* Please enter a valid date ** Please enter a valid date *
Statement Details |
| | TOTAL: | $0.00 | $0.00 | $0.00 | $0.00 | $0.00 | $0.00 |
|
| | $0.00 | $0.00 | $0.00 | $0.00 | $0.00 | $0.00 |
Values
| (+) Improvement Homesite Value: | + | $384,190 | |
| (+) Improvement Non-Homesite Value: | + | $0 | |
| (+) Land Homesite Value: | + | $90,000 | |
| (+) Land Non-Homesite Value: | + | $0 | |
| (+) Curr Use (HS): | + | $0 | $0 |
| (+) Curr Use (NHS): | + | $0 | $0 |
| | | -------------------------- | |
| (=) Market Value: | = | $474,190 | |
| (–) Productivity Loss: | – | $0 | |
| | | -------------------------- | |
| (=) Subtotal: | = | $474,190 | |
| (+) Senior Appraised Value: | + | $248,400 | |
| (+) Non-Senior Appraised Value: | + | $0 | |
| | | -------------------------- | |
| (=) Total Appraised Value: | = | $248,400 | |
| (–) Senior Exemption Loss: | – | $149,040 | |
| (–) Exemption Loss: | – | $0 | |
| | | -------------------------- | |
| (=) Taxable Value: | = | $99,360 | |
Taxing Jurisdiction
| Owner: | REXROAD INEZ | | |
| % Ownership: | 100.0000000000% | | |
| Total Value: | $474,190 | | |
| Tax Area: | 5 - OL-140 |
| CERFD | CURRENT EXPENSE REFUND 010 | 0.0000000000 | $474,190 | $99,360 | $0.00 | | |
| CURREXP | CURRENT EXPENSE 010 | 1.0175366760 | $474,190 | $99,360 | $320.98 | | |
| HUMNSERV | HUMAN SERVICES 119 | 0.0250000000 | $474,190 | $99,360 | $7.89 | | |
| SLDREL | SOLDIERS RELIEF 121 | 0.0155990005 | $474,190 | $99,360 | $4.92 | | |
| EMERGSER | EMS 147 | 0.3792580840 | $474,190 | $99,360 | $119.64 | | |
| EMSRFD | EMS REFUND 147 | 0.0000000000 | $474,190 | $99,360 | $0.00 | | |
| PORTRFD | PORT REFUND 640 | 0.0000000000 | $474,190 | $99,360 | $0.00 | | |
| PORTWWGEN | PORT OF WW 640 | 0.2460186015 | $474,190 | $99,360 | $77.61 | | |
| SD140BOND | SD #140 BOND 764 | 0.0000000000 | $474,190 | $0 | $228.06 | | |
| SD140GEN | SD #140 GENERAL 760 | 0.0000000000 | $474,190 | $0 | $564.42 | | |
| ST2 | STATE SCHOOL PART 2 600 | 0.0000000000 | $474,190 | $0 | $222.29 | | |
| STATESCHL | STATE SCHOOL 600 | 1.5158548041 | $474,190 | $99,360 | $478.18 | | |
| STREFUND | STATE REFUND LEVY 603 | 0.0000000000 | $474,190 | $99,360 | $0.00 | | |
| CWWBOND | C OF WW BOND 643 | 0.0000000000 | $474,190 | $0 | $75.46 | | |
| CWWGEN | CITY OF WW 631 | 1.6100204973 | $474,190 | $99,360 | $507.88 | | |
| CWWRFD | CITY OF WALLA WALLA REFUND 631 | 0.0000000000 | $474,190 | $99,360 | $0.00 | | |
| | Total Tax Rate: | 4.8092876634 | | | | | |
| | | | | Taxes w/Current Exemptions: | $2,607.33 | | |
| | | | | Taxes w/o Exemptions: | $4,171.64 | | |
Improvement / Building
| Improvement #1: | RESIDENTIAL | State Code: | 11 | 2411.0 sqft | Value: | $384,190 |
| Exterior Wall: | HARDBOARD | Heating/Cooling: | WARM & COOLED AIR | | Number of Bathrooms: | 2 | Number of Bedrooms: | 3 | | Plumbing: | 12 | Roof Covering: | COMP SHINGLE |
|
| | Type | Description | Class CD | Sub Class CD | Year Built | Area |
| | MA | Main Area | 1 | 45 | 1992 | 2411.0 |
| | ATG | Attached Garage | 1 | 45 | 1992 | 782.0 |
| | GFP | GAS FIREPLACE | 1 | 45 | 1992 | 1.0 |
| | PRC | PORCH W STEPS, ROOF,CEILED | 1 | 45 | 1992 | 35.0 |
| | SI1 | SITE IMPROVEMENT | 1 | 45 | 1992 | 4.0 |
| | CPCG | CARPORT/ GABLE ROOF | 1 | 45 | 1992 | 282.0 |
Sketch
Property Image
Land
| 1 | RES 1 | Converted: Residential | 0.2903 | 12647.00 | 0.00 | 0.00 | 1.00 | $90,000 | $0 |
Roll Value History
| 2026 | N/A | N/A | N/A | N/A | N/A |
| 2025 | $499,450 | $150,000 | $0 | $649,450 | $649,450 |
| 2024 | $384,190 | $90,000 | $0 | $474,190 | $474,190 |
| 2023 | $384,190 | $90,000 | $0 | $474,190 | $99,360 |
| 2022 | $307,350 | $90,000 | $0 | $397,350 | $99,360 |
| 2021 | $279,410 | $90,000 | $0 | $369,410 | $99,360 |
| 2020 | $279,410 | $90,000 | $0 | $369,410 | $99,360 |
| 2019 | $294,410 | $75,000 | $0 | $369,410 | $99,360 |
| 2018 | $294,410 | $75,000 | $0 | $369,410 | $99,360 |
| 2017 | $210,290 | $75,000 | $0 | $285,290 | $99,360 |
| 2016 | $200,280 | $75,000 | $0 | $275,280 | $248,400 |
| 2015 | $182,070 | $75,000 | $0 | $257,070 | $257,070 |
| 2014 | $173,400 | $75,000 | $0 | $248,400 | $99,360 |
| 2013 | $173,400 | $75,000 | $0 | $248,400 | $248,400 |
| 2012 | $215,600 | $75,000 | $0 | $0 | $0 |
| 2011 | $215,600 | $75,000 | $0 | $0 | $0 |
| 2010 | $215,600 | $75,000 | $0 | $0 | $0 |
| 2009 | $215,600 | $75,000 | $0 | $0 | $0 |
| 2008 | $192,200 | $40,000 | $0 | $0 | $0 |
| 2007 | $192,200 | $40,000 | $0 | $0 | $0 |
Deed and Sales History
| 1 | 06/04/2024 | SWD | STATUTORY WARRANTY DEED | REXROAD INEZ | BUNTTING DEBRA K & GARY LOWE | | | $685,000.00 | 147643 | 2024-02926 |
| 2 | 10/01/2002 | QCD | QUIT CLAIM DEED | MC CALLUM, JACK | REXROAD, INEZ | | | | 100485 | 2002-11042 |
| 3 | 01/12/1996 | WARRANTY D | WARRANTY DEED | | | | | $205,000.00 | 85467 | 2379-600449 |
Payout Agreement
| No payout information available.. |