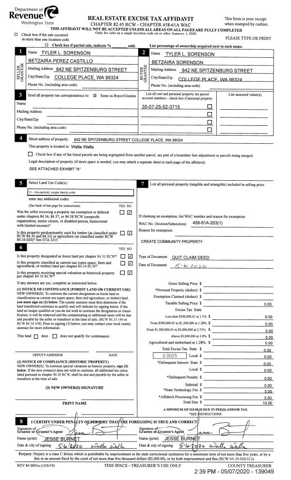
Property
Account |
| Property ID: | 29053 | Abbreviated Legal Description: | BLALOCK ORCHARDS TAX 1 LOT 5 BLK 37 |
| Parcel Number: | 350725523715 | Agent Code: | |
| Type: | Real | | |
| Tax Area: | 75 - CP 250 | Land Use Code | 11 |
| Open Space: | N | DFL | N |
| Historic Property: | N | Remodel Property: | N |
| Multi-Family Redevelopment: | N | | |
| Township: | 7 | Section: | 25 |
| Range: | 35 |
Location |
| Address: | 842 NE SPITZENBURG ST WA 99324 | Mapsco: | |
| Neighborhood: | A SFR | Map ID: | |
| Neighborhood CD: | 113011 |
Owner |
| Name: | SORENSON TYLER L & BETZAIRA | Owner ID: | 67114 |
| Mailing Address: | 842 NE SPITZENBURG ST COLLEGE PLACE, WA 99324 | % Ownership: | 100.0000000000% |
| | | Exemptions: | |
Taxes and Assessment Details
Values
| (+) Improvement Homesite Value: | + | $0 | |
| (+) Improvement Non-Homesite Value: | + | $123,050 | |
| (+) Land Homesite Value: | + | $0 | |
| (+) Land Non-Homesite Value: | + | $63,820 | |
| (+) Curr Use (HS): | + | $0 | $0 |
| (+) Curr Use (NHS): | + | $0 | $0 |
| | | -------------------------- | |
| (=) Market Value: | = | $186,870 | |
| (–) Productivity Loss: | – | $0 | |
| | | -------------------------- | |
| (=) Subtotal: | = | $186,870 | |
| (+) Senior Appraised Value: | + | $0 | |
| (+) Non-Senior Appraised Value: | + | $186,870 | |
| | | -------------------------- | |
| (=) Total Appraised Value: | = | $186,870 | |
| (–) Senior Exemption Loss: | – | $0 | |
| (–) Exemption Loss: | – | $0 | |
| | | -------------------------- | |
| (=) Taxable Value: | = | $186,870 | |
Taxing Jurisdiction
| Owner: | SORENSON TYLER L & BETZAIRA | | |
| % Ownership: | 100.0000000000% | | |
| Total Value: | $186,870 | | |
| Tax Area: | 75 - CP 250 |
| CERFD | CURRENT EXPENSE REFUND 010 | 0.0000000000 | $186,870 | $186,870 | $0.00 | | |
| CURREXP | CURRENT EXPENSE 010 | 1.0175366760 | $186,870 | $186,870 | $190.15 | | |
| HUMNSERV | HUMAN SERVICES 119 | 0.0250000000 | $186,870 | $186,870 | $4.67 | | |
| SLDREL | SOLDIERS RELIEF 121 | 0.0155990005 | $186,870 | $186,870 | $2.91 | | |
| COLLPLBOND | C OF CP BOND 644 | 0.4374241808 | $186,870 | $186,870 | $81.74 | | |
| COLLPLGEN | CITY OF CP 632 | 1.4453819216 | $186,870 | $186,870 | $270.10 | | |
| EMERGSER | EMS 147 | 0.3792580840 | $186,870 | $186,870 | $70.87 | | |
| EMSRFD | EMS REFUND 147 | 0.0000000000 | $186,870 | $186,870 | $0.00 | | |
| RURALLIB | RURAL LIBRARY 623 | 0.3710609029 | $186,870 | $186,870 | $69.34 | | |
| PORTRFD | PORT REFUND 640 | 0.0000000000 | $186,870 | $186,870 | $0.00 | | |
| PORTWWGEN | PORT OF WW 640 | 0.2460186015 | $186,870 | $186,870 | $45.97 | | |
| SD250BOND | SD #250 BOND 773 | 1.4560608159 | $186,870 | $186,870 | $272.09 | | |
| SD250GEN | SD #250 GENERAL 770 | 2.3880724087 | $186,870 | $186,870 | $446.26 | | |
| ST2 | STATE SCHOOL PART 2 600 | 0.8131451643 | $186,870 | $186,870 | $151.95 | | |
| STATESCHL | STATE SCHOOL 600 | 1.5158548041 | $186,870 | $186,870 | $283.27 | | |
| STREFUND | STATE REFUND LEVY 603 | 0.0000000000 | $186,870 | $186,870 | $0.00 | | |
| | Total Tax Rate: | 10.1104125603 | | | | | |
| | | | | Taxes w/Current Exemptions: | $1,889.32 | | |
| | | | | Taxes w/o Exemptions: | $1,889.32 | | |
Improvement / Building
| Improvement #1: | RESIDENTIAL | State Code: | 11 | 840.0 sqft | Value: | $123,050 |
| Exterior Wall: | SIDING | Heating/Cooling: | BASEBOARD ELECTRIC | | Number of Bathrooms: | 1 | Number of Bedrooms: | 2 | | Plumbing: | 6 | Roof Covering: | COMP SHINGLE |
|
| | Type | Description | Class CD | Sub Class CD | Year Built | Area |
| | MA | Main Area | 1 | 20 | 1950 | 840.0 |
| | SI1 | SITE IMPROVEMENT | 1 | 20 | 1950 | 1.0 |
| | DTG | Detached Garage | 1 | 20 | 1950 | 288.0 |
| | SWP | Solid Wall Porch | 1 | 20 | 1950 | 100.0 |
| | CPC | COVERED CARPORT/PATIO | 1 | 20 | 1950 | 385.0 |
Sketch
Property Image
Land
| 1 | RES 1 | Converted: Residential | 0.3300 | 14374.00 | 0.00 | 0.00 | 1.00 | $63,820 | $0 |
Roll Value History
| 2026 | N/A | N/A | N/A | N/A | N/A |
| 2025 | $123,050 | $96,160 | $0 | $219,210 | $219,210 |
| 2024 | $123,050 | $63,820 | $0 | $186,870 | $186,870 |
| 2023 | $123,050 | $63,820 | $0 | $186,870 | $186,870 |
| 2022 | $123,050 | $63,820 | $0 | $186,870 | $186,870 |
| 2021 | $94,650 | $63,820 | $0 | $158,470 | $158,470 |
| 2020 | $72,810 | $63,820 | $0 | $136,630 | $136,630 |
| 2019 | $85,830 | $50,800 | $0 | $136,630 | $136,630 |
| 2018 | $57,220 | $50,800 | $0 | $108,020 | $108,020 |
| 2017 | $54,500 | $50,800 | $0 | $105,300 | $0 |
| 2016 | $51,900 | $50,800 | $0 | $102,700 | $0 |
| 2015 | $51,900 | $50,800 | $0 | $102,700 | $0 |
| 2014 | $51,900 | $50,800 | $0 | $102,700 | $0 |
| 2013 | $51,900 | $50,800 | $0 | $102,700 | $0 |
| 2012 | $51,900 | $50,800 | $0 | $0 | $0 |
| 2011 | $51,900 | $50,800 | $0 | $0 | $0 |
| 2010 | $42,600 | $50,800 | $0 | $0 | $0 |
| 2009 | $53,000 | $50,800 | $0 | $0 | $0 |
| 2008 | $40,500 | $28,600 | $0 | $0 | $0 |
| 2007 | $40,500 | $28,600 | $0 | $0 | $0 |
Deed and Sales History
| 1 | 05/06/2020 | QCD | QUIT CLAIM DEED | SORENSON TYLER L | SORENSON TYLER L & BETZAIRA | | | $0.00 | 139049 | 2020-03917 |
| 2 | 12/13/2018 | SWD | STATUTORY WARRANTY DEED | MOLISE EDWIN M & PAULA L | SORENSON TYLER L | | | $140,000.00 | 136082 | 2018-10287 |
| 3 | 03/10/1977 | WARRANTY D | WARRANTY DEED | | | | | $25,300.00 | 0 | 5605-62759 |
Payout Agreement
| No payout information available.. |