Property
Account |
| Property ID: | 28953 | Abbreviated Legal Description: | CP #2 TAX 10A LOT 3 BLK 6 |
| Parcel Number: | 350736600621 | Agent Code: | |
| Type: | Real | | |
| Tax Area: | 75 - CP 250 | Land Use Code | 11 |
| Open Space: | N | DFL | N |
| Historic Property: | N | Remodel Property: | N |
| Multi-Family Redevelopment: | N | | |
| Township: | 7 | Section: | 36 |
| Range: | 35 |
Location |
| Address: | 703 SE BIRCH AVE WA 99324 | Mapsco: | |
| Neighborhood: | A SFR | Map ID: | |
| Neighborhood CD: | 113011 |
Owner |
| Name: | VASQUEZ JAVIER GARCIA | Owner ID: | 66227 |
| Mailing Address: | 1017 LOWDEN ST WALLA WALLA, WA 99362 | % Ownership: | 100.0000000000% |
| | | Exemptions: | |
Taxes and Assessment Details
Values
| (+) Improvement Homesite Value: | + | $0 | |
| (+) Improvement Non-Homesite Value: | + | $127,120 | |
| (+) Land Homesite Value: | + | $0 | |
| (+) Land Non-Homesite Value: | + | $32,400 | |
| (+) Curr Use (HS): | + | $0 | $0 |
| (+) Curr Use (NHS): | + | $0 | $0 |
| | | -------------------------- | |
| (=) Market Value: | = | $159,520 | |
| (–) Productivity Loss: | – | $0 | |
| | | -------------------------- | |
| (=) Subtotal: | = | $159,520 | |
| (+) Senior Appraised Value: | + | $0 | |
| (+) Non-Senior Appraised Value: | + | $159,520 | |
| | | -------------------------- | |
| (=) Total Appraised Value: | = | $159,520 | |
| (–) Senior Exemption Loss: | – | $0 | |
| (–) Exemption Loss: | – | $0 | |
| | | -------------------------- | |
| (=) Taxable Value: | = | $159,520 | |
Taxing Jurisdiction
| Owner: | VASQUEZ JAVIER GARCIA | | |
| % Ownership: | 100.0000000000% | | |
| Total Value: | $159,520 | | |
| Tax Area: | 75 - CP 250 |
| CERFD | CURRENT EXPENSE REFUND 010 | 0.0000000000 | $159,520 | $159,520 | $0.00 | | |
| CURREXP | CURRENT EXPENSE 010 | 1.0175366760 | $159,520 | $159,520 | $162.32 | | |
| HUMNSERV | HUMAN SERVICES 119 | 0.0250000000 | $159,520 | $159,520 | $3.99 | | |
| SLDREL | SOLDIERS RELIEF 121 | 0.0155990005 | $159,520 | $159,520 | $2.49 | | |
| COLLPLBOND | C OF CP BOND 644 | 0.4374241808 | $159,520 | $159,520 | $69.78 | | |
| COLLPLGEN | CITY OF CP 632 | 1.4453819216 | $159,520 | $159,520 | $230.57 | | |
| EMERGSER | EMS 147 | 0.3792580840 | $159,520 | $159,520 | $60.50 | | |
| EMSRFD | EMS REFUND 147 | 0.0000000000 | $159,520 | $159,520 | $0.00 | | |
| RURALLIB | RURAL LIBRARY 623 | 0.3710609029 | $159,520 | $159,520 | $59.19 | | |
| PORTRFD | PORT REFUND 640 | 0.0000000000 | $159,520 | $159,520 | $0.00 | | |
| PORTWWGEN | PORT OF WW 640 | 0.2460186015 | $159,520 | $159,520 | $39.24 | | |
| SD250BOND | SD #250 BOND 773 | 1.4560608159 | $159,520 | $159,520 | $232.27 | | |
| SD250GEN | SD #250 GENERAL 770 | 2.3880724087 | $159,520 | $159,520 | $380.95 | | |
| ST2 | STATE SCHOOL PART 2 600 | 0.8131451643 | $159,520 | $159,520 | $129.71 | | |
| STATESCHL | STATE SCHOOL 600 | 1.5158548041 | $159,520 | $159,520 | $241.81 | | |
| STREFUND | STATE REFUND LEVY 603 | 0.0000000000 | $159,520 | $159,520 | $0.00 | | |
| | Total Tax Rate: | 10.1104125603 | | | | | |
| | | | | Taxes w/Current Exemptions: | $1,612.82 | | |
| | | | | Taxes w/o Exemptions: | $1,612.82 | | |
Improvement / Building
| Improvement #1: | RESIDENTIAL | State Code: | 11 | 1118.0 sqft | Value: | $127,120 |
| Exterior Wall: | METAL/STEEL | Heating/Cooling: | FORCED AIR | | Number of Bathrooms: | 1 | Number of Bedrooms: | 3 | | Plumbing: | 6 | Roof Covering: | COMP SHINGLE |
|
| | Type | Description | Class CD | Sub Class CD | Year Built | Area |
| | MA | Main Area | 4 | 20 | 1923 | 1118.0 |
| | UPFL | Upper Floor (included in main area) | 4 | 20 | 1923 | 260.0 |
| | SI1 | SITE IMPROVEMENT | 4 | 20 | 1923 | 1.0 |
| | BASE | BASEMENT | 4 | 20 | 1923 | 135.0 |
| | RPS | PORCH W/STEPS,ROOF | 4 | 20 | 1923 | 32.0 |
| | CPCS | CARPORT/SHED OR FLAT ROOF | 4 | 20 | 1923 | 312.0 |
Sketch
Property Image
Land
| 1 | RES 1 | Converted: Residential | 0.1102 | 4800.00 | 0.00 | 0.00 | 1.00 | $32,400 | $0 |
Roll Value History
| 2026 | N/A | N/A | N/A | N/A | N/A |
| 2025 | $190,690 | $48,000 | $0 | $238,690 | $238,690 |
| 2024 | $127,120 | $32,400 | $0 | $159,520 | $159,520 |
| 2023 | $127,120 | $32,400 | $0 | $159,520 | $159,520 |
| 2022 | $121,070 | $32,400 | $0 | $153,470 | $153,470 |
| 2021 | $110,060 | $32,400 | $0 | $142,460 | $142,460 |
| 2020 | $91,720 | $32,400 | $0 | $124,120 | $124,120 |
| 2019 | $95,320 | $28,800 | $0 | $124,120 | $124,120 |
| 2018 | $82,880 | $28,800 | $0 | $111,680 | $3,700 |
| 2017 | $78,940 | $28,800 | $0 | $107,740 | $3,700 |
| 2016 | $71,760 | $28,800 | $0 | $100,560 | $3,700 |
| 2015 | $62,400 | $28,800 | $0 | $91,200 | $3,700 |
| 2014 | $62,400 | $28,800 | $0 | $91,200 | $3,700 |
| 2013 | $62,400 | $28,800 | $0 | $91,200 | $3,700 |
| 2012 | $62,400 | $28,800 | $0 | $0 | $0 |
| 2011 | $67,200 | $28,800 | $0 | $0 | $0 |
| 2010 | $67,200 | $28,800 | $0 | $0 | $0 |
| 2009 | $77,900 | $28,800 | $0 | $0 | $0 |
| 2008 | $49,300 | $14,400 | $0 | $0 | $0 |
| 2007 | $49,300 | $14,400 | $0 | $0 | $0 |
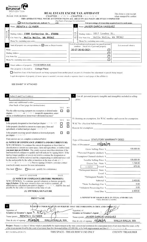
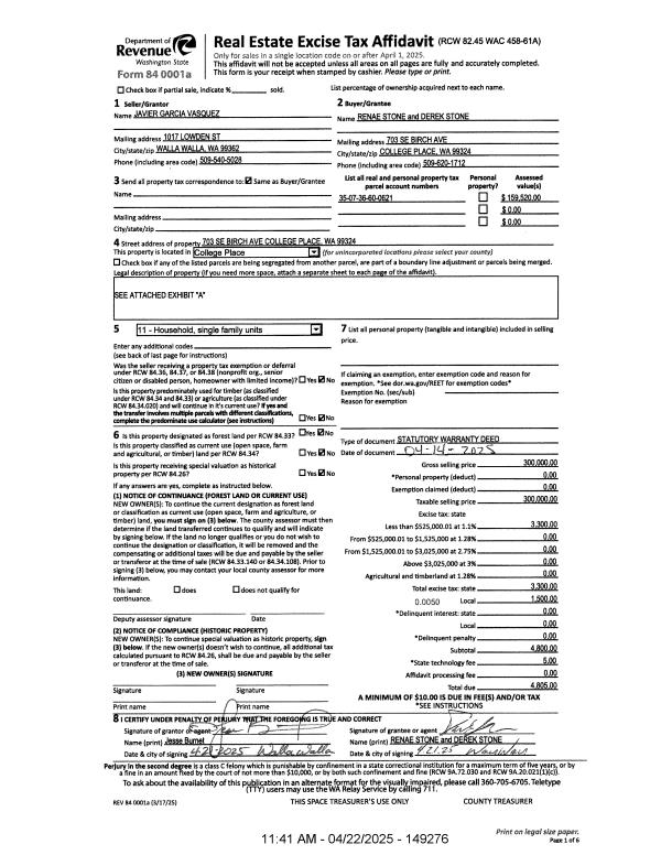
Deed and Sales History
| 1 | 04/22/2025 | SWD | STATUTORY WARRANTY DEED | VASQUEZ JAVIER GARCIA | STONE DEREK & RENAE | | | $300,000.00 | 149276 | 2025-02145 |
| 2 | 10/25/2019 | QCD | QUIT CLAIM DEED | ALCANTARA MARIA DE LO ANGELES SANCHEZ | VASQUEZ JAVIER GARCIA | | | | 137952 | 2019-08636 |
| 3 | 10/25/2019 | SWD | STATUTORY WARRANTY DEED | CLYMER RENITA V | VASQUEZ JAVIER GARCIA | | | $135,000.00 | 137951 | 2019-08635 |
| 4 | 01/13/1978 | WARRANTY D | WARRANTY DEED | | | | | $22,000.00 | 0 | 7478-00385 |
Payout Agreement
| No payout information available.. |