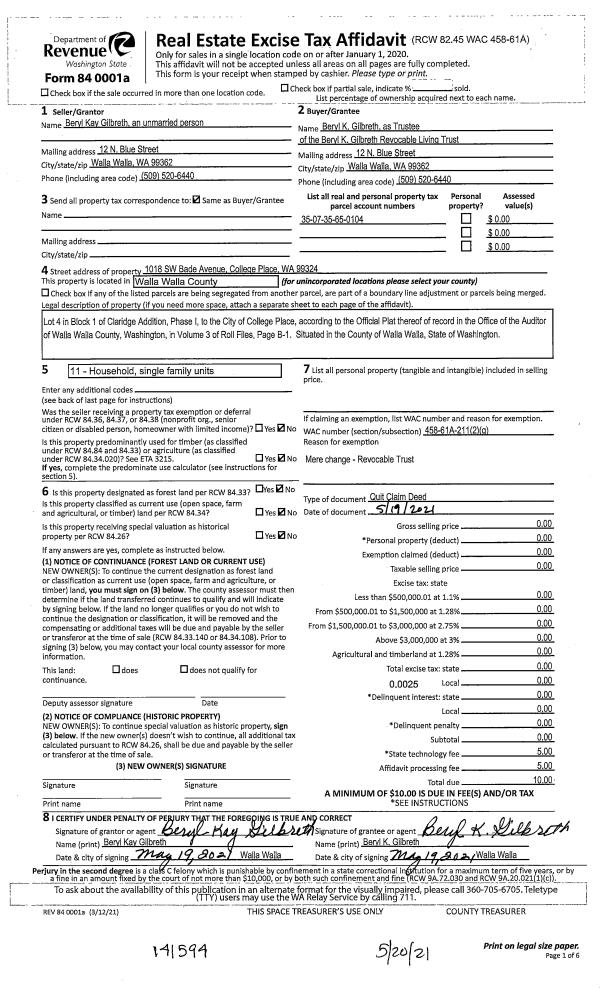
| 1 | 05/19/2021 | QCD | QUIT CLAIM DEED | GILBRETH BERYL K | GILBRETH BERYL K REVOCABLE LIVING TRUST | | | $0.00 | 141594 | 2021-06121 |
| 2 | 03/30/2018 | SWD | STATUTORY WARRANTY DEED | GILBRETH CHRISTOPHER D & DEBRA L | GILBRETH BERYL K | | | $138,000.00 | 134410 | 2018-02472 |
| 3 | 03/30/2018 | FUL | FULFILLMENT DEED | WILSON MARSHA R | GILBRETH CHRISTOPHER D & DEBRA L | | | | 0 | 2018-02474 |
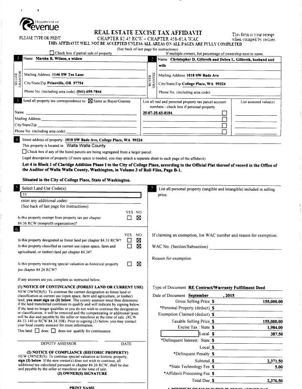
| 4 | 09/18/2015 | REAL ESTAT | REAL ESTATE CONTRACT | WILSON MARSHA R | GILBRETH CHRISTOPHER D & DEBRA L | | | $155,000.00 | 128847 | 2015-08193 |
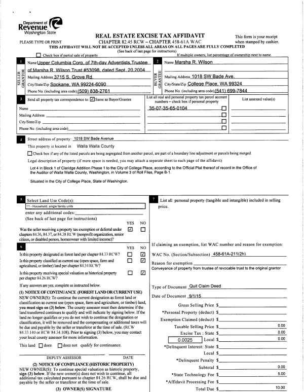
| 5 | 09/03/2015 | QCD | QUIT CLAIM DEED | WILSON MARSHA R LIFE ESTATE | WILSON MARSHA R | | | $0.00 | 128846 | 2015-08192 |
| 6 | 05/06/2005 | WARRANTY D | WARRANTY DEED | WILSON, MARSHA R | WILSON, MARSHA R LIFE ESTATE | | | | 107417 | 2005-05303 |
| 7 | 11/18/2004 | QCD | QUIT CLAIM DEED | WILSON, MARSHA R | WILSON, MARSHA R LIFE ESTATE | | | | 106197 | 2004-13304 |
| 8 | 10/07/2003 | WARRANTY D | WARRANTY DEED | GILBRETH, CHRISTOPHER & DEBRA | WILSON, MARSHA R | | | $94,000.00 | 103211 | 2003-15494 |
| 9 | 07/17/1998 | WARRANTY D | WARRANTY DEED | | | | | $80,000.00 | 90888 | 2709-808088 |