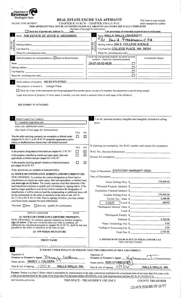
Property
Account |
| Property ID: | 28903 | Abbreviated Legal Description: | BLALOCK ORCHARDS TAX 14 BLK 45 |
| Parcel Number: | 350735524539 | Agent Code: | |
| Type: | Real | | |
| Tax Area: | 75 - CP 250 | Land Use Code | 11 |
| Open Space: | N | DFL | N |
| Historic Property: | N | Remodel Property: | N |
| Multi-Family Redevelopment: | N | | |
| Township: | 7 | Section: | 35 |
| Range: | 35 |
Location |
| Address: | 402 SW 4TH ST WA 99324 | Mapsco: | |
| Neighborhood: | A SFR | Map ID: | |
| Neighborhood CD: | 113011 |
Owner |
| Name: | WALLA WALLA UNIVERSITY | Owner ID: | 45263 |
| Mailing Address: | 204 S COLLEGE AVE COLLEGE PLACE, WA 99324 | % Ownership: | 100.0000000000% |
| | | Exemptions: | |
Taxes and Assessment Details
Values
| (+) Improvement Homesite Value: | + | $297,390 | |
| (+) Improvement Non-Homesite Value: | + | $0 | |
| (+) Land Homesite Value: | + | $62,330 | |
| (+) Land Non-Homesite Value: | + | $0 | |
| (+) Curr Use (HS): | + | $0 | $0 |
| (+) Curr Use (NHS): | + | $0 | $0 |
| | | -------------------------- | |
| (=) Market Value: | = | $359,720 | |
| (–) Productivity Loss: | – | $0 | |
| | | -------------------------- | |
| (=) Subtotal: | = | $359,720 | |
| (+) Senior Appraised Value: | + | $0 | |
| (+) Non-Senior Appraised Value: | + | $359,720 | |
| | | -------------------------- | |
| (=) Total Appraised Value: | = | $359,720 | |
| (–) Senior Exemption Loss: | – | $0 | |
| (–) Exemption Loss: | – | $0 | |
| | | -------------------------- | |
| (=) Taxable Value: | = | $359,720 | |
Taxing Jurisdiction
| Owner: | WALLA WALLA UNIVERSITY | | |
| % Ownership: | 100.0000000000% | | |
| Total Value: | $359,720 | | |
| Tax Area: | 75 - CP 250 |
| CERFD | CURRENT EXPENSE REFUND 010 | 0.0000000000 | $359,720 | $359,720 | $0.00 | | |
| CURREXP | CURRENT EXPENSE 010 | 1.0175366760 | $359,720 | $359,720 | $366.03 | | |
| HUMNSERV | HUMAN SERVICES 119 | 0.0250000000 | $359,720 | $359,720 | $8.99 | | |
| SLDREL | SOLDIERS RELIEF 121 | 0.0155990005 | $359,720 | $359,720 | $5.61 | | |
| COLLPLBOND | C OF CP BOND 644 | 0.4374241808 | $359,720 | $359,720 | $157.35 | | |
| COLLPLGEN | CITY OF CP 632 | 1.4453819216 | $359,720 | $359,720 | $519.93 | | |
| EMERGSER | EMS 147 | 0.3792580840 | $359,720 | $359,720 | $136.43 | | |
| EMSRFD | EMS REFUND 147 | 0.0000000000 | $359,720 | $359,720 | $0.00 | | |
| RURALLIB | RURAL LIBRARY 623 | 0.3710609029 | $359,720 | $359,720 | $133.48 | | |
| PORTRFD | PORT REFUND 640 | 0.0000000000 | $359,720 | $359,720 | $0.00 | | |
| PORTWWGEN | PORT OF WW 640 | 0.2460186015 | $359,720 | $359,720 | $88.50 | | |
| SD250BOND | SD #250 BOND 773 | 1.4560608159 | $359,720 | $359,720 | $523.77 | | |
| SD250GEN | SD #250 GENERAL 770 | 2.3880724087 | $359,720 | $359,720 | $859.04 | | |
| ST2 | STATE SCHOOL PART 2 600 | 0.8131451643 | $359,720 | $359,720 | $292.50 | | |
| STATESCHL | STATE SCHOOL 600 | 1.5158548041 | $359,720 | $359,720 | $545.28 | | |
| STREFUND | STATE REFUND LEVY 603 | 0.0000000000 | $359,720 | $359,720 | $0.00 | | |
| | Total Tax Rate: | 10.1104125603 | | | | | |
| | | | | Taxes w/Current Exemptions: | $3,636.91 | | |
| | | | | Taxes w/o Exemptions: | $3,636.91 | | |
Improvement / Building
| Improvement #1: | RESIDENTIAL | State Code: | 11 | 1158.0 sqft | Value: | $297,390 |
| Exterior Wall: | VINYL | Heating/Cooling: | WARM & COOLED AIR | | Number of Bathrooms: | 2 | Number of Bedrooms: | 2 | | Plumbing: | 8 | Roof Covering: | COMP SHINGLE |
|
| | Type | Description | Class CD | Sub Class CD | Year Built | Area |
| | MA | Main Area | 1 | 30 | 1946 | 1158.0 |
| | SI1 | SITE IMPROVEMENT | 1 | 30 | 1946 | 1.5 |
| | BASE | BASEMENT | 1 | 30 | 1946 | 1086.0 |
| | BPF | BASEMENT -PARTITIONED FINISH | 1 | 30 | 1946 | 1086.0 |
| | RPO | OPEN PORCH W/ROOF | 1 | 30 | 1946 | 36.0 |
| | DTG | Detached Garage | 1 | 30 | 1946 | 484.0 |
| | S1F | Single One Story Fireplace | 1 | 30 | 1946 | 1.0 |
| | RPS | PORCH W/STEPS,ROOF | 1 | 30 | 1946 | 210.0 |
Sketch
Property Image
Land
| 1 | RES 1 | Converted: Residential | 0.2700 | 11761.00 | 0.00 | 0.00 | 1.00 | $62,330 | $0 |
Roll Value History
| 2026 | N/A | N/A | N/A | N/A | N/A |
| 2025 | $297,390 | $93,270 | $0 | $390,660 | $390,660 |
| 2024 | $297,390 | $62,330 | $0 | $359,720 | $359,720 |
| 2023 | $297,390 | $62,330 | $0 | $359,720 | $359,720 |
| 2022 | $270,350 | $62,330 | $0 | $332,680 | $332,680 |
| 2021 | $235,090 | $62,330 | $0 | $297,420 | $297,420 |
| 2020 | $146,930 | $62,330 | $0 | $209,260 | $209,260 |
| 2019 | $160,660 | $48,600 | $0 | $209,260 | $209,260 |
| 2018 | $139,700 | $48,600 | $0 | $188,300 | $188,300 |
| 2017 | $133,500 | $48,600 | $0 | $182,100 | $182,100 |
| 2016 | $133,500 | $48,600 | $0 | $182,100 | $182,100 |
| 2015 | $133,500 | $48,600 | $0 | $182,100 | $182,100 |
| 2014 | $133,500 | $48,600 | $0 | $182,100 | $17,800 |
| 2013 | $133,500 | $48,600 | $0 | $182,100 | $17,800 |
| 2012 | $133,500 | $48,600 | $0 | $0 | $0 |
| 2011 | $133,500 | $48,600 | $0 | $0 | $0 |
| 2010 | $124,800 | $48,600 | $0 | $0 | $0 |
| 2009 | $144,100 | $48,600 | $0 | $0 | $0 |
| 2008 | $104,100 | $26,300 | $0 | $0 | $0 |
| 2007 | $104,100 | $26,300 | $0 | $0 | $0 |
Deed and Sales History
| 1 | 11/09/2016 | SWD | STATUTORY WARRANTY DEED | WICKWARD JOYCE G ESTATE OF | WALLA WALLA UNIVERSITY | | | $179,450.00 | 131409 | 2016-09333 |
| 2 | 02/13/1973 | WARRANTY D | WARRANTY DEED | | | | | $9,300.00 | 62100 | 3090-454564 |
Payout Agreement
| No payout information available.. |