Property
Account |
| Property ID: | 28891 | Abbreviated Legal Description: | VILLAGES OF GARRISON CREEK PUD AMENDED FINAL PLAT PHASE 1 LOT 7 |
| Parcel Number: | 350736790007 | Agent Code: | |
| Type: | Real | | |
| Tax Area: | 77 - CP-250-F | Land Use Code | 11 |
| Open Space: | N | DFL | N |
| Historic Property: | N | Remodel Property: | N |
| Multi-Family Redevelopment: | N | | |
| Township: | 7 | Section: | 36 |
| Range: | 35 |
Location |
| Address: | 860 SE PARKSIDE PL WA 99324 | Mapsco: | |
| Neighborhood: | G SFR | Map ID: | |
| Neighborhood CD: | 114011 |
Owner |
| Name: | ELIZABETH BENNETT LLC | Owner ID: | 68063 |
| Mailing Address: | 3721 NORTH MONRO ST TACOMA, WA 98407 | % Ownership: | 100.0000000000% |
| | | Exemptions: | |
Taxes and Assessment Details
Property Tax Information as of
02/21/2026
Click on "Statement Details" to expand or collapse a tax statement.
* Please enter a valid date ** Please enter a valid date *
Statement Details |
| | TOTAL: | $0.00 | $0.00 | $0.00 | $0.00 | $0.00 | $0.00 |
|
| | $0.00 | $0.00 | $0.00 | $0.00 | $0.00 | $0.00 |
Values
| (+) Improvement Homesite Value: | + | $0 | |
| (+) Improvement Non-Homesite Value: | + | $271,680 | |
| (+) Land Homesite Value: | + | $0 | |
| (+) Land Non-Homesite Value: | + | $75,000 | |
| (+) Curr Use (HS): | + | $0 | $0 |
| (+) Curr Use (NHS): | + | $0 | $0 |
| | | -------------------------- | |
| (=) Market Value: | = | $346,680 | |
| (–) Productivity Loss: | – | $0 | |
| | | -------------------------- | |
| (=) Subtotal: | = | $346,680 | |
| (+) Senior Appraised Value: | + | $0 | |
| (+) Non-Senior Appraised Value: | + | $346,680 | |
| | | -------------------------- | |
| (=) Total Appraised Value: | = | $346,680 | |
| (–) Senior Exemption Loss: | – | $0 | |
| (–) Exemption Loss: | – | $0 | |
| | | -------------------------- | |
| (=) Taxable Value: | = | $346,680 | |
Taxing Jurisdiction
| Owner: | ELIZABETH BENNETT LLC | | |
| % Ownership: | 100.0000000000% | | |
| Total Value: | $346,680 | | |
| Tax Area: | 77 - CP-250-F |
| CERFD | CURRENT EXPENSE REFUND 010 | 0.0000000000 | $346,680 | $346,680 | $0.00 | | |
| CURREXP | CURRENT EXPENSE 010 | 1.0175366760 | $346,680 | $346,680 | $352.76 | | |
| HUMNSERV | HUMAN SERVICES 119 | 0.0250000000 | $346,680 | $346,680 | $8.67 | | |
| SLDREL | SOLDIERS RELIEF 121 | 0.0155990005 | $346,680 | $346,680 | $5.41 | | |
| COLLPLBOND | C OF CP BOND 644 | 0.4374241808 | $346,680 | $346,680 | $151.65 | | |
| COLLPLGEN | CITY OF CP 632 | 1.4453819216 | $346,680 | $346,680 | $501.09 | | |
| EMERGSER | EMS 147 | 0.3792580840 | $346,680 | $346,680 | $131.48 | | |
| EMSRFD | EMS REFUND 147 | 0.0000000000 | $346,680 | $346,680 | $0.00 | | |
| RURALLIB | RURAL LIBRARY 623 | 0.3710609029 | $346,680 | $346,680 | $128.64 | | |
| PORTRFD | PORT REFUND 640 | 0.0000000000 | $346,680 | $346,680 | $0.00 | | |
| PORTWWGEN | PORT OF WW 640 | 0.2460186015 | $346,680 | $346,680 | $85.29 | | |
| SD250BOND | SD #250 BOND 773 | 1.4560608159 | $346,680 | $346,680 | $504.79 | | |
| SD250GEN | SD #250 GENERAL 770 | 2.3880724087 | $346,680 | $346,680 | $827.90 | | |
| ST2 | STATE SCHOOL PART 2 600 | 0.8131451643 | $346,680 | $346,680 | $281.90 | | |
| STATESCHL | STATE SCHOOL 600 | 1.5158548041 | $346,680 | $346,680 | $525.52 | | |
| STREFUND | STATE REFUND LEVY 603 | 0.0000000000 | $346,680 | $346,680 | $0.00 | | |
| | Total Tax Rate: | 10.1104125603 | | | | | |
| | | | | Taxes w/Current Exemptions: | $3,505.10 | | |
| | | | | Taxes w/o Exemptions: | $3,505.10 | | |
Improvement / Building
| Improvement #1: | RESIDENTIAL | State Code: | 11 | 1044.0 sqft | Value: | $271,680 |
| Exterior Wall: | PLYWOOD | Heating/Cooling: | WARM & COOLED AIR | | Number of Bathrooms: | 2 | Number of Bedrooms: | 2 | | Plumbing: | 10 | Roof Covering: | COMP SHINGLE |
|
| | Type | Description | Class CD | Sub Class CD | Year Built | Area |
| | MA | Main Area | 1 | 40 | 1997 | 1044.0 |
| | SI1 | SITE IMPROVEMENT | 1 | 40 | 1997 | 1.5 |
| | ATG | Attached Garage | 1 | 40 | 1997 | 400.0 |
| | GFP | GAS FIREPLACE | 1 | 40 | 1997 | 1.0 |
| | RPC | OPEN PORCH W/ROOF , CEILED | 1 | 40 | 1997 | 96.0 |
Sketch
Property Image
Land
| 1 | RES 1 | Converted: Residential | 0.1637 | 7130.00 | 0.00 | 0.00 | 1.00 | $75,000 | $0 |
Roll Value History
| 2026 | N/A | N/A | N/A | N/A | N/A |
| 2025 | $203,760 | $135,000 | $0 | $338,760 | $338,760 |
| 2024 | $271,680 | $75,000 | $0 | $346,680 | $346,680 |
| 2023 | $271,680 | $75,000 | $0 | $346,680 | $346,680 |
| 2022 | $226,400 | $75,000 | $0 | $301,400 | $301,400 |
| 2021 | $181,120 | $75,000 | $0 | $256,120 | $256,120 |
| 2020 | $113,200 | $75,000 | $0 | $188,200 | $188,200 |
| 2019 | $123,200 | $65,000 | $0 | $188,200 | $188,200 |
| 2018 | $102,670 | $65,000 | $0 | $167,670 | $167,670 |
| 2017 | $102,670 | $65,000 | $0 | $167,670 | $167,670 |
| 2016 | $85,550 | $65,000 | $0 | $150,550 | $150,550 |
| 2015 | $81,480 | $65,000 | $0 | $146,480 | $146,480 |
| 2014 | $77,600 | $65,000 | $0 | $142,600 | $142,600 |
| 2013 | $77,600 | $65,000 | $0 | $142,600 | $142,600 |
| 2012 | $85,100 | $65,000 | $0 | $0 | $0 |
| 2011 | $85,100 | $65,000 | $0 | $0 | $0 |
| 2010 | $85,100 | $65,000 | $0 | $0 | $0 |
| 2009 | $93,000 | $65,000 | $0 | $0 | $0 |
| 2008 | $84,500 | $30,000 | $0 | $0 | $0 |
| 2007 | $84,500 | $30,000 | $0 | $0 | $0 |
Deed and Sales History
| 1 | 10/05/2020 | SWD | STATUTORY WARRANTY DEED | CONLEY GENE R & JAYNE E DIDARIO | ELIZABETH BENNETT LLC | | | $285,000.00 | 140030 | 2020-10175 |
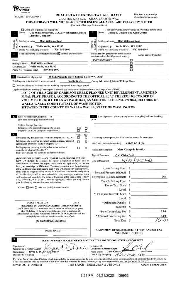
| 2 | 09/21/2020 | QCD | QUIT CLAIM DEED | GOD WINK PROPERTIES LLC | CONLEY GENE R & JAYNE E DIDARIO | | | | 139953 | 2020-09667 |
| 3 | 11/14/2019 | QCD | QUIT CLAIM DEED | DIDARIO JAYNE E | GOD WINK PROPERTIES LLC | | | $0.00 | 138078 | 2019-09394 |
| 4 | 02/17/2015 | QCD | QUIT CLAIM DEED | EDGECOMBE SUMMIT LLC | DIDARIO JAYNE E | | | $0.00 | 127463 | 2015-01551 |
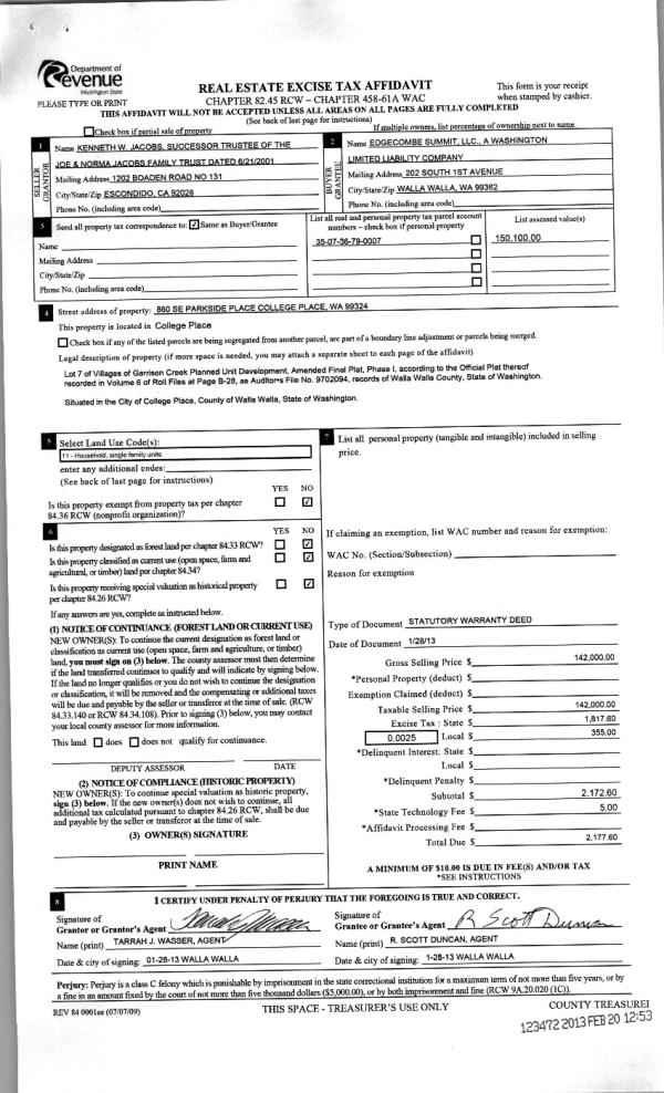
| 5 | 02/20/2013 | WARRANTY D | WARRANTY DEED | JACOBS, NORMA TRUSTEE | EDGECOMBE SUMMIT LLC | | | $142,000.00 | 123472 | 2013-01516 |
| 6 | 10/14/2003 | QCD | QUIT CLAIM DEED | JACOBS, NORMA | JACOBS, NORMA TRUSTEE | | | | 103242 | 2003-15794 |
| 7 | 03/26/2003 | WARRANTY D | WARRANTY DEED | WATSON, JASON D & LAURA | JACOBS, NORMA | | | $114,000.00 | 101654 | 2003-03992 |
| 8 | 10/08/1997 | WARRANTY D | WARRANTY DEED | | | | | $20,000.00 | 89092 | 2579-709740 |
Payout Agreement
| No payout information available.. |