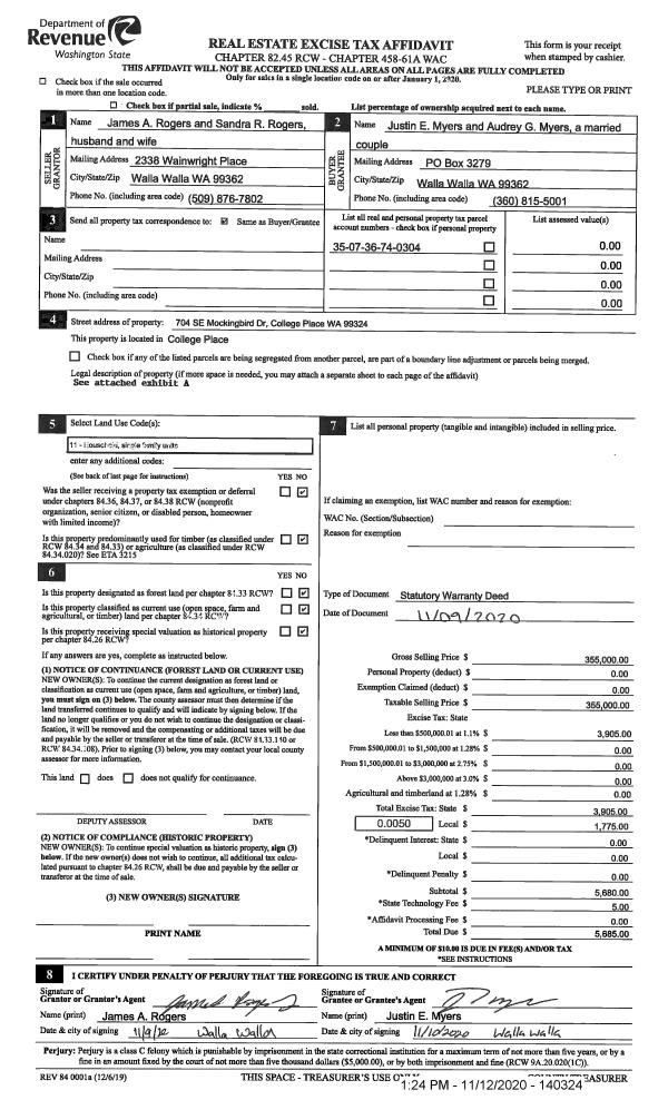
Property
Account |
| Property ID: | 28888 | Abbreviated Legal Description: | SHERBURNE ADDN LT 4 BLK 3 |
| Parcel Number: | 350736740304 | Agent Code: | |
| Type: | Real | | |
| Tax Area: | 75 - CP 250 | Land Use Code | 11 |
| Open Space: | N | DFL | N |
| Historic Property: | N | Remodel Property: | N |
| Multi-Family Redevelopment: | N | | |
| Township: | 7 | Section: | 36 |
| Range: | 35 |
Location |
| Address: | 704 SE MOCKINGBIRD DR WA 99324 | Mapsco: | |
| Neighborhood: | G SFR | Map ID: | |
| Neighborhood CD: | 114011 |
Owner |
| Name: | MYERS JUSTIN E & AUDREY G | Owner ID: | 68374 |
| Mailing Address: | 704 SE MOCKINGBIRD DR COLLEGE PLACE, WA 99324 | % Ownership: | 100.0000000000% |
| | | Exemptions: | |
Taxes and Assessment Details
Values
| (+) Improvement Homesite Value: | + | $406,790 | |
| (+) Improvement Non-Homesite Value: | + | $0 | |
| (+) Land Homesite Value: | + | $75,000 | |
| (+) Land Non-Homesite Value: | + | $0 | |
| (+) Curr Use (HS): | + | $0 | $0 |
| (+) Curr Use (NHS): | + | $0 | $0 |
| | | -------------------------- | |
| (=) Market Value: | = | $481,790 | |
| (–) Productivity Loss: | – | $0 | |
| | | -------------------------- | |
| (=) Subtotal: | = | $481,790 | |
| (+) Senior Appraised Value: | + | $0 | |
| (+) Non-Senior Appraised Value: | + | $481,790 | |
| | | -------------------------- | |
| (=) Total Appraised Value: | = | $481,790 | |
| (–) Senior Exemption Loss: | – | $0 | |
| (–) Exemption Loss: | – | $0 | |
| | | -------------------------- | |
| (=) Taxable Value: | = | $481,790 | |
Taxing Jurisdiction
| Owner: | MYERS JUSTIN E & AUDREY G | | |
| % Ownership: | 100.0000000000% | | |
| Total Value: | $481,790 | | |
| Tax Area: | 75 - CP 250 |
| CERFD | CURRENT EXPENSE REFUND 010 | 0.0000000000 | $481,790 | $481,790 | $0.00 | | |
| CURREXP | CURRENT EXPENSE 010 | 1.0175366760 | $481,790 | $481,790 | $490.24 | | |
| HUMNSERV | HUMAN SERVICES 119 | 0.0250000000 | $481,790 | $481,790 | $12.04 | | |
| SLDREL | SOLDIERS RELIEF 121 | 0.0155990005 | $481,790 | $481,790 | $7.52 | | |
| COLLPLBOND | C OF CP BOND 644 | 0.4374241808 | $481,790 | $481,790 | $210.75 | | |
| COLLPLGEN | CITY OF CP 632 | 1.4453819216 | $481,790 | $481,790 | $696.37 | | |
| EMERGSER | EMS 147 | 0.3792580840 | $481,790 | $481,790 | $182.72 | | |
| EMSRFD | EMS REFUND 147 | 0.0000000000 | $481,790 | $481,790 | $0.00 | | |
| RURALLIB | RURAL LIBRARY 623 | 0.3710609029 | $481,790 | $481,790 | $178.77 | | |
| PORTRFD | PORT REFUND 640 | 0.0000000000 | $481,790 | $481,790 | $0.00 | | |
| PORTWWGEN | PORT OF WW 640 | 0.2460186015 | $481,790 | $481,790 | $118.53 | | |
| SD250BOND | SD #250 BOND 773 | 1.4560608159 | $481,790 | $481,790 | $701.52 | | |
| SD250GEN | SD #250 GENERAL 770 | 2.3880724087 | $481,790 | $481,790 | $1,150.55 | | |
| ST2 | STATE SCHOOL PART 2 600 | 0.8131451643 | $481,790 | $481,790 | $391.77 | | |
| STATESCHL | STATE SCHOOL 600 | 1.5158548041 | $481,790 | $481,790 | $730.32 | | |
| STREFUND | STATE REFUND LEVY 603 | 0.0000000000 | $481,790 | $481,790 | $0.00 | | |
| | Total Tax Rate: | 10.1104125603 | | | | | |
| | | | | Taxes w/Current Exemptions: | $4,871.10 | | |
| | | | | Taxes w/o Exemptions: | $4,871.10 | | |
Improvement / Building
| Improvement #1: | RESIDENTIAL | State Code: | 11 | 2088.0 sqft | Value: | $406,790 |
| Exterior Wall: | VINYL | Heating/Cooling: | WARM & COOLED AIR | | Number of Bathrooms: | 2 | Number of Bedrooms: | 4 | | Plumbing: | 9 | Roof Covering: | COMP SHINGLE |
|
| | Type | Description | Class CD | Sub Class CD | Year Built | Area |
| | MA | Main Area | 2 | 35 | 1996 | 2088.0 |
| | SI1 | SITE IMPROVEMENT | 2 | 35 | 1996 | 2.5 |
| | UPFL | Upper Floor (included in main area) | 2 | 35 | 1996 | 1044.0 |
| | ATG | Attached Garage | 2 | 35 | 1996 | 480.0 |
| | RPS | PORCH W/STEPS,ROOF | 2 | 35 | 1996 | 216.0 |
| | WOD | Wood Deck | 2 | 35 | 1996 | 96.0 |
| | GFP | GAS FIREPLACE | 2 | 35 | 1996 | 1.0 |
Sketch
Property Image
Land
| 1 | RES 1 | Converted: Residential | 0.2034 | 8858.00 | 0.00 | 0.00 | 1.00 | $75,000 | $0 |
Roll Value History
| 2026 | N/A | N/A | N/A | N/A | N/A |
| 2025 | $345,770 | $130,000 | $0 | $475,770 | $475,770 |
| 2024 | $406,790 | $75,000 | $0 | $481,790 | $481,790 |
| 2023 | $406,790 | $75,000 | $0 | $481,790 | $481,790 |
| 2022 | $312,920 | $75,000 | $0 | $387,920 | $387,920 |
| 2021 | $272,100 | $75,000 | $0 | $347,100 | $347,100 |
| 2020 | $181,400 | $75,000 | $0 | $256,400 | $256,400 |
| 2019 | $191,400 | $65,000 | $0 | $256,400 | $256,400 |
| 2018 | $159,500 | $65,000 | $0 | $224,500 | $224,500 |
| 2017 | $159,500 | $65,000 | $0 | $224,500 | $224,500 |
| 2016 | $159,500 | $65,000 | $0 | $224,500 | $224,500 |
| 2015 | $145,000 | $65,000 | $0 | $210,000 | $63,640 |
| 2014 | $145,000 | $65,000 | $0 | $210,000 | $63,640 |
| 2013 | $145,000 | $65,000 | $0 | $210,000 | $63,640 |
| 2012 | $168,300 | $65,000 | $0 | $0 | $0 |
| 2011 | $168,300 | $65,000 | $0 | $0 | $0 |
| 2010 | $168,300 | $65,000 | $0 | $0 | $0 |
| 2009 | $180,600 | $65,000 | $0 | $0 | $0 |
| 2008 | $129,100 | $30,000 | $0 | $0 | $0 |
| 2007 | $129,100 | $30,000 | $0 | $0 | $0 |
Deed and Sales History
| 1 | 11/12/2020 | SWD | STATUTORY WARRANTY DEED | ROGERS JAMES A & SANDRA R | MYERS JUSTIN E & AUDREY G | | | $355,000.00 | 140324 | 2020-11926 |
| 2 | 03/08/2016 | SWD | STATUTORY WARRANTY DEED | COLIS HEIDI J | ROGERS JAMES A & SANDRA R | | | $235,000.00 | 129796 | 2016-01778 |
| 3 | 04/20/2010 | QCD | QUIT CLAIM DEED | COLIS, HEIDI J | COLIS, HEIDI J | | | | 118365 | 2010-03102 |
| 4 | 09/05/2002 | WARRANTY D | WARRANTY DEED | WEIDEMAN, JAMES | COLIS, HEIDI J | | | $159,000.00 | 100311 | 2002-09949 |
| 5 | 05/01/2001 | WARRANTY D | WARRANTY DEED | | | | | $158,000.00 | 97260 | 3140-105595 |
Payout Agreement
| No payout information available.. |