| 1 | 03/08/2022 | SWD | STATUTORY WARRANTY DEED | TOMPKINS TYLER R | YANCEY ROSS W | | | $360,000.00 | 143511 | 2022-01983 |
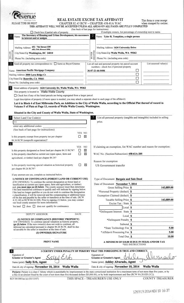
| 2 | 11/11/2014 | BARGAIN & | BARGAIN & SALE DEED | SECRETARY OF HOUSING & URBAN DEVELOPMENT | TOMPKINS TYLER R | | | $143,889.00 | 126919 | 2014-08197 |
| 3 | 06/04/2014 | SWD | STATUTORY WARRANTY DEED | WELLS FARGO BANK NA | SECRETARY OF HOUSING & URBAN DEVELOPMENT | | | $157,294.00 | 126015 | 2014-03820 |
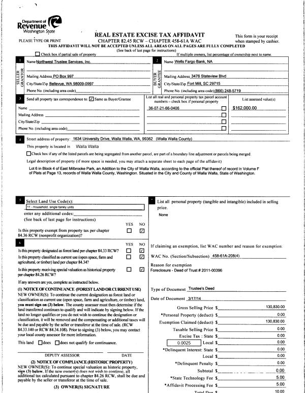
| 4 | 03/19/2014 | TRUSTEES D | TRUSTEE'S DEED | ROOKS JEFFREY R & LORENA L | WELLS FARGO BANK NA | | | $130,830.00 | 125588 | 2014-01869 |
| 5 | 01/13/2011 | WARRANTY D | WARRANTY DEED | FEDERAL NATIONAL MORTGAGE ASSO | ROOKS, JEFFREY R & LORENA L | | | $164,900.00 | 119598 | 2011-00395 |
| 6 | 09/07/2010 | WARRANTY D | WARRANTY DEED | QUALITY LOAN SERVICE CORPORATI | FEDERAL NATIONAL MORTGAGE ASSO | | | $241,399.00 | 118972 | 2010-07015 |
| 7 | 03/13/2007 | WARRANTY D | WARRANTY DEED | BRAY, RAYMOND L & NANCY R | BRILEY, GABRIEL R & AMY M | | | $211,000.00 | 112388 | 2007-02800 |
| 8 | 02/02/2006 | WARRANTY D | WARRANTY DEED | PETERSON, STEPHANIE DANIELLE | BRAY, RAYMOND L & NANCY R | | | $153,000.00 | 109602 | 2006-01324 |
| 9 | 11/04/2005 | QCD | QUIT CLAIM DEED | NELSON, MICHAEL | PETERSON, STEPHANIE DANIELLE | | | | 108949 | 2005-13938 |
| 10 | 09/16/2005 | WARRANTY D | WARRANTY DEED | NELSON, MICHAEL | PETERSON, STEPHANIE DANIELLE | | | | 0 | CC #05-3-00151-2 |
| 11 | 11/03/2003 | WARRANTY D | WARRANTY DEED | SMITH, RONALD & TONYA | NELSON, MICHAEL | | | $111,800.00 | 103438 | 2003-17057 |
| 12 | 12/28/2000 | WARRANTY D | WARRANTY DEED | | | | | $89,900.00 | 96379 | 3060-012196 |