Property
Account |
| Property ID: | 28867 | Abbreviated Legal Description: | EAST WALLA WALLA TAX 1 BLK 3; TAX 2 LOT 2 BLK 3 PLUS PTN VAC ALLEY |
| Parcel Number: | 360727530345 | Agent Code: | |
| Type: | Real | | |
| Tax Area: | 105 - 140-F-4 | Land Use Code | 11 |
| Open Space: | N | DFL | N |
| Historic Property: | N | Remodel Property: | N |
| Multi-Family Redevelopment: | N | | |
| Township: | 7 | Section: | 27 |
| Range: | 36 |
Location |
| Address: | 1955 CARL ST WA 99362 | Mapsco: | |
| Neighborhood: | A Inferior Res | Map ID: | |
| Neighborhood CD: | 413111 |
Owner |
| Name: | CHEN JERSEN & MEILI | Owner ID: | 69707 |
| Mailing Address: | 926 29TH AVE S SEATTLE, WA 98144 | % Ownership: | 100.0000000000% |
| | | Exemptions: | |
Taxes and Assessment Details
Values
| (+) Improvement Homesite Value: | + | N/A | |
| (+) Improvement Non-Homesite Value: | + | N/A | |
| (+) Land Homesite Value: | + | N/A | |
| (+) Land Non-Homesite Value: | + | N/A | Ag / Timber Use Value |
| (+) Curr Use (HS): | + | N/A | N/A |
| (+) Curr Use (NHS): | + | N/A | N/A |
| | | -------------------------- | |
| (=) Market Value: | = | N/A | |
| (–) Productivity Loss: | – | N/A | |
| | | -------------------------- | |
| (=) Subtotal: | = | N/A | |
| (+) Senior Appraised Value: | + | N/A | |
| (+) Non-Senior Appraised Value: | + | N/A | |
| | | -------------------------- | |
| (=) Total Appraised Value: | = | N/A | |
| (–) Senior Exemption Loss: | – | N/A | |
| (–) Exemption Loss: | – | N/A | |
| | | -------------------------- | |
| (=) Taxable Value: | = | N/A | |
Taxing Jurisdiction
| Owner: | CHEN JERSEN & MEILI | | |
| % Ownership: | 100.0000000000% | | |
| Total Value: | N/A | | |
| Tax Area: | 105 - 140-F-4 |
| CERFD | CURRENT EXPENSE REFUND 010 | N/A | N/A | N/A | N/A | | |
| CURREXP | CURRENT EXPENSE 010 | N/A | N/A | N/A | N/A | | |
| HUMNSERV | HUMAN SERVICES 119 | N/A | N/A | N/A | N/A | | |
| SLDREL | SOLDIERS RELIEF 121 | N/A | N/A | N/A | N/A | | |
| EMERGSER | EMS 147 | N/A | N/A | N/A | N/A | | |
| EMSRFD | EMS REFUND 147 | N/A | N/A | N/A | N/A | | |
| FD4EXP | FD #4 EXPENSE 686 | N/A | N/A | N/A | N/A | | |
| RLBRFD | RURAL LIBRARY REFUND 623 | N/A | N/A | N/A | N/A | | |
| RURALLIB | RURAL LIBRARY 623 | N/A | N/A | N/A | N/A | | |
| PORTRFD | PORT REFUND 640 | N/A | N/A | N/A | N/A | | |
| PORTWWGEN | PORT OF WW 640 | N/A | N/A | N/A | N/A | | |
| SD140BOND | SD #140 BOND 764 | N/A | N/A | N/A | N/A | | |
| SD140GEN | SD #140 GENERAL 760 | N/A | N/A | N/A | N/A | | |
| ST2 | STATE SCHOOL PART 2 600 | N/A | N/A | N/A | N/A | | |
| STATESCHL | STATE SCHOOL 600 | N/A | N/A | N/A | N/A | | |
| STREFUND | STATE REFUND LEVY 603 | N/A | N/A | N/A | N/A | | |
| COROAD | COUNTY ROAD 115 | N/A | N/A | N/A | N/A | | |
| CRPRD | COUNTY ROAD REFUND 115 | N/A | N/A | N/A | N/A | | |
| | Total Tax Rate: | N/A | | | | | |
| | | | | Taxes w/Current Exemptions: | N/A | | |
| | | | | Taxes w/o Exemptions: | N/A | | |
Improvement / Building
| Improvement #1: | RESIDENTIAL | State Code: | 11 | 1134.0 sqft | Value: | N/A |
| Exterior Wall: | SIDING | Heating/Cooling: | HEAT PUMP | | Number of Bathrooms: | 1 | Number of Bedrooms: | 2 | | Plumbing: | 6 | Roof Covering: | COMP ROLL |
|
| | Type | Description | Class CD | Sub Class CD | Year Built | Area |
| | MA | Main Area | 1 | 30 | 1955 | 1134.0 |
| | CPC | COVERED CARPORT/PATIO | 1 | 30 | 0 | 494.0 |
| | SI1 | SITE IMPROVEMENT | 1 | 30 | 0 | 2.0 |
| | BASE | BASEMENT | 1 | 30 | 1955 | 1134.0 |
| | BPF | BASEMENT -PARTITIONED FINISH | 1 | 30 | 1955 | 550.0 |
| | S1F | Single One Story Fireplace | 1 | 30 | 1955 | 1.0 |
Sketch
Property Image
Land
| 1 | RES 1 | Converted: Residential | 0.2992 | 13032.00 | 0.00 | 0.00 | 1.00 | N/A | N/A |
Roll Value History
| 2026 | N/A | N/A | N/A | N/A | N/A |
| 2025 | $182,450 | $81,840 | $0 | $264,290 | $264,290 |
| 2024 | $182,450 | $81,840 | $0 | $264,290 | $264,290 |
| 2023 | $173,770 | $81,840 | $0 | $255,610 | $255,610 |
| 2022 | $173,770 | $54,870 | $0 | $228,640 | $228,640 |
| 2021 | $173,770 | $54,870 | $0 | $228,640 | $228,640 |
| 2020 | $124,120 | $54,870 | $0 | $178,990 | $178,990 |
| 2019 | $124,120 | $54,870 | $0 | $178,990 | $178,990 |
| 2018 | $114,920 | $54,870 | $0 | $169,790 | $169,790 |
| 2017 | $109,450 | $54,870 | $0 | $164,320 | $164,320 |
| 2016 | $112,820 | $49,700 | $0 | $162,520 | $162,520 |
| 2015 | $112,820 | $49,700 | $0 | $162,520 | $162,520 |
| 2014 | $98,100 | $49,700 | $0 | $147,800 | $147,800 |
| 2013 | $98,100 | $49,700 | $0 | $147,800 | $147,800 |
| 2012 | $98,100 | $49,700 | $0 | $0 | $0 |
| 2011 | $100,000 | $49,700 | $0 | $0 | $0 |
| 2010 | $100,000 | $49,700 | $0 | $0 | $0 |
| 2009 | $116,600 | $49,700 | $0 | $0 | $0 |
| 2008 | $116,600 | $49,700 | $0 | $0 | $0 |
| 2007 | $79,900 | $27,200 | $0 | $0 | $0 |
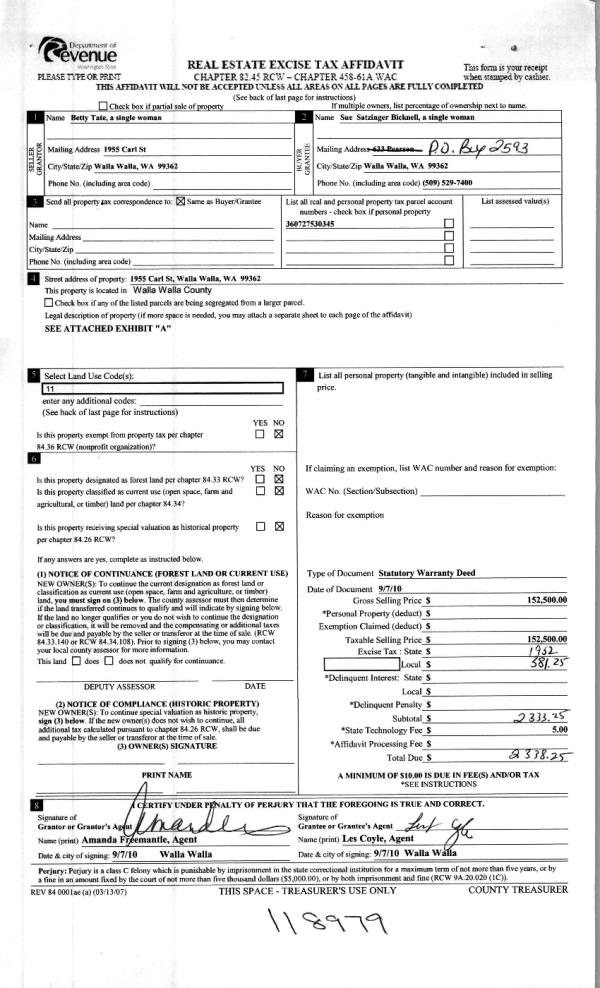
Deed and Sales History
| 1 | 06/29/2021 | SWD | STATUTORY WARRANTY DEED | BICKNELL SUE SATZINGER | CHEN JERSEN & MEILI | | 2-PARCELS | $417,200.00 | 141919 | 2021-07902 |
|   | |
| 2 | 09/07/2010 | WARRANTY D | WARRANTY DEED | TATE, BETTY J | BICKNELL, SUE SATZINGER | | | $0.00 | 118980 | -118980 |
| 3 | 09/07/2010 | WARRANTY D | WARRANTY DEED | TATE, BETTY J | BICKNELL, SUE SATZINGER | | | $152,500.00 | 118979 | 2010-07045 |
| 4 | 08/31/2009 | QCD | QUIT CLAIM DEED | TATE, THOMAS RICHARD JR ET AL | TATE, BETTY J | | | | 117262 | 2009-08805 |
| 5 | 03/09/2005 | QCD | QUIT CLAIM DEED | TATE, THOMAS R JR, DIANA COOK, | TATE, BETTY J (LIFE ESTATE) | | | | 0 | 2005-02695 |
| 6 | 11/30/2004 | QCD | QUIT CLAIM DEED | TATE, BETTY J | TATE, THOMAS RICHARD JR | | | | 106305 | 2004-13727 |
| 7 | 01/01/1965 | WARRANTY D | WARRANTY DEED | | | | | $16,500.00 | 0 | 3120-463465 |
Payout Agreement
| No payout information available.. |