Property
Account |
| Property ID: | 28862 | Abbreviated Legal Description: | 16-6-34 REVISED LOT 3 OF SHORT PLAT (PTN IN NELY PT LOT 4 PLUS PTNFROM LOT 4 OF SHORT PLAT) |
| Parcel Number: | 340616110007 | Agent Code: | |
| Type: | Real | | |
| Tax Area: | 125 - 140-6-TM | Land Use Code | 11 |
| Open Space: | N | DFL | N |
| Historic Property: | N | Remodel Property: | N |
| Multi-Family Redevelopment: | N | | |
| Township: | 6 | Section: | 16 |
| Range: | 34 |
Location |
| Address: | 3351 MCDONALD RD WA 99362 | Mapsco: | |
| Neighborhood: | G TOUCHET/LOWDEN SFR RURAL | Map ID: | |
| Neighborhood CD: | 214613 |
Owner |
| Name: | BLANKENSHIP FAMILY TRUST | Owner ID: | 73998 |
| Mailing Address: | C/O THOMAS P & KAILEE R BLANKENSHIP 3351 MCDONALD RD LOWDEN, WA 99360 | % Ownership: | 100.0000000000% |
| | | Exemptions: | |
Taxes and Assessment Details
Property Tax Information as of
02/21/2026
Click on "Statement Details" to expand or collapse a tax statement.
* Please enter a valid date ** Please enter a valid date *
Statement Details |
| | TOTAL: | $0.00 | $0.00 | $0.00 | $0.00 | $0.00 | $0.00 |
|
| | $0.00 | $0.00 | $0.00 | $0.00 | $0.00 | $0.00 |
Values
| (+) Improvement Homesite Value: | + | $0 | |
| (+) Improvement Non-Homesite Value: | + | $760,410 | |
| (+) Land Homesite Value: | + | $0 | |
| (+) Land Non-Homesite Value: | + | $95,000 | |
| (+) Curr Use (HS): | + | $0 | $0 |
| (+) Curr Use (NHS): | + | $0 | $0 |
| | | -------------------------- | |
| (=) Market Value: | = | $855,410 | |
| (–) Productivity Loss: | – | $0 | |
| | | -------------------------- | |
| (=) Subtotal: | = | $855,410 | |
| (+) Senior Appraised Value: | + | $0 | |
| (+) Non-Senior Appraised Value: | + | $855,410 | |
| | | -------------------------- | |
| (=) Total Appraised Value: | = | $855,410 | |
| (–) Senior Exemption Loss: | – | $0 | |
| (–) Exemption Loss: | – | $0 | |
| | | -------------------------- | |
| (=) Taxable Value: | = | $855,410 | |
Taxing Jurisdiction
| Owner: | BLANKENSHIP FAMILY TRUST | | |
| % Ownership: | 100.0000000000% | | |
| Total Value: | $855,410 | | |
| Tax Area: | 125 - 140-6-TM |
| CERFD | CURRENT EXPENSE REFUND 010 | 0.0000000000 | $855,410 | $855,410 | $0.00 | | |
| CURREXP | CURRENT EXPENSE 010 | 1.0175366760 | $855,410 | $855,410 | $870.41 | | |
| HUMNSERV | HUMAN SERVICES 119 | 0.0250000000 | $855,410 | $855,410 | $21.39 | | |
| SLDREL | SOLDIERS RELIEF 121 | 0.0155990005 | $855,410 | $855,410 | $13.34 | | |
| EMERGSER | EMS 147 | 0.3792580840 | $855,410 | $855,410 | $324.42 | | |
| EMSRFD | EMS REFUND 147 | 0.0000000000 | $855,410 | $855,410 | $0.00 | | |
| FD6EXP | FD #6 EXPENSE 693 | 0.6692985746 | $855,410 | $855,410 | $572.52 | | |
| RLBRFD | RURAL LIBRARY REFUND 623 | 0.0000000000 | $855,410 | $855,410 | $0.00 | | |
| RURALLIB | RURAL LIBRARY 623 | 0.3710609029 | $855,410 | $855,410 | $317.41 | | |
| PORTRFD | PORT REFUND 640 | 0.0000000000 | $855,410 | $855,410 | $0.00 | | |
| PORTWWGEN | PORT OF WW 640 | 0.2460186015 | $855,410 | $855,410 | $210.45 | | |
| SD140BOND | SD #140 BOND 764 | 0.8342371393 | $855,410 | $855,410 | $713.61 | | |
| SD140GEN | SD #140 GENERAL 760 | 2.0646500647 | $855,410 | $855,410 | $1,766.12 | | |
| ST2 | STATE SCHOOL PART 2 600 | 0.8131451643 | $855,410 | $855,410 | $695.57 | | |
| STATESCHL | STATE SCHOOL 600 | 1.5158548041 | $855,410 | $855,410 | $1,296.68 | | |
| STREFUND | STATE REFUND LEVY 603 | 0.0000000000 | $855,410 | $855,410 | $0.00 | | |
| COROAD | COUNTY ROAD 115 | 1.6549953990 | $855,410 | $855,410 | $1,415.70 | | |
| CRPRD | COUNTY ROAD REFUND 115 | 0.0000000000 | $855,410 | $855,410 | $0.00 | | |
| | Total Tax Rate: | 9.6066544109 | | | | | |
| | | | | Taxes w/Current Exemptions: | $8,217.62 | | |
| | | | | Taxes w/o Exemptions: | $8,217.62 | | |
Improvement / Building
| Improvement #1: | RESIDENTIAL | State Code: | 11 | 3041.0 sqft | Value: | $760,410 |
| Exterior Wall: | HARDBOARD | Heating/Cooling: | HEAT PUMP | | Number of Bathrooms: | 3.5 | Number of Bedrooms: | 3 | | Plumbing: | 17 | Roof Covering: | COMP SHINGLE |
|
| | Type | Description | Class CD | Sub Class CD | Year Built | Area |
| | MA | Main Area | 4 | 40 | 2012 | 3041.0 |
| | RPC | OPEN PORCH W/ROOF , CEILED | 4 | 40 | 2012 | 216.0 |
| | SI1 | SITE IMPROVEMENT | 4 | 40 | 2012 | 4.0 |
| | BLW | WOOD BALCONIES | 4 | 40 | 2012 | 90.0 |
| | TOOL | TOOL SHED | 4 | 40 | 2012 | 48.0 |
| | APP | APPLIANCE ALLOWANCE | 4 | 40 | 2012 | 1.0 |
| | ATG | Attached Garage | 4 | 40 | 2012 | 832.0 |
| | POL3 | POLE BUILDING-CON,ELEC,INSU | 4 | 30 | 2015 | 720.0 |
| | UPFL | Upper Floor (included in main area) | 4 | 40 | 2012 | 926.0 |
| | SMP | SWIMMING POOL | 1 | 40 | 2017 | 1.0 |
Sketch
Property Image
Land
| 1 | RES 1 | Converted: Residential | 2.0000 | 0.00 | 0.00 | 0.00 | 1.00 | $95,000 | $0 |
Roll Value History
| 2026 | N/A | N/A | N/A | N/A | N/A |
| 2025 | $760,410 | $95,000 | $0 | $855,410 | $855,410 |
| 2024 | $760,410 | $95,000 | $0 | $855,410 | $855,410 |
| 2023 | $760,410 | $95,000 | $0 | $855,410 | $855,410 |
| 2022 | $563,270 | $95,000 | $0 | $658,270 | $658,270 |
| 2021 | $375,510 | $95,000 | $0 | $470,510 | $470,510 |
| 2020 | $378,430 | $50,000 | $0 | $428,430 | $428,430 |
| 2019 | $378,430 | $50,000 | $0 | $428,430 | $428,430 |
| 2018 | $378,430 | $50,000 | $0 | $428,430 | $428,430 |
| 2017 | $378,430 | $50,000 | $0 | $428,430 | $428,430 |
| 2016 | $358,260 | $50,000 | $0 | $408,260 | $408,260 |
| 2015 | $341,200 | $50,000 | $0 | $391,200 | $391,200 |
| 2014 | $341,200 | $50,000 | $0 | $391,200 | $391,200 |
| 2013 | $341,200 | $50,000 | $0 | $391,200 | $391,200 |
| 2012 | $0 | $77,000 | $0 | $0 | $0 |
| 2011 | $0 | $77,000 | $0 | $0 | $0 |
| 2010 | $0 | $77,000 | $0 | $0 | $0 |
| 2009 | $0 | $77,000 | $0 | $0 | $0 |
| 2008 | $0 | $76,400 | $0 | $0 | $0 |
| 2007 | $0 | $1,200 | $0 | $0 | $0 |
Deed and Sales History
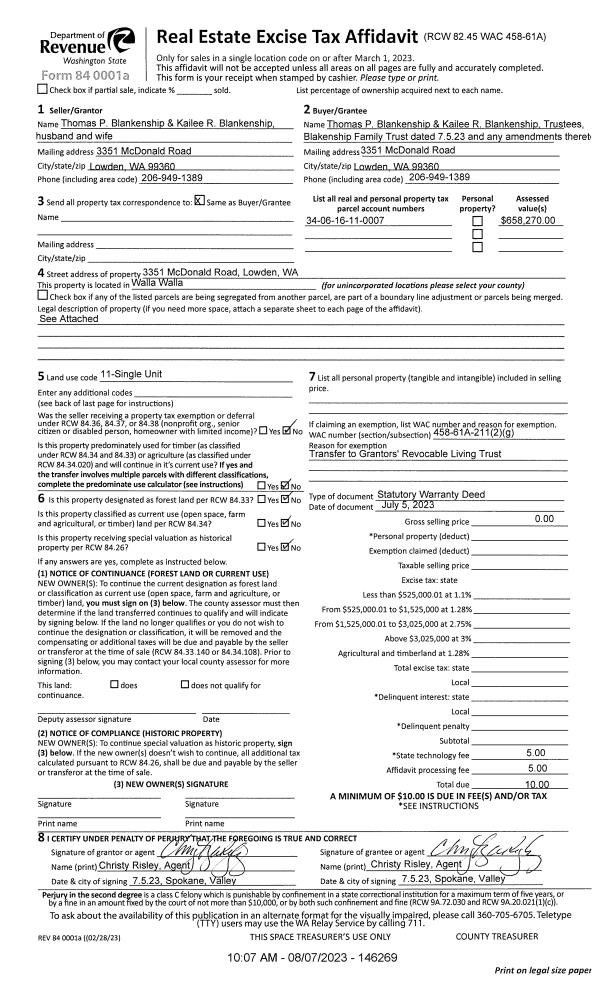
| 1 | 08/07/2023 | WARRANTY D | WARRANTY DEED | BLANKENSHIP THOMAS P & KAILEE R | BLANKENSHIP FAMILY TRUST | | | | 146269 | 2023-04489 |
| 2 | 09/06/2022 | SWD | STATUTORY WARRANTY DEED | WILTON DUANE M & DORIS L | BLANKENSHIP THOMAS P & KAILEE R | | | $949,000.00 | 144645 | 2022-07469 |
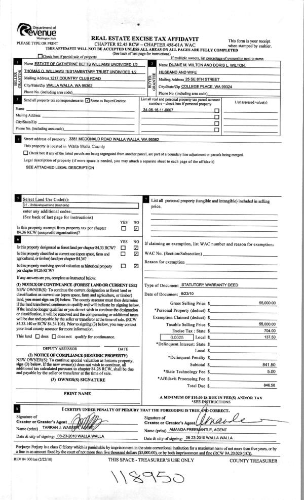
| 3 | 08/31/2010 | WARRANTY D | WARRANTY DEED | WILLIAMS, CATHERINE ESTATE OF | WILTON, DUANE M & DORIS L | | | $55,000.00 | 118950 | 2010-06820 |
Payout Agreement
| No payout information available.. |