Property
Account |
| Property ID: | 28837 | Abbreviated Legal Description: | EAST WALLA WALLA 1ST LOTS 5 & 6 AND E 2' OF N 20' OF LOT 7 BLK 2 |
| Parcel Number: | 360727540205 | Agent Code: | |
| Type: | Real | | |
| Tax Area: | 1 - OL-140-F | Land Use Code | 11 |
| Open Space: | N | DFL | N |
| Historic Property: | N | Remodel Property: | N |
| Multi-Family Redevelopment: | N | | |
| Township: | 7 | Section: | 27 |
| Range: | 36 |
Location |
| Address: | 1835 AMELIA ST WA 99362 | Mapsco: | |
| Neighborhood: | A Inferior Res | Map ID: | |
| Neighborhood CD: | 413111 |
Owner |
| Name: | GRAHAM MARGARET | Owner ID: | 64734 |
| Mailing Address: | 1835 AMELIA ST WALLA WALLA, WA 99362 | % Ownership: | 100.0000000000% |
| | | Exemptions: | |
Taxes and Assessment Details
Values
| (+) Improvement Homesite Value: | + | $0 | |
| (+) Improvement Non-Homesite Value: | + | $326,900 | |
| (+) Land Homesite Value: | + | $0 | |
| (+) Land Non-Homesite Value: | + | $81,240 | |
| (+) Curr Use (HS): | + | $0 | $0 |
| (+) Curr Use (NHS): | + | $0 | $0 |
| | | -------------------------- | |
| (=) Market Value: | = | $408,140 | |
| (–) Productivity Loss: | – | $0 | |
| | | -------------------------- | |
| (=) Subtotal: | = | $408,140 | |
| (+) Senior Appraised Value: | + | $0 | |
| (+) Non-Senior Appraised Value: | + | $408,140 | |
| | | -------------------------- | |
| (=) Total Appraised Value: | = | $408,140 | |
| (–) Senior Exemption Loss: | – | $0 | |
| (–) Exemption Loss: | – | $0 | |
| | | -------------------------- | |
| (=) Taxable Value: | = | $408,140 | |
Taxing Jurisdiction
| Owner: | GRAHAM MARGARET | | |
| % Ownership: | 100.0000000000% | | |
| Total Value: | $408,140 | | |
| Tax Area: | 1 - OL-140-F |
| CERFD | CURRENT EXPENSE REFUND 010 | 0.0000000000 | $408,140 | $408,140 | $0.00 | | |
| CURREXP | CURRENT EXPENSE 010 | 1.0175366760 | $408,140 | $408,140 | $415.30 | | |
| HUMNSERV | HUMAN SERVICES 119 | 0.0250000000 | $408,140 | $408,140 | $10.20 | | |
| SLDREL | SOLDIERS RELIEF 121 | 0.0155990005 | $408,140 | $408,140 | $6.37 | | |
| EMERGSER | EMS 147 | 0.3792580840 | $408,140 | $408,140 | $154.79 | | |
| EMSRFD | EMS REFUND 147 | 0.0000000000 | $408,140 | $408,140 | $0.00 | | |
| PORTRFD | PORT REFUND 640 | 0.0000000000 | $408,140 | $408,140 | $0.00 | | |
| PORTWWGEN | PORT OF WW 640 | 0.2460186015 | $408,140 | $408,140 | $100.41 | | |
| SD140BOND | SD #140 BOND 764 | 0.8342371393 | $408,140 | $408,140 | $340.49 | | |
| SD140GEN | SD #140 GENERAL 760 | 2.0646500647 | $408,140 | $408,140 | $842.67 | | |
| ST2 | STATE SCHOOL PART 2 600 | 0.8131451643 | $408,140 | $408,140 | $331.88 | | |
| STATESCHL | STATE SCHOOL 600 | 1.5158548041 | $408,140 | $408,140 | $618.68 | | |
| STREFUND | STATE REFUND LEVY 603 | 0.0000000000 | $408,140 | $408,140 | $0.00 | | |
| CWWBOND | C OF WW BOND 643 | 0.2760494372 | $408,140 | $408,140 | $112.67 | | |
| CWWGEN | CITY OF WW 631 | 1.6100204973 | $408,140 | $408,140 | $657.11 | | |
| CWWRFD | CITY OF WALLA WALLA REFUND 631 | 0.0000000000 | $408,140 | $408,140 | $0.00 | | |
| | Total Tax Rate: | 8.7973694689 | | | | | |
| | | | | Taxes w/Current Exemptions: | $3,590.57 | | |
| | | | | Taxes w/o Exemptions: | $3,590.57 | | |
Improvement / Building
| Improvement #1: | RESIDENTIAL | State Code: | 11 | 1380.0 sqft | Value: | $326,900 |
| Exterior Wall: | METAL/STEEL | Heating/Cooling: | WARM & COOLED AIR | | Number of Bathrooms: | 2 | Number of Bedrooms: | 3 | | Plumbing: | 9 | Roof Covering: | COMP SHINGLE |
|
| | Type | Description | Class CD | Sub Class CD | Year Built | Area |
| | MA | Main Area | 1 | 30 | 1950 | 1380.0 |
| | CPC | COVERED CARPORT/PATIO | 1 | 30 | 0 | 108.0 |
| | SI1 | SITE IMPROVEMENT | 1 | 30 | 0 | 1.5 |
| | OPS | OPEN PORCH W/STEPS | 1 | 30 | 1950 | 24.0 |
| | BASE | BASEMENT | 1 | 30 | 1950 | 1224.0 |
| | BPF | BASEMENT -PARTITIONED FINISH | 1 | 30 | 0 | 1044.0 |
| | ATG | Attached Garage | 1 | 30 | 0 | 288.0 |
| | GFP | GAS FIREPLACE | 1 | 30 | 0 | 1.0 |
| | SOLR | SOLAR POWER PANELS | 1 | 30 | 1950 | 17.0 |
Sketch
Property Image
Land
| 1 | RES 1 | Converted: Residential | 0.2755 | 12000.00 | 0.00 | 0.00 | 1.00 | $81,240 | $0 |
Roll Value History
| 2026 | N/A | N/A | N/A | N/A | N/A |
| 2025 | $343,250 | $81,240 | $0 | $424,490 | $424,490 |
| 2024 | $343,250 | $81,240 | $0 | $424,490 | $424,490 |
| 2023 | $326,900 | $81,240 | $0 | $408,140 | $408,140 |
| 2022 | $315,130 | $54,120 | $0 | $369,250 | $369,250 |
| 2021 | $217,330 | $54,120 | $0 | $271,450 | $271,450 |
| 2020 | $167,180 | $54,120 | $0 | $221,300 | $221,300 |
| 2019 | $167,180 | $54,120 | $0 | $221,300 | $221,300 |
| 2018 | $159,220 | $54,120 | $0 | $213,340 | $213,340 |
| 2017 | $138,450 | $54,120 | $0 | $192,570 | $192,570 |
| 2016 | $143,770 | $48,800 | $0 | $192,570 | $192,570 |
| 2015 | $143,770 | $48,800 | $0 | $192,570 | $192,570 |
| 2014 | $130,700 | $48,800 | $0 | $179,500 | $179,500 |
| 2013 | $130,700 | $48,800 | $0 | $179,500 | $179,500 |
| 2012 | $130,700 | $48,800 | $0 | $0 | $0 |
| 2011 | $117,900 | $48,800 | $0 | $0 | $0 |
| 2010 | $117,900 | $48,800 | $0 | $0 | $0 |
| 2009 | $136,400 | $48,800 | $0 | $0 | $0 |
| 2008 | $136,400 | $48,800 | $0 | $0 | $0 |
| 2007 | $101,300 | $26,300 | $0 | $0 | $0 |
Deed and Sales History
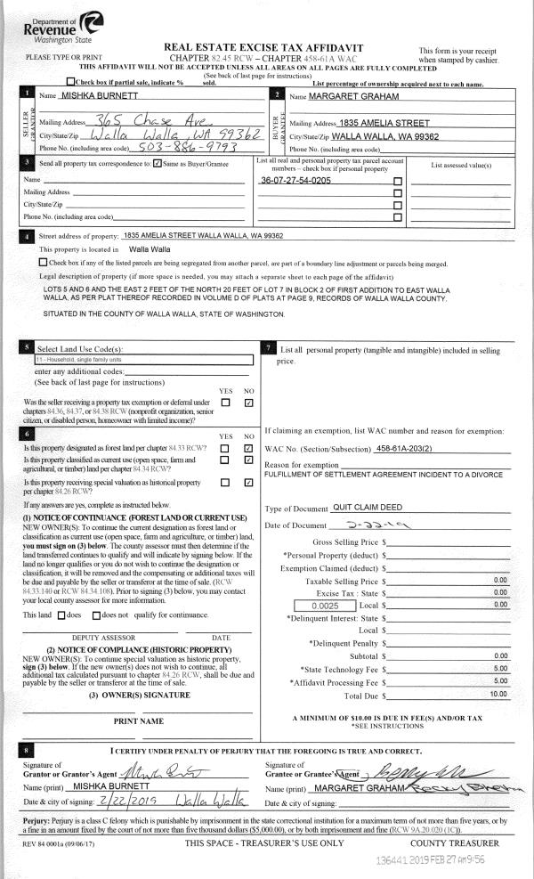
| 1 | 02/22/2019 | QCD | QUIT CLAIM DEED | BURNETT MISHKA | GRAHAM MARGARET | | | $0.00 | 136441 | 2019-01262 |
| 2 | 08/25/2014 | SWD | STATUTORY WARRANTY DEED | DAVIS KEVIN S | BURNETT MISHKA | | | $194,900.00 | 126516 | 2014-06162 |
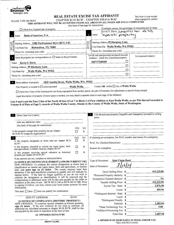
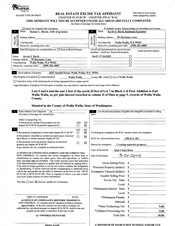
| 3 | 03/21/2014 | QCD | QUIT CLAIM DEED | | DAVIS KEVIN S | | | | 125599 | 2014-01928 |
| 4 | 03/21/2014 | QCD | QUIT CLAIM DEED | BANK OF AMERICA | DAVIS KEVIN S | | | $162,225.00 | 125600 | 2014-01929 |
| 5 | 01/10/2014 | TRUSTEES D | TRUSTEE'S DEED | FLIPPO CHRISTOPHER R | BANK OF AMERICA | | | $161,980.00 | 125251 | 2014-00214 |
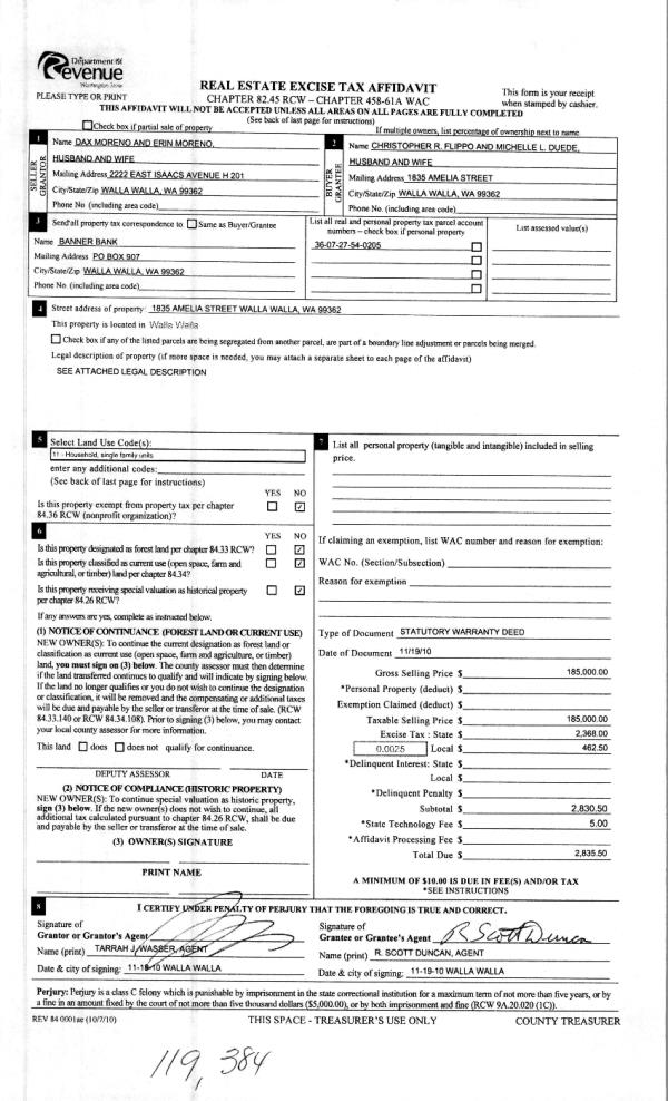
| 6 | 11/29/2010 | WARRANTY D | WARRANTY DEED | MORENO, DAX J & ERIN M | FLIPPO, CHRISTOPHER R | | | $185,000.00 | 119384 | 2010-09790 |
| 7 | 11/12/2004 | WARRANTY D | WARRANTY DEED | BJERKE, THEODORE S | MORENO, DAX & ERIN | | | $156,000.00 | 106175 | 2004-13030 |
| 8 | 01/01/1951 | WARRANTY D | WARRANTY DEED | | | | | $0.00 | 0 | 2580-350650 |
Payout Agreement
| No payout information available.. |