Property
Account |
| Property ID: | 28835 | Abbreviated Legal Description: | EDAIR VISTAS LOT 29 BLK 4 |
| Parcel Number: | 360715500429 | Agent Code: | |
| Type: | Real | | |
| Tax Area: | 5 - OL-140 | Land Use Code | 11 |
| Open Space: | N | DFL | N |
| Historic Property: | N | Remodel Property: | N |
| Multi-Family Redevelopment: | N | | |
| Township: | 7 | Section: | 15 |
| Range: | 36 |
Location |
| Address: | 928 FRAZIER DR WA 99362 | Mapsco: | |
| Neighborhood: | A-SFR | Map ID: | |
| Neighborhood CD: | 313011 |
Owner |
| Name: | LECLAIR TRENT WILLIAM & DARBY | Owner ID: | 72521 |
| Mailing Address: | 928 FRAZIER DR WALLA WALLA, WA 99362 | % Ownership: | 100.0000000000% |
| | | Exemptions: | |
Taxes and Assessment Details
Values
| (+) Improvement Homesite Value: | + | $0 | |
| (+) Improvement Non-Homesite Value: | + | $230,500 | |
| (+) Land Homesite Value: | + | $0 | |
| (+) Land Non-Homesite Value: | + | $90,000 | |
| (+) Curr Use (HS): | + | $0 | $0 |
| (+) Curr Use (NHS): | + | $0 | $0 |
| | | -------------------------- | |
| (=) Market Value: | = | $320,500 | |
| (–) Productivity Loss: | – | $0 | |
| | | -------------------------- | |
| (=) Subtotal: | = | $320,500 | |
| (+) Senior Appraised Value: | + | $0 | |
| (+) Non-Senior Appraised Value: | + | $320,500 | |
| | | -------------------------- | |
| (=) Total Appraised Value: | = | $320,500 | |
| (–) Senior Exemption Loss: | – | $0 | |
| (–) Exemption Loss: | – | $0 | |
| | | -------------------------- | |
| (=) Taxable Value: | = | $320,500 | |
Taxing Jurisdiction
| Owner: | LECLAIR TRENT WILLIAM & DARBY | | |
| % Ownership: | 100.0000000000% | | |
| Total Value: | $320,500 | | |
| Tax Area: | 5 - OL-140 |
| CERFD | CURRENT EXPENSE REFUND 010 | 0.0000000000 | $320,500 | $320,500 | $0.00 | | |
| CURREXP | CURRENT EXPENSE 010 | 1.0175366760 | $320,500 | $320,500 | $326.12 | | |
| HUMNSERV | HUMAN SERVICES 119 | 0.0250000000 | $320,500 | $320,500 | $8.01 | | |
| SLDREL | SOLDIERS RELIEF 121 | 0.0155990005 | $320,500 | $320,500 | $5.00 | | |
| EMERGSER | EMS 147 | 0.3792580840 | $320,500 | $320,500 | $121.55 | | |
| EMSRFD | EMS REFUND 147 | 0.0000000000 | $320,500 | $320,500 | $0.00 | | |
| PORTRFD | PORT REFUND 640 | 0.0000000000 | $320,500 | $320,500 | $0.00 | | |
| PORTWWGEN | PORT OF WW 640 | 0.2460186015 | $320,500 | $320,500 | $78.85 | | |
| SD140BOND | SD #140 BOND 764 | 0.8342371393 | $320,500 | $320,500 | $267.37 | | |
| SD140GEN | SD #140 GENERAL 760 | 2.0646500647 | $320,500 | $320,500 | $661.72 | | |
| ST2 | STATE SCHOOL PART 2 600 | 0.8131451643 | $320,500 | $320,500 | $260.61 | | |
| STATESCHL | STATE SCHOOL 600 | 1.5158548041 | $320,500 | $320,500 | $485.83 | | |
| STREFUND | STATE REFUND LEVY 603 | 0.0000000000 | $320,500 | $320,500 | $0.00 | | |
| CWWBOND | C OF WW BOND 643 | 0.2760494372 | $320,500 | $320,500 | $88.47 | | |
| CWWGEN | CITY OF WW 631 | 1.6100204973 | $320,500 | $320,500 | $516.01 | | |
| CWWRFD | CITY OF WALLA WALLA REFUND 631 | 0.0000000000 | $320,500 | $320,500 | $0.00 | | |
| | Total Tax Rate: | 8.7973694689 | | | | | |
| | | | | Taxes w/Current Exemptions: | $2,819.54 | | |
| | | | | Taxes w/o Exemptions: | $2,819.54 | | |
Improvement / Building
| Improvement #1: | RESIDENTIAL | State Code: | 11 | 962.0 sqft | Value: | $230,500 |
| Exterior Wall: | SIDING | Heating/Cooling: | WARM & COOLED AIR | | Number of Bathrooms: | 2 | Number of Bedrooms: | 3 | | Plumbing: | 9 | Roof Covering: | COMP SHINGLE |
|
| | Type | Description | Class CD | Sub Class CD | Year Built | Area |
| | MA | Main Area | 1 | 30 | 1950 | 962.0 |
| | SI1 | SITE IMPROVEMENT | 1 | 30 | 1950 | 1.5 |
| | BASE | BASEMENT | 1 | 30 | 1950 | 962.0 |
| | BPF | BASEMENT -PARTITIONED FINISH | 1 | 30 | 1950 | 962.0 |
| | ATG | Attached Garage | 1 | 30 | 1950 | 280.0 |
| | S1F | Single One Story Fireplace | 1 | 30 | 1950 | 1.0 |
| | PRC | PORCH W STEPS, ROOF,CEILED | 1 | 30 | 1950 | 49.0 |
Sketch
Property Image
Land
| 1 | RES 1 | Converted: Residential | 0.2410 | 10500.00 | 0.00 | 0.00 | 1.00 | $90,000 | $0 |
Roll Value History
| 2026 | N/A | N/A | N/A | N/A | N/A |
| 2025 | $230,500 | $90,000 | $0 | $320,500 | $320,500 |
| 2024 | $230,500 | $90,000 | $0 | $320,500 | $320,500 |
| 2023 | $230,500 | $90,000 | $0 | $320,500 | $320,500 |
| 2022 | $230,500 | $90,000 | $0 | $320,500 | $320,500 |
| 2021 | $143,820 | $55,000 | $0 | $198,820 | $198,820 |
| 2020 | $136,970 | $55,000 | $0 | $191,970 | $191,970 |
| 2019 | $136,970 | $55,000 | $0 | $191,970 | $191,970 |
| 2018 | $114,140 | $55,000 | $0 | $169,140 | $169,140 |
| 2017 | $114,140 | $55,000 | $0 | $169,140 | $169,140 |
| 2016 | $114,140 | $55,000 | $0 | $169,140 | $169,140 |
| 2015 | $97,650 | $55,000 | $0 | $152,650 | $152,650 |
| 2014 | $93,000 | $55,000 | $0 | $148,000 | $148,000 |
| 2013 | $93,000 | $55,000 | $0 | $148,000 | $148,000 |
| 2012 | $119,100 | $55,000 | $0 | $0 | $0 |
| 2011 | $79,800 | $55,000 | $0 | $0 | $0 |
| 2010 | $111,200 | $40,000 | $0 | $0 | $0 |
| 2009 | $128,000 | $40,000 | $0 | $0 | $0 |
| 2008 | $94,400 | $40,000 | $0 | $0 | $0 |
| 2007 | $94,400 | $40,000 | $0 | $0 | $0 |
Deed and Sales History
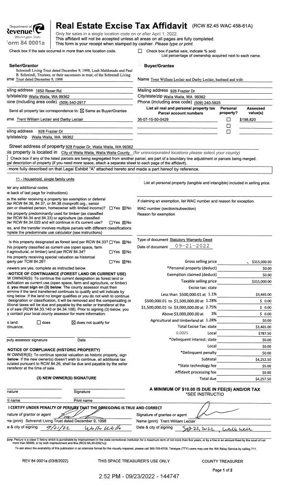
| 1 | 09/23/2022 | SWD | STATUTORY WARRANTY DEED | SCHREINDL LIVING TRUST | LECLAIR TRENT WILLIAM & DARBY | | | $315,000.00 | 144747 | 2022-07952 |
| 2 | 10/22/2010 | QCD | QUIT CLAIM DEED | SCHREINDL, ROBERT H & DIANA | SCHREINDL LIVING TRUST | | | | 119233 | 2010-08584 |
| 3 | 08/20/2010 | WARRANTY D | WARRANTY DEED | PRICE, ADRIAN A & OLIVE S | SCHREINDL, ROBERT & DIANA | | | $174,500.00 | 118886 | 2010-06444 |
| 4 | 01/01/1956 | WARRANTY D | WARRANTY DEED | | | | | $0.00 | 0 | 2780-388588 |
Payout Agreement
| No payout information available.. |