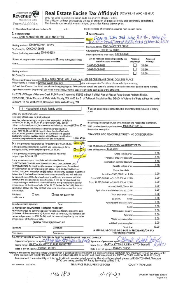
Property
Account |
| Property ID: | 28834 | Abbreviated Legal Description: | TABLEROCK SUBD LOT 31 |
| Parcel Number: | 360604580031 | Agent Code: | |
| Type: | Real | | |
| Tax Area: | 5 - OL-140 | Land Use Code | 11 |
| Open Space: | N | DFL | N |
| Historic Property: | N | Remodel Property: | N |
| Multi-Family Redevelopment: | N | | |
| Township: | 6 | Section: | 4 |
| Range: | 36 |
Location |
| Address: | 77 ELK FORK DR WA 99362 | Mapsco: | |
| Neighborhood: | VG Res | Map ID: | |
| Neighborhood CD: | 615011 |
Owner |
| Name: | KITTO FAMILY TRUST | Owner ID: | 74603 |
| Mailing Address: | C/O KITTO GARY A & JULIE A 162 VALLEY RIDGE DR PARADISE, CA 95969 | % Ownership: | 100.0000000000% |
| | | Exemptions: | |
Taxes and Assessment Details
Property Tax Information as of
02/21/2026
Click on "Statement Details" to expand or collapse a tax statement.
* Please enter a valid date ** Please enter a valid date *
Statement Details |
| | TOTAL: | $0.00 | $0.00 | $0.00 | $0.00 | $0.00 | $0.00 |
|
| | $0.00 | $0.00 | $0.00 | $0.00 | $0.00 | $0.00 |
Values
| (+) Improvement Homesite Value: | + | $0 | |
| (+) Improvement Non-Homesite Value: | + | $706,470 | |
| (+) Land Homesite Value: | + | $0 | |
| (+) Land Non-Homesite Value: | + | $180,000 | |
| (+) Curr Use (HS): | + | $0 | $0 |
| (+) Curr Use (NHS): | + | $0 | $0 |
| | | -------------------------- | |
| (=) Market Value: | = | $886,470 | |
| (–) Productivity Loss: | – | $0 | |
| | | -------------------------- | |
| (=) Subtotal: | = | $886,470 | |
| (+) Senior Appraised Value: | + | $0 | |
| (+) Non-Senior Appraised Value: | + | $886,470 | |
| | | -------------------------- | |
| (=) Total Appraised Value: | = | $886,470 | |
| (–) Senior Exemption Loss: | – | $0 | |
| (–) Exemption Loss: | – | $0 | |
| | | -------------------------- | |
| (=) Taxable Value: | = | $886,470 | |
Taxing Jurisdiction
| Owner: | KITTO FAMILY TRUST | | |
| % Ownership: | 100.0000000000% | | |
| Total Value: | $886,470 | | |
| Tax Area: | 5 - OL-140 |
| CERFD | CURRENT EXPENSE REFUND 010 | 0.0000000000 | $886,470 | $886,470 | $0.00 | | |
| CURREXP | CURRENT EXPENSE 010 | 0.9851088983 | $886,470 | $886,470 | $873.27 | | |
| HUMNSERV | HUMAN SERVICES 119 | 0.0250000000 | $886,470 | $886,470 | $22.16 | | |
| SLDREL | SOLDIERS RELIEF 121 | 0.0155990000 | $886,470 | $886,470 | $13.83 | | |
| EMERGSER | EMS 147 | 0.3676811629 | $886,470 | $886,470 | $325.94 | | |
| EMSRFD | EMS REFUND 147 | 0.0000000000 | $886,470 | $886,470 | $0.00 | | |
| PORTRFD | PORT REFUND 640 | 0.0000000000 | $886,470 | $886,470 | $0.00 | | |
| PORTWWGEN | PORT OF WW 640 | 0.2344301070 | $886,470 | $886,470 | $207.82 | | |
| SD140BOND | SD #140 BOND 764 | 0.8032434458 | $886,470 | $886,470 | $712.05 | | |
| SD140CAP | SD #140 CAP 762 | 0.3840034221 | $886,470 | $886,470 | $340.41 | | |
| SD140GEN | SD #140 GENERAL 760 | 2.4999999996 | $886,470 | $886,470 | $2,216.18 | | |
| ST2 | STATE SCHOOL PART 2 600 | 0.8853714103 | $886,470 | $886,470 | $784.86 | | |
| STATESCHL | STATE SCHOOL 600 | 1.6424571473 | $886,470 | $886,470 | $1,455.99 | | |
| STREFUND | STATE REFUND LEVY 603 | 0.0000000000 | $886,470 | $886,470 | $0.00 | | |
| CWWBOND | C OF WW BOND 643 | 0.2642134255 | $886,470 | $886,470 | $234.22 | | |
| CWWGEN | CITY OF WW 631 | 1.6110494978 | $886,470 | $886,470 | $1,428.15 | | |
| CWWRFD | CITY OF WALLA WALLA REFUND 631 | 0.0000000000 | $886,470 | $886,470 | $0.00 | | |
| | Total Tax Rate: | 9.7181575166 | | | | | |
| | | | | Taxes w/Current Exemptions: | $8,614.88 | | |
| | | | | Taxes w/o Exemptions: | $8,614.88 | | |
Improvement / Building
| Improvement #1: | RESIDENTIAL | State Code: | 11 | 4039.0 sqft | Value: | $706,470 |
| Exterior Wall: | HARDBOARD | Heating/Cooling: | HEAT PUMP | | Number of Bathrooms: | 4 | Number of Bedrooms: | 5 | | Plumbing: | 19 | Roof Covering: | COMP SHINGLE |
|
| | Type | Description | Class CD | Sub Class CD | Year Built | Area |
| | MA | Main Area | 4 | 45 | 2007 | 4039.0 |
| | GFP | GAS FIREPLACE | 4 | 45 | 0 | 1.0 |
| | RPC | OPEN PORCH W/ROOF , CEILED | 4 | 45 | 0 | 187.0 |
| | RPC | OPEN PORCH W/ROOF , CEILED | 4 | 45 | 0 | 252.0 |
| | SI1 | SITE IMPROVEMENT | 4 | 45 | 0 | 6.0 |
| | ATG | Attached Garage | 4 | 45 | 0 | 676.0 |
| | UPFL | Upper Floor (included in main area) | 4 | 45 | 2007 | 1414.0 |
Sketch
Property Image
Land
| 1 | RES 1 | Converted: Residential | 0.2376 | 10350.00 | 0.00 | 0.00 | 1.00 | $180,000 | $0 |
Roll Value History
| 2026 | N/A | N/A | N/A | N/A | N/A |
| 2025 | $706,470 | $180,000 | $0 | $886,470 | $886,470 |
| 2024 | $719,500 | $120,000 | $0 | $839,500 | $839,500 |
| 2023 | $719,500 | $120,000 | $0 | $839,500 | $839,500 |
| 2022 | $654,090 | $95,000 | $0 | $749,090 | $749,090 |
| 2021 | $523,270 | $95,000 | $0 | $618,270 | $618,270 |
| 2020 | $455,020 | $95,000 | $0 | $550,020 | $550,020 |
| 2019 | $455,020 | $95,000 | $0 | $550,020 | $550,020 |
| 2018 | $436,660 | $50,000 | $0 | $486,660 | $486,660 |
| 2017 | $415,860 | $50,000 | $0 | $465,860 | $465,860 |
| 2016 | $396,060 | $50,000 | $0 | $446,060 | $446,060 |
| 2015 | $396,060 | $50,000 | $0 | $446,060 | $446,060 |
| 2014 | $377,200 | $50,000 | $0 | $427,200 | $427,200 |
| 2013 | $377,200 | $50,000 | $0 | $427,200 | $427,200 |
| 2012 | $372,000 | $55,000 | $0 | $0 | $0 |
| 2011 | $357,000 | $70,000 | $0 | $0 | $0 |
| 2010 | $404,400 | $70,000 | $0 | $0 | $0 |
| 2009 | $405,600 | $70,000 | $0 | $0 | $0 |
| 2008 | $405,600 | $70,000 | $0 | $0 | $0 |
| 2007 | $0 | $1,900 | $0 | $0 | $0 |
Deed and Sales History
| 1 | 11/14/2023 | WARRANTY D | WARRANTY DEED | KITTO GARY ALAN & JULIE ANN | KITTO FAMILY TRUST | | | | 146785 | 2023-06651 |
| 2 | 05/15/2019 | SWD | STATUTORY WARRANTY DEED | MC VANE KRISTEN R | KITTO GARY ALAN & JULIE ANN | | | $545,000.00 | 136880 | 2019-03235 |
| 3 | 11/02/2018 | QCD | QUIT CLAIM DEED | MC VANE MATTHEW C & KRISTEN R | MC VANE KRISTEN R | | | $0.00 | 135893 | 2018-09249 |
| 4 | 08/20/2010 | WARRANTY D | WARRANTY DEED | MARCH, DAVID L | MC VANE, MATTHEW C & KRISTEN R | | | $432,000.00 | 118889 | 2010-06457 |
| 5 | 08/03/2007 | WARRANTY D | WARRANTY DEED | WALLA WALLA COMMUNITY | MARCH, DAVID L | | | $480,000.00 | 113435 | 2007-08989 |
| 6 | 04/08/2004 | WARRANTY D | WARRANTY DEED | GATEWOOD, W PAUL | WALLA WALLA COMMUNITY | | | $200,000.00 | 104453 | 2004-03700 |
|   | |
Payout Agreement
| No payout information available.. |