Property
Account |
| Property ID: | 28773 | Abbreviated Legal Description: | 16-7-36 TAX 45 |
| Parcel Number: | 360716340006 | Agent Code: | |
| Type: | Real | | |
| Tax Area: | 5 - OL-140 | Land Use Code | 11 |
| Open Space: | N | DFL | N |
| Historic Property: | N | Remodel Property: | N |
| Multi-Family Redevelopment: | N | | |
| Township: | 7 | Section: | 16 |
| Range: | 36 |
Location |
| Address: | 1503 MELROSE ST WA 99362 | Mapsco: | |
| Neighborhood: | A-SFR | Map ID: | |
| Neighborhood CD: | 513011 |
Owner |
| Name: | SALAZAR PEREZ BRYAN C | Owner ID: | 72530 |
| Mailing Address: | 1503 MELROSE ST WALLA WALLA, WA 99362 | % Ownership: | 100.0000000000% |
| | | Exemptions: | |
Taxes and Assessment Details
Values
| (+) Improvement Homesite Value: | + | $0 | |
| (+) Improvement Non-Homesite Value: | + | $247,280 | |
| (+) Land Homesite Value: | + | $0 | |
| (+) Land Non-Homesite Value: | + | $43,370 | |
| (+) Curr Use (HS): | + | $0 | $0 |
| (+) Curr Use (NHS): | + | $0 | $0 |
| | | -------------------------- | |
| (=) Market Value: | = | $290,650 | |
| (–) Productivity Loss: | – | $0 | |
| | | -------------------------- | |
| (=) Subtotal: | = | $290,650 | |
| (+) Senior Appraised Value: | + | $0 | |
| (+) Non-Senior Appraised Value: | + | $290,650 | |
| | | -------------------------- | |
| (=) Total Appraised Value: | = | $290,650 | |
| (–) Senior Exemption Loss: | – | $0 | |
| (–) Exemption Loss: | – | $0 | |
| | | -------------------------- | |
| (=) Taxable Value: | = | $290,650 | |
Taxing Jurisdiction
| Owner: | SALAZAR PEREZ BRYAN C | | |
| % Ownership: | 100.0000000000% | | |
| Total Value: | $290,650 | | |
| Tax Area: | 5 - OL-140 |
| CERFD | CURRENT EXPENSE REFUND 010 | 0.0000000000 | $290,650 | $290,650 | $0.00 | | |
| CURREXP | CURRENT EXPENSE 010 | 1.0175366760 | $290,650 | $290,650 | $295.75 | | |
| HUMNSERV | HUMAN SERVICES 119 | 0.0250000000 | $290,650 | $290,650 | $7.27 | | |
| SLDREL | SOLDIERS RELIEF 121 | 0.0155990005 | $290,650 | $290,650 | $4.53 | | |
| EMERGSER | EMS 147 | 0.3792580840 | $290,650 | $290,650 | $110.23 | | |
| EMSRFD | EMS REFUND 147 | 0.0000000000 | $290,650 | $290,650 | $0.00 | | |
| PORTRFD | PORT REFUND 640 | 0.0000000000 | $290,650 | $290,650 | $0.00 | | |
| PORTWWGEN | PORT OF WW 640 | 0.2460186015 | $290,650 | $290,650 | $71.51 | | |
| SD140BOND | SD #140 BOND 764 | 0.8342371393 | $290,650 | $290,650 | $242.47 | | |
| SD140GEN | SD #140 GENERAL 760 | 2.0646500647 | $290,650 | $290,650 | $600.09 | | |
| ST2 | STATE SCHOOL PART 2 600 | 0.8131451643 | $290,650 | $290,650 | $236.34 | | |
| STATESCHL | STATE SCHOOL 600 | 1.5158548041 | $290,650 | $290,650 | $440.58 | | |
| STREFUND | STATE REFUND LEVY 603 | 0.0000000000 | $290,650 | $290,650 | $0.00 | | |
| CWWBOND | C OF WW BOND 643 | 0.2760494372 | $290,650 | $290,650 | $80.23 | | |
| CWWGEN | CITY OF WW 631 | 1.6100204973 | $290,650 | $290,650 | $467.95 | | |
| CWWRFD | CITY OF WALLA WALLA REFUND 631 | 0.0000000000 | $290,650 | $290,650 | $0.00 | | |
| | Total Tax Rate: | 8.7973694689 | | | | | |
| | | | | Taxes w/Current Exemptions: | $2,556.95 | | |
| | | | | Taxes w/o Exemptions: | $2,556.95 | | |
Improvement / Building
| Improvement #1: | RESIDENTIAL | State Code: | 11 | 1079.0 sqft | Value: | $247,280 |
| Exterior Wall: | SIDING | Heating/Cooling: | WARM & COOLED AIR | | Number of Bathrooms: | 2 | Number of Bedrooms: | 2 | | Plumbing: | 9 | Roof Covering: | COMP SHINGLE |
|
| | Type | Description | Class CD | Sub Class CD | Year Built | Area |
| | MA | Main Area | 1 | 30 | 1950 | 1079.0 |
| | SI1 | SITE IMPROVEMENT | 1 | 30 | 1950 | 1.0 |
| | BASE | BASEMENT | 1 | 30 | 1950 | 1064.0 |
| | BPF | BASEMENT -PARTITIONED FINISH | 1 | 30 | 1950 | 1000.0 |
| | DTG | Detached Garage | 1 | 30 | 1950 | 288.0 |
| | S1F | Single One Story Fireplace | 1 | 30 | 1950 | 1.0 |
| | RPS | PORCH W/STEPS,ROOF | 1 | 30 | 1950 | 12.0 |
| | RPC | OPEN PORCH W/ROOF , CEILED | 1 | 30 | 1950 | 99.0 |
Sketch
Property Image
Land
| 1 | RES 1 | Converted: Residential | 0.1593 | 6939.00 | 0.00 | 0.00 | 1.00 | $43,370 | $0 |
Roll Value History
| 2026 | N/A | N/A | N/A | N/A | N/A |
| 2025 | $224,330 | $69,390 | $0 | $293,720 | $293,720 |
| 2024 | $195,070 | $69,390 | $0 | $264,460 | $264,460 |
| 2023 | $247,280 | $43,370 | $0 | $290,650 | $290,650 |
| 2022 | $247,280 | $43,370 | $0 | $290,650 | $290,650 |
| 2021 | $183,170 | $43,370 | $0 | $226,540 | $226,540 |
| 2020 | $152,640 | $43,370 | $0 | $196,010 | $196,010 |
| 2019 | $152,640 | $43,370 | $0 | $196,010 | $196,010 |
| 2018 | $127,200 | $43,370 | $0 | $170,570 | $170,570 |
| 2017 | $127,940 | $27,800 | $0 | $155,740 | $155,740 |
| 2016 | $116,310 | $27,800 | $0 | $144,110 | $144,110 |
| 2015 | $110,770 | $27,800 | $0 | $138,570 | $138,570 |
| 2014 | $100,700 | $27,800 | $0 | $128,500 | $128,500 |
| 2013 | $100,700 | $27,800 | $0 | $128,500 | $128,500 |
| 2012 | $92,700 | $27,800 | $0 | $0 | $0 |
| 2011 | $68,600 | $27,800 | $0 | $0 | $0 |
| 2010 | $64,000 | $27,800 | $0 | $0 | $0 |
| 2009 | $74,200 | $27,800 | $0 | $0 | $0 |
| 2008 | $74,200 | $27,800 | $0 | $0 | $0 |
| 2007 | $74,200 | $27,800 | $0 | $0 | $0 |
Deed and Sales History
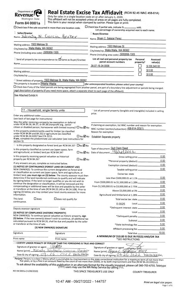
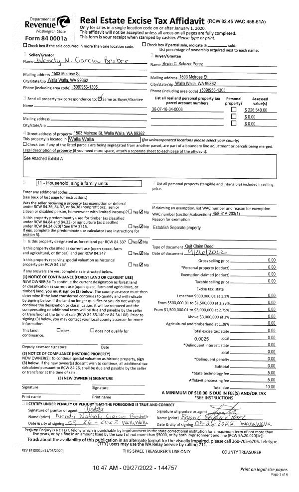
| 1 | 09/27/2022 | QCD | QUIT CLAIM DEED | GARCIA BERBER WENDY N | SALAZAR PEREZ BRYAN C | | | $0.00 | 144757 | 2022-08014 |
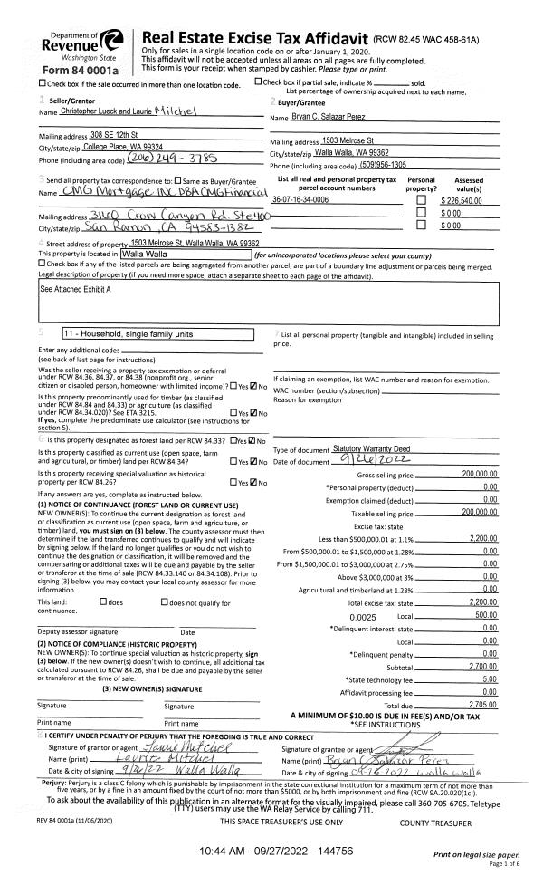
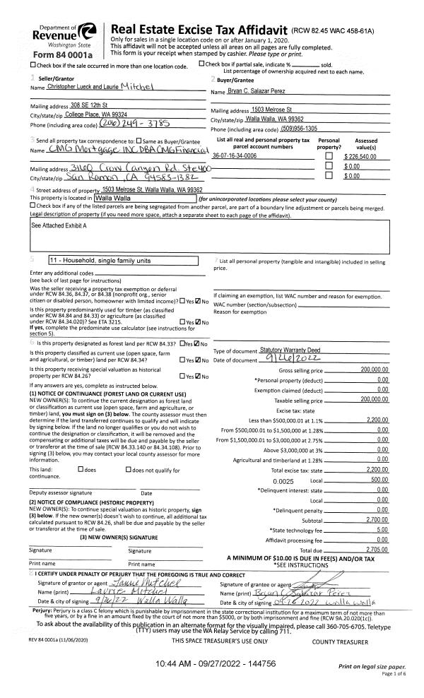
| 2 | 09/27/2022 | SWD | STATUTORY WARRANTY DEED | LUECK CHRISTOPHER & LAURIE MITCHEL | SALAZAR PEREZ BRYAN C | | | $200,000.00 | 144756 | 2022-08013 |
| 3 | 11/30/2020 | SWD | STATUTORY WARRANTY DEED | CCC BUSINESS LLC | LUECK CHRISTOPHER & LAURIE MITCHEL | | | $226,000.00 | 140439 | 2020-12589 |
| 4 | 07/29/2010 | QCD | QUIT CLAIM DEED | COLLEY, CASEY C LIVING TRUST | CCC BUSINESS LLC | | | | 118805 | 2010-05868 |
| 5 | 07/29/2010 | QCD | QUIT CLAIM DEED | COLLEY, CASEY C | COLLEY CASEY C LIVING TRUST | | | | 118804 | 2010-05867 |
| 6 | 07/14/2005 | WARRANTY D | WARRANTY DEED | DOUGHERTY, JOSEPH P | COLLEY, CASEY C | | | $102,000.00 | 107949 | 2005-08504 |
| 7 | 10/07/1976 | WARRANTY D | WARRANTY DEED | | | | | $32,000.00 | 0 | 4805-58238 |
Payout Agreement
| No payout information available.. |