Property
Account |
| Property ID: | 28736 | Abbreviated Legal Description: | VILLAGES OF GARRISON CREEK PUD PHASE VIII LOT 204 |
| Parcel Number: | 350736040031 | Agent Code: | |
| Type: | Real | | |
| Tax Area: | 77 - CP-250-F | Land Use Code | 11 |
| Open Space: | N | DFL | N |
| Historic Property: | N | Remodel Property: | N |
| Multi-Family Redevelopment: | N | | |
| Township: | 7 | Section: | 36 |
| Range: | 35 |
Location |
| Address: | 716 SE NUTHATCH DR WA 99324 | Mapsco: | |
| Neighborhood: | G SFR | Map ID: | |
| Neighborhood CD: | 114011 |
Owner |
| Name: | HULETT CHAD | Owner ID: | 33337 |
| Mailing Address: | KATRINA E VAN CLEVE 1255 SOUTHVIEW DR WALLA WALLA, WA 99362 | % Ownership: | 100.0000000000% |
| | | Exemptions: | |
Taxes and Assessment Details
Property Tax Information as of
02/21/2026
Click on "Statement Details" to expand or collapse a tax statement.
* Please enter a valid date ** Please enter a valid date *
Statement Details |
| | TOTAL: | $0.00 | $0.00 | $0.00 | $0.00 | $0.00 | $0.00 |
|
| | $0.00 | $0.00 | $0.00 | $0.00 | $0.00 | $0.00 |
Values
| (+) Improvement Homesite Value: | + | $0 | |
| (+) Improvement Non-Homesite Value: | + | $269,760 | |
| (+) Land Homesite Value: | + | $0 | |
| (+) Land Non-Homesite Value: | + | $75,000 | |
| (+) Curr Use (HS): | + | $0 | $0 |
| (+) Curr Use (NHS): | + | $0 | $0 |
| | | -------------------------- | |
| (=) Market Value: | = | $344,760 | |
| (–) Productivity Loss: | – | $0 | |
| | | -------------------------- | |
| (=) Subtotal: | = | $344,760 | |
| (+) Senior Appraised Value: | + | $0 | |
| (+) Non-Senior Appraised Value: | + | $344,760 | |
| | | -------------------------- | |
| (=) Total Appraised Value: | = | $344,760 | |
| (–) Senior Exemption Loss: | – | $0 | |
| (–) Exemption Loss: | – | $0 | |
| | | -------------------------- | |
| (=) Taxable Value: | = | $344,760 | |
Taxing Jurisdiction
| Owner: | HULETT CHAD | | |
| % Ownership: | 100.0000000000% | | |
| Total Value: | $344,760 | | |
| Tax Area: | 77 - CP-250-F |
| CERFD | CURRENT EXPENSE REFUND 010 | 0.0000000000 | $344,760 | $344,760 | $0.00 | | |
| CURREXP | CURRENT EXPENSE 010 | 1.0175366760 | $344,760 | $344,760 | $350.81 | | |
| HUMNSERV | HUMAN SERVICES 119 | 0.0250000000 | $344,760 | $344,760 | $8.62 | | |
| SLDREL | SOLDIERS RELIEF 121 | 0.0155990005 | $344,760 | $344,760 | $5.38 | | |
| COLLPLBOND | C OF CP BOND 644 | 0.4374241808 | $344,760 | $344,760 | $150.81 | | |
| COLLPLGEN | CITY OF CP 632 | 1.4453819216 | $344,760 | $344,760 | $498.31 | | |
| EMERGSER | EMS 147 | 0.3792580840 | $344,760 | $344,760 | $130.75 | | |
| EMSRFD | EMS REFUND 147 | 0.0000000000 | $344,760 | $344,760 | $0.00 | | |
| RURALLIB | RURAL LIBRARY 623 | 0.3710609029 | $344,760 | $344,760 | $127.93 | | |
| PORTRFD | PORT REFUND 640 | 0.0000000000 | $344,760 | $344,760 | $0.00 | | |
| PORTWWGEN | PORT OF WW 640 | 0.2460186015 | $344,760 | $344,760 | $84.82 | | |
| SD250BOND | SD #250 BOND 773 | 1.4560608159 | $344,760 | $344,760 | $501.99 | | |
| SD250GEN | SD #250 GENERAL 770 | 2.3880724087 | $344,760 | $344,760 | $823.31 | | |
| ST2 | STATE SCHOOL PART 2 600 | 0.8131451643 | $344,760 | $344,760 | $280.34 | | |
| STATESCHL | STATE SCHOOL 600 | 1.5158548041 | $344,760 | $344,760 | $522.61 | | |
| STREFUND | STATE REFUND LEVY 603 | 0.0000000000 | $344,760 | $344,760 | $0.00 | | |
| | Total Tax Rate: | 10.1104125603 | | | | | |
| | | | | Taxes w/Current Exemptions: | $3,485.68 | | |
| | | | | Taxes w/o Exemptions: | $3,485.68 | | |
Improvement / Building
| Improvement #1: | RESIDENTIAL | State Code: | 11 | 980.0 sqft | Value: | $269,760 |
| Exterior Wall: | HARDBOARD | Heating/Cooling: | WARM & COOLED AIR | | Number of Bathrooms: | 1 | Number of Bedrooms: | 2 | | Plumbing: | 6 | Roof Covering: | COMP SHINGLE |
|
| | Type | Description | Class CD | Sub Class CD | Year Built | Area |
| | MA | Main Area | 1 | 40 | 2012 | 980.0 |
| | SI1 | SITE IMPROVEMENT | 1 | 40 | 2012 | 2.0 |
| | ATG | Attached Garage | 1 | 40 | 2012 | 288.0 |
| | GFP | GAS FIREPLACE | 1 | 40 | 2012 | 1.0 |
| | RPC | OPEN PORCH W/ROOF , CEILED | 1 | 40 | 2012 | 90.0 |
| | RPC | OPEN PORCH W/ROOF , CEILED | 1 | 40 | 2012 | 24.0 |
Sketch
Property Image
Land
| 1 | RES 1 | Converted: Residential | 0.0964 | 4200.00 | 0.00 | 0.00 | 1.00 | $75,000 | $0 |
Roll Value History
| 2026 | N/A | N/A | N/A | N/A | N/A |
| 2025 | $202,320 | $135,000 | $0 | $337,320 | $337,320 |
| 2024 | $269,760 | $75,000 | $0 | $344,760 | $344,760 |
| 2023 | $269,760 | $75,000 | $0 | $344,760 | $344,760 |
| 2022 | $207,510 | $75,000 | $0 | $282,510 | $282,510 |
| 2021 | $159,620 | $75,000 | $0 | $234,620 | $234,620 |
| 2020 | $133,020 | $75,000 | $0 | $208,020 | $208,020 |
| 2019 | $178,020 | $30,000 | $0 | $208,020 | $208,020 |
| 2018 | $169,540 | $30,000 | $0 | $199,540 | $199,540 |
| 2017 | $164,600 | $30,000 | $0 | $194,600 | $194,600 |
| 2016 | $156,770 | $30,000 | $0 | $186,770 | $186,770 |
| 2015 | $149,300 | $30,000 | $0 | $179,300 | $179,300 |
| 2014 | $149,300 | $30,000 | $0 | $179,300 | $179,300 |
| 2013 | $149,300 | $30,000 | $0 | $179,300 | $179,300 |
| 2012 | $0 | $30,000 | $0 | $0 | $0 |
| 2011 | $0 | $4,500 | $0 | $0 | $0 |
| 2010 | $149,300 | $30,000 | $0 | $0 | $0 |
Deed and Sales History
| 1 | 08/16/2022 | SWD | STATUTORY WARRANTY DEED | FISH CONOR J | HULETT CHAD | | | $355,000.00 | 144513 | 2022-06864 |
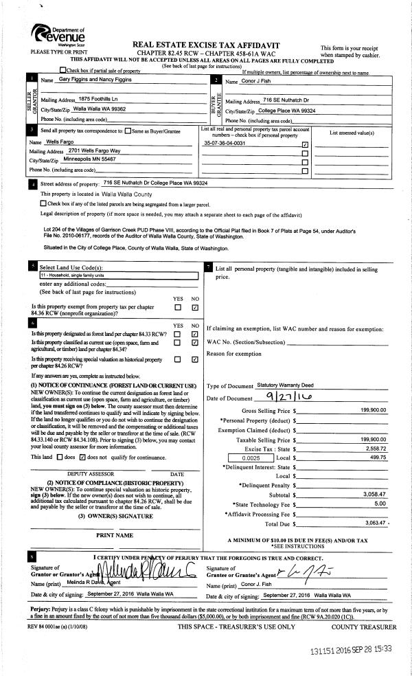
| 2 | 09/28/2016 | SWD | STATUTORY WARRANTY DEED | FIGGINS GARY & NANCY | FISH CONOR J | | | $199,900.00 | 131151 | 2016-07988 |
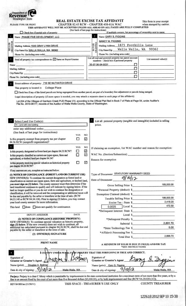
| 3 | 09/10/2012 | WARRANTY D | WARRANTY DEED | PHASE FIVE DEVELOPMENT LLC | FIGGINS, GARY & NANCY | | | $189,000.00 | 122618 | 2012-07888 |
Payout Agreement
| No payout information available.. |