Property
Account |
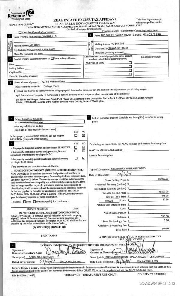
| Property ID: | 28733 | Abbreviated Legal Description: | VILLAGES OF GARRISON CREEK PUD PHASE VIII LOT 198 |
| Parcel Number: | 350736040025 | Agent Code: | |
| Type: | Real | | |
| Tax Area: | 77 - CP-250-F | Land Use Code | 11 |
| Open Space: | N | DFL | N |
| Historic Property: | N | Remodel Property: | N |
| Multi-Family Redevelopment: | N | | |
| Township: | 7 | Section: | 36 |
| Range: | 35 |
Location |
| Address: | 727 SE NUTHATCH DR WA 99324 | Mapsco: | |
| Neighborhood: | G SFR | Map ID: | |
| Neighborhood CD: | 114011 |
Owner |
| Name: | GISLER FAMILY TRUST | Owner ID: | 54464 |
| Mailing Address: | 727 NUTHATCH DR COLLEGE PLACE, WA 99324 | % Ownership: | 100.0000000000% |
| | | Exemptions: | |
Taxes and Assessment Details
Property Tax Information as of
02/21/2026
Click on "Statement Details" to expand or collapse a tax statement.
* Please enter a valid date ** Please enter a valid date *
Statement Details |
| | TOTAL: | $0.00 | $0.00 | $0.00 | $0.00 | $0.00 | $0.00 |
|
| | $0.00 | $0.00 | $0.00 | $0.00 | $0.00 | $0.00 |
Values
| (+) Improvement Homesite Value: | + | $0 | |
| (+) Improvement Non-Homesite Value: | + | $431,640 | |
| (+) Land Homesite Value: | + | $0 | |
| (+) Land Non-Homesite Value: | + | $75,000 | |
| (+) Curr Use (HS): | + | $0 | $0 |
| (+) Curr Use (NHS): | + | $0 | $0 |
| | | -------------------------- | |
| (=) Market Value: | = | $506,640 | |
| (–) Productivity Loss: | – | $0 | |
| | | -------------------------- | |
| (=) Subtotal: | = | $506,640 | |
| (+) Senior Appraised Value: | + | $0 | |
| (+) Non-Senior Appraised Value: | + | $506,640 | |
| | | -------------------------- | |
| (=) Total Appraised Value: | = | $506,640 | |
| (–) Senior Exemption Loss: | – | $0 | |
| (–) Exemption Loss: | – | $0 | |
| | | -------------------------- | |
| (=) Taxable Value: | = | $506,640 | |
Taxing Jurisdiction
| Owner: | GISLER FAMILY TRUST | | |
| % Ownership: | 100.0000000000% | | |
| Total Value: | $506,640 | | |
| Tax Area: | 77 - CP-250-F |
| CERFD | CURRENT EXPENSE REFUND 010 | 0.0000000000 | $506,640 | $506,640 | $0.00 | | |
| CURREXP | CURRENT EXPENSE 010 | 1.0175366760 | $506,640 | $506,640 | $515.52 | | |
| HUMNSERV | HUMAN SERVICES 119 | 0.0250000000 | $506,640 | $506,640 | $12.67 | | |
| SLDREL | SOLDIERS RELIEF 121 | 0.0155990005 | $506,640 | $506,640 | $7.90 | | |
| COLLPLBOND | C OF CP BOND 644 | 0.4374241808 | $506,640 | $506,640 | $221.62 | | |
| COLLPLGEN | CITY OF CP 632 | 1.4453819216 | $506,640 | $506,640 | $732.29 | | |
| EMERGSER | EMS 147 | 0.3792580840 | $506,640 | $506,640 | $192.15 | | |
| EMSRFD | EMS REFUND 147 | 0.0000000000 | $506,640 | $506,640 | $0.00 | | |
| RURALLIB | RURAL LIBRARY 623 | 0.3710609029 | $506,640 | $506,640 | $187.99 | | |
| PORTRFD | PORT REFUND 640 | 0.0000000000 | $506,640 | $506,640 | $0.00 | | |
| PORTWWGEN | PORT OF WW 640 | 0.2460186015 | $506,640 | $506,640 | $124.64 | | |
| SD250BOND | SD #250 BOND 773 | 1.4560608159 | $506,640 | $506,640 | $737.70 | | |
| SD250GEN | SD #250 GENERAL 770 | 2.3880724087 | $506,640 | $506,640 | $1,209.89 | | |
| ST2 | STATE SCHOOL PART 2 600 | 0.8131451643 | $506,640 | $506,640 | $411.97 | | |
| STATESCHL | STATE SCHOOL 600 | 1.5158548041 | $506,640 | $506,640 | $767.99 | | |
| STREFUND | STATE REFUND LEVY 603 | 0.0000000000 | $506,640 | $506,640 | $0.00 | | |
| | Total Tax Rate: | 10.1104125603 | | | | | |
| | | | | Taxes w/Current Exemptions: | $5,122.33 | | |
| | | | | Taxes w/o Exemptions: | $5,122.33 | | |
Improvement / Building
| Improvement #1: | RESIDENTIAL | State Code: | 11 | 1791.0 sqft | Value: | $431,640 |
| Exterior Wall: | SIDING | Heating/Cooling: | WARM & COOLED AIR | | Number of Bathrooms: | 3 | Number of Bedrooms: | 3 | | Plumbing: | 15 | Roof Covering: | COMP SHINGLE |
|
| | Type | Description | Class CD | Sub Class CD | Year Built | Area |
| | MA | Main Area | 1 | 40 | 2013 | 1791.0 |
| | ATG | Attached Garage | 1 | 40 | 2013 | 400.0 |
| | RPC | OPEN PORCH W/ROOF , CEILED | 1 | 40 | 2013 | 67.8 |
| | RPC | OPEN PORCH W/ROOF , CEILED | 1 | 40 | 2013 | 60.0 |
| | GFP | GAS FIREPLACE | 1 | 40 | 2013 | 1.0 |
| | SI1 | SITE IMPROVEMENT | 1 | 40 | 2013 | 3.0 |
Sketch
Property Image
Land
| 1 | RES 1 | Converted: Residential | 0.1341 | 5840.00 | 0.00 | 0.00 | 1.00 | $75,000 | $0 |
Roll Value History
| 2026 | N/A | N/A | N/A | N/A | N/A |
| 2025 | $366,890 | $135,000 | $0 | $501,890 | $501,890 |
| 2024 | $431,640 | $75,000 | $0 | $506,640 | $506,640 |
| 2023 | $431,640 | $75,000 | $0 | $506,640 | $506,640 |
| 2022 | $411,080 | $75,000 | $0 | $486,080 | $486,080 |
| 2021 | $328,870 | $75,000 | $0 | $403,870 | $403,870 |
| 2020 | $293,630 | $75,000 | $0 | $368,630 | $368,630 |
| 2019 | $333,630 | $35,000 | $0 | $368,630 | $368,630 |
| 2018 | $317,740 | $35,000 | $0 | $352,740 | $352,740 |
| 2017 | $288,860 | $35,000 | $0 | $323,860 | $323,860 |
| 2016 | $275,100 | $35,000 | $0 | $310,100 | $310,100 |
| 2015 | $262,000 | $35,000 | $0 | $297,000 | $297,000 |
| 2014 | $262,000 | $35,000 | $0 | $297,000 | $297,000 |
| 2013 | $0 | $35,000 | $0 | $35,000 | $35,000 |
| 2012 | $0 | $35,000 | $0 | $0 | $0 |
| 2011 | $0 | $4,600 | $0 | $0 | $0 |
| 2010 | $0 | $35,000 | $0 | $0 | $0 |
Deed and Sales History
| 1 | 07/17/2014 | SWD | STATUTORY WARRANTY DEED | PHASE FIVE DEVELOPMENT LLC | GISLER FAMILY TRUST | | | $35,000.00 | 125292 | 2014-00384 |
Payout Agreement
| No payout information available.. |