Property
Account |
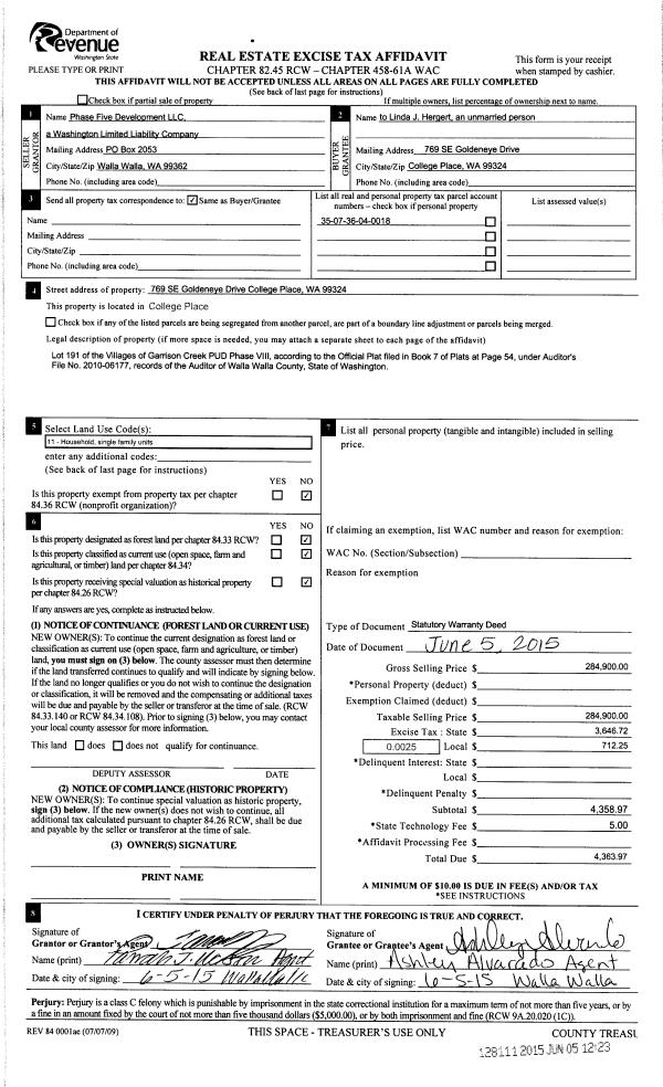
| Property ID: | 28726 | Abbreviated Legal Description: | VILLAGES OF GARRISON CREEK PUD PHASE VIII LOT 191 |
| Parcel Number: | 350736040018 | Agent Code: | |
| Type: | Real | | |
| Tax Area: | 77 - CP-250-F | Land Use Code | 11 |
| Open Space: | N | DFL | N |
| Historic Property: | N | Remodel Property: | N |
| Multi-Family Redevelopment: | N | | |
| Township: | 7 | Section: | 36 |
| Range: | 35 |
Location |
| Address: | 769 SE GOLDENEYE DR WA 99324 | Mapsco: | |
| Neighborhood: | G SFR | Map ID: | |
| Neighborhood CD: | 114011 |
Owner |
| Name: | HERGERT LINDA J | Owner ID: | 56728 |
| Mailing Address: | 769 SE GOLDENEYE DR COLLEGE PLACE, WA 99324 | % Ownership: | 100.0000000000% |
| | | Exemptions: | |
Taxes and Assessment Details
Values
| (+) Improvement Homesite Value: | + | $0 | |
| (+) Improvement Non-Homesite Value: | + | $343,860 | |
| (+) Land Homesite Value: | + | $0 | |
| (+) Land Non-Homesite Value: | + | $75,000 | |
| (+) Curr Use (HS): | + | $0 | $0 |
| (+) Curr Use (NHS): | + | $0 | $0 |
| | | -------------------------- | |
| (=) Market Value: | = | $418,860 | |
| (–) Productivity Loss: | – | $0 | |
| | | -------------------------- | |
| (=) Subtotal: | = | $418,860 | |
| (+) Senior Appraised Value: | + | $0 | |
| (+) Non-Senior Appraised Value: | + | $418,860 | |
| | | -------------------------- | |
| (=) Total Appraised Value: | = | $418,860 | |
| (–) Senior Exemption Loss: | – | $0 | |
| (–) Exemption Loss: | – | $0 | |
| | | -------------------------- | |
| (=) Taxable Value: | = | $418,860 | |
Taxing Jurisdiction
| Owner: | HERGERT LINDA J | | |
| % Ownership: | 100.0000000000% | | |
| Total Value: | $418,860 | | |
| Tax Area: | 77 - CP-250-F |
| CERFD | CURRENT EXPENSE REFUND 010 | 0.0000000000 | $418,860 | $418,860 | $0.00 | | |
| CURREXP | CURRENT EXPENSE 010 | 1.0175366760 | $418,860 | $418,860 | $426.21 | | |
| HUMNSERV | HUMAN SERVICES 119 | 0.0250000000 | $418,860 | $418,860 | $10.47 | | |
| SLDREL | SOLDIERS RELIEF 121 | 0.0155990005 | $418,860 | $418,860 | $6.53 | | |
| COLLPLBOND | C OF CP BOND 644 | 0.4374241808 | $418,860 | $418,860 | $183.22 | | |
| COLLPLGEN | CITY OF CP 632 | 1.4453819216 | $418,860 | $418,860 | $605.41 | | |
| EMERGSER | EMS 147 | 0.3792580840 | $418,860 | $418,860 | $158.86 | | |
| EMSRFD | EMS REFUND 147 | 0.0000000000 | $418,860 | $418,860 | $0.00 | | |
| RURALLIB | RURAL LIBRARY 623 | 0.3710609029 | $418,860 | $418,860 | $155.42 | | |
| PORTRFD | PORT REFUND 640 | 0.0000000000 | $418,860 | $418,860 | $0.00 | | |
| PORTWWGEN | PORT OF WW 640 | 0.2460186015 | $418,860 | $418,860 | $103.05 | | |
| SD250BOND | SD #250 BOND 773 | 1.4560608159 | $418,860 | $418,860 | $609.89 | | |
| SD250GEN | SD #250 GENERAL 770 | 2.3880724087 | $418,860 | $418,860 | $1,000.27 | | |
| ST2 | STATE SCHOOL PART 2 600 | 0.8131451643 | $418,860 | $418,860 | $340.59 | | |
| STATESCHL | STATE SCHOOL 600 | 1.5158548041 | $418,860 | $418,860 | $634.93 | | |
| STREFUND | STATE REFUND LEVY 603 | 0.0000000000 | $418,860 | $418,860 | $0.00 | | |
| | Total Tax Rate: | 10.1104125603 | | | | | |
| | | | | Taxes w/Current Exemptions: | $4,234.85 | | |
| | | | | Taxes w/o Exemptions: | $4,234.85 | | |
Improvement / Building
| Improvement #1: | RESIDENTIAL | State Code: | 11 | 1448.0 sqft | Value: | $343,860 |
| Exterior Wall: | SIDING | Heating/Cooling: | WARM & COOLED AIR | | Number of Bedrooms: | 2 | Number of Bedrooms: | 2 | | Plumbing: | 12 | Roof Covering: | COMP SHINGLE |
|
| | Type | Description | Class CD | Sub Class CD | Year Built | Area |
| | MA | Main Area | 1 | 40 | 2013 | 1448.0 |
| | ATG | Attached Garage | 1 | 40 | 2013 | 400.0 |
| | RPC | OPEN PORCH W/ROOF , CEILED | 1 | 40 | 2013 | 40.0 |
| | RPC | OPEN PORCH W/ROOF , CEILED | 1 | 40 | 2013 | 70.0 |
| | SI1 | SITE IMPROVEMENT | 1 | 40 | 2013 | 2.5 |
Sketch
Property Image
Land
| 1 | RES 1 | Converted: Residential | 0.0977 | 4256.00 | 0.00 | 0.00 | 1.00 | $75,000 | $0 |
Roll Value History
| 2026 | N/A | N/A | N/A | N/A | N/A |
| 2025 | $309,470 | $135,000 | $0 | $444,470 | $444,470 |
| 2024 | $343,860 | $75,000 | $0 | $418,860 | $418,860 |
| 2023 | $343,860 | $75,000 | $0 | $418,860 | $418,860 |
| 2022 | $286,550 | $75,000 | $0 | $361,550 | $361,550 |
| 2021 | $220,420 | $75,000 | $0 | $295,420 | $295,420 |
| 2020 | $220,420 | $75,000 | $0 | $295,420 | $295,420 |
| 2019 | $255,420 | $40,000 | $0 | $295,420 | $295,420 |
| 2018 | $255,420 | $40,000 | $0 | $295,420 | $295,420 |
| 2017 | $245,600 | $40,000 | $0 | $285,600 | $285,600 |
| 2016 | $245,600 | $40,000 | $0 | $285,600 | $285,600 |
| 2015 | $245,600 | $40,000 | $0 | $285,600 | $285,600 |
| 2014 | $245,600 | $40,000 | $0 | $285,600 | $285,600 |
| 2013 | $0 | $40,000 | $0 | $40,000 | $40,000 |
| 2012 | $0 | $40,000 | $0 | $0 | $0 |
| 2011 | $0 | $4,500 | $0 | $0 | $0 |
| 2010 | $0 | $40,000 | $0 | $0 | $0 |
Deed and Sales History
| 1 | 06/05/2015 | SWD | STATUTORY WARRANTY DEED | PHASE FIVE DEVELOPMENT LLC | HERGERT LINDA J | | | $284,900.00 | 128111 | 2015-04752 |
Payout Agreement
| No payout information available.. |