Property
Account |
| Property ID: | 28724 | Abbreviated Legal Description: | VILLAGES OF GARRISON CREEK PUD PHASE VIII LOT 189 |
| Parcel Number: | 350736040016 | Agent Code: | |
| Type: | Real | | |
| Tax Area: | 77 - CP-250-F | Land Use Code | 11 |
| Open Space: | N | DFL | N |
| Historic Property: | N | Remodel Property: | N |
| Multi-Family Redevelopment: | N | | |
| Township: | 7 | Section: | 36 |
| Range: | 35 |
Location |
| Address: | 1164 SE CREEKSIDE DR WA 99324 | Mapsco: | |
| Neighborhood: | G SFR | Map ID: | |
| Neighborhood CD: | 114011 |
Owner |
| Name: | JOHNSON JOHN | Owner ID: | 71194 |
| Mailing Address: | 1164 SE CREEKSIDE DR COLLEGE PLACE, WA 99324 | % Ownership: | 100.0000000000% |
| | | Exemptions: | |
Taxes and Assessment Details
Values
| (+) Improvement Homesite Value: | + | $0 | |
| (+) Improvement Non-Homesite Value: | + | $430,210 | |
| (+) Land Homesite Value: | + | $0 | |
| (+) Land Non-Homesite Value: | + | $100,000 | |
| (+) Curr Use (HS): | + | $0 | $0 |
| (+) Curr Use (NHS): | + | $0 | $0 |
| | | -------------------------- | |
| (=) Market Value: | = | $530,210 | |
| (–) Productivity Loss: | – | $0 | |
| | | -------------------------- | |
| (=) Subtotal: | = | $530,210 | |
| (+) Senior Appraised Value: | + | $0 | |
| (+) Non-Senior Appraised Value: | + | $530,210 | |
| | | -------------------------- | |
| (=) Total Appraised Value: | = | $530,210 | |
| (–) Senior Exemption Loss: | – | $0 | |
| (–) Exemption Loss: | – | $0 | |
| | | -------------------------- | |
| (=) Taxable Value: | = | $530,210 | |
Taxing Jurisdiction
| Owner: | JOHNSON JOHN | | |
| % Ownership: | 100.0000000000% | | |
| Total Value: | $530,210 | | |
| Tax Area: | 77 - CP-250-F |
| CERFD | CURRENT EXPENSE REFUND 010 | 0.0000000000 | $530,210 | $530,210 | $0.00 | | |
| CURREXP | CURRENT EXPENSE 010 | 1.0175366760 | $530,210 | $530,210 | $539.51 | | |
| HUMNSERV | HUMAN SERVICES 119 | 0.0250000000 | $530,210 | $530,210 | $13.26 | | |
| SLDREL | SOLDIERS RELIEF 121 | 0.0155990005 | $530,210 | $530,210 | $8.27 | | |
| COLLPLBOND | C OF CP BOND 644 | 0.4374241808 | $530,210 | $530,210 | $231.93 | | |
| COLLPLGEN | CITY OF CP 632 | 1.4453819216 | $530,210 | $530,210 | $766.36 | | |
| EMERGSER | EMS 147 | 0.3792580840 | $530,210 | $530,210 | $201.09 | | |
| EMSRFD | EMS REFUND 147 | 0.0000000000 | $530,210 | $530,210 | $0.00 | | |
| RURALLIB | RURAL LIBRARY 623 | 0.3710609029 | $530,210 | $530,210 | $196.74 | | |
| PORTRFD | PORT REFUND 640 | 0.0000000000 | $530,210 | $530,210 | $0.00 | | |
| PORTWWGEN | PORT OF WW 640 | 0.2460186015 | $530,210 | $530,210 | $130.44 | | |
| SD250BOND | SD #250 BOND 773 | 1.4560608159 | $530,210 | $530,210 | $772.02 | | |
| SD250GEN | SD #250 GENERAL 770 | 2.3880724087 | $530,210 | $530,210 | $1,266.18 | | |
| ST2 | STATE SCHOOL PART 2 600 | 0.8131451643 | $530,210 | $530,210 | $431.14 | | |
| STATESCHL | STATE SCHOOL 600 | 1.5158548041 | $530,210 | $530,210 | $803.72 | | |
| STREFUND | STATE REFUND LEVY 603 | 0.0000000000 | $530,210 | $530,210 | $0.00 | | |
| | Total Tax Rate: | 10.1104125603 | | | | | |
| | | | | Taxes w/Current Exemptions: | $5,360.66 | | |
| | | | | Taxes w/o Exemptions: | $5,360.66 | | |
Improvement / Building
| Improvement #1: | RESIDENTIAL | State Code: | 11 | 1932.0 sqft | Value: | $430,210 |
| Exterior Wall: | HARDBOARD | Heating/Cooling: | WARM & COOLED AIR | | Number of Bathrooms: | 2 | Number of Bedrooms: | 2 | | Plumbing: | 12 | Roof Covering: | COMP SHINGLE |
|
| | Type | Description | Class CD | Sub Class CD | Year Built | Area |
| | MA | Main Area | 1 | 40 | 2017 | 1932.0 |
| | ATG | Attached Garage | 1 | 40 | 2017 | 508.0 |
| | PRC | PORCH W STEPS, ROOF,CEILED | 1 | 40 | 2017 | 30.0 |
| | OSP | Open | 1 | 40 | 2017 | 160.0 |
| | SI1 | SITE IMPROVEMENT | 1 | 40 | 2017 | 3.0 |
| | GFP | GAS FIREPLACE | 1 | 40 | 2017 | 1.0 |
Sketch
Property Image
Land
| 1 | RES 1 | Converted: Residential | 0.2164 | 9428.00 | 0.00 | 0.00 | 1.00 | $100,000 | $0 |
Roll Value History
| 2026 | N/A | N/A | N/A | N/A | N/A |
| 2025 | $374,280 | $175,000 | $0 | $549,280 | $549,280 |
| 2024 | $430,210 | $100,000 | $0 | $530,210 | $530,210 |
| 2023 | $430,210 | $100,000 | $0 | $530,210 | $530,210 |
| 2022 | $430,210 | $100,000 | $0 | $530,210 | $530,210 |
| 2021 | $318,680 | $100,000 | $0 | $418,680 | $418,680 |
| 2020 | $303,500 | $100,000 | $0 | $403,500 | $403,500 |
| 2019 | $308,500 | $95,000 | $0 | $403,500 | $403,500 |
| 2018 | $308,500 | $95,000 | $0 | $403,500 | $403,500 |
| 2017 | $220,760 | $85,000 | $0 | $305,760 | $305,760 |
| 2016 | $0 | $85,000 | $0 | $85,000 | $85,000 |
| 2015 | $0 | $85,000 | $0 | $85,000 | $85,000 |
| 2014 | $0 | $85,000 | $0 | $85,000 | $85,000 |
| 2013 | $0 | $75,000 | $0 | $75,000 | $75,000 |
| 2012 | $0 | $75,000 | $0 | $0 | $0 |
| 2011 | $0 | $4,600 | $0 | $0 | $0 |
| 2010 | $0 | $75,000 | $0 | $0 | $0 |
Deed and Sales History
| 1 | 06/16/2025 | SWD | STATUTORY WARRANTY DEED | JOHNSON JOHN | SOOD JENNIFER | | | $580,000.00 | 149538 | 2025-03377 |
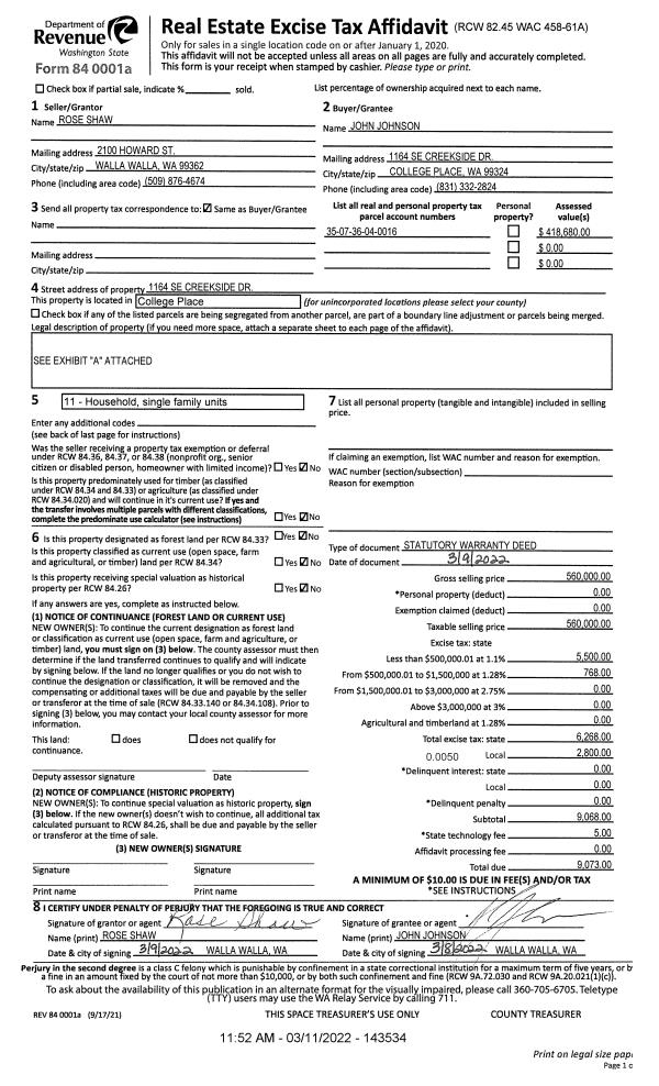
| 2 | 03/11/2022 | SWD | STATUTORY WARRANTY DEED | SHAW ROSE | JOHNSON JOHN | | | $560,000.00 | 143534 | 2022-02078 |
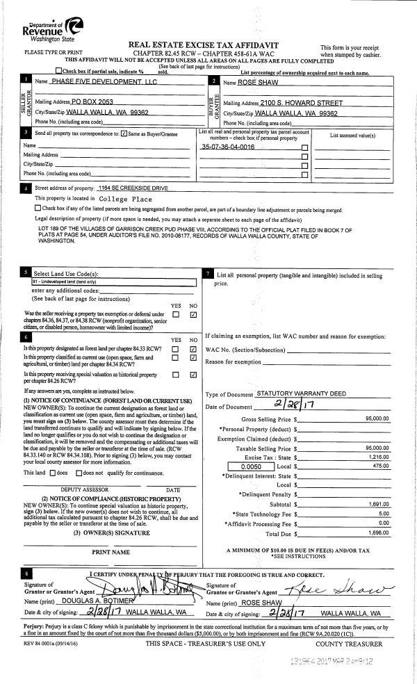
| 3 | 03/02/2017 | SWD | STATUTORY WARRANTY DEED | PHASE FIVE DEVELOPMENT LLC | SHAW ROSE | | | $95,000.00 | 131964 | 2017-01611 |
Payout Agreement
| No payout information available.. |