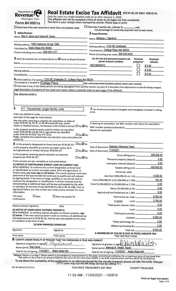
Property
Account |
| Property ID: | 28721 | Abbreviated Legal Description: | VILLAGES OF GARRISON CREEK PUD PHASE VIII LOT 185 |
| Parcel Number: | 350736040012 | Agent Code: | |
| Type: | Real | | |
| Tax Area: | 77 - CP-250-F | Land Use Code | 11 |
| Open Space: | N | DFL | N |
| Historic Property: | N | Remodel Property: | N |
| Multi-Family Redevelopment: | N | | |
| Township: | 7 | Section: | 36 |
| Range: | 35 |
Location |
| Address: | 1124 SE CREEKSIDE DR WA 99324 | Mapsco: | |
| Neighborhood: | G SFR | Map ID: | |
| Neighborhood CD: | 114011 |
Owner |
| Name: | STANFORD BARBARA J | Owner ID: | 2170 |
| Mailing Address: | 1124 SE CREEKSIDE DR COLLEGE PLACE, WA 99324 | % Ownership: | 100.0000000000% |
| | | Exemptions: | |
Taxes and Assessment Details
Property Tax Information as of
02/21/2026
Click on "Statement Details" to expand or collapse a tax statement.
* Please enter a valid date ** Please enter a valid date *
Statement Details |
| | TOTAL: | $0.00 | $0.00 | $0.00 | $0.00 | $0.00 | $0.00 |
|
| | $0.00 | $0.00 | $0.00 | $0.00 | $0.00 | $0.00 |
Values
| (+) Improvement Homesite Value: | + | $0 | |
| (+) Improvement Non-Homesite Value: | + | $424,590 | |
| (+) Land Homesite Value: | + | $0 | |
| (+) Land Non-Homesite Value: | + | $100,000 | |
| (+) Curr Use (HS): | + | $0 | $0 |
| (+) Curr Use (NHS): | + | $0 | $0 |
| | | -------------------------- | |
| (=) Market Value: | = | $524,590 | |
| (–) Productivity Loss: | – | $0 | |
| | | -------------------------- | |
| (=) Subtotal: | = | $524,590 | |
| (+) Senior Appraised Value: | + | $0 | |
| (+) Non-Senior Appraised Value: | + | $524,590 | |
| | | -------------------------- | |
| (=) Total Appraised Value: | = | $524,590 | |
| (–) Senior Exemption Loss: | – | $0 | |
| (–) Exemption Loss: | – | $0 | |
| | | -------------------------- | |
| (=) Taxable Value: | = | $524,590 | |
Taxing Jurisdiction
| Owner: | STANFORD BARBARA J | | |
| % Ownership: | 100.0000000000% | | |
| Total Value: | $524,590 | | |
| Tax Area: | 77 - CP-250-F |
| CERFD | CURRENT EXPENSE REFUND 010 | 0.0000000000 | $524,590 | $524,590 | $0.00 | | |
| CURREXP | CURRENT EXPENSE 010 | 1.0175366760 | $524,590 | $524,590 | $533.79 | | |
| HUMNSERV | HUMAN SERVICES 119 | 0.0250000000 | $524,590 | $524,590 | $13.11 | | |
| SLDREL | SOLDIERS RELIEF 121 | 0.0155990005 | $524,590 | $524,590 | $8.18 | | |
| COLLPLBOND | C OF CP BOND 644 | 0.4374241808 | $524,590 | $524,590 | $229.47 | | |
| COLLPLGEN | CITY OF CP 632 | 1.4453819216 | $524,590 | $524,590 | $758.23 | | |
| EMERGSER | EMS 147 | 0.3792580840 | $524,590 | $524,590 | $198.95 | | |
| EMSRFD | EMS REFUND 147 | 0.0000000000 | $524,590 | $524,590 | $0.00 | | |
| RURALLIB | RURAL LIBRARY 623 | 0.3710609029 | $524,590 | $524,590 | $194.65 | | |
| PORTRFD | PORT REFUND 640 | 0.0000000000 | $524,590 | $524,590 | $0.00 | | |
| PORTWWGEN | PORT OF WW 640 | 0.2460186015 | $524,590 | $524,590 | $129.06 | | |
| SD250BOND | SD #250 BOND 773 | 1.4560608159 | $524,590 | $524,590 | $763.83 | | |
| SD250GEN | SD #250 GENERAL 770 | 2.3880724087 | $524,590 | $524,590 | $1,252.76 | | |
| ST2 | STATE SCHOOL PART 2 600 | 0.8131451643 | $524,590 | $524,590 | $426.57 | | |
| STATESCHL | STATE SCHOOL 600 | 1.5158548041 | $524,590 | $524,590 | $795.20 | | |
| STREFUND | STATE REFUND LEVY 603 | 0.0000000000 | $524,590 | $524,590 | $0.00 | | |
| | Total Tax Rate: | 10.1104125603 | | | | | |
| | | | | Taxes w/Current Exemptions: | $5,303.80 | | |
| | | | | Taxes w/o Exemptions: | $5,303.80 | | |
Improvement / Building
| Improvement #1: | RESIDENTIAL | State Code: | 11 | 1916.0 sqft | Value: | $424,590 |
| Exterior Wall: | HARDBOARD | Heating/Cooling: | WARM & COOLED AIR | | Number of Bathrooms: | 2 | Number of Bedrooms: | 3 | | Plumbing: | 10 | Roof Covering: | COMP SHINGLE |
|
| | Type | Description | Class CD | Sub Class CD | Year Built | Area |
| | MA | Main Area | 1 | 40 | 2011 | 1916.0 |
| | SI1 | SITE IMPROVEMENT | 1 | 40 | 2011 | 3.0 |
| | ATG | Attached Garage | 1 | 40 | 2011 | 400.0 |
| | RPO | OPEN PORCH W/ROOF | 1 | 40 | 2011 | 168.0 |
| | GFP | GAS FIREPLACE | 1 | 40 | 2011 | 1.0 |
| | RPC | OPEN PORCH W/ROOF , CEILED | 1 | 40 | 2011 | 128.0 |
Sketch
Property Image
Land
| 1 | RES 1 | Converted: Residential | 0.1555 | 6772.00 | 0.00 | 0.00 | 1.00 | $100,000 | $0 |
Roll Value History
| 2026 | N/A | N/A | N/A | N/A | N/A |
| 2025 | $369,390 | $175,000 | $0 | $544,390 | $544,390 |
| 2024 | $424,590 | $100,000 | $0 | $524,590 | $524,590 |
| 2023 | $424,590 | $100,000 | $0 | $524,590 | $524,590 |
| 2022 | $424,590 | $100,000 | $0 | $524,590 | $524,590 |
| 2021 | $314,510 | $100,000 | $0 | $414,510 | $414,510 |
| 2020 | $268,810 | $100,000 | $0 | $368,810 | $368,810 |
| 2019 | $273,810 | $95,000 | $0 | $368,810 | $368,810 |
| 2018 | $260,770 | $95,000 | $0 | $355,770 | $355,770 |
| 2017 | $257,880 | $85,000 | $0 | $342,880 | $342,880 |
| 2016 | $257,880 | $85,000 | $0 | $342,880 | $342,880 |
| 2015 | $245,600 | $85,000 | $0 | $330,600 | $330,600 |
| 2014 | $245,600 | $85,000 | $0 | $330,600 | $330,600 |
| 2013 | $243,900 | $75,000 | $0 | $318,900 | $318,900 |
| 2012 | $78,900 | $75,000 | $0 | $0 | $0 |
| 2011 | $0 | $4,600 | $0 | $0 | $0 |
| 2010 | $243,900 | $75,000 | $0 | $0 | $0 |
Deed and Sales History
| 1 | 11/05/2021 | SWD | STATUTORY WARRANTY DEED | DAVIS RAY H & VERNA M | STANFORD BARBARA J | | | $559,000.00 | 142819 | 2021-13315 |
| 2 | 05/16/2011 | WARRANTY D | WARRANTY DEED | PHASE FIVE DEVELOPMENT LLC | DAVIS, RAY H & VERNA M | | | $75,000.00 | 120148 | 2011-03861 |
Payout Agreement
| No payout information available.. |