Property
Account |
| Property ID: | 28714 | Abbreviated Legal Description: | VILLAGES OF GARRISON CREEK PUD PHASE VIII LOT 177 |
| Parcel Number: | 350736040004 | Agent Code: | |
| Type: | Real | | |
| Tax Area: | 77 - CP-250-F | Land Use Code | 11 |
| Open Space: | N | DFL | N |
| Historic Property: | N | Remodel Property: | N |
| Multi-Family Redevelopment: | N | | |
| Township: | 7 | Section: | 36 |
| Range: | 35 |
Location |
| Address: | 738 SE GOLDENEYE DR WA 99324 | Mapsco: | |
| Neighborhood: | G SFR | Map ID: | |
| Neighborhood CD: | 114011 |
Owner |
| Name: | MCFADDEN ALAN & LINDA | Owner ID: | 61604 |
| Mailing Address: | 738 SE GOLDENEYE DR COLLEGE PLACE, WA 99324 | % Ownership: | 100.0000000000% |
| | | Exemptions: | |
Taxes and Assessment Details
Values
| (+) Improvement Homesite Value: | + | $0 | |
| (+) Improvement Non-Homesite Value: | + | $399,850 | |
| (+) Land Homesite Value: | + | $0 | |
| (+) Land Non-Homesite Value: | + | $75,000 | |
| (+) Curr Use (HS): | + | $0 | $0 |
| (+) Curr Use (NHS): | + | $0 | $0 |
| | | -------------------------- | |
| (=) Market Value: | = | $474,850 | |
| (–) Productivity Loss: | – | $0 | |
| | | -------------------------- | |
| (=) Subtotal: | = | $474,850 | |
| (+) Senior Appraised Value: | + | $0 | |
| (+) Non-Senior Appraised Value: | + | $474,850 | |
| | | -------------------------- | |
| (=) Total Appraised Value: | = | $474,850 | |
| (–) Senior Exemption Loss: | – | $0 | |
| (–) Exemption Loss: | – | $0 | |
| | | -------------------------- | |
| (=) Taxable Value: | = | $474,850 | |
Taxing Jurisdiction
| Owner: | MCFADDEN ALAN & LINDA | | |
| % Ownership: | 100.0000000000% | | |
| Total Value: | $474,850 | | |
| Tax Area: | 77 - CP-250-F |
| CERFD | CURRENT EXPENSE REFUND 010 | 0.0000000000 | $474,850 | $474,850 | $0.00 | | |
| CURREXP | CURRENT EXPENSE 010 | 1.0175366760 | $474,850 | $474,850 | $483.18 | | |
| HUMNSERV | HUMAN SERVICES 119 | 0.0250000000 | $474,850 | $474,850 | $11.87 | | |
| SLDREL | SOLDIERS RELIEF 121 | 0.0155990005 | $474,850 | $474,850 | $7.41 | | |
| COLLPLBOND | C OF CP BOND 644 | 0.4374241808 | $474,850 | $474,850 | $207.71 | | |
| COLLPLGEN | CITY OF CP 632 | 1.4453819216 | $474,850 | $474,850 | $686.34 | | |
| EMERGSER | EMS 147 | 0.3792580840 | $474,850 | $474,850 | $180.09 | | |
| EMSRFD | EMS REFUND 147 | 0.0000000000 | $474,850 | $474,850 | $0.00 | | |
| RURALLIB | RURAL LIBRARY 623 | 0.3710609029 | $474,850 | $474,850 | $176.20 | | |
| PORTRFD | PORT REFUND 640 | 0.0000000000 | $474,850 | $474,850 | $0.00 | | |
| PORTWWGEN | PORT OF WW 640 | 0.2460186015 | $474,850 | $474,850 | $116.82 | | |
| SD250BOND | SD #250 BOND 773 | 1.4560608159 | $474,850 | $474,850 | $691.41 | | |
| SD250GEN | SD #250 GENERAL 770 | 2.3880724087 | $474,850 | $474,850 | $1,133.98 | | |
| ST2 | STATE SCHOOL PART 2 600 | 0.8131451643 | $474,850 | $474,850 | $386.12 | | |
| STATESCHL | STATE SCHOOL 600 | 1.5158548041 | $474,850 | $474,850 | $719.80 | | |
| STREFUND | STATE REFUND LEVY 603 | 0.0000000000 | $474,850 | $474,850 | $0.00 | | |
| | Total Tax Rate: | 10.1104125603 | | | | | |
| | | | | Taxes w/Current Exemptions: | $4,800.93 | | |
| | | | | Taxes w/o Exemptions: | $4,800.93 | | |
Improvement / Building
| Improvement #1: | RESIDENTIAL | State Code: | 11 | 1686.0 sqft | Value: | $399,850 |
| Exterior Wall: | HARDBOARD | Heating/Cooling: | WARM & COOLED AIR | | Number of Bathrooms: | 2 | Number of Bedrooms: | 3 | | Plumbing: | 12 | Roof Covering: | COMP SHINGLE |
|
| | Type | Description | Class CD | Sub Class CD | Year Built | Area |
| | MA | Main Area | 1 | 40 | 2013 | 1686.0 |
| | SI1 | SITE IMPROVEMENT | 1 | 40 | 2013 | 3.0 |
| | ATG | Attached Garage | 1 | 40 | 2013 | 400.0 |
| | RPC | OPEN PORCH W/ROOF , CEILED | 1 | 40 | 2013 | 50.0 |
| | RPC | OPEN PORCH W/ROOF , CEILED | 1 | 40 | 2013 | 48.0 |
| | GFP | GAS FIREPLACE | 1 | 40 | 2013 | 1.0 |
Sketch
Property Image
Land
| 1 | RES 1 | Converted: Residential | 0.1032 | 4497.00 | 0.00 | 0.00 | 1.00 | $75,000 | $0 |
Roll Value History
| 2026 | N/A | N/A | N/A | N/A | N/A |
| 2025 | $365,260 | $135,000 | $0 | $500,260 | $500,260 |
| 2024 | $419,840 | $75,000 | $0 | $494,840 | $494,840 |
| 2023 | $399,850 | $75,000 | $0 | $474,850 | $474,850 |
| 2022 | $363,500 | $75,000 | $0 | $438,500 | $438,500 |
| 2021 | $290,800 | $75,000 | $0 | $365,800 | $365,800 |
| 2020 | $252,870 | $75,000 | $0 | $327,870 | $327,870 |
| 2019 | $287,870 | $40,000 | $0 | $327,870 | $327,870 |
| 2018 | $287,870 | $40,000 | $0 | $327,870 | $327,870 |
| 2017 | $264,100 | $40,000 | $0 | $304,100 | $304,100 |
| 2016 | $264,100 | $40,000 | $0 | $304,100 | $304,100 |
| 2015 | $264,100 | $40,000 | $0 | $304,100 | $304,100 |
| 2014 | $264,100 | $40,000 | $0 | $304,100 | $304,100 |
| 2013 | $83,000 | $40,000 | $0 | $123,000 | $123,000 |
| 2012 | $0 | $40,000 | $0 | $0 | $0 |
| 2011 | $0 | $4,500 | $0 | $0 | $0 |
| 2010 | $83,000 | $40,000 | $0 | $0 | $0 |
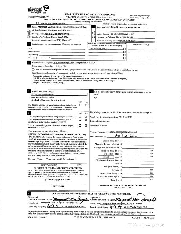
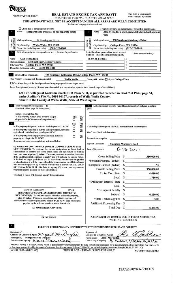
Deed and Sales History
| 1 | 08/22/2017 | SWD | STATUTORY WARRANTY DEED | DOUGLAS MARGARET MAE | MCFADDEN ALAN & LINDA | | | $350,000.00 | 133052 | 2017-06518 |
| 2 | 04/14/2016 | DPR | DEED OF PERSONAL REPRESENTATIVE | FANCIULLO MARGARET I | DOUGLAS MARGARET MAE | | | | 130024 | 2016-02758 |
| 3 | 03/25/2014 | SWD | STATUTORY WARRANTY DEED | PHASE FIVE DEVELOPMENT LLC | FANCIULLO MARGARET I | | | $314,900.00 | 125617 | 2014-02023 |
Payout Agreement
| No payout information available.. |