Property
Account |
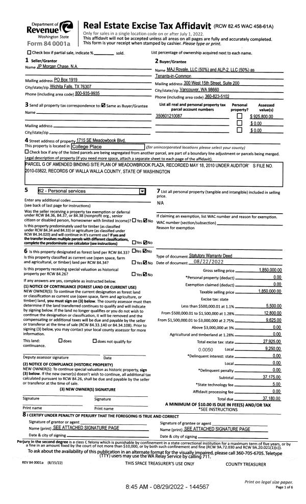
| Property ID: | 28709 | Abbreviated Legal Description: | 1-6-35 (PARCEL G OF AMENDED BINDING SITE PLAN SURVEY) PTN LY WITHINNE1/4NW1/4 |
| Parcel Number: | 350601210087 | Agent Code: | |
| Type: | Real | | |
| Tax Area: | 75 - CP 250 | Land Use Code | 62 |
| Open Space: | N | DFL | N |
| Historic Property: | N | Remodel Property: | N |
| Multi-Family Redevelopment: | N | | |
| Township: | 6 | Section: | 1 |
| Range: | 35 |
Location |
| Address: | 1715 SE MEADOWBROOK BLVD WA 99324 | Mapsco: | |
| Neighborhood: | COLLEGE PLACE 1 | Map ID: | |
| Neighborhood CD: | 1341 |
Owner |
| Name: | MAJ ROYALE LLC | Owner ID: | 72164 |
| Mailing Address: | ALP-2 LLC 300 WEST 15TH ST STE 200 VANCOUVER, WA 98660 | % Ownership: | 100.0000000000% |
| | | Exemptions: | |
Taxes and Assessment Details
Values
| (+) Improvement Homesite Value: | + | $0 | |
| (+) Improvement Non-Homesite Value: | + | $1,135,400 | |
| (+) Land Homesite Value: | + | $0 | |
| (+) Land Non-Homesite Value: | + | $211,300 | |
| (+) Curr Use (HS): | + | $0 | $0 |
| (+) Curr Use (NHS): | + | $0 | $0 |
| | | -------------------------- | |
| (=) Market Value: | = | $1,346,700 | |
| (–) Productivity Loss: | – | $0 | |
| | | -------------------------- | |
| (=) Subtotal: | = | $1,346,700 | |
| (+) Senior Appraised Value: | + | $0 | |
| (+) Non-Senior Appraised Value: | + | $1,346,700 | |
| | | -------------------------- | |
| (=) Total Appraised Value: | = | $1,346,700 | |
| (–) Senior Exemption Loss: | – | $0 | |
| (–) Exemption Loss: | – | $0 | |
| | | -------------------------- | |
| (=) Taxable Value: | = | $1,346,700 | |
Taxing Jurisdiction
| Owner: | MAJ ROYALE LLC | | |
| % Ownership: | 100.0000000000% | | |
| Total Value: | $1,346,700 | | |
| Tax Area: | 75 - CP 250 |
| CERFD | CURRENT EXPENSE REFUND 010 | 0.0000000000 | $1,346,700 | $1,346,700 | $0.00 | | |
| CURREXP | CURRENT EXPENSE 010 | 1.0175366760 | $1,346,700 | $1,346,700 | $1,370.32 | | |
| HUMNSERV | HUMAN SERVICES 119 | 0.0250000000 | $1,346,700 | $1,346,700 | $33.67 | | |
| SLDREL | SOLDIERS RELIEF 121 | 0.0155990005 | $1,346,700 | $1,346,700 | $21.01 | | |
| COLLPLBOND | C OF CP BOND 644 | 0.4374241808 | $1,346,700 | $1,346,700 | $589.08 | | |
| COLLPLGEN | CITY OF CP 632 | 1.4453819216 | $1,346,700 | $1,346,700 | $1,946.50 | | |
| EMERGSER | EMS 147 | 0.3792580840 | $1,346,700 | $1,346,700 | $510.75 | | |
| EMSRFD | EMS REFUND 147 | 0.0000000000 | $1,346,700 | $1,346,700 | $0.00 | | |
| RURALLIB | RURAL LIBRARY 623 | 0.3710609029 | $1,346,700 | $1,346,700 | $499.71 | | |
| PORTRFD | PORT REFUND 640 | 0.0000000000 | $1,346,700 | $1,346,700 | $0.00 | | |
| PORTWWGEN | PORT OF WW 640 | 0.2460186015 | $1,346,700 | $1,346,700 | $331.31 | | |
| SD250BOND | SD #250 BOND 773 | 1.4560608159 | $1,346,700 | $1,346,700 | $1,960.88 | | |
| SD250GEN | SD #250 GENERAL 770 | 2.3880724087 | $1,346,700 | $1,346,700 | $3,216.02 | | |
| ST2 | STATE SCHOOL PART 2 600 | 0.8131451643 | $1,346,700 | $1,346,700 | $1,095.06 | | |
| STATESCHL | STATE SCHOOL 600 | 1.5158548041 | $1,346,700 | $1,346,700 | $2,041.40 | | |
| STREFUND | STATE REFUND LEVY 603 | 0.0000000000 | $1,346,700 | $1,346,700 | $0.00 | | |
| | Total Tax Rate: | 10.1104125603 | | | | | |
| | | | | Taxes w/Current Exemptions: | $13,615.71 | | |
| | | | | Taxes w/o Exemptions: | $13,615.71 | | |
Improvement / Building
| Improvement #1: | COMMERCIAL | State Code: | 62 | 3864.0 sqft | Value: | $1,135,400 |
| | Type | Description | Class CD | Sub Class CD | Year Built | Area |
| | MA | Main Area | D | * | 2010 | 3864.0 |
| | SI1 | SITE IMPROVEMENT | D | * | 2010 | 18.0 |
| | KWP | Knee Walla Porch w/Glass | D | * | 2010 | 300.0 |
Sketch
Property Image
Land
| 1 | COM 1 | Converted: Commercial | 0.9700 | 42253.20 | 0.00 | 0.00 | 1.00 | $211,300 | $0 |
Roll Value History
| 2026 | N/A | N/A | N/A | N/A | N/A |
| 2025 | $2,719,100 | $211,300 | $0 | $2,930,400 | $2,930,400 |
| 2024 | $2,673,800 | $211,300 | $0 | $2,885,100 | $2,885,100 |
| 2023 | $1,135,400 | $211,300 | $0 | $1,346,700 | $1,346,700 |
| 2022 | $714,500 | $211,300 | $0 | $925,800 | $925,800 |
| 2021 | $714,500 | $211,300 | $0 | $925,800 | $925,800 |
| 2020 | $714,500 | $211,300 | $0 | $925,800 | $925,800 |
| 2019 | $735,200 | $190,600 | $0 | $925,800 | $925,800 |
| 2018 | $735,200 | $190,600 | $0 | $925,800 | $925,800 |
| 2017 | $735,200 | $190,600 | $0 | $925,800 | $925,800 |
| 2016 | $735,200 | $190,600 | $0 | $925,800 | $925,800 |
| 2015 | $735,200 | $190,600 | $0 | $925,800 | $925,800 |
| 2014 | $735,200 | $190,600 | $0 | $925,800 | $925,800 |
| 2013 | $735,200 | $190,600 | $0 | $925,800 | $925,800 |
| 2012 | $735,200 | $190,600 | $0 | $0 | $0 |
| 2011 | $0 | $190,600 | $0 | $0 | $0 |
| 2010 | $735,200 | $190,600 | $0 | $0 | $0 |
Deed and Sales History
| 1 | 12/19/2023 | SWD | STATUTORY WARRANTY DEED | MAJ ROYALE LLC | HAWK FAMILY EAST VALLEY LLC | | | $4,300,000.00 | 146948 | 2023-07363 |
| 2 | 08/29/2022 | SWD | STATUTORY WARRANTY DEED | JPMORGAN CHASE BANK NATIONAL ASSOC | MAJ ROYALE LLC | | | $1,850,000.00 | 144567 | 2022-07179 |
| 3 | 06/17/2010 | WARRANTY D | WARRANTY DEED | M V INVESTMENTS LLC | JP MORGAN CHASE BANK NATIONAL | | | $900,000.00 | 118632 | 2010-04666 |
Payout Agreement
| No payout information available.. |