Property
Account |
| Property ID: | 28695 | Abbreviated Legal Description: | TABLEROCK SUBDIVISION II TRACT A OF SHORT PLAT (PTN LOT 34) |
| Parcel Number: | 360604590053 | Agent Code: | |
| Type: | Real | | |
| Tax Area: | 5 - OL-140 | Land Use Code | 11 |
| Open Space: | N | DFL | N |
| Historic Property: | N | Remodel Property: | N |
| Multi-Family Redevelopment: | N | | |
| Township: | 6 | Section: | 4 |
| Range: | 36 |
Location |
| Address: | 313 COYOTE RIDGE DR WA 99362 | Mapsco: | |
| Neighborhood: | VG Res Rural/City Inf | Map ID: | |
| Neighborhood CD: | 615012 |
Owner |
| Name: | OLSON KEITH A & RHONDA B | Owner ID: | 5947 |
| Mailing Address: | 313 COYOTE RIDGE DR WALLA WALLA, WA 99362 | % Ownership: | 100.0000000000% |
| | | Exemptions: | |
Taxes and Assessment Details
Property Tax Information as of
02/21/2026
Click on "Statement Details" to expand or collapse a tax statement.
* Please enter a valid date ** Please enter a valid date *
Statement Details |
| | TOTAL: | $0.00 | $0.00 | $0.00 | $0.00 | $0.00 | $0.00 |
|
| | $0.00 | $0.00 | $0.00 | $0.00 | $0.00 | $0.00 |
Values
| (+) Improvement Homesite Value: | + | $0 | |
| (+) Improvement Non-Homesite Value: | + | $473,230 | |
| (+) Land Homesite Value: | + | $0 | |
| (+) Land Non-Homesite Value: | + | $120,000 | |
| (+) Curr Use (HS): | + | $0 | $0 |
| (+) Curr Use (NHS): | + | $0 | $0 |
| | | -------------------------- | |
| (=) Market Value: | = | $593,230 | |
| (–) Productivity Loss: | – | $0 | |
| | | -------------------------- | |
| (=) Subtotal: | = | $593,230 | |
| (+) Senior Appraised Value: | + | $0 | |
| (+) Non-Senior Appraised Value: | + | $593,230 | |
| | | -------------------------- | |
| (=) Total Appraised Value: | = | $593,230 | |
| (–) Senior Exemption Loss: | – | $0 | |
| (–) Exemption Loss: | – | $0 | |
| | | -------------------------- | |
| (=) Taxable Value: | = | $593,230 | |
Taxing Jurisdiction
| Owner: | OLSON KEITH A & RHONDA B | | |
| % Ownership: | 100.0000000000% | | |
| Total Value: | $593,230 | | |
| Tax Area: | 5 - OL-140 |
| CERFD | CURRENT EXPENSE REFUND 010 | 0.0000000000 | $593,230 | $593,230 | $0.00 | | |
| CURREXP | CURRENT EXPENSE 010 | 1.0175366760 | $593,230 | $593,230 | $603.63 | | |
| HUMNSERV | HUMAN SERVICES 119 | 0.0250000000 | $593,230 | $593,230 | $14.83 | | |
| SLDREL | SOLDIERS RELIEF 121 | 0.0155990005 | $593,230 | $593,230 | $9.25 | | |
| EMERGSER | EMS 147 | 0.3792580840 | $593,230 | $593,230 | $224.99 | | |
| EMSRFD | EMS REFUND 147 | 0.0000000000 | $593,230 | $593,230 | $0.00 | | |
| PORTRFD | PORT REFUND 640 | 0.0000000000 | $593,230 | $593,230 | $0.00 | | |
| PORTWWGEN | PORT OF WW 640 | 0.2460186015 | $593,230 | $593,230 | $145.95 | | |
| SD140BOND | SD #140 BOND 764 | 0.8342371393 | $593,230 | $593,230 | $494.89 | | |
| SD140GEN | SD #140 GENERAL 760 | 2.0646500647 | $593,230 | $593,230 | $1,224.81 | | |
| ST2 | STATE SCHOOL PART 2 600 | 0.8131451643 | $593,230 | $593,230 | $482.38 | | |
| STATESCHL | STATE SCHOOL 600 | 1.5158548041 | $593,230 | $593,230 | $899.25 | | |
| STREFUND | STATE REFUND LEVY 603 | 0.0000000000 | $593,230 | $593,230 | $0.00 | | |
| CWWBOND | C OF WW BOND 643 | 0.2760494372 | $593,230 | $593,230 | $163.76 | | |
| CWWGEN | CITY OF WW 631 | 1.6100204973 | $593,230 | $593,230 | $955.11 | | |
| CWWRFD | CITY OF WALLA WALLA REFUND 631 | 0.0000000000 | $593,230 | $593,230 | $0.00 | | |
| | Total Tax Rate: | 8.7973694689 | | | | | |
| | | | | Taxes w/Current Exemptions: | $5,218.85 | | |
| | | | | Taxes w/o Exemptions: | $5,218.85 | | |
Improvement / Building
| Improvement #1: | RESIDENTIAL | State Code: | 11 | 2211.0 sqft | Value: | $473,230 |
| Exterior Wall: | HARDBOARD | Heating/Cooling: | WARM & COOLED AIR | | Number of Bathrooms: | 2 | Number of Bedrooms: | 4 | | Plumbing: | 11 | Roof Covering: | COMP SHINGLE |
|
| | Type | Description | Class CD | Sub Class CD | Year Built | Area |
| | MA | Main Area | 1 | 45 | 2011 | 2211.0 |
| | GFP | GAS FIREPLACE | 1 | 45 | 0 | 1.0 |
| | RPC | OPEN PORCH W/ROOF , CEILED | 1 | 45 | 0 | 68.0 |
| | RPC | OPEN PORCH W/ROOF , CEILED | 1 | 45 | 0 | 184.0 |
| | SI1 | SITE IMPROVEMENT | 1 | 45 | 0 | 4.5 |
| | ATG | Attached Garage | 1 | 45 | 0 | 756.0 |
Sketch
Property Image
Land
| 1 | RES 1 | Converted: Residential | 0.2998 | 13061.00 | 0.00 | 0.00 | 1.00 | $120,000 | $0 |
Roll Value History
| 2026 | N/A | N/A | N/A | N/A | N/A |
| 2025 | $496,600 | $180,000 | $0 | $676,600 | $676,600 |
| 2024 | $496,890 | $120,000 | $0 | $616,890 | $616,890 |
| 2023 | $473,230 | $120,000 | $0 | $593,230 | $593,230 |
| 2022 | $430,210 | $95,000 | $0 | $525,210 | $525,210 |
| 2021 | $391,100 | $95,000 | $0 | $486,100 | $486,100 |
| 2020 | $292,580 | $95,000 | $0 | $387,580 | $387,580 |
| 2019 | $292,580 | $95,000 | $0 | $387,580 | $387,580 |
| 2018 | $298,730 | $60,000 | $0 | $358,730 | $358,730 |
| 2017 | $284,500 | $60,000 | $0 | $344,500 | $344,500 |
| 2016 | $284,500 | $60,000 | $0 | $344,500 | $344,500 |
| 2015 | $284,500 | $60,000 | $0 | $344,500 | $344,500 |
| 2014 | $284,500 | $60,000 | $0 | $344,500 | $344,500 |
| 2013 | $284,500 | $60,000 | $0 | $344,500 | $344,500 |
| 2012 | $232,900 | $65,000 | $0 | $0 | $0 |
| 2011 | $0 | $94,000 | $0 | $0 | $0 |
| 2010 | $0 | $94,000 | $0 | $0 | $0 |
| 2009 | $0 | $94,000 | $0 | $0 | $0 |
| 2008 | $0 | $94,000 | $0 | $0 | $0 |
| 2007 | $0 | $300 | $0 | $0 | $0 |
Deed and Sales History
| 1 | 08/14/2020 | SWD | STATUTORY WARRANTY DEED | BAKER ROBERT W & DEBRA K | OLSON KEITH A & RHONDA B | | | $488,000.00 | 139704 | 2020-08050 |
| 2 | 02/24/2012 | WARRANTY D | WARRANTY DEED | THOMASTON, GEORGE & ELIZABETH | BAKER, ROBERT W & DEBRA K | | | $355,000.00 | 121439 | 2012-01579 |
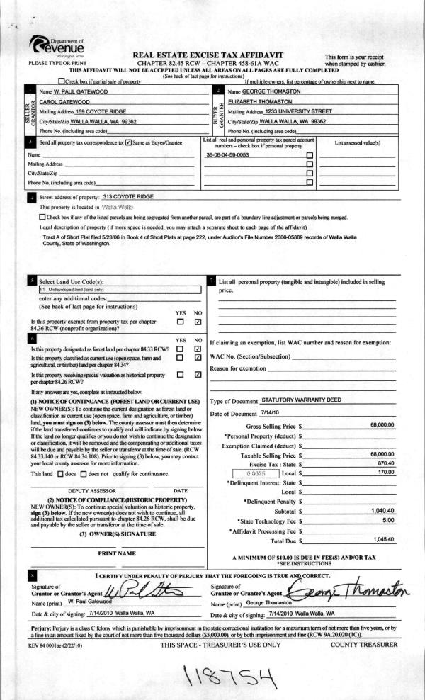
| 3 | 07/15/2010 | WARRANTY D | WARRANTY DEED | GATEWOOD, W PAUL & CAROL | THOMASTON, GEORGE & ELIZABETH | | | $68,000.00 | 118754 | 2010-05450 |
Payout Agreement
| No payout information available.. |