Property
Account |
| Property ID: | 28692 | Abbreviated Legal Description: | ELLIOTTS LOT 13 BLK 4 |
| Parcel Number: | 360729590413 | Agent Code: | |
| Type: | Real | | |
| Tax Area: | 1 - OL-140-F | Land Use Code | 11 |
| Open Space: | N | DFL | N |
| Historic Property: | N | Remodel Property: | N |
| Multi-Family Redevelopment: | N | | |
| Township: | 7 | Section: | 29 |
| Range: | 36 |
Location |
| Address: | 319 E CHESTNUT ST WA 99362 | Mapsco: | |
| Neighborhood: | A-Superior SFR | Map ID: | |
| Neighborhood CD: | 513211 |
Owner |
| Name: | ELSENBERG MATTIE HEWITT ET AL | Owner ID: | 61417 |
| Mailing Address: | 1775 SW KNOLL AVE BEND, OR 97702 | % Ownership: | 100.0000000000% |
| | | Exemptions: | |
Taxes and Assessment Details
Property Tax Information as of
02/21/2026
Click on "Statement Details" to expand or collapse a tax statement.
* Please enter a valid date ** Please enter a valid date *
Statement Details |
| | TOTAL: | $0.00 | $0.00 | $0.00 | $0.00 | $0.00 | $0.00 |
|
| | $0.00 | $0.00 | $0.00 | $0.00 | $0.00 | $0.00 |
Values
| (+) Improvement Homesite Value: | + | $0 | |
| (+) Improvement Non-Homesite Value: | + | $146,400 | |
| (+) Land Homesite Value: | + | $0 | |
| (+) Land Non-Homesite Value: | + | $37,500 | |
| (+) Curr Use (HS): | + | $0 | $0 |
| (+) Curr Use (NHS): | + | $0 | $0 |
| | | -------------------------- | |
| (=) Market Value: | = | $183,900 | |
| (–) Productivity Loss: | – | $0 | |
| | | -------------------------- | |
| (=) Subtotal: | = | $183,900 | |
| (+) Senior Appraised Value: | + | $0 | |
| (+) Non-Senior Appraised Value: | + | $183,900 | |
| | | -------------------------- | |
| (=) Total Appraised Value: | = | $183,900 | |
| (–) Senior Exemption Loss: | – | $0 | |
| (–) Exemption Loss: | – | $0 | |
| | | -------------------------- | |
| (=) Taxable Value: | = | $183,900 | |
Taxing Jurisdiction
| Owner: | ELSENBERG MATTIE HEWITT ET AL | | |
| % Ownership: | 100.0000000000% | | |
| Total Value: | $183,900 | | |
| Tax Area: | 1 - OL-140-F |
| CERFD | CURRENT EXPENSE REFUND 010 | 0.0000000000 | $183,900 | $183,900 | $0.00 | | |
| CURREXP | CURRENT EXPENSE 010 | 1.0175366760 | $183,900 | $183,900 | $187.12 | | |
| HUMNSERV | HUMAN SERVICES 119 | 0.0250000000 | $183,900 | $183,900 | $4.60 | | |
| SLDREL | SOLDIERS RELIEF 121 | 0.0155990005 | $183,900 | $183,900 | $2.87 | | |
| EMERGSER | EMS 147 | 0.3792580840 | $183,900 | $183,900 | $69.75 | | |
| EMSRFD | EMS REFUND 147 | 0.0000000000 | $183,900 | $183,900 | $0.00 | | |
| PORTRFD | PORT REFUND 640 | 0.0000000000 | $183,900 | $183,900 | $0.00 | | |
| PORTWWGEN | PORT OF WW 640 | 0.2460186015 | $183,900 | $183,900 | $45.24 | | |
| SD140BOND | SD #140 BOND 764 | 0.8342371393 | $183,900 | $183,900 | $153.42 | | |
| SD140GEN | SD #140 GENERAL 760 | 2.0646500647 | $183,900 | $183,900 | $379.69 | | |
| ST2 | STATE SCHOOL PART 2 600 | 0.8131451643 | $183,900 | $183,900 | $149.54 | | |
| STATESCHL | STATE SCHOOL 600 | 1.5158548041 | $183,900 | $183,900 | $278.77 | | |
| STREFUND | STATE REFUND LEVY 603 | 0.0000000000 | $183,900 | $183,900 | $0.00 | | |
| CWWBOND | C OF WW BOND 643 | 0.2760494372 | $183,900 | $183,900 | $50.77 | | |
| CWWGEN | CITY OF WW 631 | 1.6100204973 | $183,900 | $183,900 | $296.08 | | |
| CWWRFD | CITY OF WALLA WALLA REFUND 631 | 0.0000000000 | $183,900 | $183,900 | $0.00 | | |
| | Total Tax Rate: | 8.7973694689 | | | | | |
| | | | | Taxes w/Current Exemptions: | $1,617.85 | | |
| | | | | Taxes w/o Exemptions: | $1,617.85 | | |
Improvement / Building
| Improvement #1: | RESIDENTIAL | State Code: | 11 | 692.0 sqft | Value: | $146,400 |
| Exterior Wall: | SIDING | Heating/Cooling: | WARM & COOLED AIR | | Number of Bathrooms: | 1 | Number of Bedrooms: | 2 | | Plumbing: | 6 | Roof Covering: | COMP SHINGLE |
|
| | Type | Description | Class CD | Sub Class CD | Year Built | Area |
| | MA | Main Area | 1 | 30 | 1939 | 692.0 |
| | SI1 | SITE IMPROVEMENT | 1 | 30 | 1939 | 1.5 |
| | BASE | BASEMENT | 1 | 30 | 1939 | 289.0 |
| | DTG | Detached Garage | 1 | 30 | 1939 | 240.0 |
| | RPS | PORCH W/STEPS,ROOF | 1 | 30 | 1939 | 15.0 |
Sketch
Property Image
Land
| 1 | RES 1 | Converted: Residential | 0.1377 | 6000.00 | 0.00 | 0.00 | 1.00 | $37,500 | $0 |
Roll Value History
| 2026 | N/A | N/A | N/A | N/A | N/A |
| 2025 | $148,500 | $60,000 | $0 | $208,500 | $208,500 |
| 2024 | $135,000 | $60,000 | $0 | $195,000 | $195,000 |
| 2023 | $146,400 | $37,500 | $0 | $183,900 | $183,900 |
| 2022 | $146,400 | $37,500 | $0 | $183,900 | $183,900 |
| 2021 | $146,400 | $37,500 | $0 | $183,900 | $183,900 |
| 2020 | $122,000 | $37,500 | $0 | $159,500 | $159,500 |
| 2019 | $122,000 | $37,500 | $0 | $159,500 | $159,500 |
| 2018 | $122,000 | $37,500 | $0 | $159,500 | $159,500 |
| 2017 | $107,690 | $24,000 | $0 | $131,690 | $131,690 |
| 2016 | $97,900 | $24,000 | $0 | $121,900 | $121,900 |
| 2015 | $97,900 | $24,000 | $0 | $121,900 | $121,900 |
| 2014 | $89,000 | $24,000 | $0 | $113,000 | $113,000 |
| 2013 | $89,000 | $24,000 | $0 | $113,000 | $113,000 |
| 2012 | $97,200 | $24,000 | $0 | $0 | $0 |
| 2011 | $103,600 | $24,000 | $0 | $0 | $0 |
| 2010 | $97,500 | $24,000 | $0 | $0 | $0 |
| 2009 | $111,000 | $24,000 | $0 | $0 | $0 |
| 2008 | $92,600 | $36,000 | $0 | $0 | $0 |
| 2007 | $55,500 | $12,000 | $0 | $0 | $0 |
Deed and Sales History
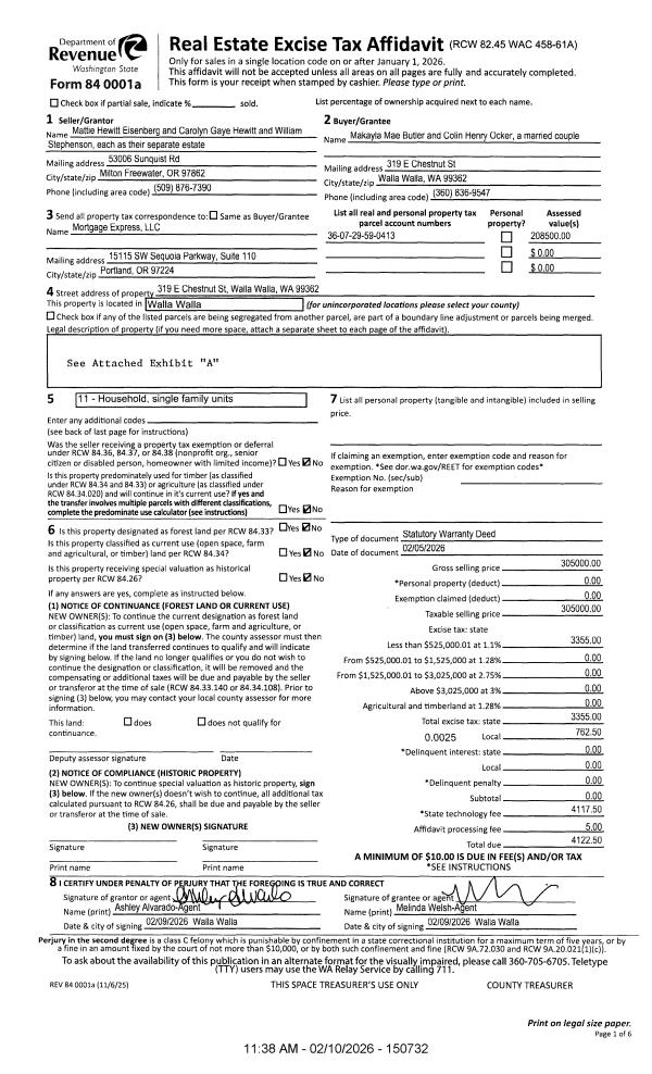
| 1 | 08/03/2017 | SWD | STATUTORY WARRANTY DEED | HONSINGER CHAD & CARI BASE | ELSENBERG MATTIE HEWITT ET AL | | | $170,000.00 | 132911 | 2017-05926 |
| 2 | 01/30/2015 | SWD | STATUTORY WARRANTY DEED | LUGAR FREDRICK L | HONSINGER CHAD & CARI BASE | | | $125,000.00 | 127355 | 2015-00797 |
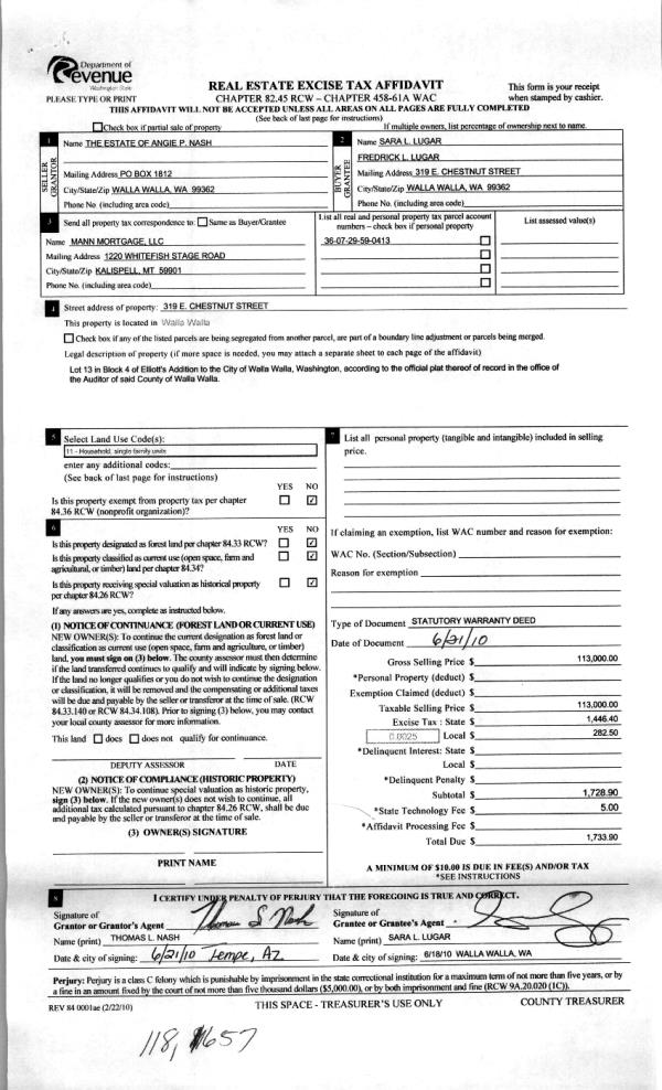
| 3 | 06/24/2010 | WARRANTY D | WARRANTY DEED | NASH, ANGELINE P ESTATE OF | LUGAR, FREDRICK L | | | $113,000.00 | 118657 | 2010-04898 |
| 4 | 06/24/2010 | QCD | QUIT CLAIM DEED | LUGAR, KIMBERLY | LUGAR, FREDRICK L | | | $0.00 | 118658 | 2010-04899 |
| 5 | 09/22/1986 | WARRANTY D | WARRANTY DEED | | | | | $37,000.00 | 0 | 1598-607354 |
Payout Agreement
| No payout information available.. |