Property
Account |
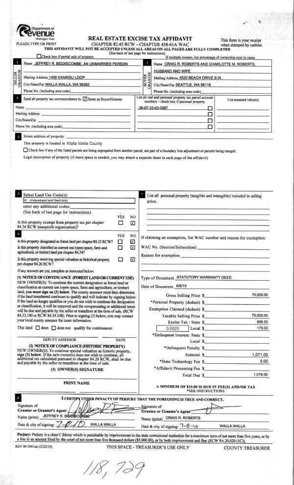
| Property ID: | 28680 | Abbreviated Legal Description: | 33-7-36 PTN TAX 11A IN NE1/4SW1/4SE1/4 (TRACT III OF S/P) |
| Parcel Number: | 360733430087 | Agent Code: | |
| Type: | Real | | |
| Tax Area: | 101 - 140-4 | Land Use Code | 91 |
| Open Space: | N | DFL | N |
| Historic Property: | N | Remodel Property: | N |
| Multi-Family Redevelopment: | N | | |
| Township: | 7 | Section: | 33 |
| Range: | 36 |
Location |
| Address: | WA 99362 | Mapsco: | |
| Neighborhood: | VG Res Land Contig | Map ID: | |
| Neighborhood CD: | 615097 |
Owner |
| Name: | ROBERTS CRAIG R & CHARLOTTE M | Owner ID: | 44986 |
| Mailing Address: | 10034 42ND AVE SW SEATTLE, WA 98146 | % Ownership: | 100.0000000000% |
| | | Exemptions: | |
Taxes and Assessment Details
Property Tax Information as of
02/21/2026
Click on "Statement Details" to expand or collapse a tax statement.
* Please enter a valid date ** Please enter a valid date *
Statement Details |
| | TOTAL: | $0.00 | $0.00 | $0.00 | $0.00 | $0.00 | $0.00 |
|
| | $0.00 | $0.00 | $0.00 | $0.00 | $0.00 | $0.00 |
Values
| (+) Improvement Homesite Value: | + | $0 | |
| (+) Improvement Non-Homesite Value: | + | $0 | |
| (+) Land Homesite Value: | + | $0 | |
| (+) Land Non-Homesite Value: | + | $13,080 | |
| (+) Curr Use (HS): | + | $0 | $0 |
| (+) Curr Use (NHS): | + | $0 | $0 |
| | | -------------------------- | |
| (=) Market Value: | = | $13,080 | |
| (–) Productivity Loss: | – | $0 | |
| | | -------------------------- | |
| (=) Subtotal: | = | $13,080 | |
| (+) Senior Appraised Value: | + | $0 | |
| (+) Non-Senior Appraised Value: | + | $13,080 | |
| | | -------------------------- | |
| (=) Total Appraised Value: | = | $13,080 | |
| (–) Senior Exemption Loss: | – | $0 | |
| (–) Exemption Loss: | – | $0 | |
| | | -------------------------- | |
| (=) Taxable Value: | = | $13,080 | |
Taxing Jurisdiction
| Owner: | ROBERTS CRAIG R & CHARLOTTE M | | |
| % Ownership: | 100.0000000000% | | |
| Total Value: | $13,080 | | |
| Tax Area: | 101 - 140-4 |
| CERFD | CURRENT EXPENSE REFUND 010 | 0.0000000000 | $13,080 | $13,080 | $0.00 | | |
| CURREXP | CURRENT EXPENSE 010 | 1.0175366760 | $13,080 | $13,080 | $13.31 | | |
| HUMNSERV | HUMAN SERVICES 119 | 0.0250000000 | $13,080 | $13,080 | $0.33 | | |
| SLDREL | SOLDIERS RELIEF 121 | 0.0155990005 | $13,080 | $13,080 | $0.20 | | |
| EMERGSER | EMS 147 | 0.3792580840 | $13,080 | $13,080 | $4.96 | | |
| EMSRFD | EMS REFUND 147 | 0.0000000000 | $13,080 | $13,080 | $0.00 | | |
| FD4EXP | FD #4 EXPENSE 686 | 0.8836993059 | $13,080 | $13,080 | $11.56 | | |
| RLBRFD | RURAL LIBRARY REFUND 623 | 0.0000000000 | $13,080 | $13,080 | $0.00 | | |
| RURALLIB | RURAL LIBRARY 623 | 0.3710609029 | $13,080 | $13,080 | $4.85 | | |
| PORTRFD | PORT REFUND 640 | 0.0000000000 | $13,080 | $13,080 | $0.00 | | |
| PORTWWGEN | PORT OF WW 640 | 0.2460186015 | $13,080 | $13,080 | $3.22 | | |
| SD140BOND | SD #140 BOND 764 | 0.8342371393 | $13,080 | $13,080 | $10.91 | | |
| SD140GEN | SD #140 GENERAL 760 | 2.0646500647 | $13,080 | $13,080 | $27.01 | | |
| ST2 | STATE SCHOOL PART 2 600 | 0.8131451643 | $13,080 | $13,080 | $10.64 | | |
| STATESCHL | STATE SCHOOL 600 | 1.5158548041 | $13,080 | $13,080 | $19.83 | | |
| STREFUND | STATE REFUND LEVY 603 | 0.0000000000 | $13,080 | $13,080 | $0.00 | | |
| COROAD | COUNTY ROAD 115 | 1.6549953990 | $13,080 | $13,080 | $21.65 | | |
| CRPRD | COUNTY ROAD REFUND 115 | 0.0000000000 | $13,080 | $13,080 | $0.00 | | |
| | Total Tax Rate: | 9.8210551422 | | | | | |
| | | | | Taxes w/Current Exemptions: | $128.47 | | |
| | | | | Taxes w/o Exemptions: | $128.47 | | |
Improvement / Building
Sketch
| No sketches available for this property. |
Property Image
Land
| 1 | RES 1 | Converted: Residential | 1.1500 | 0.00 | 0.00 | 0.00 | 1.00 | $13,080 | $0 |
Roll Value History
| 2026 | N/A | N/A | N/A | N/A | N/A |
| 2025 | $0 | $13,080 | $0 | $13,080 | $13,080 |
| 2024 | $0 | $13,080 | $0 | $13,080 | $13,080 |
| 2023 | $0 | $13,080 | $0 | $13,080 | $13,080 |
| 2022 | $0 | $16,670 | $0 | $16,670 | $16,670 |
| 2021 | $0 | $16,670 | $0 | $16,670 | $16,670 |
| 2020 | $0 | $16,670 | $0 | $16,670 | $16,670 |
| 2019 | $0 | $16,670 | $0 | $16,670 | $16,670 |
| 2018 | $0 | $4,600 | $0 | $4,600 | $4,600 |
| 2017 | $0 | $4,600 | $0 | $4,600 | $4,600 |
| 2016 | $0 | $4,600 | $0 | $4,600 | $4,600 |
| 2015 | $0 | $4,600 | $0 | $4,600 | $4,600 |
| 2014 | $0 | $4,600 | $0 | $4,600 | $4,600 |
| 2013 | $0 | $4,600 | $0 | $4,600 | $4,600 |
| 2012 | $0 | $76,200 | $0 | $0 | $0 |
| 2011 | $0 | $76,200 | $0 | $0 | $0 |
| 2010 | $0 | $76,200 | $0 | $0 | $0 |
| 2009 | $0 | $76,200 | $0 | $0 | $0 |
| 2008 | $0 | $76,200 | $0 | $0 | $0 |
| 2007 | $0 | $44,900 | $0 | $0 | $0 |
Deed and Sales History
| 1 | 07/09/2010 | WARRANTY D | WARRANTY DEED | BIDDISCOMBE, JEFFREY R | ROBERTS, CRAIG R & CHARLOTTE M | | | $70,000.00 | 118729 | 2010-05265 |
| 2 | 05/04/2004 | WARRANTY D | WARRANTY DEED | BIDDISCOMBE, JEFF FOR ESTATE O | BIDDISCOMBE, JEFFREY R | | | | 104676 | 2004-04802 |
| 3 | 04/08/2004 | WARRANTY D | WARRANTY DEED | BIDDISCOMBE, JEFF R & NORMA K | BIDDISCOMBE JEFFREY R | | | | 104454 | 2004-03704 |
| 4 | 06/29/2001 | WARRANTY D | WARRANTY DEED | | | | | $41,500.00 | 97490 | 3150-106866 |
Payout Agreement
| No payout information available.. |