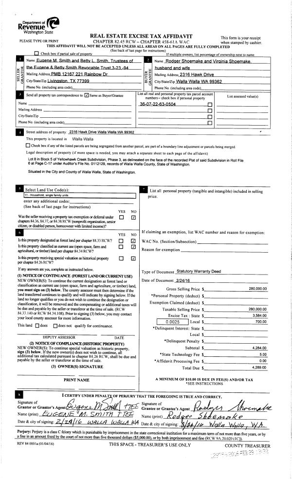
| 1 | 02/29/2016 | SWD | STATUTORY WARRANTY DEED | THE EUGENE & BETTY SMITH REVOCALBE TRST | SHOEMAKE RODGER R & VIRGINIA | | | $280,000.00 | 129756 | 2016-01528 |
| 2 | 06/30/2010 | WARRANTY D | WARRANTY DEED | MUELLER, CAROLINE | THE EUGENE & BETTY SMITH REVOC | | | $259,000.00 | 118689 | 2010-05070 |
| 3 | 05/24/2007 | WARRANTY D | WARRANTY DEED | HOSSACK, ROBERT C & ANGELINE C | MUELLER, CAROLINE | | | $246,000.00 | 112893 | 2007-05909 |
| 4 | 11/17/2004 | WARRANTY D | WARRANTY DEED | GLEIM, DOUGLAS L & YVONNE | HOSSACK, ROBERT C & ANGELINE C | | | $210,000.00 | 106219 | 2004-13227 |
| 5 | 10/09/2002 | WARRANTY D | WARRANTY DEED | WASSER, PHILI C & S REID | GLEIM, DOUGLAS L & YVONNE | | | $151,560.00 | 100548 | 2002-11390 |