Property
Account |
| Property ID: | 28672 | Abbreviated Legal Description: | ENNIS ANNEX TAX 6 LOT 1 BLK 7 |
| Parcel Number: | 360721550715 | Agent Code: | |
| Type: | Real | | |
| Tax Area: | 1 - OL-140-F | Land Use Code | 11 |
| Open Space: | N | DFL | N |
| Historic Property: | N | Remodel Property: | N |
| Multi-Family Redevelopment: | N | | |
| Township: | 7 | Section: | 21 |
| Range: | 36 |
Location |
| Address: | 1338 UNIVERSITY ST WA 99362 | Mapsco: | |
| Neighborhood: | A-SFR | Map ID: | |
| Neighborhood CD: | 513011 |
Owner |
| Name: | STAPLETON NANCY | Owner ID: | 66503 |
| Mailing Address: | 1338 UNIVERSITY ST WALLA WALLA, WA 99362 | % Ownership: | 100.0000000000% |
| | | Exemptions: | |
Taxes and Assessment Details
Property Tax Information as of
02/21/2026
Click on "Statement Details" to expand or collapse a tax statement.
* Please enter a valid date ** Please enter a valid date *
Statement Details |
| | TOTAL: | $0.00 | $0.00 | $0.00 | $0.00 | $0.00 | $0.00 |
|
| | $0.00 | $0.00 | $0.00 | $0.00 | $0.00 | $0.00 |
Values
| (+) Improvement Homesite Value: | + | $0 | |
| (+) Improvement Non-Homesite Value: | + | $234,590 | |
| (+) Land Homesite Value: | + | $0 | |
| (+) Land Non-Homesite Value: | + | $63,770 | |
| (+) Curr Use (HS): | + | $0 | $0 |
| (+) Curr Use (NHS): | + | $0 | $0 |
| | | -------------------------- | |
| (=) Market Value: | = | $298,360 | |
| (–) Productivity Loss: | – | $0 | |
| | | -------------------------- | |
| (=) Subtotal: | = | $298,360 | |
| (+) Senior Appraised Value: | + | $0 | |
| (+) Non-Senior Appraised Value: | + | $298,360 | |
| | | -------------------------- | |
| (=) Total Appraised Value: | = | $298,360 | |
| (–) Senior Exemption Loss: | – | $0 | |
| (–) Exemption Loss: | – | $0 | |
| | | -------------------------- | |
| (=) Taxable Value: | = | $298,360 | |
Taxing Jurisdiction
| Owner: | STAPLETON NANCY | | |
| % Ownership: | 100.0000000000% | | |
| Total Value: | $298,360 | | |
| Tax Area: | 1 - OL-140-F |
| CERFD | CURRENT EXPENSE REFUND 010 | 0.0000000000 | $298,360 | $298,360 | $0.00 | | |
| CURREXP | CURRENT EXPENSE 010 | 1.0175366760 | $298,360 | $298,360 | $303.59 | | |
| HUMNSERV | HUMAN SERVICES 119 | 0.0250000000 | $298,360 | $298,360 | $7.46 | | |
| SLDREL | SOLDIERS RELIEF 121 | 0.0155990005 | $298,360 | $298,360 | $4.65 | | |
| EMERGSER | EMS 147 | 0.3792580840 | $298,360 | $298,360 | $113.16 | | |
| EMSRFD | EMS REFUND 147 | 0.0000000000 | $298,360 | $298,360 | $0.00 | | |
| PORTRFD | PORT REFUND 640 | 0.0000000000 | $298,360 | $298,360 | $0.00 | | |
| PORTWWGEN | PORT OF WW 640 | 0.2460186015 | $298,360 | $298,360 | $73.40 | | |
| SD140BOND | SD #140 BOND 764 | 0.8342371393 | $298,360 | $298,360 | $248.90 | | |
| SD140GEN | SD #140 GENERAL 760 | 2.0646500647 | $298,360 | $298,360 | $616.01 | | |
| ST2 | STATE SCHOOL PART 2 600 | 0.8131451643 | $298,360 | $298,360 | $242.61 | | |
| STATESCHL | STATE SCHOOL 600 | 1.5158548041 | $298,360 | $298,360 | $452.27 | | |
| STREFUND | STATE REFUND LEVY 603 | 0.0000000000 | $298,360 | $298,360 | $0.00 | | |
| CWWBOND | C OF WW BOND 643 | 0.2760494372 | $298,360 | $298,360 | $82.36 | | |
| CWWGEN | CITY OF WW 631 | 1.6100204973 | $298,360 | $298,360 | $480.37 | | |
| CWWRFD | CITY OF WALLA WALLA REFUND 631 | 0.0000000000 | $298,360 | $298,360 | $0.00 | | |
| | Total Tax Rate: | 8.7973694689 | | | | | |
| | | | | Taxes w/Current Exemptions: | $2,624.78 | | |
| | | | | Taxes w/o Exemptions: | $2,624.78 | | |
Improvement / Building
| Improvement #1: | RESIDENTIAL | State Code: | 11 | 1284.0 sqft | Value: | $234,590 |
| Exterior Wall: | VINYL | Heating/Cooling: | WARM & COOLED AIR | | Number of Bathrooms: | 1.5 | Number of Bedrooms: | 4 | | Plumbing: | 9 | Roof Covering: | COMP SHINGLE |
|
| | Type | Description | Class CD | Sub Class CD | Year Built | Area |
| | MA | Main Area | 1 | 30 | 1950 | 1284.0 |
| | SI1 | SITE IMPROVEMENT | 1 | 30 | 1950 | 1.5 |
| | BASE | BASEMENT | 1 | 30 | 1950 | 1284.0 |
| | BPF | BASEMENT -PARTITIONED FINISH | 1 | 30 | 1950 | 963.0 |
| | DTG | Detached Garage | 1 | 30 | 1950 | 308.0 |
| | RPS | PORCH W/STEPS,ROOF | 1 | 30 | 1950 | 8.0 |
| | D2F | Double 2 Story Fireplace | 1 | 30 | 1950 | 1.0 |
| | RPS | PORCH W/STEPS,ROOF | 1 | 30 | 1950 | 144.0 |
| | CPC | COVERED CARPORT/PATIO | 1 | 30 | 1950 | 187.0 |
Sketch
Property Image
Land
| 1 | RES 1 | Converted: Residential | 0.2865 | 12480.00 | 0.00 | 0.00 | 1.00 | $63,770 | $0 |
Roll Value History
| 2026 | N/A | N/A | N/A | N/A | N/A |
| 2025 | $211,910 | $101,840 | $0 | $313,750 | $313,750 |
| 2024 | $211,910 | $101,840 | $0 | $313,750 | $313,750 |
| 2023 | $234,590 | $63,770 | $0 | $298,360 | $298,360 |
| 2022 | $234,590 | $63,770 | $0 | $298,360 | $298,360 |
| 2021 | $180,450 | $63,770 | $0 | $244,220 | $244,220 |
| 2020 | $144,360 | $63,770 | $0 | $208,130 | $208,130 |
| 2019 | $144,360 | $63,770 | $0 | $208,130 | $208,130 |
| 2018 | $120,300 | $63,770 | $0 | $184,070 | $184,070 |
| 2017 | $137,700 | $41,900 | $0 | $179,600 | $179,600 |
| 2016 | $131,150 | $41,900 | $0 | $173,050 | $173,050 |
| 2015 | $131,150 | $41,900 | $0 | $173,050 | $173,050 |
| 2014 | $124,900 | $41,900 | $0 | $166,800 | $166,800 |
| 2013 | $124,900 | $41,900 | $0 | $166,800 | $166,800 |
| 2012 | $128,700 | $41,900 | $0 | $0 | $0 |
| 2011 | $113,200 | $41,900 | $0 | $0 | $0 |
| 2010 | $105,800 | $41,900 | $0 | $0 | $0 |
| 2009 | $122,200 | $41,900 | $0 | $0 | $0 |
| 2008 | $122,200 | $41,900 | $0 | $0 | $0 |
| 2007 | $122,200 | $41,900 | $0 | $0 | $0 |
Deed and Sales History
| 1 | 12/23/2019 | QCD | QUIT CLAIM DEED | STAPLETON ANDY | STAPLETON NANCY | | | | 138307 | 2019-10642 |
| 2 | 12/23/2019 | SWD | STATUTORY WARRANTY DEED | MERRY TROY | STAPLETON NANCY | | | $229,000.00 | 138306 | 2019-10641 |
| 3 | 11/18/2010 | WARRANTY D | WARRANTY DEED | CROFT, ROBERT P & KIM M | MERRY, TROY | | | $176,000.00 | 119347 | 2010-09456 |
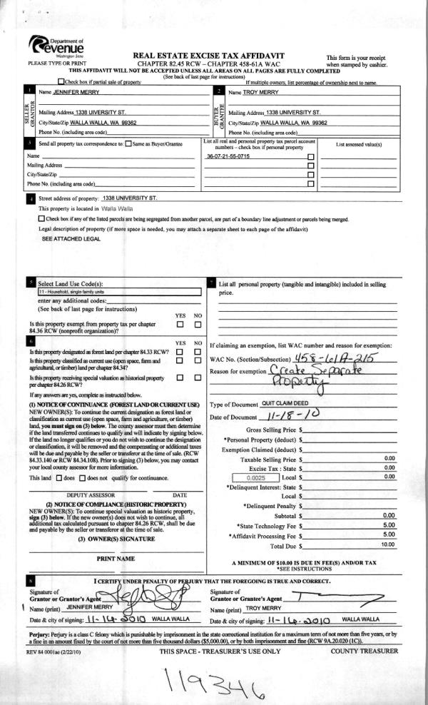
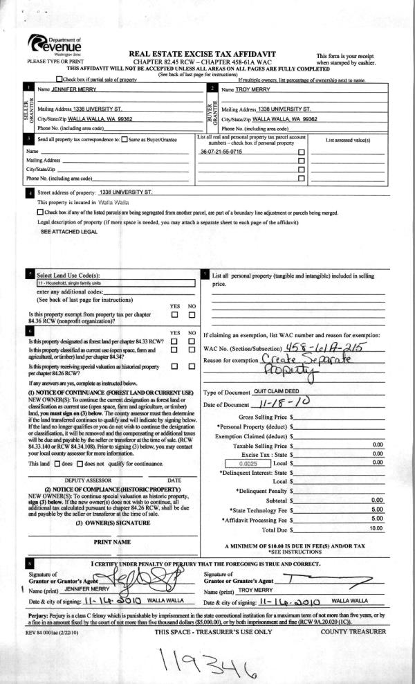
| 4 | 11/18/2010 | QCD | QUIT CLAIM DEED | MERRY, JENNIFER | MERRY, TROY | | | $0.00 | 119346 | 2010-09455 |
| 5 | 05/27/1993 | WARRANTY D | WARRANTY DEED | | | | | $85,000.00 | 79192 | 2079-305286 |
Payout Agreement
| No payout information available.. |