Property
Account |
| Property ID: | 28670 | Abbreviated Legal Description: | EAST WALLA WALLA 1ST LOTS 5 & 6 BLK 4 |
| Parcel Number: | 360727540429 | Agent Code: | |
| Type: | Real | | |
| Tax Area: | 1 - OL-140-F | Land Use Code | 11 |
| Open Space: | N | DFL | N |
| Historic Property: | N | Remodel Property: | N |
| Multi-Family Redevelopment: | N | | |
| Township: | 7 | Section: | 27 |
| Range: | 36 |
Location |
| Address: | 1938 AMELIA ST WA 99362 | Mapsco: | |
| Neighborhood: | A Inferior Res | Map ID: | |
| Neighborhood CD: | 413111 |
Owner |
| Name: | STEDMAN JOSHUA G | Owner ID: | 55852 |
| Mailing Address: | 1938 AMELIA ST WALLA WALLA, WA 99362 | % Ownership: | 100.0000000000% |
| | | Exemptions: | |
Taxes and Assessment Details
Values
| (+) Improvement Homesite Value: | + | $0 | |
| (+) Improvement Non-Homesite Value: | + | $183,300 | |
| (+) Land Homesite Value: | + | $0 | |
| (+) Land Non-Homesite Value: | + | $81,240 | |
| (+) Curr Use (HS): | + | $0 | $0 |
| (+) Curr Use (NHS): | + | $0 | $0 |
| | | -------------------------- | |
| (=) Market Value: | = | $264,540 | |
| (–) Productivity Loss: | – | $0 | |
| | | -------------------------- | |
| (=) Subtotal: | = | $264,540 | |
| (+) Senior Appraised Value: | + | $0 | |
| (+) Non-Senior Appraised Value: | + | $264,540 | |
| | | -------------------------- | |
| (=) Total Appraised Value: | = | $264,540 | |
| (–) Senior Exemption Loss: | – | $0 | |
| (–) Exemption Loss: | – | $0 | |
| | | -------------------------- | |
| (=) Taxable Value: | = | $264,540 | |
Taxing Jurisdiction
| Owner: | STEDMAN JOSHUA G | | |
| % Ownership: | 100.0000000000% | | |
| Total Value: | $264,540 | | |
| Tax Area: | 1 - OL-140-F |
| CERFD | CURRENT EXPENSE REFUND 010 | 0.0000000000 | $264,540 | $264,540 | $0.00 | | |
| CURREXP | CURRENT EXPENSE 010 | 1.0175366760 | $264,540 | $264,540 | $269.18 | | |
| HUMNSERV | HUMAN SERVICES 119 | 0.0250000000 | $264,540 | $264,540 | $6.61 | | |
| SLDREL | SOLDIERS RELIEF 121 | 0.0155990005 | $264,540 | $264,540 | $4.13 | | |
| EMERGSER | EMS 147 | 0.3792580840 | $264,540 | $264,540 | $100.33 | | |
| EMSRFD | EMS REFUND 147 | 0.0000000000 | $264,540 | $264,540 | $0.00 | | |
| PORTRFD | PORT REFUND 640 | 0.0000000000 | $264,540 | $264,540 | $0.00 | | |
| PORTWWGEN | PORT OF WW 640 | 0.2460186015 | $264,540 | $264,540 | $65.08 | | |
| SD140BOND | SD #140 BOND 764 | 0.8342371393 | $264,540 | $264,540 | $220.69 | | |
| SD140GEN | SD #140 GENERAL 760 | 2.0646500647 | $264,540 | $264,540 | $546.18 | | |
| ST2 | STATE SCHOOL PART 2 600 | 0.8131451643 | $264,540 | $264,540 | $215.11 | | |
| STATESCHL | STATE SCHOOL 600 | 1.5158548041 | $264,540 | $264,540 | $401.00 | | |
| STREFUND | STATE REFUND LEVY 603 | 0.0000000000 | $264,540 | $264,540 | $0.00 | | |
| CWWBOND | C OF WW BOND 643 | 0.2760494372 | $264,540 | $264,540 | $73.03 | | |
| CWWGEN | CITY OF WW 631 | 1.6100204973 | $264,540 | $264,540 | $425.91 | | |
| CWWRFD | CITY OF WALLA WALLA REFUND 631 | 0.0000000000 | $264,540 | $264,540 | $0.00 | | |
| | Total Tax Rate: | 8.7973694689 | | | | | |
| | | | | Taxes w/Current Exemptions: | $2,327.25 | | |
| | | | | Taxes w/o Exemptions: | $2,327.25 | | |
Improvement / Building
| Improvement #1: | RESIDENTIAL | State Code: | 11 | 1699.0 sqft | Value: | $183,300 |
| Exterior Wall: | METAL/STEEL | Heating/Cooling: | WARM & COOLED AIR | | Number of Bathrooms: | 2 | Number of Bedrooms: | 3 | | Plumbing: | 9 | Roof Covering: | COMP SHINGLE |
|
| | Type | Description | Class CD | Sub Class CD | Year Built | Area |
| | MA | Main Area | 4 | 30 | 1943 | 1699.0 |
| | CPC | COVERED CARPORT/PATIO | 4 | 30 | 0 | 128.0 |
| | SI1 | SITE IMPROVEMENT | 4 | 30 | 0 | 1.5 |
| | DTG | Detached Garage | 4 | 30 | 0 | 320.0 |
| | RPS | PORCH W/STEPS,ROOF | 4 | 30 | 0 | 25.0 |
| | UPFL | Upper Floor (included in main area) | 4 | 30 | 0 | 580.0 |
Sketch
Property Image
Land
| 1 | RES 1 | Converted: Residential | 0.2755 | 12000.00 | 0.00 | 0.00 | 1.00 | $81,240 | $0 |
Roll Value History
| 2026 | N/A | N/A | N/A | N/A | N/A |
| 2025 | $201,630 | $81,240 | $0 | $282,870 | $282,870 |
| 2024 | $201,630 | $81,240 | $0 | $282,870 | $282,870 |
| 2023 | $183,300 | $81,240 | $0 | $264,540 | $264,540 |
| 2022 | $190,360 | $54,120 | $0 | $244,480 | $244,480 |
| 2021 | $122,810 | $54,120 | $0 | $176,930 | $176,930 |
| 2020 | $94,470 | $54,120 | $0 | $148,590 | $148,590 |
| 2019 | $94,470 | $54,120 | $0 | $148,590 | $148,590 |
| 2018 | $94,470 | $54,120 | $0 | $148,590 | $148,590 |
| 2017 | $94,470 | $54,120 | $0 | $148,590 | $148,590 |
| 2016 | $135,350 | $48,800 | $0 | $184,150 | $184,150 |
| 2015 | $135,350 | $48,800 | $0 | $184,150 | $184,150 |
| 2014 | $128,900 | $48,800 | $0 | $177,700 | $177,700 |
| 2013 | $128,900 | $48,800 | $0 | $177,700 | $177,700 |
| 2012 | $128,900 | $48,800 | $0 | $0 | $0 |
| 2011 | $123,500 | $48,800 | $0 | $0 | $0 |
| 2010 | $128,900 | $48,800 | $0 | $0 | $0 |
Deed and Sales History
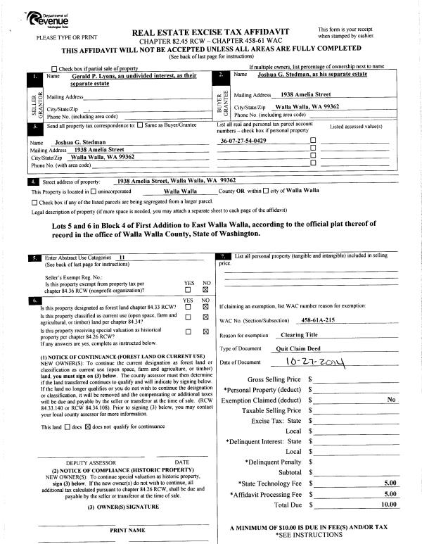
| 1 | 10/27/2014 | QCD | QUIT CLAIM DEED | LYONS GERALD P | STEDMAN JOSHUA G | | | | 127290 | 2015-00386 |
| 2 | 10/28/2014 | QCD | QUIT CLAIM DEED | LYONS FRANCIS J | STEDMAN JOSHUA G | | | | 127289 | 2015-00385 |
| 3 | 12/01/2014 | QCD | QUIT CLAIM DEED | LYONS JAMES E | STEDMAN JOSHUA G | | | | 127288 | 2015-00384 |
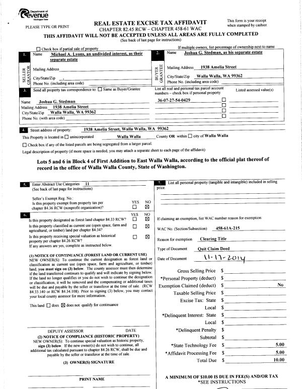
| 4 | 11/17/2014 | QCD | QUIT CLAIM DEED | LYONS MICHAEL A | STEDMAN JOSHUA G | | | | 127287 | 2015-00383 |
| 5 | 12/15/2014 | QCD | QUIT CLAIM DEED | SOBOTTA CONSTANCE A | STEDMAN JOSHUA G | | | | 127286 | 2015-00382 |
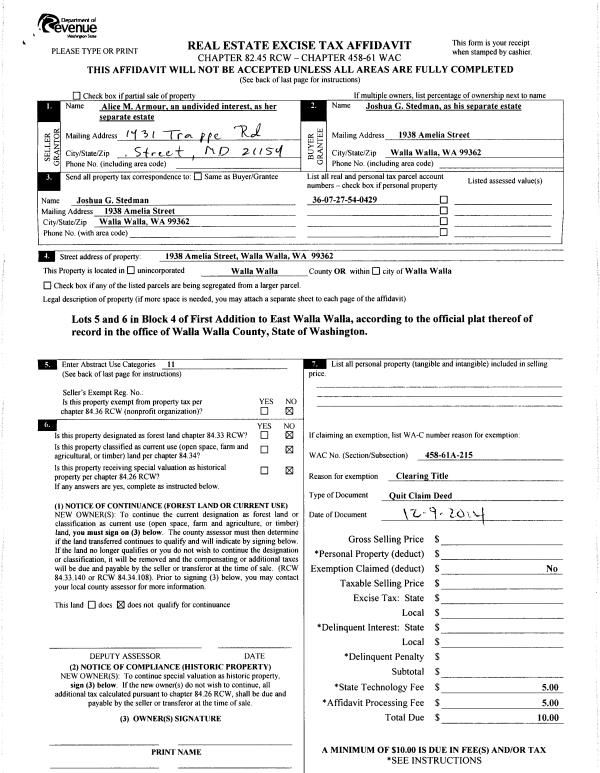
| 6 | 12/09/2014 | QCD | QUIT CLAIM DEED | ARMOUR ALICE M | STEDMAN JOSHUA G | | | | 127285 | 2015-00381 |
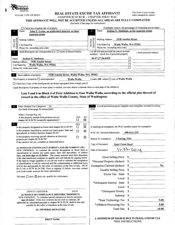
| 7 | 11/25/2014 | QCD | QUIT CLAIM DEED | LYONS JOHN F | STEDMAN JOSHUA G | | | | 127284 | 2015-00380 |
| 8 | 11/25/2014 | QCD | QUIT CLAIM DEED | LONG-LYONS JACUELIN G | STEDMAN JOSHUA G | | | $0.00 | 127283 | 2015-00379 |
| 9 | 06/21/2010 | WARRANTY D | WARRANTY DEED | OWEN, WAYNE L & VIRGINIA | STEDMAN, JOSHUA G | | | $183,000.00 | 118643 | 2010-04792 |
Payout Agreement
| No payout information available.. |