Property
Account |
| Property ID: | 28669 | Abbreviated Legal Description: | EAST WALLA WALLA 1ST ADDN LOT 7 BLK 4 |
| Parcel Number: | 360727540428 | Agent Code: | |
| Type: | Real | | |
| Tax Area: | 1 - OL-140-F | Land Use Code | 11 |
| Open Space: | N | DFL | N |
| Historic Property: | N | Remodel Property: | N |
| Multi-Family Redevelopment: | N | | |
| Township: | 7 | Section: | 27 |
| Range: | 36 |
Location |
| Address: | 1934 AMELIA ST WALLA WALLA, WA 99362 | Mapsco: | |
| Neighborhood: | A Inferior Res | Map ID: | |
| Neighborhood CD: | 413111 |
Owner |
| Name: | MOYER CALEY A | Owner ID: | 65946 |
| Mailing Address: | 1934 AMELIA ST WALLA WALLA, WA 99362 | % Ownership: | 100.0000000000% |
| | | Exemptions: | |
Taxes and Assessment Details
Property Tax Information as of
04/19/2026
Click on "Statement Details" to expand or collapse a tax statement.
* Please enter a valid date ** Please enter a valid date *
Statement Details |
| | TOTAL: | $0.00 | $0.00 | $0.00 | $0.00 | $0.00 | $0.00 |
|
| | $0.00 | $0.00 | $0.00 | $0.00 | $0.00 | $0.00 |
Values
| (+) Improvement Homesite Value: | + | $0 | |
| (+) Improvement Non-Homesite Value: | + | $204,500 | |
| (+) Land Homesite Value: | + | $0 | |
| (+) Land Non-Homesite Value: | + | $48,000 | |
| (+) Curr Use (HS): | + | $0 | $0 |
| (+) Curr Use (NHS): | + | $0 | $0 |
| | | -------------------------- | |
| (=) Market Value: | = | $252,500 | |
| (–) Productivity Loss: | – | $0 | |
| | | -------------------------- | |
| (=) Subtotal: | = | $252,500 | |
| (+) Senior Appraised Value: | + | $0 | |
| (+) Non-Senior Appraised Value: | + | $252,500 | |
| | | -------------------------- | |
| (=) Total Appraised Value: | = | $252,500 | |
| (–) Senior Exemption Loss: | – | $0 | |
| (–) Exemption Loss: | – | $0 | |
| | | -------------------------- | |
| (=) Taxable Value: | = | $252,500 | |
Taxing Jurisdiction
| Owner: | MOYER CALEY A | | |
| % Ownership: | 100.0000000000% | | |
| Total Value: | $252,500 | | |
| Tax Area: | 1 - OL-140-F |
| CERFD | CURRENT EXPENSE REFUND 010 | 0.0000000000 | $252,500 | $252,500 | $0.00 | | |
| CURREXP | CURRENT EXPENSE 010 | 1.0175366760 | $252,500 | $252,500 | $256.93 | | |
| HUMNSERV | HUMAN SERVICES 119 | 0.0250000000 | $252,500 | $252,500 | $6.31 | | |
| SLDREL | SOLDIERS RELIEF 121 | 0.0155990005 | $252,500 | $252,500 | $3.94 | | |
| EMERGSER | EMS 147 | 0.3792580840 | $252,500 | $252,500 | $95.76 | | |
| EMSRFD | EMS REFUND 147 | 0.0000000000 | $252,500 | $252,500 | $0.00 | | |
| PORTRFD | PORT REFUND 640 | 0.0000000000 | $252,500 | $252,500 | $0.00 | | |
| PORTWWGEN | PORT OF WW 640 | 0.2460186015 | $252,500 | $252,500 | $62.12 | | |
| SD140BOND | SD #140 BOND 764 | 0.8342371393 | $252,500 | $252,500 | $210.64 | | |
| SD140GEN | SD #140 GENERAL 760 | 2.0646500647 | $252,500 | $252,500 | $521.32 | | |
| ST2 | STATE SCHOOL PART 2 600 | 0.8131451643 | $252,500 | $252,500 | $205.32 | | |
| STATESCHL | STATE SCHOOL 600 | 1.5158548041 | $252,500 | $252,500 | $382.75 | | |
| STREFUND | STATE REFUND LEVY 603 | 0.0000000000 | $252,500 | $252,500 | $0.00 | | |
| CWWBOND | C OF WW BOND 643 | 0.2760494372 | $252,500 | $252,500 | $69.70 | | |
| CWWGEN | CITY OF WW 631 | 1.6100204973 | $252,500 | $252,500 | $406.53 | | |
| CWWRFD | CITY OF WALLA WALLA REFUND 631 | 0.0000000000 | $252,500 | $252,500 | $0.00 | | |
| | Total Tax Rate: | 8.7973694689 | | | | | |
| | | | | Taxes w/Current Exemptions: | $2,221.32 | | |
| | | | | Taxes w/o Exemptions: | $2,221.32 | | |
Improvement / Building
| Improvement #1: | RESIDENTIAL | State Code: | 11 | 640.0 sqft | Value: | $204,500 |
| Exterior Wall: | HARDBOARD | Heating/Cooling: | WARM & COOLED AIR | | Number of Bathrooms: | 1 | Number of Bedrooms: | 1 | | Plumbing: | 7 | Roof Covering: | COMP SHINGLE |
|
| | Type | Description | Class CD | Sub Class CD | Year Built | Area |
| | MA | Main Area | 4 | 40 | 2014 | 640.0 |
| | UPFL | Upper Floor (included in main area) | 4 | 40 | 2014 | 240.0 |
| | SI1 | SITE IMPROVEMENT | 4 | 40 | 2014 | 2.5 |
| | PRC | PORCH W STEPS, ROOF,CEILED | 4 | 40 | 2014 | 120.0 |
| | TOOL | TOOL SHED | 4 | 40 | 2014 | 64.0 |
| | GFP | GAS FIREPLACE | 4 | 40 | 2020 | 1.0 |
| | SOLR | SOLAR POWER PANELS | 4 | 40 | 2020 | 16.0 |
| | GUH | GUEST HOUSE | 4 | 40 | 2014 | 420.0 |
| | CPCD | CARPORT/DIRT FLOOR | 4 | 40 | 2020 | 270.0 |
Sketch
Property Image
Land
| 1 | RES 1 | Converted: Residential | 0.1377 | 6000.00 | 0.00 | 0.00 | 1.00 | $48,000 | $0 |
Roll Value History
| 2026 | N/A | N/A | N/A | N/A | N/A |
| 2025 | $204,500 | $48,000 | $0 | $252,500 | $252,500 |
| 2024 | $204,500 | $48,000 | $0 | $252,500 | $252,500 |
| 2023 | $204,500 | $48,000 | $0 | $252,500 | $252,500 |
| 2022 | $218,350 | $31,500 | $0 | $249,850 | $249,850 |
| 2021 | $181,960 | $31,500 | $0 | $213,460 | $213,460 |
| 2020 | $75,650 | $31,500 | $0 | $107,150 | $107,150 |
| 2019 | $75,650 | $31,500 | $0 | $107,150 | $107,150 |
| 2018 | $75,650 | $31,500 | $0 | $107,150 | $107,150 |
| 2017 | $75,650 | $31,500 | $0 | $107,150 | $107,150 |
| 2016 | $71,150 | $36,000 | $0 | $107,150 | $107,150 |
| 2015 | $71,150 | $36,000 | $0 | $107,150 | $107,150 |
| 2014 | $6,200 | $36,000 | $0 | $42,200 | $42,200 |
| 2013 | $0 | $36,000 | $0 | $36,000 | $36,000 |
| 2012 | $0 | $36,000 | $0 | $0 | $0 |
| 2011 | $0 | $5,100 | $0 | $0 | $0 |
| 2010 | $0 | $36,000 | $0 | $0 | $0 |
Deed and Sales History
| 1 | 09/17/2019 | SWD | STATUTORY WARRANTY DEED | FONDAHN JOSEPH A & EKATERINA | MOYER CALEY A | | | $242,500.00 | 137694 | 2019-07258 |
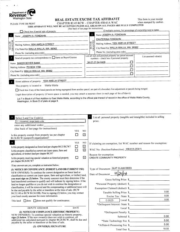
| 2 | 11/26/2014 | QCD | QUIT CLAIM DEED | FONDAHN JOSEPH A | FONDAHN JOSEPH A & EKATERINA | | | $0.00 | 127019 | 2014-08604 |
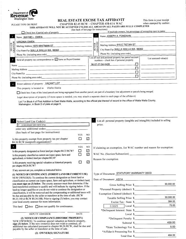
| 3 | 04/03/2014 | SWD | STATUTORY WARRANTY DEED | OWEN WAYNE L & VIRGINIA | FONDAHN JOSEPH A | | | $30,000.00 | 125673 | 2014-02271 |
Payout Agreement
| No payout information available.. |