Property
Account |
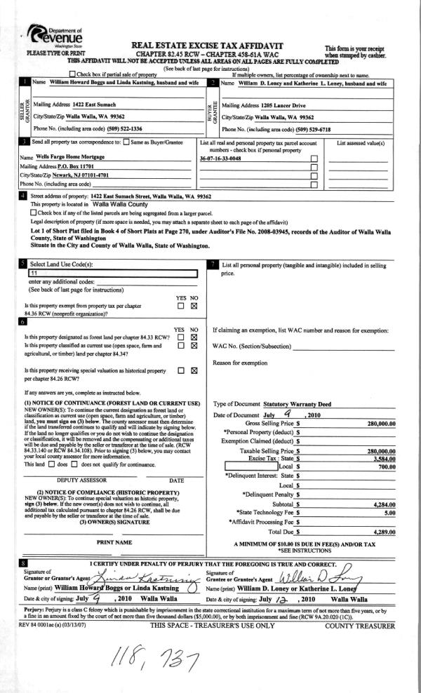
| Property ID: | 28668 | Abbreviated Legal Description: | 16-7-36 LOT 1 OF SHORT PLAT (TAX 22 IN SW1/4SW1/4) |
| Parcel Number: | 360716330048 | Agent Code: | |
| Type: | Real | | |
| Tax Area: | 5 - OL-140 | Land Use Code | 11 |
| Open Space: | N | DFL | N |
| Historic Property: | N | Remodel Property: | N |
| Multi-Family Redevelopment: | N | | |
| Township: | 7 | Section: | 16 |
| Range: | 36 |
Location |
| Address: | 1422 E SUMACH ST WA 99362 | Mapsco: | |
| Neighborhood: | A-SFR | Map ID: | |
| Neighborhood CD: | 513011 |
Owner |
| Name: | MARTIN JAMES EDWARD & NANCY JO | Owner ID: | 69090 |
| Mailing Address: | 1422 E SUMACH ST WALLA WALLA, WA 99362 | % Ownership: | 100.0000000000% |
| | | Exemptions: | |
Taxes and Assessment Details
Property Tax Information as of
02/21/2026
Click on "Statement Details" to expand or collapse a tax statement.
* Please enter a valid date ** Please enter a valid date *
Statement Details |
| | TOTAL: | $0.00 | $0.00 | $0.00 | $0.00 | $0.00 | $0.00 |
|
| | $0.00 | $0.00 | $0.00 | $0.00 | $0.00 | $0.00 |
Values
| (+) Improvement Homesite Value: | + | $0 | |
| (+) Improvement Non-Homesite Value: | + | $418,100 | |
| (+) Land Homesite Value: | + | $0 | |
| (+) Land Non-Homesite Value: | + | $66,510 | |
| (+) Curr Use (HS): | + | $0 | $0 |
| (+) Curr Use (NHS): | + | $0 | $0 |
| | | -------------------------- | |
| (=) Market Value: | = | $484,610 | |
| (–) Productivity Loss: | – | $0 | |
| | | -------------------------- | |
| (=) Subtotal: | = | $484,610 | |
| (+) Senior Appraised Value: | + | $0 | |
| (+) Non-Senior Appraised Value: | + | $484,610 | |
| | | -------------------------- | |
| (=) Total Appraised Value: | = | $484,610 | |
| (–) Senior Exemption Loss: | – | $0 | |
| (–) Exemption Loss: | – | $0 | |
| | | -------------------------- | |
| (=) Taxable Value: | = | $484,610 | |
Taxing Jurisdiction
| Owner: | MARTIN JAMES EDWARD & NANCY JO | | |
| % Ownership: | 100.0000000000% | | |
| Total Value: | $484,610 | | |
| Tax Area: | 5 - OL-140 |
| CERFD | CURRENT EXPENSE REFUND 010 | 0.0000000000 | $484,610 | $484,610 | $0.00 | | |
| CURREXP | CURRENT EXPENSE 010 | 1.0175366760 | $484,610 | $484,610 | $493.11 | | |
| HUMNSERV | HUMAN SERVICES 119 | 0.0250000000 | $484,610 | $484,610 | $12.12 | | |
| SLDREL | SOLDIERS RELIEF 121 | 0.0155990005 | $484,610 | $484,610 | $7.56 | | |
| EMERGSER | EMS 147 | 0.3792580840 | $484,610 | $484,610 | $183.79 | | |
| EMSRFD | EMS REFUND 147 | 0.0000000000 | $484,610 | $484,610 | $0.00 | | |
| PORTRFD | PORT REFUND 640 | 0.0000000000 | $484,610 | $484,610 | $0.00 | | |
| PORTWWGEN | PORT OF WW 640 | 0.2460186015 | $484,610 | $484,610 | $119.22 | | |
| SD140BOND | SD #140 BOND 764 | 0.8342371393 | $484,610 | $484,610 | $404.28 | | |
| SD140GEN | SD #140 GENERAL 760 | 2.0646500647 | $484,610 | $484,610 | $1,000.55 | | |
| ST2 | STATE SCHOOL PART 2 600 | 0.8131451643 | $484,610 | $484,610 | $394.06 | | |
| STATESCHL | STATE SCHOOL 600 | 1.5158548041 | $484,610 | $484,610 | $734.60 | | |
| STREFUND | STATE REFUND LEVY 603 | 0.0000000000 | $484,610 | $484,610 | $0.00 | | |
| CWWBOND | C OF WW BOND 643 | 0.2760494372 | $484,610 | $484,610 | $133.78 | | |
| CWWGEN | CITY OF WW 631 | 1.6100204973 | $484,610 | $484,610 | $780.23 | | |
| CWWRFD | CITY OF WALLA WALLA REFUND 631 | 0.0000000000 | $484,610 | $484,610 | $0.00 | | |
| | Total Tax Rate: | 8.7973694689 | | | | | |
| | | | | Taxes w/Current Exemptions: | $4,263.30 | | |
| | | | | Taxes w/o Exemptions: | $4,263.30 | | |
Improvement / Building
| Improvement #1: | RESIDENTIAL | State Code: | 11 | 1498.0 sqft | Value: | $418,100 |
| Exterior Wall: | SIDING | Heating/Cooling: | WARM & COOLED AIR | | Number of Bathrooms: | 3 | Number of Bedrooms: | 2 | | Plumbing: | 12 | Roof Covering: | COMP SHINGLE |
|
| | Type | Description | Class CD | Sub Class CD | Year Built | Area |
| | MA | Main Area | 1 | 40 | 1951 | 1498.0 |
| | PRC | PORCH W STEPS, ROOF,CEILED | 1 | 40 | 0 | 48.0 |
| | SI1 | SITE IMPROVEMENT | 1 | 40 | 1951 | 2.5 |
| | WDR | WOOD DECK W/ROOF | 1 | 40 | 0 | 428.0 |
| | BASE | BASEMENT | 1 | 40 | 1951 | 1064.0 |
| | BPF | BASEMENT -PARTITIONED FINISH | 1 | 40 | 1951 | 1064.0 |
| | DTG | Detached Garage | 1 | 40 | 1951 | 1104.0 |
| | S1F | Single One Story Fireplace | 1 | 40 | 1951 | 1.0 |
| | OUT | OUTSIDE BASEMENT ENTRY | 1 | 40 | 1951 | 1.0 |
Sketch
Property Image
Land
| 1 | RES 1 | Converted: Residential | 0.4071 | 17735.00 | 0.00 | 0.00 | 1.00 | $66,510 | $0 |
Roll Value History
| 2026 | N/A | N/A | N/A | N/A | N/A |
| 2025 | $447,300 | $105,880 | $0 | $553,180 | $553,180 |
| 2024 | $406,640 | $105,880 | $0 | $512,520 | $512,520 |
| 2023 | $418,100 | $66,510 | $0 | $484,610 | $484,610 |
| 2022 | $380,090 | $66,510 | $0 | $446,600 | $446,600 |
| 2021 | $380,090 | $66,510 | $0 | $446,600 | $446,600 |
| 2020 | $271,490 | $66,510 | $0 | $338,000 | $338,000 |
| 2019 | $271,490 | $66,510 | $0 | $338,000 | $338,000 |
| 2018 | $271,490 | $66,510 | $0 | $338,000 | $338,000 |
| 2017 | $247,950 | $45,800 | $0 | $293,750 | $293,750 |
| 2016 | $236,150 | $45,800 | $0 | $281,950 | $281,950 |
| 2015 | $236,150 | $45,800 | $0 | $281,950 | $281,950 |
| 2014 | $224,900 | $45,800 | $0 | $270,700 | $270,700 |
| 2013 | $224,900 | $45,800 | $0 | $270,700 | $270,700 |
| 2012 | $224,200 | $45,800 | $0 | $0 | $0 |
| 2011 | $161,900 | $45,800 | $0 | $0 | $0 |
| 2010 | $152,000 | $45,800 | $0 | $0 | $0 |
| 2009 | $174,000 | $45,800 | $0 | $0 | $0 |
| 2008 | $224,900 | $45,800 | $0 | $0 | $0 |
Deed and Sales History
| 1 | 03/31/2021 | SWD | STATUTORY WARRANTY DEED | LONEY WILLIAM D & KATHERINE L | MARTIN JAMES EDWARD & NANCY JO | | | $447,000.00 | 141215 | 2021-03708 |
| 2 | 07/12/2010 | WARRANTY D | WARRANTY DEED | BOGGS, WILLIAM H | LONEY, WILLIAM D & KATHERINE L | | | $280,000.00 | 118737 | 2010-05318 |
Payout Agreement
| No payout information available.. |