Property
Account |
| Property ID: | 28666 | Abbreviated Legal Description: | BARROWS HOME TRACTS (WLY PTN LOT 20) TRACT A OF S/P |
| Parcel Number: | 360722520061 | Agent Code: | |
| Type: | Real | | |
| Tax Area: | 6 - OL-140-F-FB | Land Use Code | 11 |
| Open Space: | N | DFL | N |
| Historic Property: | N | Remodel Property: | N |
| Multi-Family Redevelopment: | N | | |
| Township: | 7 | Section: | 22 |
| Range: | 36 |
Location |
| Address: | 1906 DELMONT ST WA 99362 | Mapsco: | |
| Neighborhood: | A SFR | Map ID: | |
| Neighborhood CD: | 413011 |
Owner |
| Name: | STARR KATHY | Owner ID: | 68919 |
| Mailing Address: | 1906 DELMONT ST WALLA WALLA, WA 99362 | % Ownership: | 100.0000000000% |
| | | Exemptions: | SNR/DSBL |
Taxes and Assessment Details
Values
| (+) Improvement Homesite Value: | + | $205,270 | |
| (+) Improvement Non-Homesite Value: | + | $0 | |
| (+) Land Homesite Value: | + | $83,850 | |
| (+) Land Non-Homesite Value: | + | $0 | |
| (+) Curr Use (HS): | + | $0 | $0 |
| (+) Curr Use (NHS): | + | $0 | $0 |
| | | -------------------------- | |
| (=) Market Value: | = | $289,120 | |
| (–) Productivity Loss: | – | $0 | |
| | | -------------------------- | |
| (=) Subtotal: | = | $289,120 | |
| (+) Senior Appraised Value: | + | $279,510 | |
| (+) Non-Senior Appraised Value: | + | $0 | |
| | | -------------------------- | |
| (=) Total Appraised Value: | = | $279,510 | |
| (–) Senior Exemption Loss: | – | $167,706 | |
| (–) Exemption Loss: | – | $0 | |
| | | -------------------------- | |
| (=) Taxable Value: | = | $111,804 | |
Taxing Jurisdiction
| Owner: | STARR KATHY | | |
| % Ownership: | 100.0000000000% | | |
| Total Value: | $289,120 | | |
| Tax Area: | 6 - OL-140-F-FB |
| CERFD | CURRENT EXPENSE REFUND 010 | 0.0000000000 | $289,120 | $111,804 | $0.00 | | |
| CURREXP | CURRENT EXPENSE 010 | 1.0175366760 | $289,120 | $111,804 | $113.76 | | |
| HUMNSERV | HUMAN SERVICES 119 | 0.0250000000 | $289,120 | $111,804 | $2.80 | | |
| SLDREL | SOLDIERS RELIEF 121 | 0.0155990005 | $289,120 | $111,804 | $1.74 | | |
| EMERGSER | EMS 147 | 0.3792580840 | $289,120 | $111,804 | $42.40 | | |
| EMSRFD | EMS REFUND 147 | 0.0000000000 | $289,120 | $111,804 | $0.00 | | |
| PORTRFD | PORT REFUND 640 | 0.0000000000 | $289,120 | $111,804 | $0.00 | | |
| PORTWWGEN | PORT OF WW 640 | 0.2460186015 | $289,120 | $111,804 | $27.51 | | |
| SD140BOND | SD #140 BOND 764 | 0.0000000000 | $289,120 | $0 | $0.00 | | |
| SD140GEN | SD #140 GENERAL 760 | 0.0000000000 | $289,120 | $0 | $0.00 | | |
| ST2 | STATE SCHOOL PART 2 600 | 0.0000000000 | $289,120 | $0 | $0.00 | | |
| STATESCHL | STATE SCHOOL 600 | 1.5158548041 | $289,120 | $111,804 | $169.48 | | |
| STREFUND | STATE REFUND LEVY 603 | 0.0000000000 | $289,120 | $111,804 | $0.00 | | |
| CWWBOND | C OF WW BOND 643 | 0.0000000000 | $289,120 | $0 | $0.00 | | |
| CWWGEN | CITY OF WW 631 | 1.6100204973 | $289,120 | $111,804 | $180.01 | | |
| CWWRFD | CITY OF WALLA WALLA REFUND 631 | 0.0000000000 | $289,120 | $111,804 | $0.00 | | |
| | Total Tax Rate: | 4.8092876634 | | | | | |
| | | | | Taxes w/Current Exemptions: | $537.70 | | |
| | | | | Taxes w/o Exemptions: | $2,543.49 | | |
Improvement / Building
| Improvement #1: | RESIDENTIAL | State Code: | 11 | 1284.0 sqft | Value: | $205,270 |
| Exterior Wall: | SIDING | Heating/Cooling: | WARM & COOLED AIR | | Number of Bathrooms: | 1.5 | Number of Bedrooms: | 2 | | Plumbing: | 9 | Roof Covering: | COMP SHINGLE |
|
| | Type | Description | Class CD | Sub Class CD | Year Built | Area |
| | MA | Main Area | 1 | 30 | 1954 | 1284.0 |
| | GIF | GARAGE INTERIOR FINISH | 1 | 30 | 0 | 496.0 |
| | SI1 | SITE IMPROVEMENT | 1 | 30 | 0 | 2.0 |
| | ATG | Attached Garage | 1 | 30 | 1954 | 736.0 |
| | RPO | OPEN PORCH W/ROOF | 1 | 30 | 1954 | 286.0 |
Sketch
Property Image
Land
| 1 | RES 1 | Converted: Residential | 0.3767 | 16408.00 | 0.00 | 0.00 | 1.00 | $83,850 | $0 |
Roll Value History
| 2026 | N/A | N/A | N/A | N/A | N/A |
| 2025 | $219,850 | $83,850 | $0 | $303,700 | $111,804 |
| 2024 | $215,530 | $83,850 | $0 | $299,380 | $111,804 |
| 2023 | $205,270 | $83,850 | $0 | $289,120 | $111,804 |
| 2022 | $221,920 | $57,590 | $0 | $279,510 | $209,510 |
| 2021 | $158,510 | $57,590 | $0 | $216,100 | $216,100 |
| 2020 | $121,930 | $57,590 | $0 | $179,520 | $179,520 |
| 2019 | $121,930 | $57,590 | $0 | $179,520 | $179,520 |
| 2018 | $110,850 | $57,590 | $0 | $168,440 | $168,440 |
| 2017 | $110,850 | $57,590 | $0 | $168,440 | $168,440 |
| 2016 | $123,090 | $44,800 | $0 | $167,890 | $167,890 |
| 2015 | $123,090 | $44,800 | $0 | $167,890 | $167,890 |
| 2014 | $119,500 | $44,800 | $0 | $164,300 | $164,300 |
| 2013 | $119,500 | $44,800 | $0 | $164,300 | $164,300 |
| 2012 | $119,500 | $44,800 | $0 | $0 | $0 |
| 2011 | $82,600 | $44,800 | $0 | $0 | $0 |
| 2010 | $82,600 | $44,800 | $0 | $0 | $0 |
| 2009 | $96,800 | $44,800 | $0 | $0 | $0 |
| 2008 | $129,300 | $12,300 | $0 | $0 | $0 |
| 2007 | $129,300 | $12,300 | $0 | $0 | $0 |
Deed and Sales History
| 1 | 02/24/2021 | SWD | STATUTORY WARRANTY DEED | OLSON JESSE M & JENNA K | STARR KATHY | | | $285,000.00 | 140977 | 2021-02148 |
| 2 | 02/17/2016 | SWD | STATUTORY WARRANTY DEED | LHOMMEDIEU NEIL & KAREN E | OLSON JESSE M & JENNA K | | | $172,000.00 | 129699 | 2016-01197 |
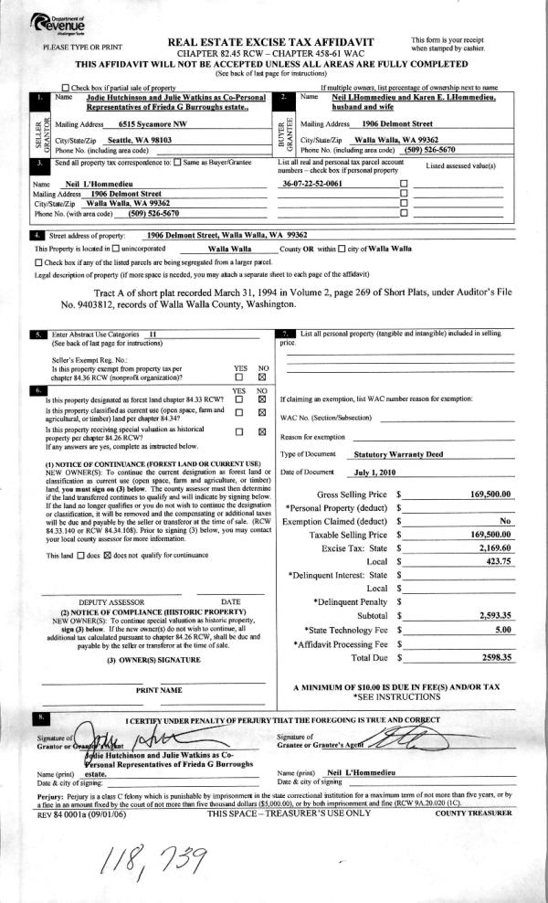
| 3 | 07/12/2010 | WARRANTY D | WARRANTY DEED | BURROUGHS, FRIEDA G ESTATE OF | LHOMMEDIEU, NEIL & KAREN E | | | $169,500.00 | 118739 | 2010-05331 |
Payout Agreement
| No payout information available.. |