Property
Account |
| Property ID: | 28661 | Abbreviated Legal Description: | WENTSCHS TAX 2 BLK 1 PT TAX 1 BLK 1 |
| Parcel Number: | 360716570113 | Agent Code: | |
| Type: | Real | | |
| Tax Area: | 5 - OL-140 | Land Use Code | 11 |
| Open Space: | N | DFL | N |
| Historic Property: | N | Remodel Property: | N |
| Multi-Family Redevelopment: | N | | |
| Township: | 7 | Section: | 16 |
| Range: | 36 |
Location |
| Address: | 615 LEWIS ST WA 99362 | Mapsco: | |
| Neighborhood: | A-SFR | Map ID: | |
| Neighborhood CD: | 513011 |
Owner |
| Name: | ROLAND PROPERTIES LLC | Owner ID: | 72450 |
| Mailing Address: | 1132 W PINE ST WALLA WALLA, WA 99362 | % Ownership: | 100.0000000000% |
| | | Exemptions: | |
Taxes and Assessment Details
Values
| (+) Improvement Homesite Value: | + | $0 | |
| (+) Improvement Non-Homesite Value: | + | $225,890 | |
| (+) Land Homesite Value: | + | $0 | |
| (+) Land Non-Homesite Value: | + | $45,310 | |
| (+) Curr Use (HS): | + | $0 | $0 |
| (+) Curr Use (NHS): | + | $0 | $0 |
| | | -------------------------- | |
| (=) Market Value: | = | $271,200 | |
| (–) Productivity Loss: | – | $0 | |
| | | -------------------------- | |
| (=) Subtotal: | = | $271,200 | |
| (+) Senior Appraised Value: | + | $0 | |
| (+) Non-Senior Appraised Value: | + | $271,200 | |
| | | -------------------------- | |
| (=) Total Appraised Value: | = | $271,200 | |
| (–) Senior Exemption Loss: | – | $0 | |
| (–) Exemption Loss: | – | $0 | |
| | | -------------------------- | |
| (=) Taxable Value: | = | $271,200 | |
Taxing Jurisdiction
| Owner: | ROLAND PROPERTIES LLC | | |
| % Ownership: | 100.0000000000% | | |
| Total Value: | $271,200 | | |
| Tax Area: | 5 - OL-140 |
| CERFD | CURRENT EXPENSE REFUND 010 | 0.0000000000 | $271,200 | $271,200 | $0.00 | | |
| CURREXP | CURRENT EXPENSE 010 | 1.0175366760 | $271,200 | $271,200 | $275.96 | | |
| HUMNSERV | HUMAN SERVICES 119 | 0.0250000000 | $271,200 | $271,200 | $6.78 | | |
| SLDREL | SOLDIERS RELIEF 121 | 0.0155990005 | $271,200 | $271,200 | $4.23 | | |
| EMERGSER | EMS 147 | 0.3792580840 | $271,200 | $271,200 | $102.85 | | |
| EMSRFD | EMS REFUND 147 | 0.0000000000 | $271,200 | $271,200 | $0.00 | | |
| PORTRFD | PORT REFUND 640 | 0.0000000000 | $271,200 | $271,200 | $0.00 | | |
| PORTWWGEN | PORT OF WW 640 | 0.2460186015 | $271,200 | $271,200 | $66.72 | | |
| SD140BOND | SD #140 BOND 764 | 0.8342371393 | $271,200 | $271,200 | $226.25 | | |
| SD140GEN | SD #140 GENERAL 760 | 2.0646500647 | $271,200 | $271,200 | $559.93 | | |
| ST2 | STATE SCHOOL PART 2 600 | 0.8131451643 | $271,200 | $271,200 | $220.52 | | |
| STATESCHL | STATE SCHOOL 600 | 1.5158548041 | $271,200 | $271,200 | $411.10 | | |
| STREFUND | STATE REFUND LEVY 603 | 0.0000000000 | $271,200 | $271,200 | $0.00 | | |
| CWWBOND | C OF WW BOND 643 | 0.2760494372 | $271,200 | $271,200 | $74.86 | | |
| CWWGEN | CITY OF WW 631 | 1.6100204973 | $271,200 | $271,200 | $436.64 | | |
| CWWRFD | CITY OF WALLA WALLA REFUND 631 | 0.0000000000 | $271,200 | $271,200 | $0.00 | | |
| | Total Tax Rate: | 8.7973694689 | | | | | |
| | | | | Taxes w/Current Exemptions: | $2,385.84 | | |
| | | | | Taxes w/o Exemptions: | $2,385.84 | | |
Improvement / Building
| Improvement #1: | RESIDENTIAL | State Code: | 11 | 876.0 sqft | Value: | $225,890 |
| Exterior Wall: | SIDING | Heating/Cooling: | FORCED AIR | | Number of Bathrooms: | 2 | Number of Bedrooms: | 2 | | Plumbing: | 9 | Roof Covering: | COMP SHINGLE |
|
| | Type | Description | Class CD | Sub Class CD | Year Built | Area |
| | MA | Main Area | 1 | 30 | 1947 | 876.0 |
| | SI1 | SITE IMPROVEMENT | 1 | 30 | 0 | 1.5 |
| | BASE | BASEMENT | 1 | 30 | 1947 | 876.0 |
| | OPS | OPEN PORCH W/STEPS | 1 | 30 | 1947 | 24.0 |
| | BPF | BASEMENT -PARTITIONED FINISH | 1 | 30 | 1947 | 876.0 |
| | S1F | Single One Story Fireplace | 1 | 30 | 1947 | 1.0 |
| | WOD | Wood Deck | 1 | 30 | 1947 | 306.0 |
| | RPO | OPEN PORCH W/ROOF | 1 | 30 | 1947 | 30.0 |
| | DTG | Detached Garage | 1 | 30 | 1947 | 480.0 |
Sketch
Property Image
Land
| 1 | RES 1 | Converted: Residential | 0.1664 | 7250.00 | 0.00 | 0.00 | 1.00 | $45,310 | $0 |
Roll Value History
| 2026 | N/A | N/A | N/A | N/A | N/A |
| 2025 | $307,620 | $72,500 | $0 | $380,120 | $380,120 |
| 2024 | $212,710 | $72,500 | $0 | $285,210 | $285,210 |
| 2023 | $225,890 | $45,310 | $0 | $271,200 | $271,200 |
| 2022 | $225,890 | $45,310 | $0 | $271,200 | $271,200 |
| 2021 | $188,240 | $45,310 | $0 | $233,550 | $233,550 |
| 2020 | $139,440 | $45,310 | $0 | $184,750 | $184,750 |
| 2019 | $139,440 | $45,310 | $0 | $184,750 | $184,750 |
| 2018 | $116,200 | $45,310 | $0 | $161,510 | $161,510 |
| 2017 | $128,290 | $29,000 | $0 | $157,290 | $157,290 |
| 2016 | $116,630 | $29,000 | $0 | $145,630 | $145,630 |
| 2015 | $116,630 | $29,000 | $0 | $145,630 | $145,630 |
| 2014 | $93,300 | $29,000 | $0 | $122,300 | $122,300 |
| 2013 | $93,300 | $29,000 | $0 | $122,300 | $122,300 |
| 2012 | $101,100 | $29,000 | $0 | $0 | $0 |
| 2011 | $101,100 | $29,000 | $0 | $0 | $0 |
| 2010 | $94,900 | $29,000 | $0 | $0 | $0 |
| 2009 | $108,700 | $29,000 | $0 | $0 | $0 |
| 2008 | $111,500 | $29,000 | $0 | $0 | $0 |
| 2007 | $111,500 | $29,000 | $0 | $0 | $0 |
Deed and Sales History
| 1 | 11/22/2024 | SWD | STATUTORY WARRANTY DEED | ROLAND PROPERTIES LLC | GUZMAN NICOLE MARIE & BRANDON JIMMY | | | $379,000.00 | 148556 | 2024-06791 |
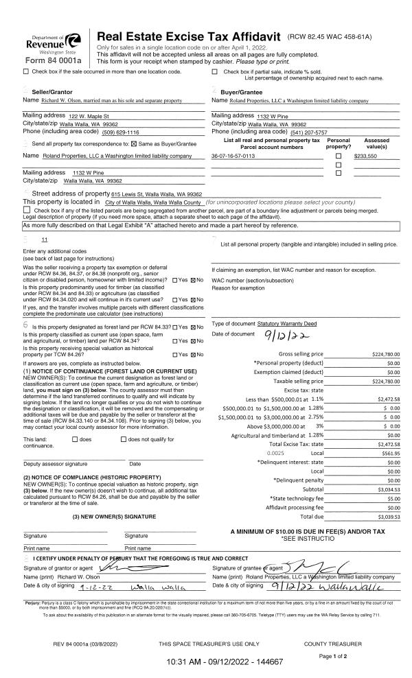
| 2 | 09/12/2022 | SWD | STATUTORY WARRANTY DEED | OLSON RICHARD W | ROLAND PROPERTIES LLC | | | $224,780.00 | 144667 | 2022-07569 |
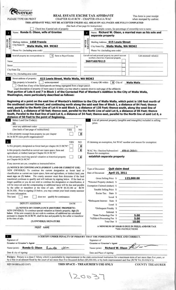
| 3 | 04/22/2011 | QCD | QUIT CLAIM DEED | OLSON, RONDA O | OLSON, RICHARD W | | | $0.00 | 120037 | 2011-03273 |
| 4 | 04/22/2011 | WARRANTY D | WARRANTY DEED | SECRETARY OF HOUSING & URBAN D | OLSON, RICHARD W | | | $123,000.00 | 120036 | 2011-03272 |
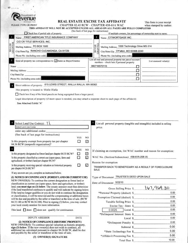
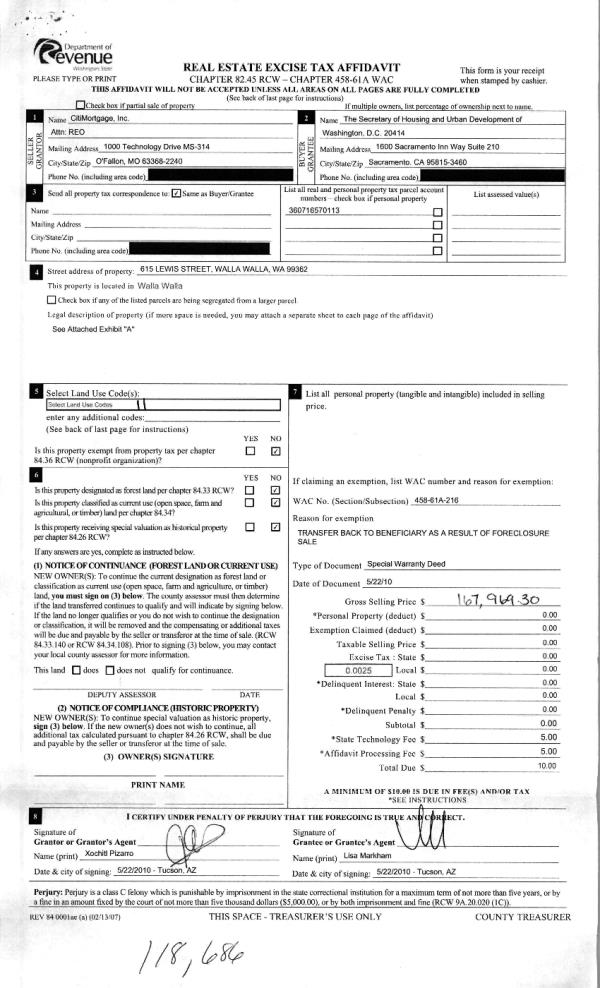
| 5 | 06/29/2010 | WARRANTY D | WARRANTY DEED | CITIMORTGAGE INC | SECRETARY OF HOUSING & URBAN D | | | $167,969.00 | 118686 | 2010-05054 |
| 6 | 05/26/2010 | WARRANTY D | WARRANTY DEED | PERKINS, LAKRESHA J | CITIMORTGAGE INC | | | $167,969.00 | 118525 | 2010-04097 |
| 7 | 08/05/2005 | WARRANTY D | WARRANTY DEED | FEEZELL, TRAVIS R & CAROL A | PERKINS, LAKRESHA J | | | $141,000.00 | 108154 | 2005-09653 |
| 8 | 02/27/1997 | WARRANTY D | WARRANTY DEED | | | | | $83,000.00 | 87717 | 2499-701723 |
Payout Agreement
| No payout information available.. |