Property
Account |
| Property ID: | 28660 | Abbreviated Legal Description: | CP #1 TAX 1 BLK 21 |
| Parcel Number: | 350736512101 | Agent Code: | |
| Type: | Real | | |
| Tax Area: | 75 - CP 250 | Land Use Code | 11 |
| Open Space: | N | DFL | N |
| Historic Property: | N | Remodel Property: | N |
| Multi-Family Redevelopment: | N | | |
| Township: | 7 | Section: | 36 |
| Range: | 35 |
Location |
| Address: | 209 SE BIRCH AVE WA 99324 | Mapsco: | |
| Neighborhood: | A SFR | Map ID: | |
| Neighborhood CD: | 113011 |
Owner |
| Name: | STUDER ANDREAS & DANETTE L BAKER | Owner ID: | 72453 |
| Mailing Address: | 12536 MIDDLE WAITSBURG RD WAITSBURG, WA 99361 | % Ownership: | 100.0000000000% |
| | | Exemptions: | |
Taxes and Assessment Details
Property Tax Information as of
02/21/2026
Click on "Statement Details" to expand or collapse a tax statement.
* Please enter a valid date ** Please enter a valid date *
Statement Details |
| | TOTAL: | $0.00 | $0.00 | $0.00 | $0.00 | $0.00 | $0.00 |
|
| | $0.00 | $0.00 | $0.00 | $0.00 | $0.00 | $0.00 |
Values
| (+) Improvement Homesite Value: | + | $0 | |
| (+) Improvement Non-Homesite Value: | + | $263,200 | |
| (+) Land Homesite Value: | + | $0 | |
| (+) Land Non-Homesite Value: | + | $61,780 | |
| (+) Curr Use (HS): | + | $0 | $0 |
| (+) Curr Use (NHS): | + | $0 | $0 |
| | | -------------------------- | |
| (=) Market Value: | = | $324,980 | |
| (–) Productivity Loss: | – | $0 | |
| | | -------------------------- | |
| (=) Subtotal: | = | $324,980 | |
| (+) Senior Appraised Value: | + | $0 | |
| (+) Non-Senior Appraised Value: | + | $324,980 | |
| | | -------------------------- | |
| (=) Total Appraised Value: | = | $324,980 | |
| (–) Senior Exemption Loss: | – | $0 | |
| (–) Exemption Loss: | – | $0 | |
| | | -------------------------- | |
| (=) Taxable Value: | = | $324,980 | |
Taxing Jurisdiction
| Owner: | STUDER ANDREAS & DANETTE L BAKER | | |
| % Ownership: | 100.0000000000% | | |
| Total Value: | $324,980 | | |
| Tax Area: | 75 - CP 250 |
| CERFD | CURRENT EXPENSE REFUND 010 | 0.0000000000 | $324,980 | $324,980 | $0.00 | | |
| CURREXP | CURRENT EXPENSE 010 | 1.0175366760 | $324,980 | $324,980 | $330.68 | | |
| HUMNSERV | HUMAN SERVICES 119 | 0.0250000000 | $324,980 | $324,980 | $8.12 | | |
| SLDREL | SOLDIERS RELIEF 121 | 0.0155990005 | $324,980 | $324,980 | $5.07 | | |
| COLLPLBOND | C OF CP BOND 644 | 0.4374241808 | $324,980 | $324,980 | $142.15 | | |
| COLLPLGEN | CITY OF CP 632 | 1.4453819216 | $324,980 | $324,980 | $469.72 | | |
| EMERGSER | EMS 147 | 0.3792580840 | $324,980 | $324,980 | $123.25 | | |
| EMSRFD | EMS REFUND 147 | 0.0000000000 | $324,980 | $324,980 | $0.00 | | |
| RURALLIB | RURAL LIBRARY 623 | 0.3710609029 | $324,980 | $324,980 | $120.59 | | |
| PORTRFD | PORT REFUND 640 | 0.0000000000 | $324,980 | $324,980 | $0.00 | | |
| PORTWWGEN | PORT OF WW 640 | 0.2460186015 | $324,980 | $324,980 | $79.95 | | |
| SD250BOND | SD #250 BOND 773 | 1.4560608159 | $324,980 | $324,980 | $473.19 | | |
| SD250GEN | SD #250 GENERAL 770 | 2.3880724087 | $324,980 | $324,980 | $776.08 | | |
| ST2 | STATE SCHOOL PART 2 600 | 0.8131451643 | $324,980 | $324,980 | $264.26 | | |
| STATESCHL | STATE SCHOOL 600 | 1.5158548041 | $324,980 | $324,980 | $492.62 | | |
| STREFUND | STATE REFUND LEVY 603 | 0.0000000000 | $324,980 | $324,980 | $0.00 | | |
| | Total Tax Rate: | 10.1104125603 | | | | | |
| | | | | Taxes w/Current Exemptions: | $3,285.68 | | |
| | | | | Taxes w/o Exemptions: | $3,285.68 | | |
Improvement / Building
| Improvement #1: | RESIDENTIAL | State Code: | 11 | 2440.0 sqft | Value: | $263,200 |
| Exterior Wall: | PLYWOOD | Heating/Cooling: | WARM & COOLED AIR | | Number of Bathrooms: | 2.5 | Number of Bedrooms: | 4 | | Plumbing: | 14 | Roof Covering: | COMP SHINGLE |
|
| | Type | Description | Class CD | Sub Class CD | Year Built | Area |
| | MA | Main Area | 4 | 20 | 1940 | 2440.0 |
| | SI1 | SITE IMPROVEMENT | 4 | 20 | 1940 | 1.5 |
| | UPFL | Upper Floor (included in main area) | 4 | 20 | 1940 | 600.0 |
| | FBAT | FULL BATH | 4 | 20 | 1940 | 1.0 |
| | WOD | Wood Deck | 4 | 20 | 1940 | 250.0 |
| | WOD | Wood Deck | 4 | 20 | 1940 | 508.0 |
| | RCD | WOOD DECK W/ROOF, CEILED | 4 | 20 | 1940 | 108.0 |
| | RCD | WOOD DECK W/ROOF, CEILED | 4 | 20 | 1940 | 32.0 |
Sketch
Property Image
Land
| 1 | RES 1 | Converted: Residential | 0.2479 | 10800.00 | 0.00 | 0.00 | 1.00 | $61,780 | $0 |
Roll Value History
| 2026 | N/A | N/A | N/A | N/A | N/A |
| 2025 | $210,560 | $92,120 | $0 | $302,680 | $302,680 |
| 2024 | $263,200 | $61,780 | $0 | $324,980 | $324,980 |
| 2023 | $263,200 | $61,780 | $0 | $324,980 | $324,980 |
| 2022 | $202,460 | $61,780 | $0 | $264,240 | $264,240 |
| 2021 | $202,460 | $61,780 | $0 | $264,240 | $264,240 |
| 2020 | $168,720 | $61,780 | $0 | $230,500 | $230,500 |
| 2019 | $182,700 | $47,800 | $0 | $230,500 | $230,500 |
| 2018 | $174,000 | $47,800 | $0 | $221,800 | $221,800 |
| 2017 | $145,000 | $47,800 | $0 | $192,800 | $192,800 |
| 2016 | $145,000 | $47,800 | $0 | $192,800 | $192,800 |
| 2015 | $145,000 | $47,800 | $0 | $192,800 | $192,800 |
| 2014 | $145,000 | $47,800 | $0 | $192,800 | $192,800 |
| 2013 | $145,000 | $47,800 | $0 | $192,800 | $192,800 |
| 2012 | $135,800 | $47,800 | $0 | $0 | $0 |
| 2011 | $127,100 | $47,800 | $0 | $0 | $0 |
| 2010 | $127,100 | $47,800 | $0 | $0 | $0 |
| 2009 | $146,500 | $47,800 | $0 | $0 | $0 |
| 2008 | $107,400 | $25,400 | $0 | $0 | $0 |
| 2007 | $107,400 | $25,400 | $0 | $0 | $0 |
Deed and Sales History
| 1 | 09/15/2022 | SWD | STATUTORY WARRANTY DEED | BRUNOT KEVIN R | STUDER ANDREAS & DANETTE L BAKER | | | $340,000.00 | 144688 | 2022-07680 |
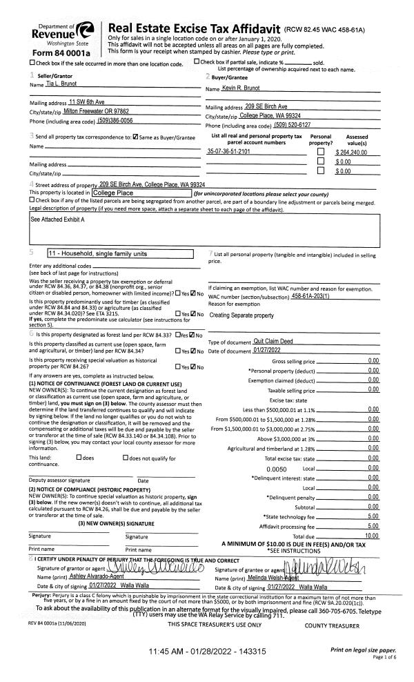
| 2 | 01/28/2022 | QCD | QUIT CLAIM DEED | BRUNOT TIA L | BRUNOT KEVIN R | | | | 143315 | 2022-00872 |
| 3 | 01/28/2022 | SWD | STATUTORY WARRANTY DEED | PENNINGTON CHRISTOPHER | BRUNOT KEVIN R | | | $229,000.00 | 143314 | 2022-00871 |
| 4 | 06/29/2010 | WARRANTY D | WARRANTY DEED | MONTGOMERY, JONAS R | PENNINGTON, CHRISTOPHER | | | $194,000.00 | 118681 | 2010-05045 |
| 5 | 11/02/2004 | WARRANTY D | WARRANTY DEED | GAMBONE, MATTHEW W | MONTGOMERY, JONAS R | | | $139,000.00 | 106102 | 2004-12655 |
| 6 | 10/26/1999 | WARRANTY D | WARRANTY DEED | | | | | $100,000.00 | 93895 | 2919-912277 |
Payout Agreement
| No payout information available.. |