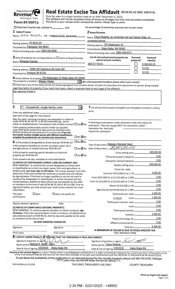
| 1 | 02/21/2025 | SWD | STATUTORY WARRANTY DEED | BRAZIL JULIE | ROBERTS TREVOR | | | $400,000.00 | 148952 | 2025-00905 |
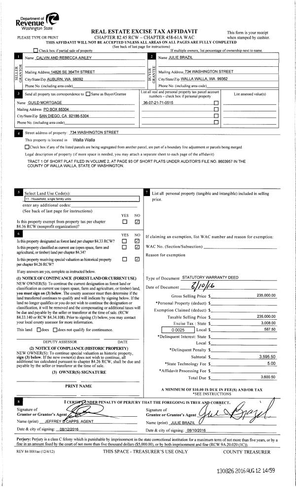
| 2 | 08/12/2016 | SWD | STATUTORY WARRANTY DEED | AINLEY CALVIN M & REBECCA E | BRAZIL JULIE | | | $235,000.00 | 130826 | 2016-06437 |
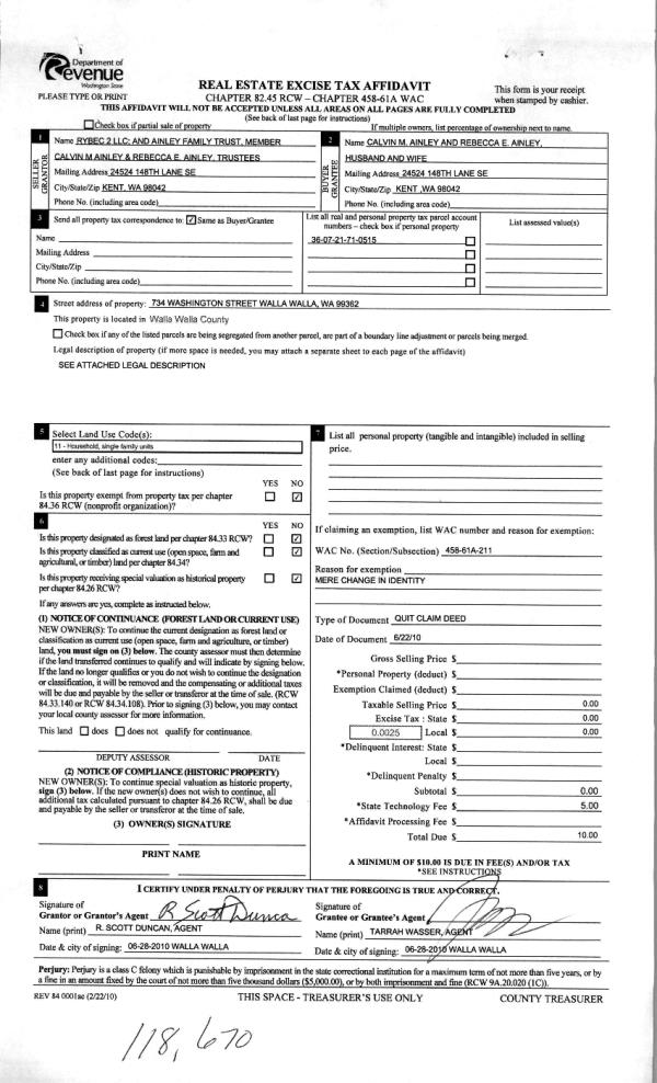
| 3 | 06/28/2010 | QCD | QUIT CLAIM DEED | RYEBEC 2 LLC | AINLEY, CALVIN M & REBECCA E | | | | 118670 | 2010-04994 |
| 4 | 08/29/2008 | QCD | QUIT CLAIM DEED | AINLEY, CALVIN M & REBECCA E | RYEBEC 2 LLC | | | $0.00 | 115576 | 2008-08935 |
| 5 | 08/26/2008 | WARRANTY D | WARRANTY DEED | BARRUETA, HENRY & CHARITY | AINLEY, CALVIN M & REBECCA E | | | $247,400.00 | 115548 | 2008-08823 |
| 6 | 02/12/2007 | WARRANTY D | WARRANTY DEED | GORDON, TAMARA A | BARRUETA, HENRY & CHARITY | | | $195,000.00 | 112227 | 2007-01706 |
| 7 | 09/06/2002 | WARRANTY D | WARRANTY DEED | GURNETT, GREGORY E & MARLA G | GORDON, TAMARA A | | | $115,000.00 | 100325 | 2002-10018 |
| 8 | 01/09/1995 | WARRANTY D | WARRANTY DEED | | | | | $89,900.00 | 83325 | 2269-500234 |