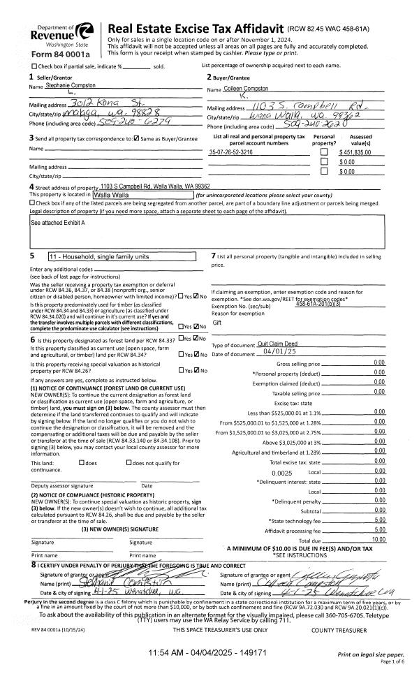
Property
Account |
| Property ID: | 28631 | Abbreviated Legal Description: | BLALOCK ORCHARDS TAX 4A BLK 32 |
| Parcel Number: | 350726523216 | Agent Code: | |
| Type: | Real | | |
| Tax Area: | 311 - 250-4 | Land Use Code | 11 |
| Open Space: | N | DFL | N |
| Historic Property: | N | Remodel Property: | N |
| Multi-Family Redevelopment: | N | | |
| Township: | 7 | Section: | 26 |
| Range: | 35 |
Location |
| Address: | 1103 S CAMPBELL RD WA 99324 | Mapsco: | |
| Neighborhood: | A SFR Rural/City Infl | Map ID: | |
| Neighborhood CD: | 313012 |
Owner |
| Name: | COMPSTON STEPHANIE L | Owner ID: | 55821 |
| Mailing Address: | COLLEEN K COMPSTON 1103 CAMPBELL RD WALLA WALLA, WA 99362 | % Ownership: | 100.0000000000% |
| | | Exemptions: | SNR/DSBL |
Taxes and Assessment Details
Values
| (+) Improvement Homesite Value: | + | $179,810 | |
| (+) Improvement Non-Homesite Value: | + | $179,810 | |
| (+) Land Homesite Value: | + | $46,110 | |
| (+) Land Non-Homesite Value: | + | $46,110 | |
| (+) Curr Use (HS): | + | $0 | $0 |
| (+) Curr Use (NHS): | + | $0 | $0 |
| | | -------------------------- | |
| (=) Market Value: | = | $451,840 | |
| (–) Productivity Loss: | – | $0 | |
| | | -------------------------- | |
| (=) Subtotal: | = | $451,840 | |
| (+) Senior Appraised Value: | + | $225,920 | |
| (+) Non-Senior Appraised Value: | + | $225,920 | |
| | | -------------------------- | |
| (=) Total Appraised Value: | = | $451,840 | |
| (–) Senior Exemption Loss: | – | $135,552 | |
| (–) Exemption Loss: | – | $0 | |
| | | -------------------------- | |
| (=) Taxable Value: | = | $316,288 | |
Taxing Jurisdiction
| Owner: | COMPSTON STEPHANIE L | | |
| % Ownership: | 100.0000000000% | | |
| Total Value: | $451,840 | | |
| Tax Area: | 311 - 250-4 |
| CERFD | CURRENT EXPENSE REFUND 010 | 0.0000000000 | $451,840 | $316,288 | $0.00 | | |
| CURREXP | CURRENT EXPENSE 010 | 1.0175366760 | $451,840 | $316,288 | $321.83 | | |
| HUMNSERV | HUMAN SERVICES 119 | 0.0250000000 | $451,840 | $316,288 | $7.91 | | |
| SLDREL | SOLDIERS RELIEF 121 | 0.0155990005 | $451,840 | $316,288 | $4.93 | | |
| EMERGSER | EMS 147 | 0.3792580840 | $451,840 | $316,288 | $119.95 | | |
| EMSRFD | EMS REFUND 147 | 0.0000000000 | $451,840 | $316,288 | $0.00 | | |
| FD4EXP | FD #4 EXPENSE 686 | 0.8836993059 | $451,840 | $316,288 | $279.50 | | |
| RLBRFD | RURAL LIBRARY REFUND 623 | 0.0000000000 | $451,840 | $316,288 | $0.00 | | |
| RURALLIB | RURAL LIBRARY 623 | 0.3710609029 | $451,840 | $316,288 | $117.36 | | |
| PORTRFD | PORT REFUND 640 | 0.0000000000 | $451,840 | $316,288 | $0.00 | | |
| PORTWWGEN | PORT OF WW 640 | 0.2460186015 | $451,840 | $316,288 | $77.81 | | |
| SD250BOND | SD #250 BOND 773 | 0.0000000000 | $451,840 | $225,920 | $328.95 | | |
| SD250GEN | SD #250 GENERAL 770 | 0.0000000000 | $451,840 | $225,920 | $539.51 | | |
| ST2 | STATE SCHOOL PART 2 600 | 0.0000000000 | $451,840 | $225,920 | $183.71 | | |
| STATESCHL | STATE SCHOOL 600 | 1.5158548041 | $451,840 | $316,288 | $479.45 | | |
| STREFUND | STATE REFUND LEVY 603 | 0.0000000000 | $451,840 | $316,288 | $0.00 | | |
| COROAD | COUNTY ROAD 115 | 1.6549953990 | $451,840 | $316,288 | $523.46 | | |
| CRPRD | COUNTY ROAD REFUND 115 | 0.0000000000 | $451,840 | $316,288 | $0.00 | | |
| | Total Tax Rate: | 6.1090227739 | | | | | |
| | | | | Taxes w/Current Exemptions: | $2,984.37 | | |
| | | | | Taxes w/o Exemptions: | $4,864.64 | | |
Improvement / Building
| Improvement #1: | RESIDENTIAL | State Code: | 11 | 1824.0 sqft | Value: | $359,620 |
| Exterior Wall: | VINYL | Foundation: | SLAB FOUNDATION | | Heating/Cooling: | HEAT PUMP | Number of Bathrooms: | 2 | | Number of Bedrooms: | 3 | Plumbing: | 9 | | Roof Covering: | COMP SHINGLE |   |   |
|
| | Type | Description | Class CD | Sub Class CD | Year Built | Area |
| | MA | Main Area | 1 | 30 | 1960 | 1824.0 |
| | CPC | COVERED CARPORT/PATIO | 1 | 30 | 0 | 300.0 |
| | SI1 | SITE IMPROVEMENT | 1 | 30 | 0 | 1.5 |
| | RPO | OPEN PORCH W/ROOF | 1 | 30 | 1960 | 144.0 |
| | UTST | Utility Storage Shed | 1 | 30 | 1960 | 300.0 |
| | BNV | BUILDING NO VALUE | 1 | 10 | 1960 | 2.0 |
| | S1F | Single One Story Fireplace | 1 | 30 | 1960 | 1.0 |
Sketch
Property Image
Land
| 1 | RES 1 | Converted: Residential | 0.5400 | 23522.00 | 0.00 | 0.00 | 1.00 | $92,210 | $0 |
Roll Value History
| 2026 | N/A | N/A | N/A | N/A | N/A |
| 2025 | $431,540 | $92,210 | $0 | $523,750 | $180,732 |
| 2024 | $359,620 | $92,220 | $0 | $451,840 | $316,286 |
| 2023 | $359,620 | $92,220 | $0 | $451,840 | $316,288 |
| 2022 | $276,630 | $92,210 | $0 | $368,840 | $368,840 |
| 2021 | $254,980 | $58,600 | $0 | $313,580 | $313,580 |
| 2020 | $212,480 | $58,600 | $0 | $271,080 | $271,080 |
| 2019 | $212,480 | $58,600 | $0 | $271,080 | $271,080 |
| 2018 | $151,770 | $58,600 | $0 | $210,370 | $210,370 |
| 2017 | $144,550 | $58,600 | $0 | $203,150 | $203,150 |
| 2016 | $111,190 | $58,600 | $0 | $169,790 | $169,790 |
| 2015 | $110,250 | $58,600 | $0 | $168,850 | $168,850 |
| 2014 | $105,000 | $58,600 | $0 | $163,600 | $163,600 |
| 2013 | $105,000 | $58,600 | $0 | $163,600 | $163,600 |
| 2012 | $90,100 | $58,600 | $0 | $0 | $0 |
| 2011 | $90,100 | $58,600 | $0 | $0 | $0 |
| 2010 | $112,500 | $58,600 | $0 | $0 | $0 |
| 2009 | $153,300 | $36,800 | $0 | $0 | $0 |
| 2008 | $89,900 | $36,800 | $0 | $0 | $0 |
| 2007 | $89,900 | $36,800 | $0 | $0 | $0 |
Deed and Sales History
| 1 | 04/04/2025 | QCD | QUIT CLAIM DEED | COMPSTON STEPHANIE L | COLLEEN K COMPSTON | | | | 149171 | 2025-01777 |
| 2 | 12/15/2014 | QCD | QUIT CLAIM DEED | SILVER COLLEEN K | COMPSTON STEPHANIE L | | | $0.00 | 127107 | 2014-09100 |
| 3 | 02/18/2009 | QCD | QUIT CLAIM DEED | SILVER, COLLEEN K | SILVER, COLLEEN K | | | $49,209.00 | 116344 | 2009-01519 |
| 4 | 02/18/2009 | QCD | QUIT CLAIM DEED | SILVER, GLENN A & COLLEEN K | SILVER, COLLEEN K | | | $0.00 | 116343 | 2009-01518 |
| 5 | 03/30/1990 | WARRANTY D | WARRANTY DEED | | | | | $58,000.00 | 71912 | 1819-002113 |
Payout Agreement
| No payout information available.. |