Property
Account |
| Property ID: | 28609 | Abbreviated Legal Description: | BELLEVUE LESS NE 3' LOT 5 BLK 2 |
| Parcel Number: | 360720540205 | Agent Code: | |
| Type: | Real | | |
| Tax Area: | 1 - OL-140-F | Land Use Code | 11 |
| Open Space: | N | DFL | N |
| Historic Property: | N | Remodel Property: | N |
| Multi-Family Redevelopment: | N | | |
| Township: | 7 | Section: | 20 |
| Range: | 36 |
Location |
| Address: | 401 E PINE ST WA 99362 | Mapsco: | |
| Neighborhood: | F SFR | Map ID: | |
| Neighborhood CD: | 512011 |
Owner |
| Name: | TRI CONSTRUCTION LLC | Owner ID: | 73655 |
| Mailing Address: | PO BOX 6004 KENNEWICK, WA 99336 | % Ownership: | 100.0000000000% |
| | | Exemptions: | |
Taxes and Assessment Details
Values
| (+) Improvement Homesite Value: | + | $0 | |
| (+) Improvement Non-Homesite Value: | + | $65,000 | |
| (+) Land Homesite Value: | + | $0 | |
| (+) Land Non-Homesite Value: | + | $35,910 | |
| (+) Curr Use (HS): | + | $0 | $0 |
| (+) Curr Use (NHS): | + | $0 | $0 |
| | | -------------------------- | |
| (=) Market Value: | = | $100,910 | |
| (–) Productivity Loss: | – | $0 | |
| | | -------------------------- | |
| (=) Subtotal: | = | $100,910 | |
| (+) Senior Appraised Value: | + | $0 | |
| (+) Non-Senior Appraised Value: | + | $100,910 | |
| | | -------------------------- | |
| (=) Total Appraised Value: | = | $100,910 | |
| (–) Senior Exemption Loss: | – | $0 | |
| (–) Exemption Loss: | – | $0 | |
| | | -------------------------- | |
| (=) Taxable Value: | = | $100,910 | |
Taxing Jurisdiction
| Owner: | TRI CONSTRUCTION LLC | | |
| % Ownership: | 100.0000000000% | | |
| Total Value: | $100,910 | | |
| Tax Area: | 1 - OL-140-F |
| CERFD | CURRENT EXPENSE REFUND 010 | 0.0000000000 | $100,910 | $100,910 | $0.00 | | |
| CURREXP | CURRENT EXPENSE 010 | 1.0175366760 | $100,910 | $100,910 | $102.68 | | |
| HUMNSERV | HUMAN SERVICES 119 | 0.0250000000 | $100,910 | $100,910 | $2.52 | | |
| SLDREL | SOLDIERS RELIEF 121 | 0.0155990005 | $100,910 | $100,910 | $1.57 | | |
| EMERGSER | EMS 147 | 0.3792580840 | $100,910 | $100,910 | $38.27 | | |
| EMSRFD | EMS REFUND 147 | 0.0000000000 | $100,910 | $100,910 | $0.00 | | |
| PORTRFD | PORT REFUND 640 | 0.0000000000 | $100,910 | $100,910 | $0.00 | | |
| PORTWWGEN | PORT OF WW 640 | 0.2460186015 | $100,910 | $100,910 | $24.83 | | |
| SD140BOND | SD #140 BOND 764 | 0.8342371393 | $100,910 | $100,910 | $84.18 | | |
| SD140GEN | SD #140 GENERAL 760 | 2.0646500647 | $100,910 | $100,910 | $208.34 | | |
| ST2 | STATE SCHOOL PART 2 600 | 0.8131451643 | $100,910 | $100,910 | $82.05 | | |
| STATESCHL | STATE SCHOOL 600 | 1.5158548041 | $100,910 | $100,910 | $152.96 | | |
| STREFUND | STATE REFUND LEVY 603 | 0.0000000000 | $100,910 | $100,910 | $0.00 | | |
| CWWBOND | C OF WW BOND 643 | 0.2760494372 | $100,910 | $100,910 | $27.86 | | |
| CWWGEN | CITY OF WW 631 | 1.6100204973 | $100,910 | $100,910 | $162.47 | | |
| CWWRFD | CITY OF WALLA WALLA REFUND 631 | 0.0000000000 | $100,910 | $100,910 | $0.00 | | |
| | Total Tax Rate: | 8.7973694689 | | | | | |
| | | | | Taxes w/Current Exemptions: | $887.73 | | |
| | | | | Taxes w/o Exemptions: | $887.73 | | |
Improvement / Building
| Improvement #1: | RESIDENTIAL | State Code: | 11 | 720.0 sqft | Value: | $65,000 |
| Exterior Wall: | STUCCO | Heating/Cooling: | FORCED AIR | | Number of Bathrooms: | 1 | Number of Bedrooms: | 2 | | Plumbing: | 6 | Roof Covering: | COMP SHINGLE |
|
| | Type | Description | Class CD | Sub Class CD | Year Built | Area |
| | MA | Main Area | 1 | 30 | 1927 | 720.0 |
| | SI1 | SITE IMPROVEMENT | 1 | 30 | 1927 | 1.0 |
| | BASE | BASEMENT | 1 | 30 | 1927 | 720.0 |
| | BPF | BASEMENT -PARTITIONED FINISH | 1 | 30 | 1927 | 300.0 |
| | UTST | Utility Storage Shed | 1 | 30 | 1927 | 252.0 |
| | RPC | OPEN PORCH W/ROOF , CEILED | 1 | 30 | 1927 | 20.0 |
| | CPC | COVERED CARPORT/PATIO | 1 | 30 | 1927 | 252.0 |
Sketch
Property Image
Land
| 1 | RES 1 | Converted: Residential | 0.1570 | 6840.00 | 0.00 | 0.00 | 1.00 | $35,910 | $0 |
Roll Value History
| 2026 | N/A | N/A | N/A | N/A | N/A |
| 2025 | $198,490 | $61,560 | $0 | $260,050 | $260,050 |
| 2024 | $142,350 | $61,560 | $0 | $203,910 | $203,910 |
| 2023 | $65,000 | $35,910 | $0 | $100,910 | $100,910 |
| 2022 | $149,170 | $35,910 | $0 | $185,080 | $185,080 |
| 2021 | $106,550 | $35,910 | $0 | $142,460 | $142,460 |
| 2020 | $88,790 | $35,910 | $0 | $124,700 | $124,700 |
| 2019 | $88,790 | $35,910 | $0 | $124,700 | $124,700 |
| 2018 | $88,790 | $35,910 | $0 | $124,700 | $124,700 |
| 2017 | $92,820 | $20,500 | $0 | $113,320 | $113,320 |
| 2016 | $92,820 | $20,500 | $0 | $113,320 | $113,320 |
| 2015 | $92,820 | $20,500 | $0 | $113,320 | $113,320 |
| 2014 | $88,400 | $20,500 | $0 | $108,900 | $108,900 |
| 2013 | $88,400 | $20,500 | $0 | $108,900 | $108,900 |
| 2012 | $85,500 | $20,500 | $0 | $0 | $0 |
| 2011 | $91,100 | $20,500 | $0 | $0 | $0 |
| 2010 | $91,100 | $20,500 | $0 | $0 | $0 |
| 2009 | $103,500 | $20,500 | $0 | $0 | $0 |
| 2008 | $62,200 | $20,500 | $0 | $0 | $0 |
| 2007 | $62,200 | $20,500 | $0 | $0 | $0 |
Deed and Sales History
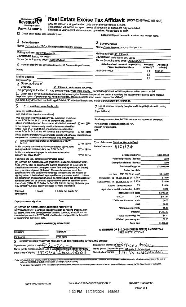
| 1 | 11/25/2024 | SWD | STATUTORY WARRANTY DEED | TRI CONSTRUCTION LLC | SIMPSON CHARLES | | | $315,000.00 | 148568 | 2024-06819 |
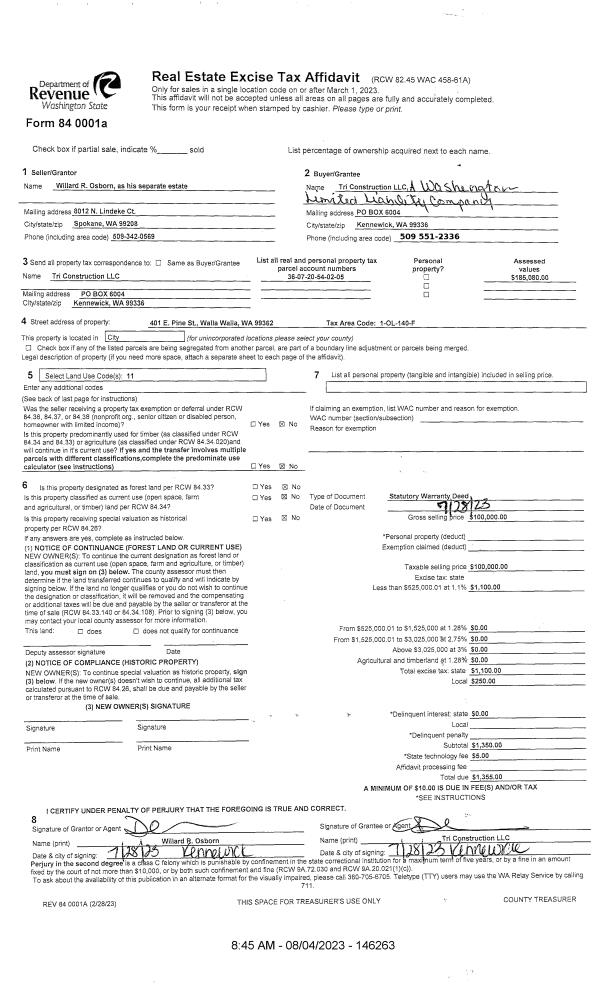
| 2 | 08/04/2023 | SWD | STATUTORY WARRANTY DEED | OSBORN WILLARD ROSS | TRI CONSTRUCTION LLC | | | $100,000.00 | 146263 | 2023-04451 |
| 3 | 09/07/2017 | DEATH CERT | DEATH CERTIFICATE | OSBORN SHARON LEE | | | | | 133165 | 2017-07030 |
| 4 | 09/07/2017 | COMMUNITY | COMMUNITY PROPERTY AGREEMENT | OSBORN WILLARD ROSS & SHARON LEE | OSBORN WILLARD ROSS & SHARON LEE | | | | 133165 | 2017-07029 |
| 5 | 09/15/1982 | WARRANTY D | WARRANTY DEED | | | | | $36,900.00 | 0 | 1348-206491 |
Payout Agreement
| No payout information available.. |