Property
Account |
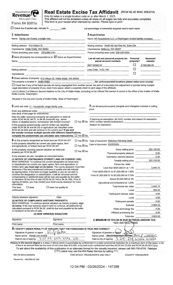
| Property ID: | 28608 | Abbreviated Legal Description: | WILSON'S 2ND ADDN LOT 9 BLOCK 2 |
| Parcel Number: | 360716590216 | Agent Code: | |
| Type: | Real | | |
| Tax Area: | 5 - OL-140 | Land Use Code | 11 |
| Open Space: | N | DFL | N |
| Historic Property: | N | Remodel Property: | N |
| Multi-Family Redevelopment: | N | | |
| Township: | 7 | Section: | 16 |
| Range: | 36 |
Location |
| Address: | 612 WILSON ST WA 99362 | Mapsco: | |
| Neighborhood: | A-SFR | Map ID: | |
| Neighborhood CD: | 513011 |
Owner |
| Name: | ACOSTA RANDY LEE | Owner ID: | 60061 |
| Mailing Address: | 612 WILSON ST WALLA WALLA, WA 99362 | % Ownership: | 100.0000000000% |
| | | Exemptions: | |
Taxes and Assessment Details
Property Tax Information as of
02/21/2026
Click on "Statement Details" to expand or collapse a tax statement.
* Please enter a valid date ** Please enter a valid date *
Statement Details |
| | TOTAL: | $0.00 | $0.00 | $0.00 | $0.00 | $0.00 | $0.00 |
|
| | $0.00 | $0.00 | $0.00 | $0.00 | $0.00 | $0.00 |
Values
| (+) Improvement Homesite Value: | + | $0 | |
| (+) Improvement Non-Homesite Value: | + | $274,040 | |
| (+) Land Homesite Value: | + | $0 | |
| (+) Land Non-Homesite Value: | + | $35,940 | |
| (+) Curr Use (HS): | + | $0 | $0 |
| (+) Curr Use (NHS): | + | $0 | $0 |
| | | -------------------------- | |
| (=) Market Value: | = | $309,980 | |
| (–) Productivity Loss: | – | $0 | |
| | | -------------------------- | |
| (=) Subtotal: | = | $309,980 | |
| (+) Senior Appraised Value: | + | $0 | |
| (+) Non-Senior Appraised Value: | + | $309,980 | |
| | | -------------------------- | |
| (=) Total Appraised Value: | = | $309,980 | |
| (–) Senior Exemption Loss: | – | $0 | |
| (–) Exemption Loss: | – | $0 | |
| | | -------------------------- | |
| (=) Taxable Value: | = | $309,980 | |
Taxing Jurisdiction
| Owner: | ACOSTA RANDY LEE | | |
| % Ownership: | 100.0000000000% | | |
| Total Value: | $309,980 | | |
| Tax Area: | 5 - OL-140 |
| CERFD | CURRENT EXPENSE REFUND 010 | 0.0000000000 | $309,980 | $309,980 | $0.00 | | |
| CURREXP | CURRENT EXPENSE 010 | 1.0175366760 | $309,980 | $309,980 | $315.42 | | |
| HUMNSERV | HUMAN SERVICES 119 | 0.0250000000 | $309,980 | $309,980 | $7.75 | | |
| SLDREL | SOLDIERS RELIEF 121 | 0.0155990005 | $309,980 | $309,980 | $4.84 | | |
| EMERGSER | EMS 147 | 0.3792580840 | $309,980 | $309,980 | $117.56 | | |
| EMSRFD | EMS REFUND 147 | 0.0000000000 | $309,980 | $309,980 | $0.00 | | |
| PORTRFD | PORT REFUND 640 | 0.0000000000 | $309,980 | $309,980 | $0.00 | | |
| PORTWWGEN | PORT OF WW 640 | 0.2460186015 | $309,980 | $309,980 | $76.26 | | |
| SD140BOND | SD #140 BOND 764 | 0.8342371393 | $309,980 | $309,980 | $258.60 | | |
| SD140GEN | SD #140 GENERAL 760 | 2.0646500647 | $309,980 | $309,980 | $640.00 | | |
| ST2 | STATE SCHOOL PART 2 600 | 0.8131451643 | $309,980 | $309,980 | $252.06 | | |
| STATESCHL | STATE SCHOOL 600 | 1.5158548041 | $309,980 | $309,980 | $469.88 | | |
| STREFUND | STATE REFUND LEVY 603 | 0.0000000000 | $309,980 | $309,980 | $0.00 | | |
| CWWBOND | C OF WW BOND 643 | 0.2760494372 | $309,980 | $309,980 | $85.57 | | |
| CWWGEN | CITY OF WW 631 | 1.6100204973 | $309,980 | $309,980 | $499.07 | | |
| CWWRFD | CITY OF WALLA WALLA REFUND 631 | 0.0000000000 | $309,980 | $309,980 | $0.00 | | |
| | Total Tax Rate: | 8.7973694689 | | | | | |
| | | | | Taxes w/Current Exemptions: | $2,727.01 | | |
| | | | | Taxes w/o Exemptions: | $2,727.01 | | |
Improvement / Building
| Improvement #1: | RESIDENTIAL | State Code: | 11 | 1354.0 sqft | Value: | $274,040 |
| Exterior Wall: | PLYWOOD | Heating/Cooling: | WARM & COOLED AIR | | Number of Bathrooms: | 2 | Number of Bedrooms: | 3 | | Plumbing: | 11 | Roof Covering: | COMP SHINGLE |
|
| | Type | Description | Class CD | Sub Class CD | Year Built | Area |
| | MA | Main Area | 1 | 30 | 2010 | 1354.0 |
| | RPC | OPEN PORCH W/ROOF , CEILED | 1 | 30 | 2010 | 91.0 |
| | SI1 | SITE IMPROVEMENT | 1 | 30 | 0 | 1.5 |
| | ATG | Attached Garage | 1 | 30 | 2010 | 336.0 |
| | OSP | Open | 1 | 30 | 2010 | 156.0 |
Sketch
Property Image
Land
| 1 | RES 1 | Converted: Residential | 0.1320 | 5750.00 | 0.00 | 0.00 | 1.00 | $35,940 | $0 |
Roll Value History
| 2026 | N/A | N/A | N/A | N/A | N/A |
| 2025 | $291,630 | $57,500 | $0 | $349,130 | $349,130 |
| 2024 | $253,590 | $57,500 | $0 | $311,090 | $311,090 |
| 2023 | $274,040 | $35,940 | $0 | $309,980 | $309,980 |
| 2022 | $260,990 | $35,940 | $0 | $296,930 | $296,930 |
| 2021 | $226,950 | $35,940 | $0 | $262,890 | $262,890 |
| 2020 | $151,300 | $35,940 | $0 | $187,240 | $187,240 |
| 2019 | $151,300 | $35,940 | $0 | $187,240 | $187,240 |
| 2018 | $151,300 | $35,940 | $0 | $187,240 | $187,240 |
| 2017 | $154,130 | $18,100 | $0 | $172,230 | $172,230 |
| 2016 | $128,440 | $18,100 | $0 | $146,540 | $146,540 |
| 2015 | $122,330 | $18,100 | $0 | $140,430 | $140,430 |
| 2014 | $116,500 | $18,100 | $0 | $134,600 | $134,600 |
| 2013 | $116,500 | $18,100 | $0 | $134,600 | $134,600 |
| 2012 | $116,500 | $18,100 | $0 | $0 | $0 |
| 2011 | $79,600 | $18,100 | $0 | $0 | $0 |
| 2010 | $0 | $18,100 | $0 | $0 | $0 |
| 2009 | $0 | $18,100 | $0 | $0 | $0 |
| 2008 | $0 | $18,100 | $0 | $0 | $0 |
| 2007 | $116,500 | $18,100 | $0 | $0 | $0 |
Deed and Sales History
| 1 | 07/05/2024 | SWD | STATUTORY WARRANTY DEED | AR ACQUISITIONS LLC | NEUMANN JESSICA & DUSTIN | | | $355,000.00 | 147816 | 2024-03599 |
| 2 | 03/26/2024 | SWD | STATUTORY WARRANTY DEED | ACOSTA RANDY LEE | AR ACQUISITIONS LLC | | | $222,100.00 | 147288 | 2024-01440 |
| 3 | 11/28/2016 | SWD | STATUTORY WARRANTY DEED | TOWNSEND SARAH | ACOSTA RANDY LEE | | | $189,900.00 | 131485 | 2016-09734 |
| 4 | 08/30/2016 | FUL | FULFILLMENT DEED | BLUE MOUNTAIN PARTNERS | TOWNSEND SARAH | | | | 0 | 2016-06973 |
| 5 | 06/25/2010 | WARRANTY D | WARRANTY DEED | HABITAT FOR HUMANITY | TOWNSEND, SARAH | | | $98,000.00 | 118662 | 2010-04935 |
| 6 | 04/30/2007 | WARRANTY D | WARRANTY DEED | BURNETT, VIRGINIA E | HABITAT FOR HUMANITY | | | $58,000.00 | 112715 | 2007-04801 |
Payout Agreement
| No payout information available.. |