| 1 | 08/20/2024 | SWD | STATUTORY WARRANTY DEED | SHAPIRO SHEILA & COLBERG KAREN | GAY KRISTI KAY & DOUGLAS CLAYBORN | | | $475,000.00 | 148065 | 2024-04661 |
| 2 | 04/22/2024 | DEATH CERT | DEATH CERTIFICATE | ALEXANDER JOHN A | SHAPIRO SHEILA & COLBERG KAREN | | | | 147428 | 2024-02005 |
| 3 | 04/19/2024 | DEATH CERT | DEATH CERTIFICATE | ALEXANDER JOHN A | COLBERG KAREN | | | | 0 | 2024-01948 |
| 4 | 04/19/2024 | DEATH CERT | DEATH CERTIFICATE | ALEXANDER JOHN A | SHAPIRO SHEILA | | | | 0 | 2024-01948 |
| 5 | 08/08/2023 | TODD | TRANSFER ON DEATH DEED | ALEXANDER JOHN A | COLBERG KAREN | | | | 0 | 2023-04536 |
| 6 | 08/08/2023 | TODD | TRANSFER ON DEATH DEED | ALEXANDER JOHN A | SHAPIRO SHEILA | | | | 0 | 2023-04536 |
| 7 | 06/01/2022 | QCD | QUIT CLAIM DEED | ALEXANDER JOHN A & GERENE | ALEXANDER JOHN A | | | $0.00 | 144069 | 2022-04701 |
| 8 | 06/13/2011 | AFFIDAVIT | AFFIDAVIT | MAJERUS, DOUGLAS & CHRISTINA | KYKO LLC | | | | 120259 | -120259 |
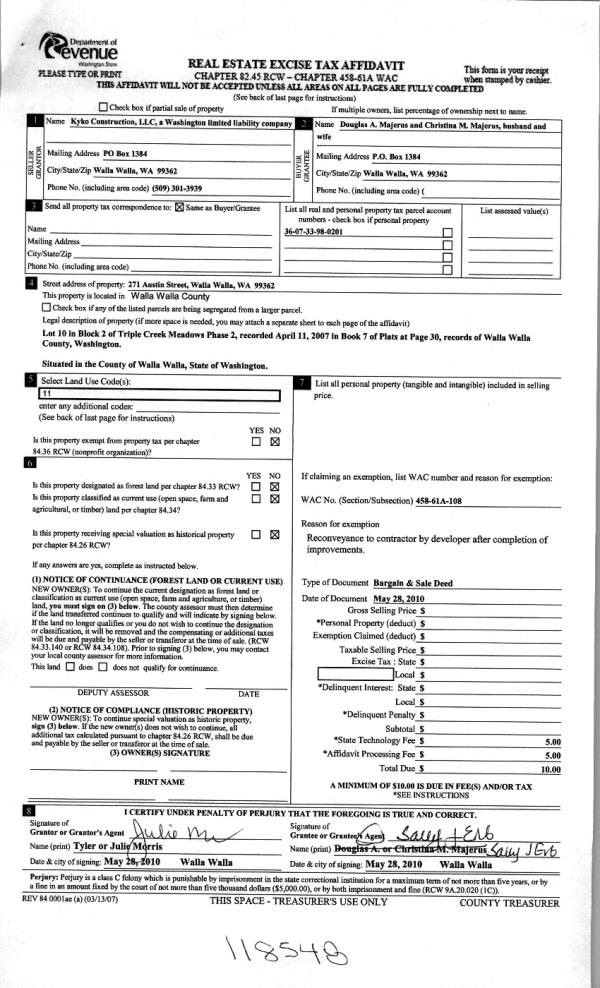
| 9 | 05/28/2010 | WARRANTY D | WARRANTY DEED | KYKO CONSTRUCTION LLC | MAJERUS, DOUGLAS A & CHRISTINA | | | $0.00 | 118548 | 2010-04173 |
| 10 | 05/28/2010 | WARRANTY D | WARRANTY DEED | MAJERUS, DOUGLAS A & CHRISTINA | ALEXANDER, JOHN A & GERENE | | | $229,900.00 | 118549 | 2010-04174 |
| 11 | 03/11/2010 | WARRANTY D | WARRANTY DEED | MAJERUS, DOUGLAS & CHRISTINA | KYKO CONSTRUCTION LLC | | | | 118193 | 2010-02081 |
| 12 | 03/10/2010 | WARRANTY D | WARRANTY DEED | MAJERUS, DOUGLAS | KYKO CONSTRUCTION LLC | | | | 118185 | 2010-02052 |