Property
Account |
| Property ID: | 28581 | Abbreviated Legal Description: | WAINWRIGHT LOT 5 BLK 1 AND W 42' OF LOT 6 |
| Parcel Number: | 360734510105 | Agent Code: | |
| Type: | Real | | |
| Tax Area: | 101 - 140-4 | Land Use Code | 11 |
| Open Space: | N | DFL | N |
| Historic Property: | N | Remodel Property: | N |
| Multi-Family Redevelopment: | N | | |
| Township: | 7 | Section: | 34 |
| Range: | 36 |
Location |
| Address: | 1839 RESER RD WA 99362 | Mapsco: | |
| Neighborhood: | VG Res Rural/City Inf | Map ID: | |
| Neighborhood CD: | 415012 |
Owner |
| Name: | MORELOS JULIO C III & AMANDA A | Owner ID: | 64491 |
| Mailing Address: | 1839 RESER RD WALLA WALLA, WA 99362 | % Ownership: | 100.0000000000% |
| | | Exemptions: | |
Taxes and Assessment Details
Property Tax Information as of
02/21/2026
Click on "Statement Details" to expand or collapse a tax statement.
* Please enter a valid date ** Please enter a valid date *
Statement Details |
| | TOTAL: | $0.00 | $0.00 | $0.00 | $0.00 | $0.00 | $0.00 |
|
| | $0.00 | $0.00 | $0.00 | $0.00 | $0.00 | $0.00 |
Values
| (+) Improvement Homesite Value: | + | $0 | |
| (+) Improvement Non-Homesite Value: | + | $288,410 | |
| (+) Land Homesite Value: | + | $0 | |
| (+) Land Non-Homesite Value: | + | $153,400 | |
| (+) Curr Use (HS): | + | $0 | $0 |
| (+) Curr Use (NHS): | + | $0 | $0 |
| | | -------------------------- | |
| (=) Market Value: | = | $441,810 | |
| (–) Productivity Loss: | – | $0 | |
| | | -------------------------- | |
| (=) Subtotal: | = | $441,810 | |
| (+) Senior Appraised Value: | + | $0 | |
| (+) Non-Senior Appraised Value: | + | $441,810 | |
| | | -------------------------- | |
| (=) Total Appraised Value: | = | $441,810 | |
| (–) Senior Exemption Loss: | – | $0 | |
| (–) Exemption Loss: | – | $0 | |
| | | -------------------------- | |
| (=) Taxable Value: | = | $441,810 | |
Taxing Jurisdiction
| Owner: | MORELOS JULIO C III & AMANDA A | | |
| % Ownership: | 100.0000000000% | | |
| Total Value: | $441,810 | | |
| Tax Area: | 101 - 140-4 |
| CERFD | CURRENT EXPENSE REFUND 010 | 0.0000000000 | $441,810 | $441,810 | $0.00 | | |
| CURREXP | CURRENT EXPENSE 010 | 1.0175366760 | $441,810 | $441,810 | $449.56 | | |
| HUMNSERV | HUMAN SERVICES 119 | 0.0250000000 | $441,810 | $441,810 | $11.05 | | |
| SLDREL | SOLDIERS RELIEF 121 | 0.0155990005 | $441,810 | $441,810 | $6.89 | | |
| EMERGSER | EMS 147 | 0.3792580840 | $441,810 | $441,810 | $167.56 | | |
| EMSRFD | EMS REFUND 147 | 0.0000000000 | $441,810 | $441,810 | $0.00 | | |
| FD4EXP | FD #4 EXPENSE 686 | 0.8836993059 | $441,810 | $441,810 | $390.43 | | |
| RLBRFD | RURAL LIBRARY REFUND 623 | 0.0000000000 | $441,810 | $441,810 | $0.00 | | |
| RURALLIB | RURAL LIBRARY 623 | 0.3710609029 | $441,810 | $441,810 | $163.94 | | |
| PORTRFD | PORT REFUND 640 | 0.0000000000 | $441,810 | $441,810 | $0.00 | | |
| PORTWWGEN | PORT OF WW 640 | 0.2460186015 | $441,810 | $441,810 | $108.69 | | |
| SD140BOND | SD #140 BOND 764 | 0.8342371393 | $441,810 | $441,810 | $368.57 | | |
| SD140GEN | SD #140 GENERAL 760 | 2.0646500647 | $441,810 | $441,810 | $912.18 | | |
| ST2 | STATE SCHOOL PART 2 600 | 0.8131451643 | $441,810 | $441,810 | $359.26 | | |
| STATESCHL | STATE SCHOOL 600 | 1.5158548041 | $441,810 | $441,810 | $669.72 | | |
| STREFUND | STATE REFUND LEVY 603 | 0.0000000000 | $441,810 | $441,810 | $0.00 | | |
| COROAD | COUNTY ROAD 115 | 1.6549953990 | $441,810 | $441,810 | $731.19 | | |
| CRPRD | COUNTY ROAD REFUND 115 | 0.0000000000 | $441,810 | $441,810 | $0.00 | | |
| | Total Tax Rate: | 9.8210551422 | | | | | |
| | | | | Taxes w/Current Exemptions: | $4,339.04 | | |
| | | | | Taxes w/o Exemptions: | $4,339.04 | | |
Improvement / Building
| Improvement #1: | RESIDENTIAL | State Code: | 11 | 2280.0 sqft | Value: | $288,410 |
| Exterior Wall: | METAL/STEEL | Foundation: | SLAB FOUNDATION | | Heating/Cooling: | WARM & COOLED AIR | Number of Bathrooms: | 3 | | Number of Bedrooms: | 4 | Plumbing: | 11 | | Roof Covering: | COMP SHINGLE |   |   |
|
| | Type | Description | Class CD | Sub Class CD | Year Built | Area |
| | MA | Main Area | 3 | 35 | 1949 | 2280.0 |
| | CPC | COVERED CARPORT/PATIO | 3 | 35 | 0 | 323.0 |
| | GFP | GAS FIREPLACE | 3 | 35 | 0 | 1.0 |
| | SI1 | SITE IMPROVEMENT | 3 | 35 | 0 | 2.5 |
| | ATG | Attached Garage | 3 | 35 | 1949 | 529.0 |
| | RPO | OPEN PORCH W/ROOF | 3 | 35 | 1949 | 20.0 |
| | S1F | Single One Story Fireplace | 3 | 35 | 1949 | 1.0 |
Sketch
Property Image
Land
| 1 | RES 1 | Converted: Residential | 0.7461 | 32500.00 | 0.00 | 0.00 | 1.00 | $153,400 | $0 |
Roll Value History
| 2026 | N/A | N/A | N/A | N/A | N/A |
| 2025 | $302,830 | $153,400 | $0 | $456,230 | $456,230 |
| 2024 | $288,410 | $153,400 | $0 | $441,810 | $441,810 |
| 2023 | $288,410 | $153,400 | $0 | $441,810 | $441,810 |
| 2022 | $339,300 | $77,030 | $0 | $416,330 | $416,330 |
| 2021 | $234,000 | $77,030 | $0 | $311,030 | $311,030 |
| 2020 | $222,860 | $77,030 | $0 | $299,890 | $299,890 |
| 2019 | $222,860 | $77,030 | $0 | $299,890 | $299,890 |
| 2018 | $212,250 | $77,030 | $0 | $289,280 | $289,280 |
| 2017 | $212,250 | $77,030 | $0 | $289,280 | $289,280 |
| 2016 | $189,100 | $66,300 | $0 | $255,400 | $255,400 |
| 2015 | $189,100 | $66,300 | $0 | $255,400 | $255,400 |
| 2014 | $189,100 | $66,300 | $0 | $255,400 | $255,400 |
| 2013 | $189,100 | $66,300 | $0 | $255,400 | $255,400 |
| 2012 | $189,100 | $66,300 | $0 | $0 | $0 |
| 2011 | $193,400 | $66,300 | $0 | $0 | $0 |
| 2010 | $164,600 | $66,300 | $0 | $0 | $0 |
| 2009 | $190,200 | $66,300 | $0 | $0 | $0 |
| 2008 | $190,200 | $66,300 | $0 | $0 | $0 |
| 2007 | $111,600 | $43,800 | $0 | $0 | $0 |
Deed and Sales History
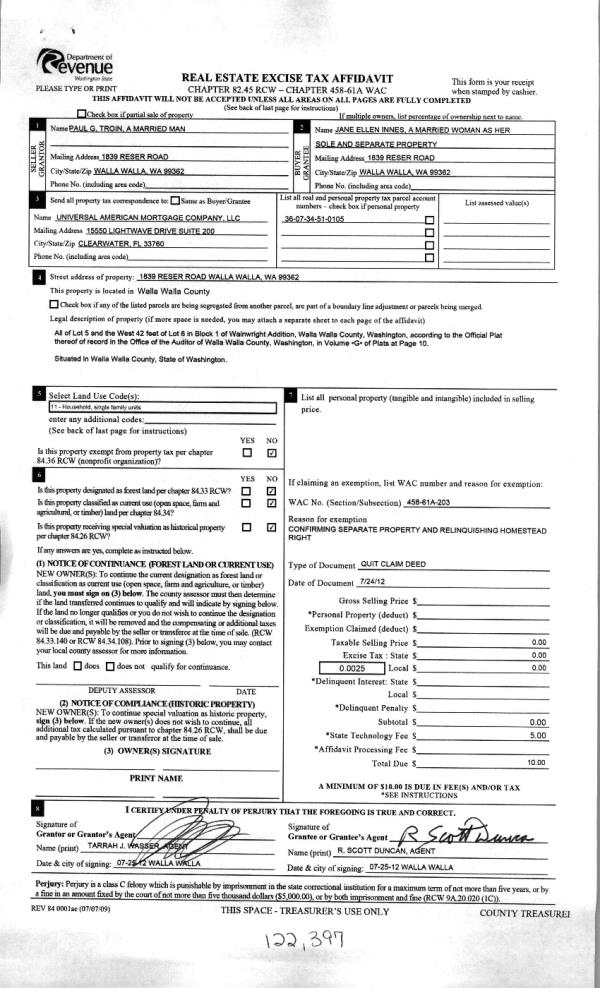
| 1 | 01/04/2019 | SWD | STATUTORY WARRANTY DEED | INNES JANE ELLEN | MORELOS JULIO C III & AMANDA A | | | $312,000.00 | 136211 | 2019-00060 |
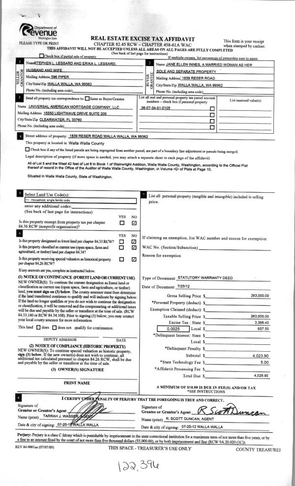
| 2 | 07/26/2012 | QCD | QUIT CLAIM DEED | TROIN, PAUL G | INNES, JANE ELLEN | | | $0.00 | 122397 | 2012-06366 |
| 3 | 07/26/2012 | WARRANTY D | WARRANTY DEED | LESSARD, STEPHEN K & ERIKA L | INNES, JANE ELLEN | | | $263,000.00 | 122396 | 2012-06365 |
| 4 | 06/16/2010 | WARRANTY D | WARRANTY DEED | WORTHINGTON KENT LLC | LESSARD, STEPHEN K & ERIKA L | | | $262,000.00 | 118629 | 2010-04642 |
| 5 | 08/19/2009 | WARRANTY D | WARRANTY DEED | ESSER, HAROLD J LIFE ESTATE | WORTHINGTON KENT LLC | | | $204,000.00 | 117193 | 2009-08446 |
| 6 | 02/24/2009 | QCD | QUIT CLAIM DEED | ESSER, JOHN W | ESSER, DONNA J | | | | 116372 | 2009-01780 |
| 7 | 08/17/2006 | WARRANTY D | WARRANTY DEED | ESSER, HAROLD J | ESSER, HAROLD J LIFE ESTATE | | | | 110979 | 2006-09893 |
| 8 | 01/01/1963 | WARRANTY D | WARRANTY DEED | | | | | $22,000.00 | 0 | 2990-433622 |
Payout Agreement
| No payout information available.. |