Property
Account |
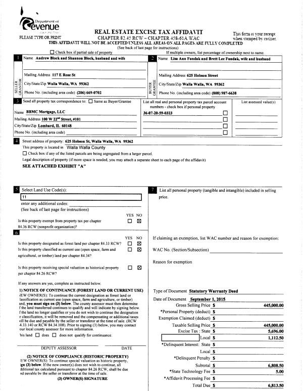
| Property ID: | 28572 | Abbreviated Legal Description: | COLLEGE TAX 2 LOT 8 BLK 3 |
| Parcel Number: | 360720590323 | Agent Code: | |
| Type: | Real | | |
| Tax Area: | 1 - OL-140-F | Land Use Code | 11 |
| Open Space: | N | DFL | N |
| Historic Property: | N | Remodel Property: | N |
| Multi-Family Redevelopment: | N | | |
| Township: | 7 | Section: | 20 |
| Range: | 36 |
Location |
| Address: | 625 HOBSON ST WA 99362 | Mapsco: | |
| Neighborhood: | G-SFR | Map ID: | |
| Neighborhood CD: | 514011 |
Owner |
| Name: | FUNDAK BRETT LEE & LISA ANN | Owner ID: | 57338 |
| Mailing Address: | 625 HOBSON ST WALLA WALLA, WA 99362 | % Ownership: | 100.0000000000% |
| | | Exemptions: | |
Taxes and Assessment Details
Values
| (+) Improvement Homesite Value: | + | $0 | |
| (+) Improvement Non-Homesite Value: | + | $742,790 | |
| (+) Land Homesite Value: | + | $0 | |
| (+) Land Non-Homesite Value: | + | $63,440 | |
| (+) Curr Use (HS): | + | $0 | $0 |
| (+) Curr Use (NHS): | + | $0 | $0 |
| | | -------------------------- | |
| (=) Market Value: | = | $806,230 | |
| (–) Productivity Loss: | – | $0 | |
| | | -------------------------- | |
| (=) Subtotal: | = | $806,230 | |
| (+) Senior Appraised Value: | + | $0 | |
| (+) Non-Senior Appraised Value: | + | $806,230 | |
| | | -------------------------- | |
| (=) Total Appraised Value: | = | $806,230 | |
| (–) Senior Exemption Loss: | – | $0 | |
| (–) Exemption Loss: | – | $0 | |
| | | -------------------------- | |
| (=) Taxable Value: | = | $806,230 | |
Taxing Jurisdiction
| Owner: | FUNDAK BRETT LEE & LISA ANN | | |
| % Ownership: | 100.0000000000% | | |
| Total Value: | $806,230 | | |
| Tax Area: | 1 - OL-140-F |
| CERFD | CURRENT EXPENSE REFUND 010 | 0.0000000000 | $806,230 | $806,230 | $0.00 | | |
| CURREXP | CURRENT EXPENSE 010 | 1.0175366760 | $806,230 | $806,230 | $820.37 | | |
| HUMNSERV | HUMAN SERVICES 119 | 0.0250000000 | $806,230 | $806,230 | $20.16 | | |
| SLDREL | SOLDIERS RELIEF 121 | 0.0155990005 | $806,230 | $806,230 | $12.58 | | |
| EMERGSER | EMS 147 | 0.3792580840 | $806,230 | $806,230 | $305.77 | | |
| EMSRFD | EMS REFUND 147 | 0.0000000000 | $806,230 | $806,230 | $0.00 | | |
| PORTRFD | PORT REFUND 640 | 0.0000000000 | $806,230 | $806,230 | $0.00 | | |
| PORTWWGEN | PORT OF WW 640 | 0.2460186015 | $806,230 | $806,230 | $198.35 | | |
| SD140BOND | SD #140 BOND 764 | 0.8342371393 | $806,230 | $806,230 | $672.59 | | |
| SD140GEN | SD #140 GENERAL 760 | 2.0646500647 | $806,230 | $806,230 | $1,664.58 | | |
| ST2 | STATE SCHOOL PART 2 600 | 0.8131451643 | $806,230 | $806,230 | $655.58 | | |
| STATESCHL | STATE SCHOOL 600 | 1.5158548041 | $806,230 | $806,230 | $1,222.13 | | |
| STREFUND | STATE REFUND LEVY 603 | 0.0000000000 | $806,230 | $806,230 | $0.00 | | |
| CWWBOND | C OF WW BOND 643 | 0.2760494372 | $806,230 | $806,230 | $222.56 | | |
| CWWGEN | CITY OF WW 631 | 1.6100204973 | $806,230 | $806,230 | $1,298.05 | | |
| CWWRFD | CITY OF WALLA WALLA REFUND 631 | 0.0000000000 | $806,230 | $806,230 | $0.00 | | |
| | Total Tax Rate: | 8.7973694689 | | | | | |
| | | | | Taxes w/Current Exemptions: | $7,092.72 | | |
| | | | | Taxes w/o Exemptions: | $7,092.72 | | |
Improvement / Building
| Improvement #1: | RESIDENTIAL | State Code: | 11 | 1492.0 sqft | Value: | $742,790 |
| Exterior Wall: | SIDING | Heating/Cooling: | WARM & COOLED AIR | | Number of Bathrooms: | 2 | Number of Bedrooms: | 2 | | Plumbing: | 12 | Roof Covering: | COMP SHINGLE |
|
| | Type | Description | Class CD | Sub Class CD | Year Built | Area |
| | MA | Main Area | 1 | 50 | 1918 | 1492.0 |
| | SI1 | SITE IMPROVEMENT | 1 | 50 | 1918 | 3.5 |
| | BASE | BASEMENT | 1 | 50 | 1918 | 1492.0 |
| | BPF | BASEMENT -PARTITIONED FINISH | 1 | 50 | 1918 | 1492.0 |
| | DTG | Detached Garage | 1 | 50 | 2007 | 576.0 |
| | BASE | BASEMENT | 1 | 50 | 2007 | 576.0 |
| | GIF | GARAGE INTERIOR FINISH | 1 | 50 | 2007 | 576.0 |
| | APP | APPLIANCE ALLOWANCE | 1 | 50 | 2007 | 1.0 |
| | WOD | Wood Deck | 1 | 50 | 2007 | 526.0 |
| | HVAC | HEAT/AC SYSTEM | 1 | 50 | 2007 | 576.0 |
| | PRC | PORCH W STEPS, ROOF,CEILED | 1 | 50 | 1918 | 104.0 |
| | S1F | Single One Story Fireplace | 1 | 50 | 1918 | 1.0 |
Sketch
Property Image
Land
| 1 | RES 1 | Converted: Residential | 0.2009 | 8750.00 | 0.00 | 0.00 | 1.00 | $63,440 | $0 |
Roll Value History
| 2026 | N/A | N/A | N/A | N/A | N/A |
| 2025 | $723,060 | $96,250 | $0 | $819,310 | $819,310 |
| 2024 | $723,060 | $96,250 | $0 | $819,310 | $819,310 |
| 2023 | $742,790 | $63,440 | $0 | $806,230 | $806,230 |
| 2022 | $675,260 | $63,440 | $0 | $738,700 | $738,700 |
| 2021 | $450,170 | $63,440 | $0 | $513,610 | $513,610 |
| 2020 | $409,250 | $63,440 | $0 | $472,690 | $472,690 |
| 2019 | $409,250 | $63,440 | $0 | $472,690 | $472,690 |
| 2018 | $389,760 | $63,440 | $0 | $453,200 | $453,200 |
| 2017 | $413,770 | $39,400 | $0 | $453,170 | $453,170 |
| 2016 | $413,770 | $39,400 | $0 | $453,170 | $453,170 |
| 2015 | $413,770 | $39,400 | $0 | $453,170 | $453,170 |
| 2014 | $359,800 | $39,400 | $0 | $399,200 | $399,200 |
| 2013 | $359,800 | $39,400 | $0 | $399,200 | $399,200 |
| 2012 | $359,800 | $39,400 | $0 | $0 | $0 |
| 2011 | $340,800 | $39,400 | $0 | $0 | $0 |
| 2010 | $340,800 | $39,400 | $0 | $0 | $0 |
| 2009 | $206,700 | $39,400 | $0 | $0 | $0 |
| 2008 | $174,600 | $39,400 | $0 | $0 | $0 |
| 2007 | $174,600 | $39,400 | $0 | $0 | $0 |
Deed and Sales History
| 1 | 06/27/2024 | SWD | STATUTORY WARRANTY DEED | FUNDAK BRETT LEE & LISA ANN | PETERS SCOTT & DEBORAH A | | | $830,000.00 | 147777 | 2024-03434 |
| 2 | 09/02/2015 | SWD | STATUTORY WARRANTY DEED | BLOCK ANDREW & SHANNON | FUNDAK BRETT LEE & LISA ANN | | | $445,000.00 | 128755 | 2015-07761 |
| 3 | 06/11/2010 | WARRANTY D | WARRANTY DEED | BLAIR, ERIC & HOLLY | BLOCK, ANDREW & SHANNON | | | $420,000.00 | 118605 | 2010-04503 |
| 4 | 04/16/2008 | WARRANTY D | WARRANTY DEED | MURDOCH, WILLIAM B L & CRISTIN | BLAIR, ERIC & HOLLY | | | $390,000.00 | 114846 | 2008-03729 |
| 5 | 07/11/2002 | WARRANTY D | WARRANTY DEED | | | | | $113,000.00 | 99921 | 2002-0007874 |
Payout Agreement
| No payout information available.. |