Property
Account |
| Property ID: | 28569 | Abbreviated Legal Description: | 33-7-36 LOT 6 OF SHORT PLAT (PTN LOT 41 OF ABBOTT ACRE TRACTS PLUSNLY PTN TAX 5 IN SW1/4NE1/4) |
| Parcel Number: | 360733130036 | Agent Code: | |
| Type: | Real | | |
| Tax Area: | 1 - OL-140-F | Land Use Code | 11 |
| Open Space: | N | DFL | N |
| Historic Property: | N | Remodel Property: | N |
| Multi-Family Redevelopment: | N | | |
| Township: | 7 | Section: | 33 |
| Range: | 36 |
Location |
| Address: | 974 CARMELLA ST WALLA WALLA, WA 99362 | Mapsco: | |
| Neighborhood: | A Res | Map ID: | |
| Neighborhood CD: | 613011 |
Owner |
| Name: | SELFA ANDRE C | Owner ID: | 60581 |
| Mailing Address: | 974 CARMELLA ST WALLA WALLA, WA 99362 | % Ownership: | 100.0000000000% |
| | | Exemptions: | |
Taxes and Assessment Details
Values
| (+) Improvement Homesite Value: | + | $0 | |
| (+) Improvement Non-Homesite Value: | + | $438,490 | |
| (+) Land Homesite Value: | + | $0 | |
| (+) Land Non-Homesite Value: | + | $90,000 | |
| (+) Curr Use (HS): | + | $0 | $0 |
| (+) Curr Use (NHS): | + | $0 | $0 |
| | | -------------------------- | |
| (=) Market Value: | = | $528,490 | |
| (–) Productivity Loss: | – | $0 | |
| | | -------------------------- | |
| (=) Subtotal: | = | $528,490 | |
| (+) Senior Appraised Value: | + | $0 | |
| (+) Non-Senior Appraised Value: | + | $528,490 | |
| | | -------------------------- | |
| (=) Total Appraised Value: | = | $528,490 | |
| (–) Senior Exemption Loss: | – | $0 | |
| (–) Exemption Loss: | – | $0 | |
| | | -------------------------- | |
| (=) Taxable Value: | = | $528,490 | |
Taxing Jurisdiction
| Owner: | SELFA ANDRE C | | |
| % Ownership: | 100.0000000000% | | |
| Total Value: | $528,490 | | |
| Tax Area: | 1 - OL-140-F |
| CERFD | CURRENT EXPENSE REFUND 010 | 0.0000000000 | $528,490 | $528,490 | $0.00 | | |
| CURREXP | CURRENT EXPENSE 010 | 1.0175366760 | $528,490 | $528,490 | $537.76 | | |
| HUMNSERV | HUMAN SERVICES 119 | 0.0250000000 | $528,490 | $528,490 | $13.21 | | |
| SLDREL | SOLDIERS RELIEF 121 | 0.0155990005 | $528,490 | $528,490 | $8.24 | | |
| EMERGSER | EMS 147 | 0.3792580840 | $528,490 | $528,490 | $200.43 | | |
| EMSRFD | EMS REFUND 147 | 0.0000000000 | $528,490 | $528,490 | $0.00 | | |
| PORTRFD | PORT REFUND 640 | 0.0000000000 | $528,490 | $528,490 | $0.00 | | |
| PORTWWGEN | PORT OF WW 640 | 0.2460186015 | $528,490 | $528,490 | $130.02 | | |
| SD140BOND | SD #140 BOND 764 | 0.8342371393 | $528,490 | $528,490 | $440.89 | | |
| SD140GEN | SD #140 GENERAL 760 | 2.0646500647 | $528,490 | $528,490 | $1,091.15 | | |
| ST2 | STATE SCHOOL PART 2 600 | 0.8131451643 | $528,490 | $528,490 | $429.74 | | |
| STATESCHL | STATE SCHOOL 600 | 1.5158548041 | $528,490 | $528,490 | $801.11 | | |
| STREFUND | STATE REFUND LEVY 603 | 0.0000000000 | $528,490 | $528,490 | $0.00 | | |
| CWWBOND | C OF WW BOND 643 | 0.2760494372 | $528,490 | $528,490 | $145.89 | | |
| CWWGEN | CITY OF WW 631 | 1.6100204973 | $528,490 | $528,490 | $850.88 | | |
| CWWRFD | CITY OF WALLA WALLA REFUND 631 | 0.0000000000 | $528,490 | $528,490 | $0.00 | | |
| | Total Tax Rate: | 8.7973694689 | | | | | |
| | | | | Taxes w/Current Exemptions: | $4,649.32 | | |
| | | | | Taxes w/o Exemptions: | $4,649.32 | | |
Improvement / Building
| Improvement #1: | RESIDENTIAL | State Code: | 11 | 2280.0 sqft | Value: | $438,490 |
| Exterior Wall: | PLYWOOD | Heating/Cooling: | WARM & COOLED AIR | | Number of Bathrooms: | 2 | Number of Bedrooms: | 4 | | Plumbing: | 9 | Roof Covering: | COMP SHINGLE |
|
| | Type | Description | Class CD | Sub Class CD | Year Built | Area |
| | MA | Main Area | 2 | 35 | 2006 | 2280.0 |
| | SI1 | SITE IMPROVEMENT | 2 | 35 | 2006 | 3.5 |
| | UPFL | Upper Floor (included in main area) | 2 | 35 | 2006 | 1300.0 |
| | BIG | Built In Garage | 2 | 35 | 2006 | 640.0 |
| | RPO | OPEN PORCH W/ROOF | 2 | 35 | 2006 | 210.0 |
| | GFP | GAS FIREPLACE | 2 | 35 | 2006 | 1.0 |
Sketch
Property Image
Land
| 1 | RES 1 | Converted: Residential | 0.2212 | 9634.00 | 0.00 | 0.00 | 1.00 | $90,000 | $0 |
Roll Value History
| 2026 | N/A | N/A | N/A | N/A | N/A |
| 2025 | $288,670 | $125,000 | $0 | $413,670 | $413,670 |
| 2024 | $438,490 | $90,000 | $0 | $528,490 | $528,490 |
| 2023 | $438,490 | $90,000 | $0 | $528,490 | $528,490 |
| 2022 | $398,630 | $75,000 | $0 | $473,630 | $473,630 |
| 2021 | $306,640 | $75,000 | $0 | $381,640 | $381,640 |
| 2020 | $185,840 | $75,000 | $0 | $260,840 | $260,840 |
| 2019 | $185,840 | $75,000 | $0 | $260,840 | $260,840 |
| 2018 | $208,510 | $50,000 | $0 | $258,510 | $258,510 |
| 2017 | $208,510 | $50,000 | $0 | $258,510 | $258,510 |
| 2016 | $198,580 | $50,000 | $0 | $248,580 | $248,580 |
| 2015 | $198,580 | $50,000 | $0 | $248,580 | $248,580 |
| 2014 | $177,300 | $50,000 | $0 | $227,300 | $227,300 |
| 2013 | $177,300 | $50,000 | $0 | $227,300 | $227,300 |
| 2012 | $177,300 | $50,000 | $0 | $0 | $0 |
| 2011 | $177,300 | $50,000 | $0 | $0 | $0 |
| 2010 | $177,300 | $50,000 | $0 | $0 | $0 |
| 2009 | $202,500 | $50,000 | $0 | $0 | $0 |
| 2008 | $202,500 | $50,000 | $0 | $0 | $0 |
| 2007 | $226,500 | $24,300 | $0 | $0 | $0 |
Deed and Sales History
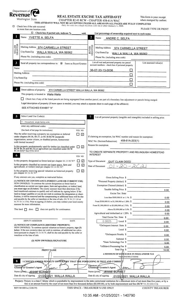
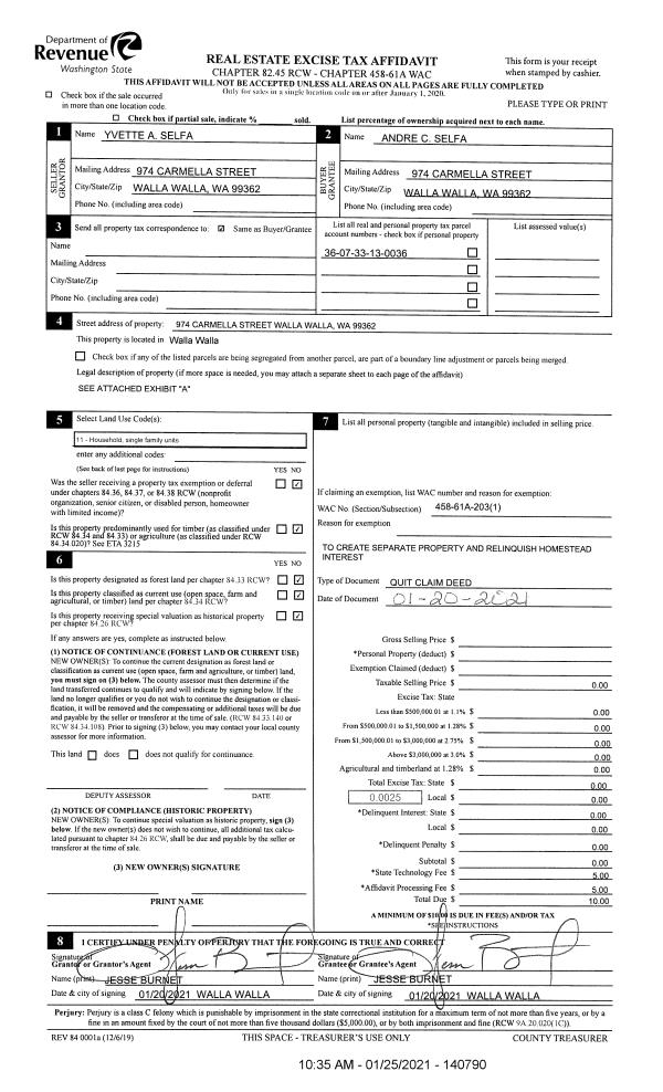
| 1 | 01/20/2021 | QCD | QUIT CLAIM DEED | SELFA YVETTE A | SELFA ANDRE C | | | $0.00 | 140790 | 2021-00928 |
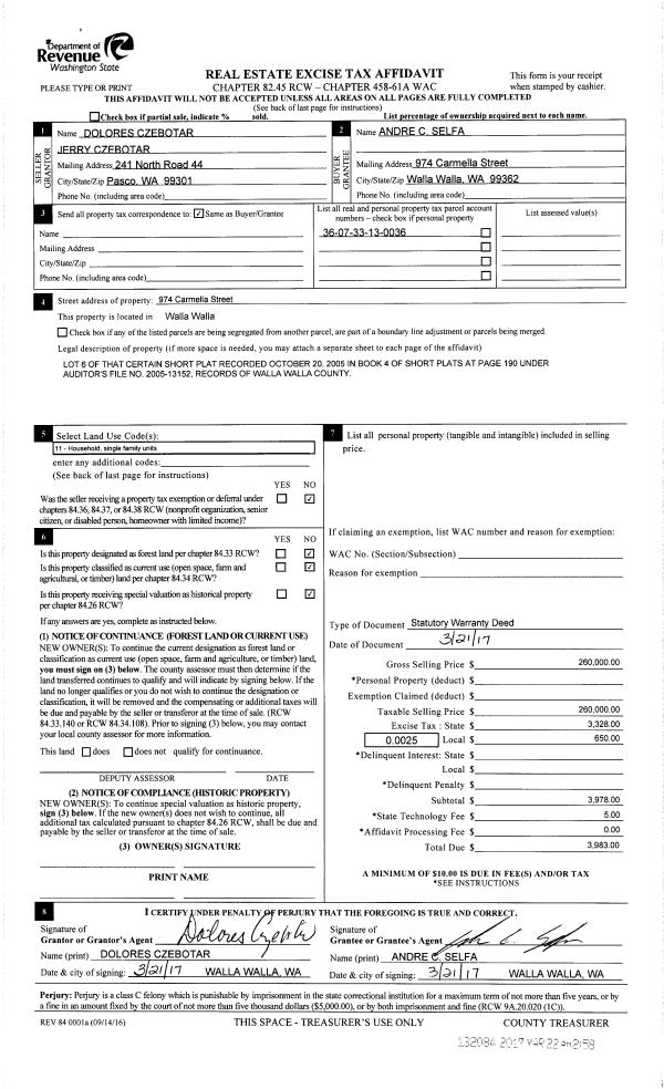
| 2 | 03/22/2017 | SWD | STATUTORY WARRANTY DEED | CZEBOTAR JERRY & DOLORES | SELFA ANDRE C | | | $260,000.00 | 132084 | 2017-02189 |
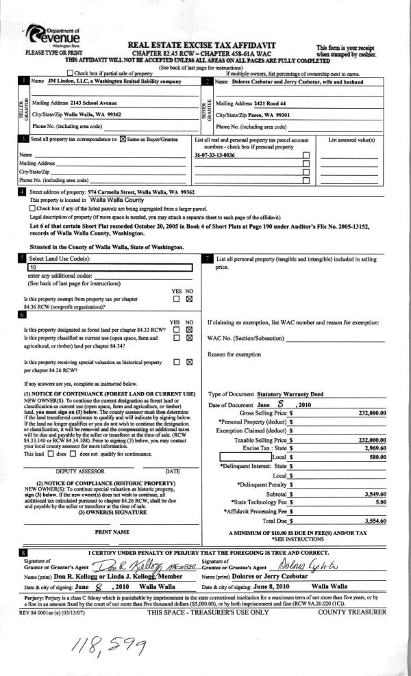
| 3 | 06/09/2010 | WARRANTY D | WARRANTY DEED | J M LINDON LLC | CZEBOTAR, JERRY & DOLORES | | | $232,000.00 | 118599 | 2010-04436 |
| 4 | 11/25/2008 | QCD | QUIT CLAIM DEED | KELLOGG, DON R & LINDA J | J M LINDON LLC | | | $83,855.00 | 116011 | 2008-11764 |
| 5 | 11/25/2008 | QCD | QUIT CLAIM DEED | DON R KELLOGG & LINDA J | J M LINDON LLC | | | $0.00 | 116010 | 2008--11764 |
| 6 | 09/30/2008 | QCD | QUIT CLAIM DEED | MAJERUS CONSTRUCTION INC | KELLOGG, DON R & LINDA J | | | $0.00 | 115729 | 2008-10017 |
Payout Agreement
| No payout information available.. |