Property
Account |
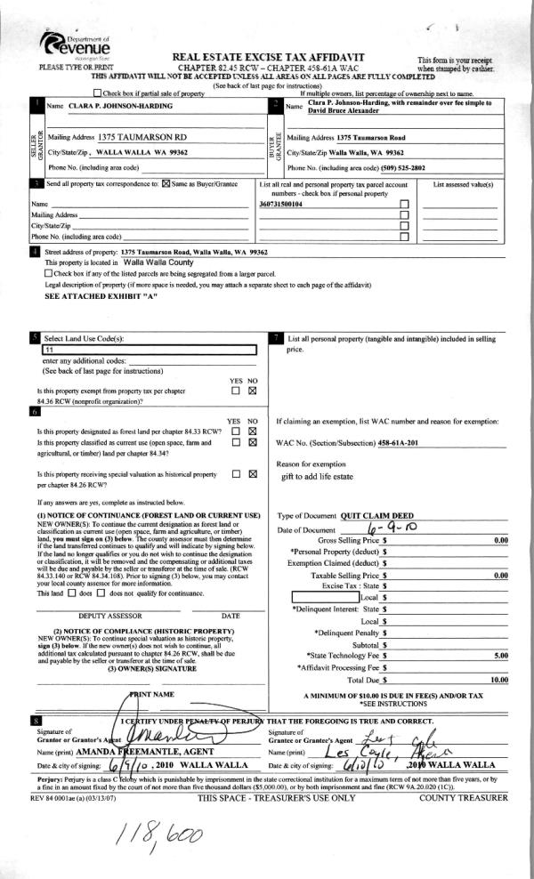
| Property ID: | 28552 | Abbreviated Legal Description: | COUNTRY CLUB ESTATES TAX 1 LOT 4 BLK 1 |
| Parcel Number: | 360731500104 | Agent Code: | |
| Type: | Real | | |
| Tax Area: | 101 - 140-4 | Land Use Code | 11 |
| Open Space: | N | DFL | N |
| Historic Property: | N | Remodel Property: | N |
| Multi-Family Redevelopment: | N | | |
| Township: | 7 | Section: | 31 |
| Range: | 36 |
Location |
| Address: | 1375 TAUMARSON RD WA 99362 | Mapsco: | |
| Neighborhood: | G SFR Rural/City Inf | Map ID: | |
| Neighborhood CD: | 114012 |
Owner |
| Name: | CADWELL JAMES BRANDON & ANGELA KATHERINE | Owner ID: | 54907 |
| Mailing Address: | 1375 TAUMARSON RD WALLA WALLA, WA 99362 | % Ownership: | 100.0000000000% |
| | | Exemptions: | |
Taxes and Assessment Details
Property Tax Information as of
02/21/2026
Click on "Statement Details" to expand or collapse a tax statement.
* Please enter a valid date ** Please enter a valid date *
Statement Details |
| | TOTAL: | $0.00 | $0.00 | $0.00 | $0.00 | $0.00 | $0.00 |
|
| | $0.00 | $0.00 | $0.00 | $0.00 | $0.00 | $0.00 |
Values
| (+) Improvement Homesite Value: | + | $0 | |
| (+) Improvement Non-Homesite Value: | + | $416,270 | |
| (+) Land Homesite Value: | + | $0 | |
| (+) Land Non-Homesite Value: | + | $113,500 | |
| (+) Curr Use (HS): | + | $0 | $0 |
| (+) Curr Use (NHS): | + | $0 | $0 |
| | | -------------------------- | |
| (=) Market Value: | = | $529,770 | |
| (–) Productivity Loss: | – | $0 | |
| | | -------------------------- | |
| (=) Subtotal: | = | $529,770 | |
| (+) Senior Appraised Value: | + | $0 | |
| (+) Non-Senior Appraised Value: | + | $529,770 | |
| | | -------------------------- | |
| (=) Total Appraised Value: | = | $529,770 | |
| (–) Senior Exemption Loss: | – | $0 | |
| (–) Exemption Loss: | – | $0 | |
| | | -------------------------- | |
| (=) Taxable Value: | = | $529,770 | |
Taxing Jurisdiction
| Owner: | CADWELL JAMES BRANDON & ANGELA KATHERINE | | |
| % Ownership: | 100.0000000000% | | |
| Total Value: | $529,770 | | |
| Tax Area: | 101 - 140-4 |
| CERFD | CURRENT EXPENSE REFUND 010 | 0.0000000000 | $529,770 | $529,770 | $0.00 | | |
| CURREXP | CURRENT EXPENSE 010 | 1.0175366760 | $529,770 | $529,770 | $539.06 | | |
| HUMNSERV | HUMAN SERVICES 119 | 0.0250000000 | $529,770 | $529,770 | $13.24 | | |
| SLDREL | SOLDIERS RELIEF 121 | 0.0155990005 | $529,770 | $529,770 | $8.26 | | |
| EMERGSER | EMS 147 | 0.3792580840 | $529,770 | $529,770 | $200.92 | | |
| EMSRFD | EMS REFUND 147 | 0.0000000000 | $529,770 | $529,770 | $0.00 | | |
| FD4EXP | FD #4 EXPENSE 686 | 0.8836993059 | $529,770 | $529,770 | $468.16 | | |
| RLBRFD | RURAL LIBRARY REFUND 623 | 0.0000000000 | $529,770 | $529,770 | $0.00 | | |
| RURALLIB | RURAL LIBRARY 623 | 0.3710609029 | $529,770 | $529,770 | $196.58 | | |
| PORTRFD | PORT REFUND 640 | 0.0000000000 | $529,770 | $529,770 | $0.00 | | |
| PORTWWGEN | PORT OF WW 640 | 0.2460186015 | $529,770 | $529,770 | $130.33 | | |
| SD140BOND | SD #140 BOND 764 | 0.8342371393 | $529,770 | $529,770 | $441.95 | | |
| SD140GEN | SD #140 GENERAL 760 | 2.0646500647 | $529,770 | $529,770 | $1,093.79 | | |
| ST2 | STATE SCHOOL PART 2 600 | 0.8131451643 | $529,770 | $529,770 | $430.78 | | |
| STATESCHL | STATE SCHOOL 600 | 1.5158548041 | $529,770 | $529,770 | $803.05 | | |
| STREFUND | STATE REFUND LEVY 603 | 0.0000000000 | $529,770 | $529,770 | $0.00 | | |
| COROAD | COUNTY ROAD 115 | 1.6549953990 | $529,770 | $529,770 | $876.77 | | |
| CRPRD | COUNTY ROAD REFUND 115 | 0.0000000000 | $529,770 | $529,770 | $0.00 | | |
| | Total Tax Rate: | 9.8210551422 | | | | | |
| | | | | Taxes w/Current Exemptions: | $5,202.89 | | |
| | | | | Taxes w/o Exemptions: | $5,202.89 | | |
Improvement / Building
| Improvement #1: | RESIDENTIAL | State Code: | 11 | 2160.0 sqft | Value: | $416,270 |
| Exterior Wall: | PLYWOOD | Heating/Cooling: | WARM & COOLED AIR | | Number of Bathrooms: | 3 | Number of Bedrooms: | 3 | | Plumbing: | 13 | Roof Covering: | COMP SHINGLE |
|
| | Type | Description | Class CD | Sub Class CD | Year Built | Area |
| | MA | Main Area | 1 | 30 | 1961 | 2160.0 |
| | CPC | COVERED CARPORT/PATIO | 1 | 30 | 0 | 764.0 |
| | SI1 | SITE IMPROVEMENT | 1 | 30 | 0 | 2.5 |
| | BASE | BASEMENT | 1 | 30 | 1961 | 1480.0 |
| | BPF | BASEMENT -PARTITIONED FINISH | 1 | 30 | 1961 | 1480.0 |
| | ATG | Attached Garage | 1 | 30 | 1961 | 672.0 |
| | S1F | Single One Story Fireplace | 1 | 30 | 1961 | 2.0 |
Sketch
Property Image
Land
| 1 | RES 1 | Converted: Residential | 0.7801 | 33981.00 | 0.00 | 0.00 | 1.00 | $113,500 | $0 |
Roll Value History
| 2026 | N/A | N/A | N/A | N/A | N/A |
| 2025 | $353,830 | $168,890 | $0 | $522,720 | $522,720 |
| 2024 | $416,270 | $113,500 | $0 | $529,770 | $529,770 |
| 2023 | $416,270 | $113,500 | $0 | $529,770 | $529,770 |
| 2022 | $416,270 | $113,500 | $0 | $529,770 | $529,770 |
| 2021 | $333,020 | $113,500 | $0 | $446,520 | $446,520 |
| 2020 | $246,680 | $113,500 | $0 | $360,180 | $360,180 |
| 2019 | $295,180 | $65,000 | $0 | $360,180 | $360,180 |
| 2018 | $245,980 | $65,000 | $0 | $310,980 | $310,980 |
| 2017 | $175,700 | $65,000 | $0 | $240,700 | $240,700 |
| 2016 | $175,700 | $65,000 | $0 | $240,700 | $240,700 |
| 2015 | $163,300 | $65,000 | $0 | $228,300 | $228,300 |
| 2014 | $187,700 | $65,000 | $0 | $252,700 | $252,700 |
| 2013 | $187,700 | $65,000 | $0 | $252,700 | $252,700 |
| 2012 | $187,700 | $65,000 | $0 | $0 | $0 |
| 2011 | $187,700 | $65,000 | $0 | $0 | $0 |
| 2010 | $187,700 | $65,000 | $0 | $0 | $0 |
| 2009 | $215,800 | $65,000 | $0 | $0 | $0 |
| 2008 | $153,800 | $40,000 | $0 | $0 | $0 |
| 2007 | $153,800 | $40,000 | $0 | $0 | $0 |
Deed and Sales History
| 1 | 04/03/2025 | QCD | QUIT CLAIM DEED | CADWELL JAMES BRANDON & ANGELA KATHERINE | CADWELL ANGELA KATHERINE | | | | 149162 | 2025-01741 |
| 2 | 05/14/2014 | SWD | STATUTORY WARRANTY DEED | ALEXANDER DAVID BRUCE | CADWELL JAMES BRANDON & ANGELA KATHERINE | | | $230,000.00 | 125882 | 2014-03269 |
| 3 | 06/10/2010 | QCD | QUIT CLAIM DEED | JOHNSON-HARDING, CLARA P | JOHNSON-HARDING, CLARA LIFE ES | | | | 118600 | 2010-04440 |
| 4 | 06/02/1978 | WARRANTY D | WARRANTY DEED | | | | | $75,000.00 | 0 | 8378-04956 |
Payout Agreement
| No payout information available.. |