Property
Account |
| Property ID: | 28548 | Abbreviated Legal Description: | WATERTOWN LOT 17 BLK 1 LESS W 50'; LOT 18 BLK 1 |
| Parcel Number: | 360721730118 | Agent Code: | |
| Type: | Real | | |
| Tax Area: | 1 - OL-140-F | Land Use Code | 11 |
| Open Space: | N | DFL | N |
| Historic Property: | N | Remodel Property: | N |
| Multi-Family Redevelopment: | N | | |
| Township: | 7 | Section: | 21 |
| Range: | 36 |
Location |
| Address: | 1551 OLIVE ST WA 99362 | Mapsco: | |
| Neighborhood: | A-SFR | Map ID: | |
| Neighborhood CD: | 513011 |
Owner |
| Name: | RANSOM MICHAEL A | Owner ID: | 72779 |
| Mailing Address: | 1551 OLIVE ST WALLA WALLA, WA 99362 | % Ownership: | 100.0000000000% |
| | | Exemptions: | SNR/DSBL |
Taxes and Assessment Details
Property Tax Information as of
02/21/2026
Click on "Statement Details" to expand or collapse a tax statement.
* Please enter a valid date ** Please enter a valid date *
Statement Details |
| | TOTAL: | $0.00 | $0.00 | $0.00 | $0.00 | $0.00 | $0.00 |
|
| | $0.00 | $0.00 | $0.00 | $0.00 | $0.00 | $0.00 |
Values
| (+) Improvement Homesite Value: | + | $182,980 | |
| (+) Improvement Non-Homesite Value: | + | $0 | |
| (+) Land Homesite Value: | + | $46,880 | |
| (+) Land Non-Homesite Value: | + | $0 | |
| (+) Curr Use (HS): | + | $0 | $0 |
| (+) Curr Use (NHS): | + | $0 | $0 |
| | | -------------------------- | |
| (=) Market Value: | = | $229,860 | |
| (–) Productivity Loss: | – | $0 | |
| | | -------------------------- | |
| (=) Subtotal: | = | $229,860 | |
| (+) Senior Appraised Value: | + | $205,990 | |
| (+) Non-Senior Appraised Value: | + | $0 | |
| | | -------------------------- | |
| (=) Total Appraised Value: | = | $205,990 | |
| (–) Senior Exemption Loss: | – | $123,594 | |
| (–) Exemption Loss: | – | $0 | |
| | | -------------------------- | |
| (=) Taxable Value: | = | $82,396 | |
Taxing Jurisdiction
| Owner: | RANSOM MICHAEL A | | |
| % Ownership: | 100.0000000000% | | |
| Total Value: | $229,860 | | |
| Tax Area: | 1 - OL-140-F |
| CERFD | CURRENT EXPENSE REFUND 010 | 0.0000000000 | $229,860 | $82,396 | $0.00 | | |
| CURREXP | CURRENT EXPENSE 010 | 1.0175366760 | $229,860 | $82,396 | $83.84 | | |
| HUMNSERV | HUMAN SERVICES 119 | 0.0250000000 | $229,860 | $82,396 | $2.06 | | |
| SLDREL | SOLDIERS RELIEF 121 | 0.0155990005 | $229,860 | $82,396 | $1.29 | | |
| EMERGSER | EMS 147 | 0.3792580840 | $229,860 | $82,396 | $31.25 | | |
| EMSRFD | EMS REFUND 147 | 0.0000000000 | $229,860 | $82,396 | $0.00 | | |
| PORTRFD | PORT REFUND 640 | 0.0000000000 | $229,860 | $82,396 | $0.00 | | |
| PORTWWGEN | PORT OF WW 640 | 0.2460186015 | $229,860 | $82,396 | $20.27 | | |
| SD140BOND | SD #140 BOND 764 | 0.0000000000 | $229,860 | $0 | $0.00 | | |
| SD140GEN | SD #140 GENERAL 760 | 0.0000000000 | $229,860 | $0 | $0.00 | | |
| ST2 | STATE SCHOOL PART 2 600 | 0.0000000000 | $229,860 | $0 | $0.00 | | |
| STATESCHL | STATE SCHOOL 600 | 1.5158548041 | $229,860 | $82,396 | $124.90 | | |
| STREFUND | STATE REFUND LEVY 603 | 0.0000000000 | $229,860 | $82,396 | $0.00 | | |
| CWWBOND | C OF WW BOND 643 | 0.0000000000 | $229,860 | $0 | $0.00 | | |
| CWWGEN | CITY OF WW 631 | 1.6100204973 | $229,860 | $82,396 | $132.66 | | |
| CWWRFD | CITY OF WALLA WALLA REFUND 631 | 0.0000000000 | $229,860 | $82,396 | $0.00 | | |
| | Total Tax Rate: | 4.8092876634 | | | | | |
| | | | | Taxes w/Current Exemptions: | $396.27 | | |
| | | | | Taxes w/o Exemptions: | $2,022.17 | | |
Improvement / Building
| Improvement #1: | RESIDENTIAL | State Code: | 11 | 786.0 sqft | Value: | $182,980 |
| Exterior Wall: | PLYWOOD | Heating/Cooling: | BASEBOARD ELECTRIC | | Number of Bathrooms: | 1 | Number of Bedrooms: | 2 | | Plumbing: | 6 | Roof Covering: | COMP SHINGLE |
|
| | Type | Description | Class CD | Sub Class CD | Year Built | Area |
| | MA | Main Area | 1 | 20 | 1920 | 786.0 |
| | SI1 | SITE IMPROVEMENT | 1 | 20 | 1920 | 1.5 |
| | DTG | Detached Garage | 1 | 20 | 1920 | 480.0 |
Sketch
Property Image
Land
| 1 | RES 1 | Converted: Residential | 0.1722 | 7500.00 | 0.00 | 0.00 | 1.00 | $46,880 | $0 |
Roll Value History
| 2026 | N/A | N/A | N/A | N/A | N/A |
| 2025 | $156,910 | $75,000 | $0 | $231,910 | $82,396 |
| 2024 | $156,910 | $75,000 | $0 | $231,910 | $82,396 |
| 2023 | $182,980 | $46,880 | $0 | $229,860 | $82,396 |
| 2022 | $159,110 | $46,880 | $0 | $205,990 | $82,396 |
| 2021 | $127,290 | $46,880 | $0 | $174,170 | $174,170 |
| 2020 | $84,860 | $46,880 | $0 | $131,740 | $131,740 |
| 2019 | $84,860 | $46,880 | $0 | $131,740 | $131,740 |
| 2018 | $84,860 | $46,880 | $0 | $131,740 | $131,740 |
| 2017 | $98,550 | $30,000 | $0 | $128,550 | $128,550 |
| 2016 | $93,850 | $30,000 | $0 | $123,850 | $123,850 |
| 2015 | $104,280 | $30,000 | $0 | $134,280 | $134,280 |
| 2014 | $86,900 | $30,000 | $0 | $116,900 | $116,900 |
| 2013 | $86,900 | $30,000 | $0 | $116,900 | $116,900 |
| 2012 | $86,900 | $30,000 | $0 | $0 | $0 |
| 2011 | $53,500 | $30,000 | $0 | $0 | $0 |
| 2010 | $68,200 | $30,000 | $0 | $0 | $0 |
| 2009 | $79,100 | $30,000 | $0 | $0 | $0 |
| 2008 | $53,900 | $30,000 | $0 | $0 | $0 |
| 2007 | $53,900 | $30,000 | $0 | $0 | $0 |
Deed and Sales History
| 1 | 11/02/2022 | SWD | STATUTORY WARRANTY DEED | HATCH AARON | RANSOM MICHAEL A | | | $247,500.00 | 144956 | 2022-08890 |
| 2 | 04/05/2017 | SWD | STATUTORY WARRANTY DEED | DOUGHTY STEVEN N & CHERYL A | HATCH AARON | | | $136,000.00 | 132153 | 2017-02538 |
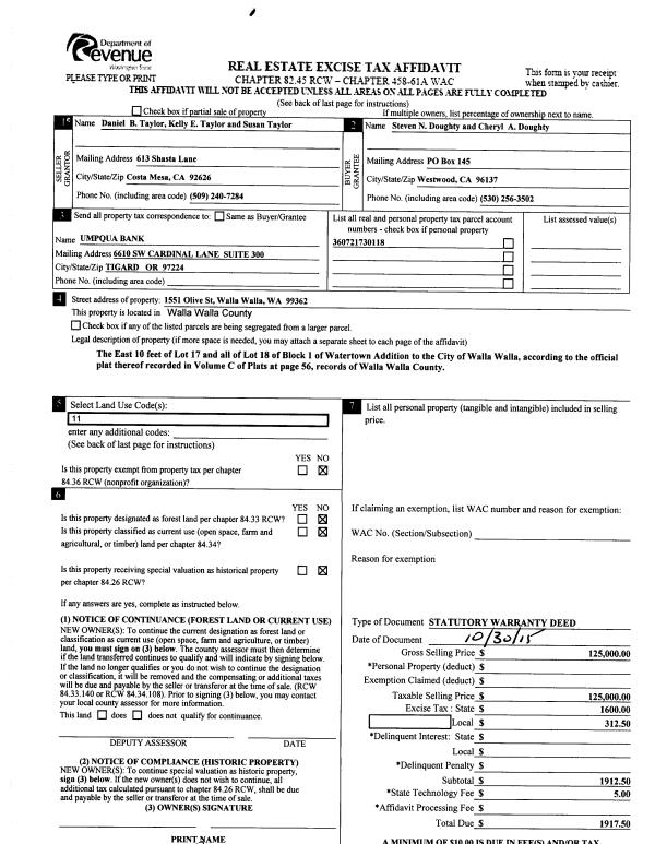
| 3 | 11/04/2015 | SWD | STATUTORY WARRANTY DEED | TAYLOR DANIEL B | DOUGHTY STEVEN N & CHERYL A | | | $125,000.00 | 129125 | 2015-09598 |
| 4 | 12/17/2010 | WARRANTY D | WARRANTY DEED | FLORES, SAMUEL & TERESA | TAYLOR, DANIEL B | | | | 119472 | 2010-10446 |
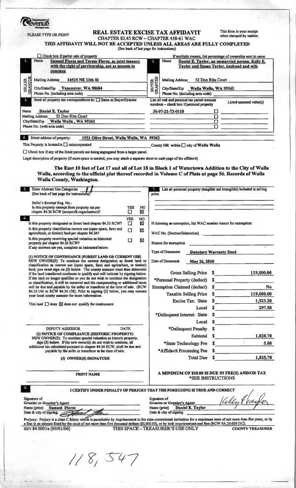
| 5 | 05/28/2010 | WARRANTY D | WARRANTY DEED | FLORES, SAMUEL | TAYLOR, DANIEL E | | | $119,000.00 | 118547 | 2010-04169 |
| 6 | 11/08/2006 | WARRANTY D | WARRANTY DEED | FLORES, SAMUEL L | FLORES, SAMUEL | | | | 111618 | 2006-13471 |
| 7 | 01/06/1997 | WARRANTY D | WARRANTY DEED | | | | | $70,000.00 | 87507 | 2479-700105 |
Payout Agreement
| No payout information available.. |