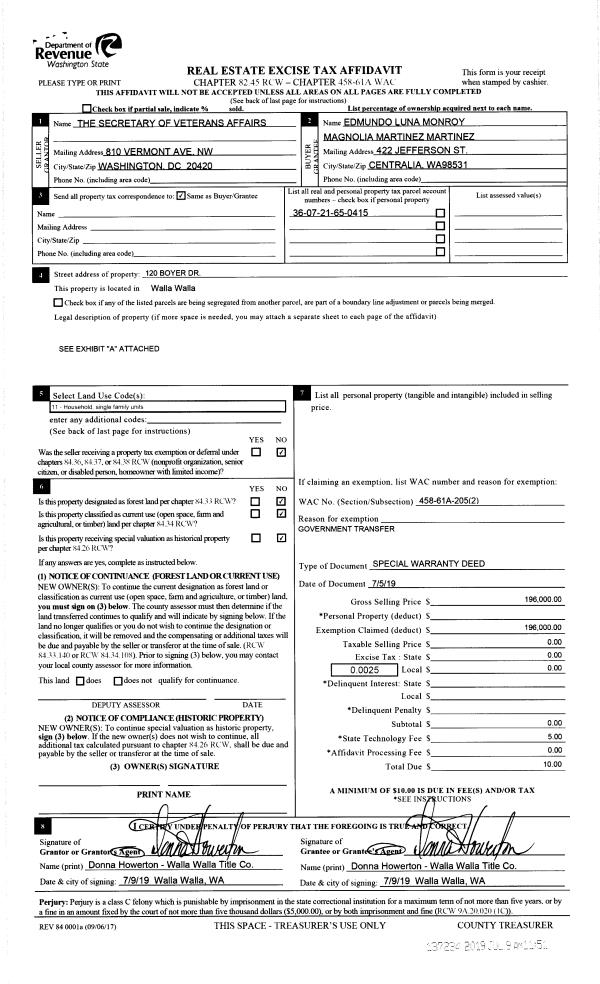
| 1 | 07/09/2019 | SWP | Special Warranty Deed | SECRETARY OF VETERANS AFFAIRS | MONROY EDMUNDO LUNA | | | $196,000.00 | 137234 | 2019-04878 |
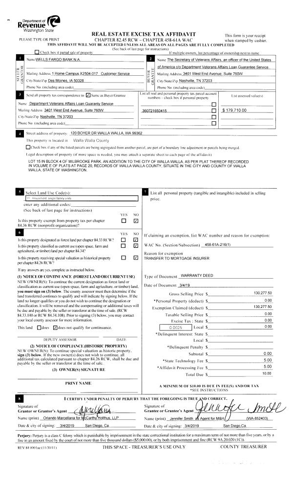
| 2 | 03/08/2019 | WARRANTY D | WARRANTY DEED | WELLS FARGO BANK | SECRETARY OF VETERANS AFFAIRS | | | $130,277.00 | 136499 | 2019-01541 |
| 3 | 02/19/2019 | TRUSTEES D | TRUSTEE'S DEED | QUALITY LOAN SERVICE CORP OF WA | WELLS FARGO BANK | | | $130,277.00 | 136429 | 2019-01234 |
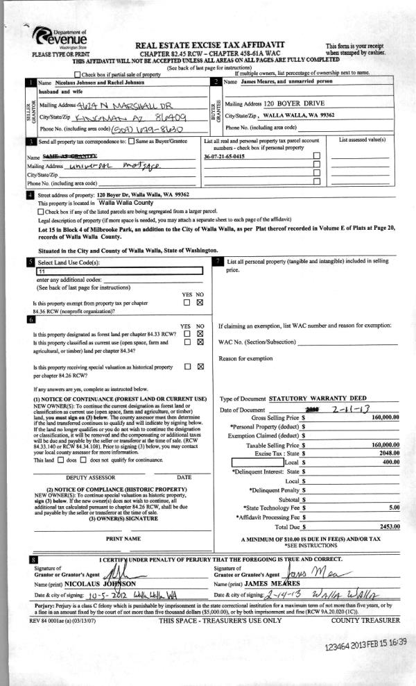
| 4 | 02/15/2013 | WARRANTY D | WARRANTY DEED | JOHNSON, NICOLAUS & RACHEL D | MEARES, JAMES | | | $160,000.00 | 123464 | 2013-01389 |
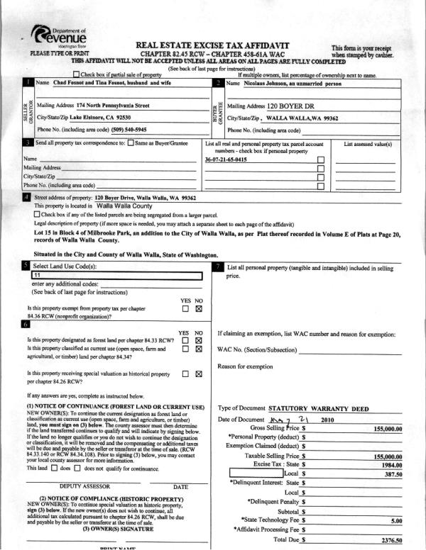
| 5 | 05/25/2010 | WARRANTY D | WARRANTY DEED | FOSNOT, CHAD & TINA | JOHNSON, NICOLAUS & RACHEL D | | | $155,000.00 | 118521 | 2010-04070 |
| 6 | 08/22/2007 | QCD | QUIT CLAIM DEED | BALL, TINA M (NOW FOSNOT) | FOSNOT, CHAD & TINA | | | | 113556 | 2007-09831 |
| 7 | 03/09/2005 | WARRANTY D | WARRANTY DEED | SERVISS, EDWARD G | BALL, TINA M | | | $140,000.00 | 106950 | 2005-02683 |
| 8 | 03/09/2005 | QCD | QUIT CLAIM DEED | BALL, EUGENE | BALL, TINA M | | | | 106951 | 2005-02684 |
| 9 | 09/09/2002 | WARRANTY D | WARRANTY DEED | DELEONARD, BRUCE P & PATRICIA | SERVISS, EDWARD G | | | $117,500.00 | 100332 | 2002-10081 |
| 10 | 07/10/1992 | WARRANTY D | WARRANTY DEED | | | | | $59,000.00 | 77184 | 1989-206014 |