Property
Account |
| Property ID: | 28540 | Abbreviated Legal Description: | MILBROOKE PARK LT 1 BLK 7 |
| Parcel Number: | 360721650701 | Agent Code: | |
| Type: | Real | | |
| Tax Area: | 1 - OL-140-F | Land Use Code | 11 |
| Open Space: | N | DFL | N |
| Historic Property: | N | Remodel Property: | N |
| Multi-Family Redevelopment: | N | | |
| Township: | 7 | Section: | 21 |
| Range: | 36 |
Location |
| Address: | 37 CASCADE DR WA 99362 | Mapsco: | |
| Neighborhood: | A-Superior SFR | Map ID: | |
| Neighborhood CD: | 513211 |
Owner |
| Name: | BANALES IRMA L VILLEGAS | Owner ID: | 57445 |
| Mailing Address: | 37 CASCADE DR WALLA WALLA, WA 99362 | % Ownership: | 100.0000000000% |
| | | Exemptions: | |
Taxes and Assessment Details
Values
| (+) Improvement Homesite Value: | + | $0 | |
| (+) Improvement Non-Homesite Value: | + | $173,300 | |
| (+) Land Homesite Value: | + | $0 | |
| (+) Land Non-Homesite Value: | + | $49,500 | |
| (+) Curr Use (HS): | + | $0 | $0 |
| (+) Curr Use (NHS): | + | $0 | $0 |
| | | -------------------------- | |
| (=) Market Value: | = | $222,800 | |
| (–) Productivity Loss: | – | $0 | |
| | | -------------------------- | |
| (=) Subtotal: | = | $222,800 | |
| (+) Senior Appraised Value: | + | $0 | |
| (+) Non-Senior Appraised Value: | + | $222,800 | |
| | | -------------------------- | |
| (=) Total Appraised Value: | = | $222,800 | |
| (–) Senior Exemption Loss: | – | $0 | |
| (–) Exemption Loss: | – | $0 | |
| | | -------------------------- | |
| (=) Taxable Value: | = | $222,800 | |
Taxing Jurisdiction
| Owner: | BANALES IRMA L VILLEGAS | | |
| % Ownership: | 100.0000000000% | | |
| Total Value: | $222,800 | | |
| Tax Area: | 1 - OL-140-F |
| CERFD | CURRENT EXPENSE REFUND 010 | 0.0000000000 | $222,800 | $222,800 | $0.00 | | |
| CURREXP | CURRENT EXPENSE 010 | 1.0175366760 | $222,800 | $222,800 | $226.71 | | |
| HUMNSERV | HUMAN SERVICES 119 | 0.0250000000 | $222,800 | $222,800 | $5.57 | | |
| SLDREL | SOLDIERS RELIEF 121 | 0.0155990005 | $222,800 | $222,800 | $3.48 | | |
| EMERGSER | EMS 147 | 0.3792580840 | $222,800 | $222,800 | $84.50 | | |
| EMSRFD | EMS REFUND 147 | 0.0000000000 | $222,800 | $222,800 | $0.00 | | |
| PORTRFD | PORT REFUND 640 | 0.0000000000 | $222,800 | $222,800 | $0.00 | | |
| PORTWWGEN | PORT OF WW 640 | 0.2460186015 | $222,800 | $222,800 | $54.81 | | |
| SD140BOND | SD #140 BOND 764 | 0.8342371393 | $222,800 | $222,800 | $185.87 | | |
| SD140GEN | SD #140 GENERAL 760 | 2.0646500647 | $222,800 | $222,800 | $460.00 | | |
| ST2 | STATE SCHOOL PART 2 600 | 0.8131451643 | $222,800 | $222,800 | $181.17 | | |
| STATESCHL | STATE SCHOOL 600 | 1.5158548041 | $222,800 | $222,800 | $337.73 | | |
| STREFUND | STATE REFUND LEVY 603 | 0.0000000000 | $222,800 | $222,800 | $0.00 | | |
| CWWBOND | C OF WW BOND 643 | 0.2760494372 | $222,800 | $222,800 | $61.50 | | |
| CWWGEN | CITY OF WW 631 | 1.6100204973 | $222,800 | $222,800 | $358.71 | | |
| CWWRFD | CITY OF WALLA WALLA REFUND 631 | 0.0000000000 | $222,800 | $222,800 | $0.00 | | |
| | Total Tax Rate: | 8.7973694689 | | | | | |
| | | | | Taxes w/Current Exemptions: | $1,960.05 | | |
| | | | | Taxes w/o Exemptions: | $1,960.05 | | |
Improvement / Building
| Improvement #1: | RESIDENTIAL | State Code: | 11 | 1076.0 sqft | Value: | $173,300 |
| Exterior Wall: | VINYL | Heating/Cooling: | FORCED AIR | | Number of Bathrooms: | 1 | Number of Bedrooms: | 3 | | Plumbing: | 6 | Roof Covering: | COMP SHINGLE |
|
| | Type | Description | Class CD | Sub Class CD | Year Built | Area |
| | MA | Main Area | 1 | 30 | 1949 | 1076.0 |
| | SI1 | SITE IMPROVEMENT | 1 | 30 | 1949 | 1.0 |
| | RPS | PORCH W/STEPS,ROOF | 1 | 30 | 1949 | 30.0 |
| | CPC | COVERED CARPORT/PATIO | 1 | 30 | 1949 | 242.0 |
| | CPC | COVERED CARPORT/PATIO | 1 | 30 | 1949 | 306.0 |
Sketch
Property Image
Land
| 1 | RES 1 | Converted: Residential | 0.1818 | 7920.00 | 0.00 | 0.00 | 1.00 | $49,500 | $0 |
Roll Value History
| 2026 | N/A | N/A | N/A | N/A | N/A |
| 2025 | $169,060 | $79,200 | $0 | $248,260 | $248,260 |
| 2024 | $140,880 | $79,200 | $0 | $220,080 | $220,080 |
| 2023 | $173,300 | $49,500 | $0 | $222,800 | $222,800 |
| 2022 | $173,300 | $49,500 | $0 | $222,800 | $222,800 |
| 2021 | $150,700 | $49,500 | $0 | $200,200 | $200,200 |
| 2020 | $134,550 | $49,500 | $0 | $184,050 | $184,050 |
| 2019 | $134,550 | $49,500 | $0 | $184,050 | $184,050 |
| 2018 | $103,500 | $49,500 | $0 | $153,000 | $153,000 |
| 2017 | $116,800 | $31,700 | $0 | $148,500 | $148,500 |
| 2016 | $97,340 | $31,700 | $0 | $129,040 | $129,040 |
| 2015 | $97,340 | $31,700 | $0 | $129,040 | $129,040 |
| 2014 | $92,700 | $31,700 | $0 | $124,400 | $124,400 |
| 2013 | $92,700 | $31,700 | $0 | $124,400 | $124,400 |
| 2012 | $92,700 | $31,700 | $0 | $0 | $0 |
| 2011 | $79,900 | $31,700 | $0 | $0 | $0 |
| 2010 | $74,600 | $31,700 | $0 | $0 | $0 |
| 2009 | $86,400 | $31,700 | $0 | $0 | $0 |
| 2008 | $86,400 | $31,700 | $0 | $0 | $0 |
| 2007 | $86,400 | $31,700 | $0 | $0 | $0 |
Deed and Sales History
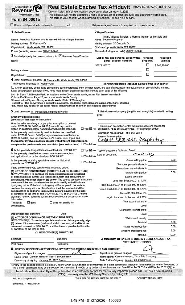
| 1 | 01/27/2026 | QCD | QUIT CLAIM DEED | | BANALES IRMA L VILLEGAS | | | | 150686 | 2026-00513 |
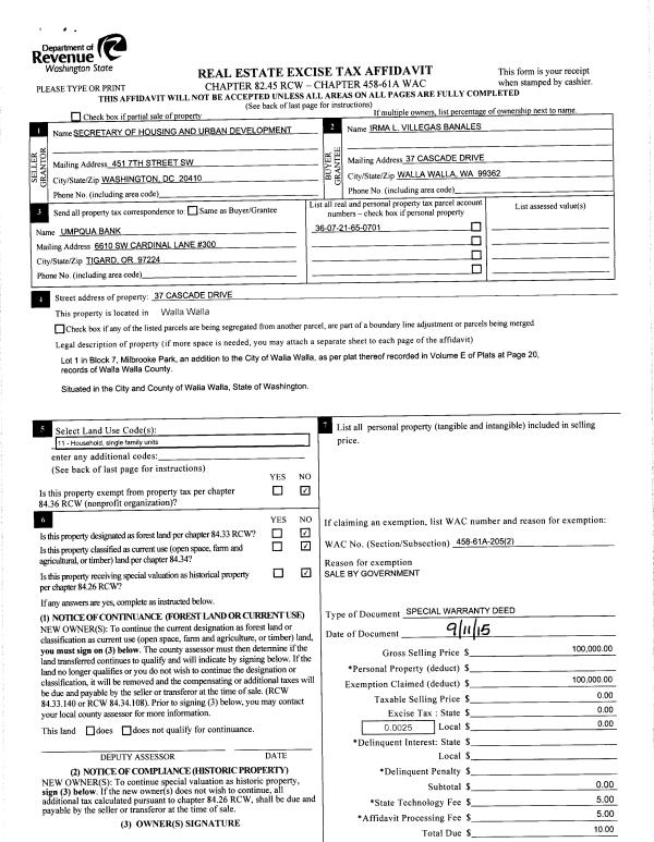
| 2 | 09/15/2015 | SWD | STATUTORY WARRANTY DEED | SECRETARY OF HOUSING & URBAN DEV | BANALES IRMA L VILLEGAS | | | $100,000.00 | 128812 | 2015-08062 |
| 3 | 06/26/2015 | SWD | STATUTORY WARRANTY DEED | JPMORGAN CHASE BANK NATIONAL | SECRETARY OF HOUSING & URBAN DEV | | | $140,908.00 | 128259 | 2015-05453 |
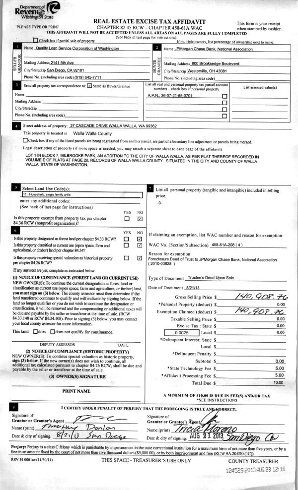
| 4 | 08/23/2013 | WARRANTY D | WARRANTY DEED | QUALITY LOAN SERVICE CORPORATI | JPMORGAN CHASE BANK NATIONAL | | | $140,908.00 | 124529 | 2013-08696 |
| 5 | 05/18/2010 | WARRANTY D | WARRANTY DEED | BLODGETT, KATHRYN L | HERMANN, MICHAEL W & LINDA J | | | $129,900.00 | 118479 | 2010-03827 |
| 6 | 01/09/2004 | WARRANTY D | WARRANTY DEED | WHALEN, MELVIN E & TAMMY | BLODGETT, KATHRYN L | | | | 103885 | 2004-18655 |
| 7 | 12/08/2003 | WARRANTY D | WARRANTY DEED | WHALEN, MELVIN E | BLODGETT, KATHRYN L | | | $99,000.00 | 103678 | 2003-18655 |
| 8 | 11/18/2002 | QCD | QUIT CLAIM DEED | PETERSON, TAMMY L | WHALEN, MELVIN E | | | | 100831 | 2002-13128 |
| 9 | 02/21/1990 | QCD | QUIT CLAIM DEED | | | | | $0.00 | 0 | 1819-001194 |
Payout Agreement
| No payout information available.. |