Property
Account |
| Property ID: | 28536 | Abbreviated Legal Description: | LELAS ADDN LOT 1, LESS E 50' |
| Parcel Number: | 350726570006 | Agent Code: | |
| Type: | Real | | |
| Tax Area: | 311 - 250-4 | Land Use Code | 11 |
| Open Space: | N | DFL | N |
| Historic Property: | N | Remodel Property: | N |
| Multi-Family Redevelopment: | N | | |
| Township: | 7 | Section: | 26 |
| Range: | 35 |
Location |
| Address: | 372 NW EVANS AVE WA 99362 | Mapsco: | |
| Neighborhood: | MH A Rural/City Infl | Map ID: | |
| Neighborhood CD: | 313062 |
Owner |
| Name: | CLOUGH KATHLEEN L | Owner ID: | 58272 |
| Mailing Address: | ROBERTA L RIGGS 372 NW EVANS AVE WALLA WALLA, WA 99362 | % Ownership: | 100.0000000000% |
| | | Exemptions: | |
Taxes and Assessment Details
Property Tax Information as of
02/21/2026
Click on "Statement Details" to expand or collapse a tax statement.
* Please enter a valid date ** Please enter a valid date *
Statement Details |
| | TOTAL: | $0.00 | $0.00 | $0.00 | $0.00 | $0.00 | $0.00 |
|
| | $0.00 | $0.00 | $0.00 | $0.00 | $0.00 | $0.00 |
Values
| (+) Improvement Homesite Value: | + | $0 | |
| (+) Improvement Non-Homesite Value: | + | $219,680 | |
| (+) Land Homesite Value: | + | $0 | |
| (+) Land Non-Homesite Value: | + | $85,760 | |
| (+) Curr Use (HS): | + | $0 | $0 |
| (+) Curr Use (NHS): | + | $0 | $0 |
| | | -------------------------- | |
| (=) Market Value: | = | $305,440 | |
| (–) Productivity Loss: | – | $0 | |
| | | -------------------------- | |
| (=) Subtotal: | = | $305,440 | |
| (+) Senior Appraised Value: | + | $0 | |
| (+) Non-Senior Appraised Value: | + | $305,440 | |
| | | -------------------------- | |
| (=) Total Appraised Value: | = | $305,440 | |
| (–) Senior Exemption Loss: | – | $0 | |
| (–) Exemption Loss: | – | $0 | |
| | | -------------------------- | |
| (=) Taxable Value: | = | $305,440 | |
Taxing Jurisdiction
| Owner: | CLOUGH KATHLEEN L | | |
| % Ownership: | 100.0000000000% | | |
| Total Value: | $305,440 | | |
| Tax Area: | 311 - 250-4 |
| CERFD | CURRENT EXPENSE REFUND 010 | 0.0000000000 | $305,440 | $305,440 | $0.00 | | |
| CURREXP | CURRENT EXPENSE 010 | 1.0175366760 | $305,440 | $305,440 | $310.80 | | |
| HUMNSERV | HUMAN SERVICES 119 | 0.0250000000 | $305,440 | $305,440 | $7.64 | | |
| SLDREL | SOLDIERS RELIEF 121 | 0.0155990005 | $305,440 | $305,440 | $4.76 | | |
| EMERGSER | EMS 147 | 0.3792580840 | $305,440 | $305,440 | $115.84 | | |
| EMSRFD | EMS REFUND 147 | 0.0000000000 | $305,440 | $305,440 | $0.00 | | |
| FD4EXP | FD #4 EXPENSE 686 | 0.8836993059 | $305,440 | $305,440 | $269.92 | | |
| RLBRFD | RURAL LIBRARY REFUND 623 | 0.0000000000 | $305,440 | $305,440 | $0.00 | | |
| RURALLIB | RURAL LIBRARY 623 | 0.3710609029 | $305,440 | $305,440 | $113.34 | | |
| PORTRFD | PORT REFUND 640 | 0.0000000000 | $305,440 | $305,440 | $0.00 | | |
| PORTWWGEN | PORT OF WW 640 | 0.2460186015 | $305,440 | $305,440 | $75.14 | | |
| SD250BOND | SD #250 BOND 773 | 1.4560608159 | $305,440 | $305,440 | $444.74 | | |
| SD250GEN | SD #250 GENERAL 770 | 2.3880724087 | $305,440 | $305,440 | $729.41 | | |
| ST2 | STATE SCHOOL PART 2 600 | 0.8131451643 | $305,440 | $305,440 | $248.37 | | |
| STATESCHL | STATE SCHOOL 600 | 1.5158548041 | $305,440 | $305,440 | $463.00 | | |
| STREFUND | STATE REFUND LEVY 603 | 0.0000000000 | $305,440 | $305,440 | $0.00 | | |
| COROAD | COUNTY ROAD 115 | 1.6549953990 | $305,440 | $305,440 | $505.50 | | |
| CRPRD | COUNTY ROAD REFUND 115 | 0.0000000000 | $305,440 | $305,440 | $0.00 | | |
| | Total Tax Rate: | 10.7663011628 | | | | | |
| | | | | Taxes w/Current Exemptions: | $3,288.46 | | |
| | | | | Taxes w/o Exemptions: | $3,288.46 | | |
Improvement / Building
| Improvement #1: | MANUFACTURED HOME | State Code: | 11 | 1728.0 sqft | Value: | $219,680 |
| Exterior Wall: | HARDBOARD | Heating/Cooling: | WARM & COOLED AIR | | Number of Bathrooms: | 2 | Number of Bedrooms: | 3 | | Plumbing: | 8 | Roof Covering: | COMP SHINGLE |
|
| | Type | Description | Class CD | Sub Class CD | Year Built | Area |
| | MOBHOME | MANUFACTURD HOMES | 1 | 30 | 1989 | 1728.0 |
| | CPC | COVERED CARPORT/PATIO | 1 | 30 | 0 | 528.0 |
| | CPC | COVERED CARPORT/PATIO | 1 | 30 | 0 | 560.0 |
| | MI1 | MH SET-UP COSTS | 1 | 30 | 0 | 1.0 |
| | ATG | Attached Garage | 1 | 30 | 1989 | 240.0 |
Sketch
Property Image
Land
| 1 | RES 1 | Converted: Residential | 0.4600 | 20038.00 | 0.00 | 0.00 | 1.00 | $85,760 | $0 |
Roll Value History
| 2026 | N/A | N/A | N/A | N/A | N/A |
| 2025 | $265,820 | $85,760 | $0 | $351,580 | $351,580 |
| 2024 | $241,650 | $85,760 | $0 | $327,410 | $327,410 |
| 2023 | $219,680 | $85,760 | $0 | $305,440 | $305,440 |
| 2022 | $183,070 | $85,760 | $0 | $268,830 | $268,830 |
| 2021 | $167,540 | $55,700 | $0 | $223,240 | $223,240 |
| 2020 | $128,880 | $55,700 | $0 | $184,580 | $184,580 |
| 2019 | $128,880 | $55,700 | $0 | $184,580 | $184,580 |
| 2018 | $128,880 | $55,700 | $0 | $184,580 | $184,580 |
| 2017 | $85,920 | $55,700 | $0 | $141,620 | $141,620 |
| 2016 | $85,920 | $55,700 | $0 | $141,620 | $141,620 |
| 2015 | $86,460 | $55,700 | $0 | $142,160 | $142,160 |
| 2014 | $78,600 | $55,700 | $0 | $134,300 | $134,300 |
| 2013 | $78,600 | $55,700 | $0 | $134,300 | $134,300 |
| 2012 | $78,600 | $55,700 | $0 | $0 | $0 |
| 2011 | $78,600 | $55,700 | $0 | $0 | $0 |
| 2010 | $88,300 | $55,700 | $0 | $0 | $0 |
| 2009 | $126,300 | $33,700 | $0 | $0 | $0 |
| 2008 | $84,800 | $33,700 | $0 | $0 | $0 |
| 2007 | $84,800 | $33,700 | $0 | $0 | $0 |
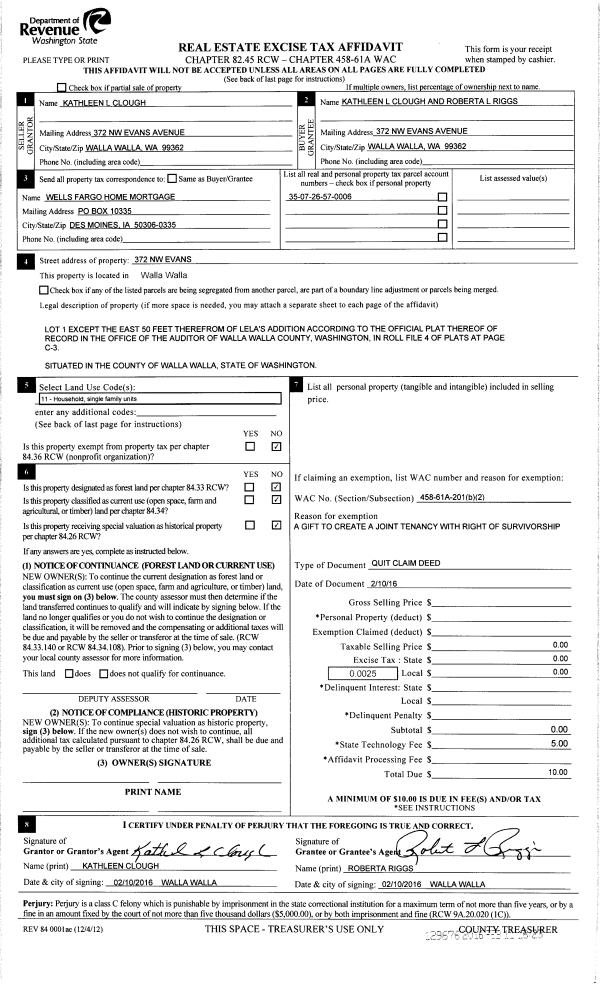
Deed and Sales History
| 1 | 02/10/2016 | QCD | QUIT CLAIM DEED | CLOUGH KATHLEEN L | CLOUGH KATHLEEN L | | | $0.00 | 129676 | 2016-01084 |
| 2 | 05/28/2010 | WARRANTY D | WARRANTY DEED | DODD, DOLORES I | CLOUGH, KATHLEEN L | | | $138,000.00 | 118536 | 2010-04129 |
Payout Agreement
| No payout information available.. |