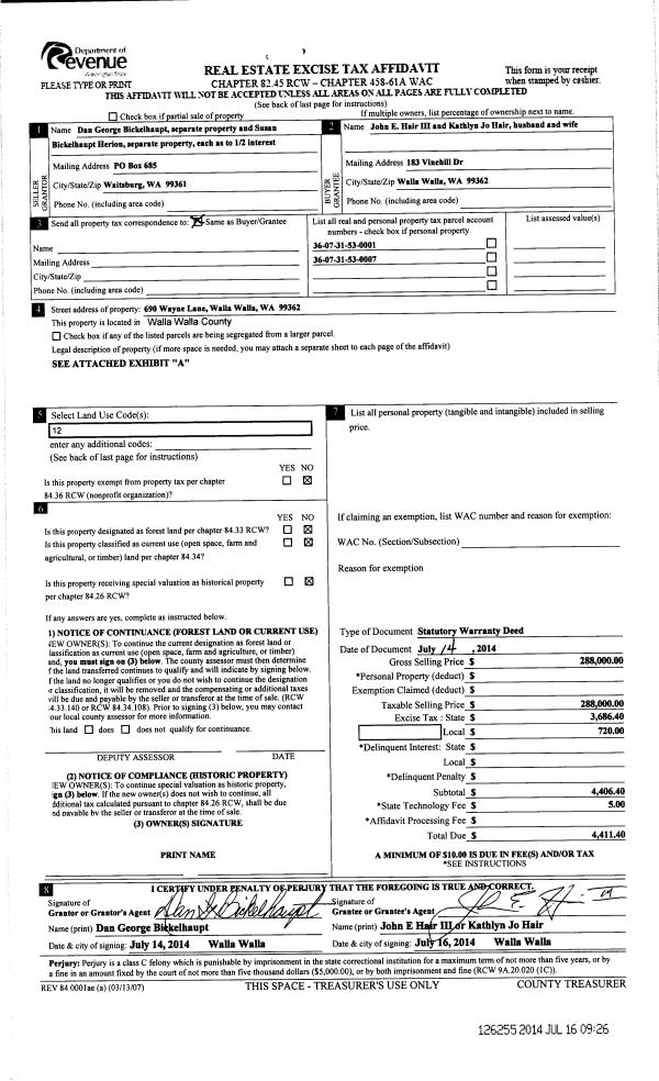
Property
Account |
| Property ID: | 28499 | Abbreviated Legal Description: | LAGRANDE VIEW LOT 1 |
| Parcel Number: | 360731530001 | Agent Code: | |
| Type: | Real | | |
| Tax Area: | 1 - OL-140-F | Land Use Code | 11 |
| Open Space: | N | DFL | N |
| Historic Property: | N | Remodel Property: | N |
| Multi-Family Redevelopment: | N | | |
| Township: | 7 | Section: | 31 |
| Range: | 36 |
Location |
| Address: | 690 WAYNE LN WALLA WALLA, WA 99362 | Mapsco: | |
| Neighborhood: | VG Duplex | Map ID: | |
| Neighborhood CD: | 115031 |
Owner |
| Name: | HAIR JOHN E III & KATHLYN JO | Owner ID: | 10582 |
| Mailing Address: | 690 WAYNE LN WALLA WALLA, WA 99362 | % Ownership: | 100.0000000000% |
| | | Exemptions: | |
Taxes and Assessment Details
Values
| (+) Improvement Homesite Value: | + | N/A | |
| (+) Improvement Non-Homesite Value: | + | N/A | |
| (+) Land Homesite Value: | + | N/A | |
| (+) Land Non-Homesite Value: | + | N/A | Ag / Timber Use Value |
| (+) Curr Use (HS): | + | N/A | N/A |
| (+) Curr Use (NHS): | + | N/A | N/A |
| | | -------------------------- | |
| (=) Market Value: | = | N/A | |
| (–) Productivity Loss: | – | N/A | |
| | | -------------------------- | |
| (=) Subtotal: | = | N/A | |
| (+) Senior Appraised Value: | + | N/A | |
| (+) Non-Senior Appraised Value: | + | N/A | |
| | | -------------------------- | |
| (=) Total Appraised Value: | = | N/A | |
| (–) Senior Exemption Loss: | – | N/A | |
| (–) Exemption Loss: | – | N/A | |
| | | -------------------------- | |
| (=) Taxable Value: | = | N/A | |
Taxing Jurisdiction
| Owner: | HAIR JOHN E III & KATHLYN JO | | |
| % Ownership: | 100.0000000000% | | |
| Total Value: | N/A | | |
| Tax Area: | 1 - OL-140-F |
| CERFD | CURRENT EXPENSE REFUND 010 | N/A | N/A | N/A | N/A | | |
| CURREXP | CURRENT EXPENSE 010 | N/A | N/A | N/A | N/A | | |
| HUMNSERV | HUMAN SERVICES 119 | N/A | N/A | N/A | N/A | | |
| SLDREL | SOLDIERS RELIEF 121 | N/A | N/A | N/A | N/A | | |
| EMERGSER | EMS 147 | N/A | N/A | N/A | N/A | | |
| EMSRFD | EMS REFUND 147 | N/A | N/A | N/A | N/A | | |
| PORTRFD | PORT REFUND 640 | N/A | N/A | N/A | N/A | | |
| PORTWWGEN | PORT OF WW 640 | N/A | N/A | N/A | N/A | | |
| SD140BOND | SD #140 BOND 764 | N/A | N/A | N/A | N/A | | |
| SD140GEN | SD #140 GENERAL 760 | N/A | N/A | N/A | N/A | | |
| ST2 | STATE SCHOOL PART 2 600 | N/A | N/A | N/A | N/A | | |
| STATESCHL | STATE SCHOOL 600 | N/A | N/A | N/A | N/A | | |
| STREFUND | STATE REFUND LEVY 603 | N/A | N/A | N/A | N/A | | |
| CWWBOND | C OF WW BOND 643 | N/A | N/A | N/A | N/A | | |
| CWWGEN | CITY OF WW 631 | N/A | N/A | N/A | N/A | | |
| CWWRFD | CITY OF WALLA WALLA REFUND 631 | N/A | N/A | N/A | N/A | | |
| | Total Tax Rate: | N/A | | | | | |
| | | | | Taxes w/Current Exemptions: | N/A | | |
| | | | | Taxes w/o Exemptions: | N/A | | |
Improvement / Building
| Improvement #1: | RESIDENTIAL | State Code: | 12 | 3914.0 sqft | Value: | N/A |
| Exterior Wall: | SIDING | Heating/Cooling: | WARM & COOLED AIR | | Number of Bathrooms: | 4 | Number of Bedrooms: | 5 | | Plumbing: | 22 | Roof Covering: | COMP SHINGLE |
|
| | Type | Description | Class CD | Sub Class CD | Year Built | Area |
| | MA | Main Area | 1 | 45 | 1970 | 3914.0 |
| | CPCS | CARPORT/SHED OR FLAT ROOF | 4 | 45 | 0 | 480.0 |
| | SI1 | SITE IMPROVEMENT | 4 | 45 | 0 | 4.0 |
| | CPCS | CARPORT/SHED OR FLAT ROOF | 4 | 45 | 0 | 480.0 |
| | RPC | OPEN PORCH W/ROOF , CEILED | 1 | 45 | 1970 | 42.0 |
| | S1F | Single One Story Fireplace | 1 | 45 | 1970 | 1.0 |
| | TOOL | TOOL SHED | 1 | 45 | 1970 | 216.0 |
| | TOOL | TOOL SHED | 1 | 45 | 1970 | 216.0 |
| | GFP | GAS FIREPLACE | 1 | 45 | 1970 | 2.0 |
| | RPC | OPEN PORCH W/ROOF , CEILED | 1 | 45 | 1970 | 320.0 |
| | UTST | Utility Storage Shed | 1 | 45 | 1970 | 120.0 |
| | RPO | OPEN PORCH W/ROOF | 1 | 45 | 1970 | 550.0 |
Sketch
Property Image
Land
| 1 | RES 1 | Converted: Residential | 0.3990 | 17380.00 | 0.00 | 0.00 | 1.00 | N/A | N/A |
Roll Value History
| 2026 | N/A | N/A | N/A | N/A | N/A |
| 2025 | $452,970 | $110,000 | $0 | $562,970 | $562,970 |
| 2024 | $452,970 | $110,000 | $0 | $562,970 | $562,970 |
| 2023 | $452,970 | $110,000 | $0 | $562,970 | $562,970 |
| 2022 | $452,970 | $110,000 | $0 | $562,970 | $562,970 |
| 2021 | $452,970 | $110,000 | $0 | $562,970 | $562,970 |
| 2020 | $452,970 | $110,000 | $0 | $562,970 | $562,970 |
| 2019 | $452,970 | $100,000 | $0 | $552,970 | $552,970 |
| 2018 | $452,970 | $100,000 | $0 | $552,970 | $552,970 |
| 2017 | $452,970 | $100,000 | $0 | $552,970 | $552,970 |
| 2016 | $431,400 | $100,000 | $0 | $531,400 | $531,400 |
| 2015 | $328,270 | $100,000 | $0 | $428,270 | $428,270 |
| 2014 | $157,500 | $100,000 | $0 | $257,500 | $257,500 |
| 2013 | $157,500 | $100,000 | $0 | $257,500 | $257,500 |
| 2012 | $186,100 | $100,000 | $0 | $0 | $0 |
| 2011 | $186,100 | $100,000 | $0 | $0 | $0 |
| 2010 | $186,100 | $100,000 | $0 | $0 | $0 |
| 2009 | $201,200 | $100,000 | $0 | $0 | $0 |
| 2008 | $148,900 | $100,000 | $0 | $0 | $0 |
| 2007 | $148,900 | $100,000 | $0 | $0 | $0 |
Deed and Sales History
| 1 | 07/14/2014 | SWD | STATUTORY WARRANTY DEED | BICKELHAUPT DAN GEORGE | HAIR JOHN E III & KATHLYN JO | | | $288,000.00 | 126255 | 2014-04939 |
|   | |
| 2 | 05/11/2010 | WARRANTY D | WARRANTY DEED | BICKELHAUPT LIVING TRUST | BICKELHAUPT, DAN GEORGE | | | | 118456 | 2010-03620 |
| 3 | 02/08/1979 | WARRANTY D | WARRANTY DEED | | | | | $120,000.00 | 0 | 9779-01216 |
Payout Agreement
| No payout information available.. |