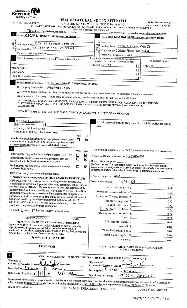
Property
Account |
| Property ID: | 28450 | Abbreviated Legal Description: | AUTUMN MEADOWS LT 14 BLK 5 |
| Parcel Number: | 350736970514 | Agent Code: | |
| Type: | Real | | |
| Tax Area: | 77 - CP-250-F | Land Use Code | 11 |
| Open Space: | N | DFL | N |
| Historic Property: | N | Remodel Property: | N |
| Multi-Family Redevelopment: | N | | |
| Township: | 7 | Section: | 36 |
| Range: | 35 |
Location |
| Address: | 1174 SE SCENIC VIEW DR WA 99324 | Mapsco: | |
| Neighborhood: | A SFR | Map ID: | |
| Neighborhood CD: | 113011 |
Owner |
| Name: | SALDANA BRENDA | Owner ID: | 64306 |
| Mailing Address: | 1174 SE SCENIC VIEW DR COLLEGE PLACE, WA 99324 | % Ownership: | 100.0000000000% |
| | | Exemptions: | |
Taxes and Assessment Details
Values
| (+) Improvement Homesite Value: | + | $0 | |
| (+) Improvement Non-Homesite Value: | + | $242,040 | |
| (+) Land Homesite Value: | + | $0 | |
| (+) Land Non-Homesite Value: | + | $70,000 | |
| (+) Curr Use (HS): | + | $0 | $0 |
| (+) Curr Use (NHS): | + | $0 | $0 |
| | | -------------------------- | |
| (=) Market Value: | = | $312,040 | |
| (–) Productivity Loss: | – | $0 | |
| | | -------------------------- | |
| (=) Subtotal: | = | $312,040 | |
| (+) Senior Appraised Value: | + | $0 | |
| (+) Non-Senior Appraised Value: | + | $312,040 | |
| | | -------------------------- | |
| (=) Total Appraised Value: | = | $312,040 | |
| (–) Senior Exemption Loss: | – | $0 | |
| (–) Exemption Loss: | – | $0 | |
| | | -------------------------- | |
| (=) Taxable Value: | = | $312,040 | |
Taxing Jurisdiction
| Owner: | SALDANA BRENDA | | |
| % Ownership: | 100.0000000000% | | |
| Total Value: | $312,040 | | |
| Tax Area: | 77 - CP-250-F |
| CERFD | CURRENT EXPENSE REFUND 010 | 0.0000000000 | $312,040 | $312,040 | $0.00 | | |
| CURREXP | CURRENT EXPENSE 010 | 1.0175366760 | $312,040 | $312,040 | $317.51 | | |
| HUMNSERV | HUMAN SERVICES 119 | 0.0250000000 | $312,040 | $312,040 | $7.80 | | |
| SLDREL | SOLDIERS RELIEF 121 | 0.0155990005 | $312,040 | $312,040 | $4.87 | | |
| COLLPLBOND | C OF CP BOND 644 | 0.4374241808 | $312,040 | $312,040 | $136.49 | | |
| COLLPLGEN | CITY OF CP 632 | 1.4453819216 | $312,040 | $312,040 | $451.02 | | |
| EMERGSER | EMS 147 | 0.3792580840 | $312,040 | $312,040 | $118.34 | | |
| EMSRFD | EMS REFUND 147 | 0.0000000000 | $312,040 | $312,040 | $0.00 | | |
| RURALLIB | RURAL LIBRARY 623 | 0.3710609029 | $312,040 | $312,040 | $115.79 | | |
| PORTRFD | PORT REFUND 640 | 0.0000000000 | $312,040 | $312,040 | $0.00 | | |
| PORTWWGEN | PORT OF WW 640 | 0.2460186015 | $312,040 | $312,040 | $76.77 | | |
| SD250BOND | SD #250 BOND 773 | 1.4560608159 | $312,040 | $312,040 | $454.35 | | |
| SD250GEN | SD #250 GENERAL 770 | 2.3880724087 | $312,040 | $312,040 | $745.17 | | |
| ST2 | STATE SCHOOL PART 2 600 | 0.8131451643 | $312,040 | $312,040 | $253.73 | | |
| STATESCHL | STATE SCHOOL 600 | 1.5158548041 | $312,040 | $312,040 | $473.01 | | |
| STREFUND | STATE REFUND LEVY 603 | 0.0000000000 | $312,040 | $312,040 | $0.00 | | |
| | Total Tax Rate: | 10.1104125603 | | | | | |
| | | | | Taxes w/Current Exemptions: | $3,154.85 | | |
| | | | | Taxes w/o Exemptions: | $3,154.85 | | |
Improvement / Building
| Improvement #1: | RESIDENTIAL | State Code: | 11 | 1032.0 sqft | Value: | $242,040 |
| Exterior Wall: | PLYWOOD | Heating/Cooling: | WARM & COOLED AIR | | Number of Bathrooms: | 2 | Number of Bedrooms: | 3 | | Plumbing: | 9 | Roof Covering: | COMP SHINGLE |
|
| | Type | Description | Class CD | Sub Class CD | Year Built | Area |
| | MA | Main Area | 1 | 30 | 2003 | 1032.0 |
| | SI1 | SITE IMPROVEMENT | 1 | 30 | 2003 | 1.0 |
| | ATG | Attached Garage | 1 | 30 | 2003 | 400.0 |
| | RPC | OPEN PORCH W/ROOF , CEILED | 1 | 30 | 2003 | 24.0 |
Sketch
Property Image
Land
| 1 | RES 1 | Converted: Residential | 0.1148 | 5000.00 | 0.00 | 0.00 | 1.00 | $70,000 | $0 |
Roll Value History
| 2026 | N/A | N/A | N/A | N/A | N/A |
| 2025 | $193,630 | $125,000 | $0 | $318,630 | $318,630 |
| 2024 | $242,040 | $70,000 | $0 | $312,040 | $312,040 |
| 2023 | $242,040 | $70,000 | $0 | $312,040 | $312,040 |
| 2022 | $210,470 | $70,000 | $0 | $280,470 | $280,470 |
| 2021 | $168,380 | $70,000 | $0 | $238,380 | $238,380 |
| 2020 | $112,250 | $70,000 | $0 | $182,250 | $182,250 |
| 2019 | $127,250 | $55,000 | $0 | $182,250 | $182,250 |
| 2018 | $110,660 | $55,000 | $0 | $165,660 | $165,660 |
| 2017 | $105,390 | $55,000 | $0 | $160,390 | $160,390 |
| 2016 | $87,820 | $55,000 | $0 | $142,820 | $142,820 |
| 2015 | $83,640 | $55,000 | $0 | $138,640 | $138,640 |
| 2014 | $69,700 | $55,000 | $0 | $124,700 | $124,700 |
| 2013 | $69,700 | $55,000 | $0 | $124,700 | $124,700 |
| 2012 | $83,500 | $55,000 | $0 | $0 | $0 |
| 2011 | $83,500 | $55,000 | $0 | $0 | $0 |
| 2010 | $90,500 | $55,000 | $0 | $0 | $0 |
| 2009 | $106,700 | $55,000 | $0 | $0 | $0 |
| 2008 | $65,600 | $30,000 | $0 | $0 | $0 |
| 2007 | $65,600 | $30,000 | $0 | $0 | $0 |
Deed and Sales History
| 1 | 11/17/2018 | QCD | QUIT CLAIM DEED | RAMOS OSCAR D | SALDANA BRENDA | | | $0.00 | 135985 | 2018-09745 |
| 2 | 04/21/2010 | WARRANTY D | WARRANTY DEED | WWVA BRO LLC | RAMOS, OSCAR D | | | $138,500.00 | 118370 | 2010-03129 |
| 3 | 11/03/2003 | QCD | QUIT CLAIM DEED | FREEDLE, MARK | WWVA BRO LLC | | | | 103434 | 2003-17060 |
| 4 | 06/10/2003 | QCD | QUIT CLAIM DEED | WWVA BRO LLC | FREEDLE, MARK | | | | 102303 | 2003-08602 |
| 5 | 02/03/2003 | WARRANTY D | WARRANTY DEED | HAYDEN ENTERPRISES INC | WWVA BRO LLC | | | $93,579.00 | 101328 | 2003-01558 |
| 6 | 08/21/2002 | WARRANTY D | WARRANTY DEED | VILLAGE PARK COLLEGE PLACE~LLC | | | | | 100199 | 2002-09391 |
Payout Agreement
| No payout information available.. |